*내 집은 내 산이요, 내 바다는 내 창이다: 자연 속 건축의 신화 KLG Architects uses thick walls for coastal "sanctuary" in South Africa
"우리가 사는 집은 단순히 우리를 보호하는 것이 아니라, 우리에게 감동을 주어야 한다." – 피터 춈토르 (Peter Zumthor)

![]() |
![]() |
![]() |
내 집은 내 산이요, 내 바다는 내 창이다: 자연 속 건축의 신화 KLG Architects uses thick walls for coastal "sanctuary" in South Africa
험준한 남아프리카 자연 속에서 거주자에게 피난처와 개방감을 동시에 제공하는 건축물이 있다면 어떤 모습일까요? Hytte Riverview는 남아프리카의 로이 엘스(Rooi Els) 지역의 자연경관을 반영하여 설계된 지속 가능한 건축물입니다. KLG Architects는 이 주택을 통해 거주자가 자연과 조화된 삶을 경험하도록 했습니다. 두꺼운 벽과 넓은 유리창은 "보호와 개방"이라는 이중적 성격을 통해 자연과의 일체감을 더하고, 주변 경관에 녹아들어 환경 친화적 주택의 새로운 기준을 제시합니다.
프로젝트 개요:
Hytte Riverview는 로이 엘스 강과 폴스 베이(False Bay)가 만나는 남아프리카 서부 케이프의 독특한 위치에 자리 잡고 있습니다. 이 자연 친화적 주택은 지속 가능성과 환경 보호의 가치를 건축에 담고 있습니다.
설계 개념 및 인과관계 설명:
이 건축물은 두꺼운 벽과 넓은 유리창을 통해 "보호와 개방"이라는 상반된 개념을 동시에 구현했습니다. 두꺼운 벽은 거주자를 험준한 환경에서 보호하는 역할을 하며, 유리창은 자연 경관과의 시각적 연결을 제공합니다. 이로써, 거주자는 안전 속에서 자연을 즐길 수 있으며, 에너지 효율성을 극대화하여 지속 가능한 설계를 실현합니다.
디자인과 사용자 경험:
Hytte Riverview의 디자인은 거주자가 자연의 일부가 된 듯한 느낌을 받도록 유도합니다. 실내와 외부가 유기적으로 연결된 구조로, 거주자가 내부에서도 바깥 풍경을 충분히 경험할 수 있도록 했습니다. 자연광은 북쪽 유리 외벽과 클레어스토리 창문을 통해 실내에 들어와 에너지 절약에도 기여합니다. 이 설계는 에너지 효율적이면서도 편안한 거주 환경을 제공합니다.
미학적 및 환경적 특성:
외벽의 거친 플라스터 마감과 슬레이트 타일 바닥은 주변 바위와 시각적으로 조화를 이루며, 내부는 연한 목재 천장이 따뜻하고 자연스러운 분위기를 더해줍니다. 미학적 요소와 기능적 요소가 조화를 이루어 이 주택은 남아프리카 건축에서 자연의 미를 강조하는 새로운 트렌드를 제시합니다.
미래 건축 트렌드와의 연결성:
Hytte Riverview는 단순한 주거 공간 이상의 의미를 지니며, 환경과 공생하는 현대 건축 트렌드를 반영한 사례로 자리잡고 있습니다. 지속 가능성과 에너지 효율성을 중시하는 건축 트렌드는 앞으로 더욱 중요해질 것이며, 이 주택은 그 이상적인 예입니다.
결론
Hytte Riverview는 환경 친화적인 설계와 지속 가능한 건축물의 가치를 명확히 보여주는 사례입니다. 이 주택은 거주자에게 자연과의 조화로운 삶을 제공하며, 환경과 공생하는 주거의 미래를 제시합니다. 이러한 설계는 남아프리카의 거친 자연환경과 완벽하게 조화를 이루며, 지속 가능한 건축의 가능성을 실현합니다.
Write by ChatGPT & 5osa

























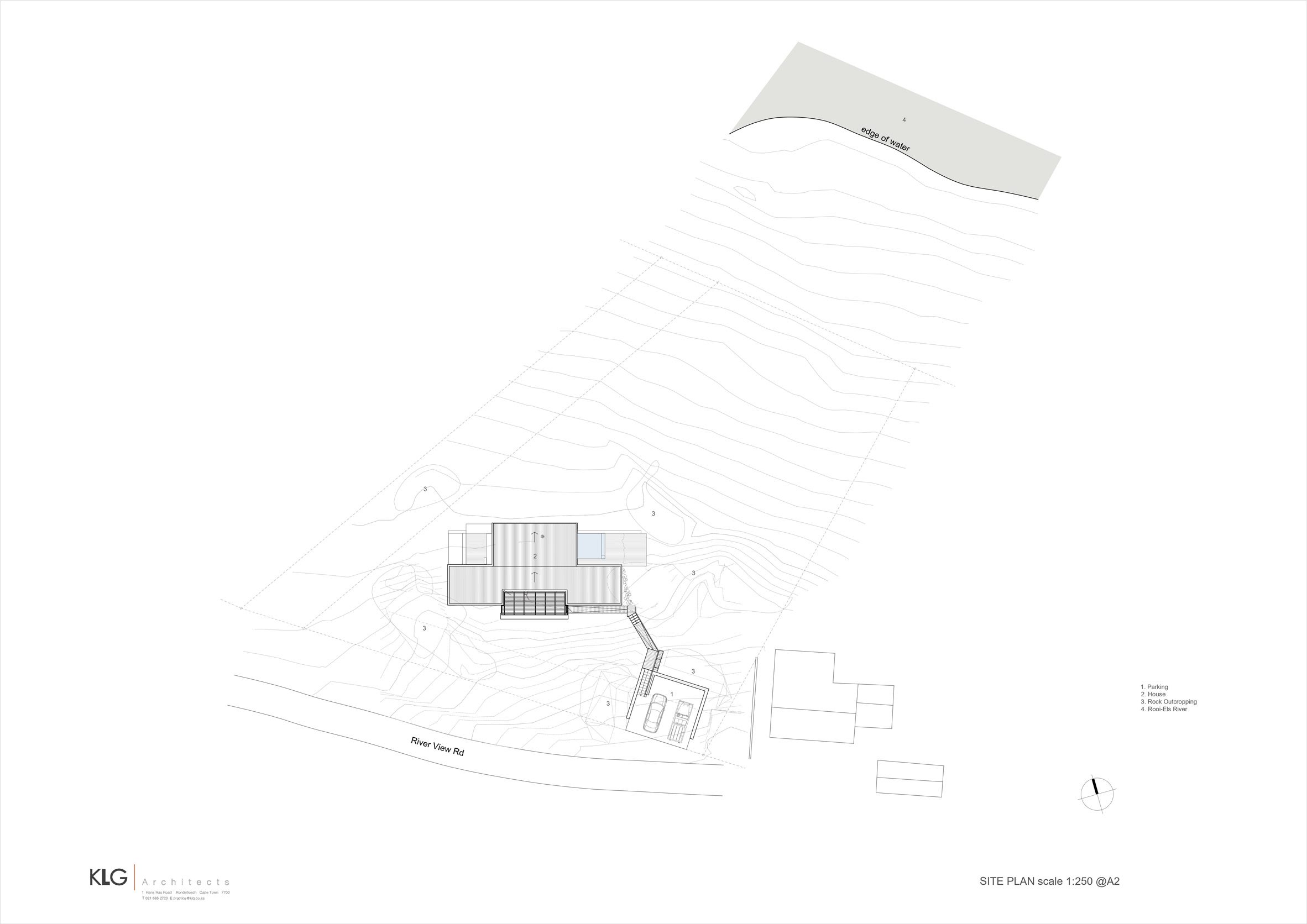
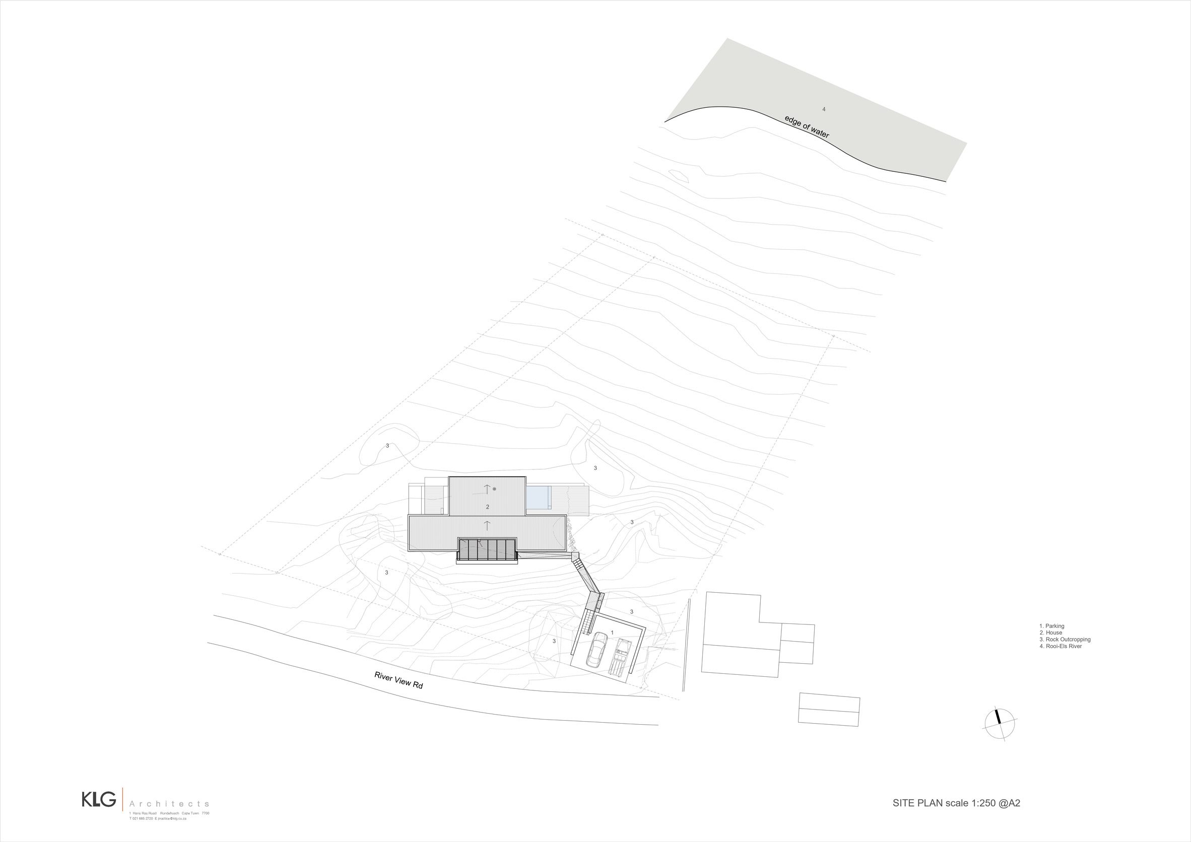
Textured plaster intended to mimic nearby rocky outcrops coats the thick walls of Hytte Riverview, a house overlooking an estuary in South Africa by local studio KLG Architects.
The 110-square metre home is nestled into the rocky, sloping landscape of Rooi Els in the Western Cape, enjoying views of the Rooi Els River flowing into False Bay and the sea beyond.
Responding to this setting, KLG Architects combined thick, rough walls that shelter from the weather with expanses of full-height glazing, "striking a delicate balance between refuge and prospect", the studio said.
"The design's dual nature – open and outward-facing on one side, solid and sheltered on the other ensures that the home provides comfort, serenity, and a deep connection to the distinctive environment," director Jan Douglas told Dezeen.
"It offers a sanctuary where residents can feel both protected and connected to the landscape," he added.
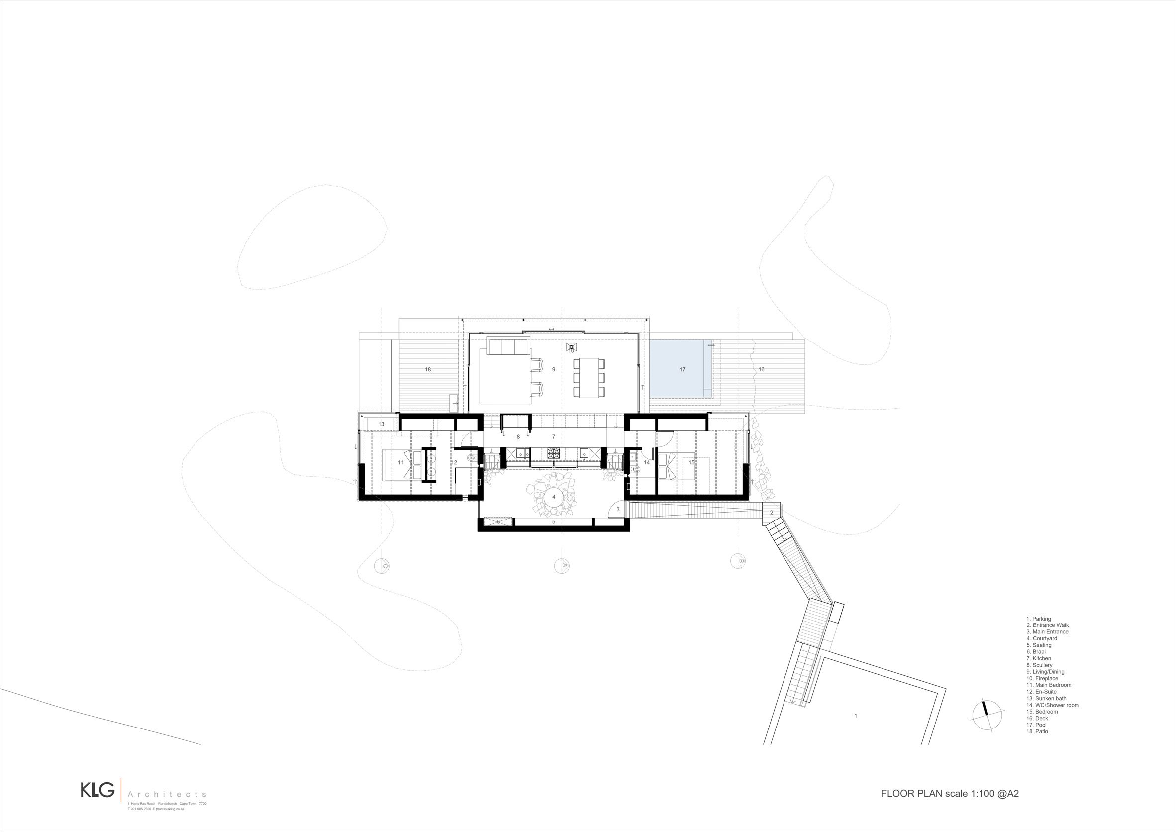
The compact, single storey home is organised based on this "dual nature", with a large living area projecting out northwards towards the sea with full-height sliding glass doors and decked wooden terraces including a swimming pool on either side.
This central space is flanked by a pair of bedroom wings overlooking an enclosed, stone paved entrance courtyard to the south, which is sheltered by a wooden pergola.
The different areas of Hytte Riverview are connected by a central spine, along which runs a narrow kitchen that steps up from the living area.
"The solid southern facade encloses the entrance courtyard, creating a sheltered space for enjoying cold winter evenings around an open central fire," explained Douglas.
"The northern facade is predominantly glazed to maximise the spectacular view and enhance solar gain during winter," he continued.
The mono pitched roof of Hytte Riverview slopes upwards towards the rocky rear of the site. This creates space for clerestory windows that illuminate the bedrooms without disrupting the feeling of "sanctuary" created by their white-rendered and bagged-brick walls.
KLG Architects described the interior palette as one of "durability and economy", with dark slate flooring, pale timber ceilings and plywood carpentry.
from dezeen


