Office

*바오롱 오피스 [ H.a + NQN. ] Bao Long Office

5osA 2023. 7. 3. 13:00
728x90

H.a + NQN.-Bao Long Office

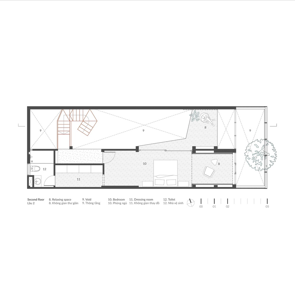
The current status of the work is 2 old townhouses: 2.9mx16.7m and 3.1mx19.28m which have been degraded. The investor wants to combine the two houses and renovate them into a multi functional project including shops, offices, and resting places.

Design ideas and inspiration - Located on Su Van Hanh Street, a famous stainless steel trading place in Saigon. The ground floor of the building is a shop selling stainless steel, the dividing wall of 2 existing houses has been demolished to have enough space to display products and sell in the traditional way.

Contrasting with the noise, bustle, and clutter below is an office and a quiet pantry on the 1st floor, which is designed back in by a large green courtyard and transparent glass facade system, to increase contrast with the store and make a strong impression on passersby.

from archdaliy

그리드형