"As an architect, you design for the present, with an awareness of the past, for a future which is essentially unknown." – Norman Foster

![]() |
![]() |
![]() |
500년 역사를 담은 현대 서점: Weishan Chongzheng Academy의 재탄생 Trace Architecture Office-Chongzheng Academy Bookstore
중국 Yunnan 성에 위치한 Weishan Chongzheng Academy는 500년 이상의 역사를 가진 유서 깊은 건축물입니다. 이 고대 아카데미가 Trace Architecture Office(TAO)에 의해 현대적 서점으로 새롭게 태어났습니다. 이 프로젝트는 전통을 보존하면서 현대적인 공간 경험을 제공하는 데 중점을 두었습니다.
1. 역사와 현대의 만남 (Context and Meaning)
Weishan Chongzheng Academy는 Yunnan의 초기 아카데미 중 하나로, 당시 가장 방대한 책 컬렉션을 자랑했던 장소입니다. 이곳은 단순히 역사적 건축물이 아닌, 그 시대의 지식과 문화를 담고 있던 중요한 장소였습니다. TAO는 이 아카데미의 역사적 가치를 보존하며, 현대적 기능을 더해 새로운 문화 공간으로 재탄생시켰습니다. 고대 아카데미의 전통적인 목조 기둥과 석조 구조물은 그대로 유지된 반면, 현대적인 서점 구조는 금속과 유리, 콘크리트를 사용해 세련된 느낌을 줍니다. 이로써 방문자들은 과거의 유산과 현대적인 편리함을 동시에 경험할 수 있습니다.
또한, 이 프로젝트는 단순한 건축 보존을 넘어서 도시 재생의 일환으로 설계되었습니다. Weishan Chongzheng Academy는 지역 사회와 도시 전체를 연결하는 문화적 허브로서 중요한 역할을 하고 있으며, 이를 통해 지역 주민과 관광객 모두가 새로운 생활 양식을 즐길 수 있는 공간으로 변모했습니다.
2. 새로운 공간 구성 (Composition and Layout)
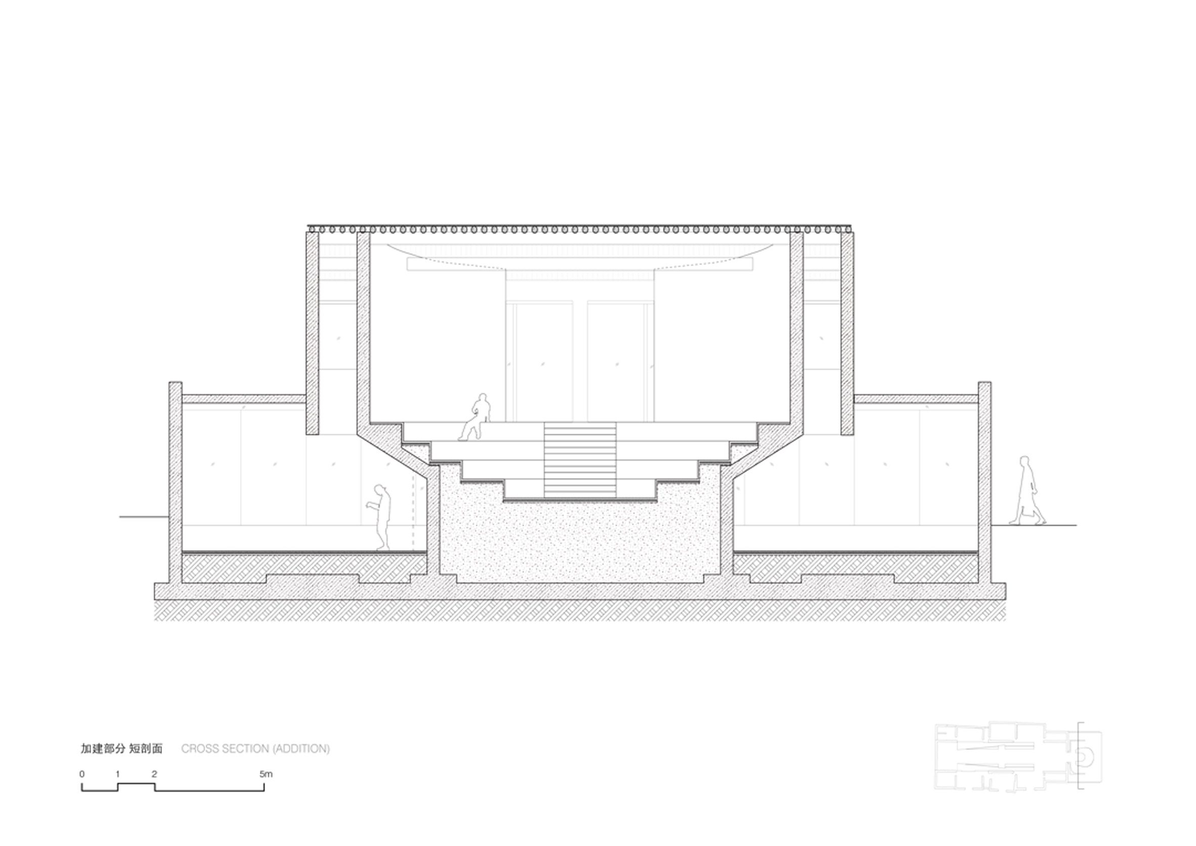
이 프로젝트의 또 다른 중요한 요소는 공간 구성입니다. 아카데미 동쪽 끝에는 1980년대에 지어진 행정 건물을 철거하고, 새로운 콘크리트 구조물로 대체했습니다. 이 구조물은 유리로 둘러싸인 서점과 강당으로 구성되며, 개방적인 거리와 자연스럽게 연결됩니다. 기존의 역사적 구조와의 조화를 이루기 위해, 아카데미의 전통적인 중정 레이아웃을 활용해 두 개의 '서적 갤러리'를 새로 추가했습니다. 이 갤러리들은 금속 메시로 덮여 있어 가벼운 느낌을 주며, 필요시 쉽게 분해할 수 있도록 설계되었습니다.
또한, 이 공간은 '파빌리온 내 파빌리온' 개념을 도입해 극장과 전통적인 박공지붕의 이중 구조를 구성하고 있습니다. 이 디자인은 시각적으로 풍부하고 역동적인 공간을 제공하며, 방문객들에게 다양한 시각적 경험을 제공합니다.
3. 소재와 질감 (Materials and Texture)
이 프로젝트에서 사용된 재료는 목재, 석재, 금속, 유리, 콘크리트입니다. 전통적인 목재와 석재는 자연스러운 질감을 유지하며 고풍스러운 느낌을 줍니다. 반면, 금속과 유리, 콘크리트는 현대적이고 세련된 분위기를 더합니다. 이러한 재료 선택은 공간의 역사적 깊이와 현대적 기능성을 동시에 강조하며, 각 재료가 공간의 특정 역할을 부각시킵니다. 예를 들어, 목재와 석재는 전통적인 느낌을 주고, 유리와 금속은 서점의 현대적인 분위기를 조성합니다.
4. 빛과 색채 (Light and Color)
이 이미지에서 주목할 만한 요소는 빛의 활용 방식입니다. 자연광이 풍부하게 활용되어 실내외 공간의 경계가 모호합니다. 유리 벽면을 통해 외부의 빛이 실내로 자연스럽게 유입되며, 이로 인해 공간이 더 넓고 환하게 느껴집니다. 색채는 주로 자연 소재의 원색(목재의 갈색, 석재의 회색 등)이 주를 이루며, 현대적 구조물에서는 흰색과 회색 계열이 사용되어 전통적 요소와 조화를 이룹니다. 이러한 색채 조합은 공간의 일체감을 더하며, 방문객들에게 편안하고 안정된 느낌을 줍니다.
5. 공간의 다채로운 활용 (Function and Usability)
복원된 아카데미의 중정을 둘러싼 공간들은 카페, 독서실, 소규모 전시 공간, 화장실 등으로 재구성되었습니다. 이 과정에서 기존의 목재와 석조 구조를 그대로 유지하면서, 새로운 어두운 목재 가구를 더해 현대적이면서도 따뜻한 분위기를 연출했습니다. 이 배치는 방문자들이 자연스럽게 이동하며 다양한 공간을 경험할 수 있도록 돕습니다. 또한, 내부와 외부 공간이 유기적으로 연결되어 있어, 자유로운 이동과 다양한 활동이 가능합니다. 예를 들어, 독서실과 카페는 방문객들이 편안하게 시간을 보낼 수 있는 공간으로, 서점의 기능적 역할을 잘 반영합니다.
6. 기술적 세부 사항 (Technical Details)
이 프로젝트에서 중요한 기술적 요소는 전통적인 건축 요소를 손상시키지 않으면서 현대적인 구조물을 추가한 점입니다. 금속 메시와 유리를 사용하여 경량 구조물을 구현했으며, 이는 필요시 쉽게 분해할 수 있는 가역성을 갖추고 있습니다. 이러한 기술적 접근은 전통적인 건물의 구조적 안정성을 유지하면서도 현대적인 기능을 부여하는 데 기여했습니다.
7. 심미적 요소 (Aesthetic Elements)
이 건물의 디자인은 전통적인 아름다움과 현대적 미학의 조화가 돋보입니다. 전통적인 목재 기둥과 지붕의 비례, 섬세한 조각들이 고풍스러운 아름다움을 강조하며, 현대적 구조물은 직선적이고 깔끔한 디자인으로 세련된 느낌을 줍니다. 전체적인 조형성과 비례가 균형을 이루며, 시각적으로 매력적인 공간을 형성합니다.
8. 사용자 경험 (User Experience)
이 공간을 사용하는 방문자들은 전통과 현대를 넘나드는 독특한 경험을 하게 됩니다. 다양한 공간 구성이 방문자들에게 다양한 시각적, 기능적 경험을 제공하며, 개방된 구조 덕분에 자유롭고 편안한 이동이 가능합니다. 또한, 자연광이 충분히 들어오는 밝고 환한 공간은 사용자들에게 쾌적한 환경을 제공합니다. 역사적 건축물 속에서 현대적 편의성을 누릴 수 있는 특별한 경험을 선사합니다.
결론
Weishan Chongzheng Academy Bookstore는 전통과 현대, 실내와 실외가 조화롭게 어우러진 공간입니다. 이곳은 지역 주민과 관광객 모두를 위한 새로운 문화 공간으로 자리 잡았으며, 고대 아카데미의 역사적 가치와 현대적 서점의 기능을 동시에 누릴 수 있는 특별한 장소입니다. 방문자들은 이 공간에서 단순히 책을 읽는 것을 넘어, 시간과 공간을 초월한 경험을 즐길 수 있습니다. TAO의 세심한 복원과 설계 덕분에, Weishan Chongzheng Academy는 미래에도 그 가치를 이어갈 것입니다.
Write by ChatGPT & 5osa










































Chinese studio Trace Architecture Office has repaired and renovated a historic building in Yunnan, China, to house the Weishan Chongzheng Academy Bookstore.
Trace Architecture Office (TAO) reinvigorated the Weishan Chongzheng Academy, which has a history dating back over 500 years, by creating a space for bookstore chain Librairie Avant-Garde.
"Chongzheng Academy was one of the first academies in the history of Yunnan and boasted the most extensive collection of books in the region," TAO associate Sheng Zhong told Dezeen.
"To preserve a wealth of historical information such as colourful paintings, inscriptions, and stone carvings from different periods to the fullest extent possible, we established three principles of 'safety, reversibility, and distinguishability'."
Designed to be a "catalyst" to draw both locals and tourists to the old town, the revoted building incorporates much of the original timber and carved stone structure.
At the site's eastern end, TAO replaced two administrative buildings from the 1980s with an elevated concrete volume housing an auditorium and sunken bookshop below, wrapped with full-height glazing to create a new street frontage.
In order to better connect this to the existing structure, the studio adapted the academy's historic courtyard layout by introducing two "book galleries".
Facing each other across the courtyard, these slim steel volumes were clad in metal mesh screens. At their edges, long, stepped benches create seating areas overlooking an outdoor space for reading and performances.
The metal structures of the book galleries were designed to both provide a starkly modern contrast to the existing structure and to be lightweight and easy to dismantle in future if desired.
"The design deconstructs the traditional layout of the academy, providing visitors with a new spatial experience," Zhong told Dezeen.
"The book gallery not only re-divides the internal spatial pattern of the academy, but also reconnects the different courtyards, main hall, wing rooms and side rooms."
Surrounding the original courtyard, the former spaces of the academy have been repurposed as a cafe, reading rooms, small exhibition space and toilets.
In these spaces, TAO has retained the wood and stone structure of the academy as a backdrop, complementing it with new furniture in dark wood.
The mild climate of Weishan means the divisions between spaces can be left open, allowing for seamless transitions between new, old, indoor and outdoor.
"Walking in the academy, shuttling between the book galleries and historic buildings, the scenery is changing with every step forward," described Zhong.
"It is like visiting a Chinese garden rich with spatial experiences and traveling through ancient and modern times."
from dezeen


