"건축은 살아있는 유기체처럼 자연과 함께 호흡해야 한다." - 알바 알토

![]() |
![]() |
![]() |
도시의 숲을 품은 카페: 자연과 건축의 공존을 말하다. Kazuto Nishi Architects + toitdesign-Café with a Large Tree in the Middle of Town
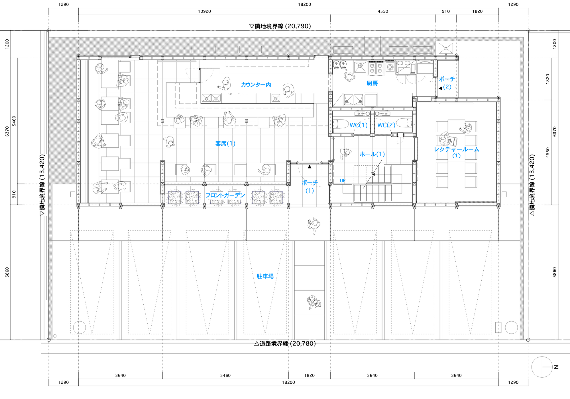
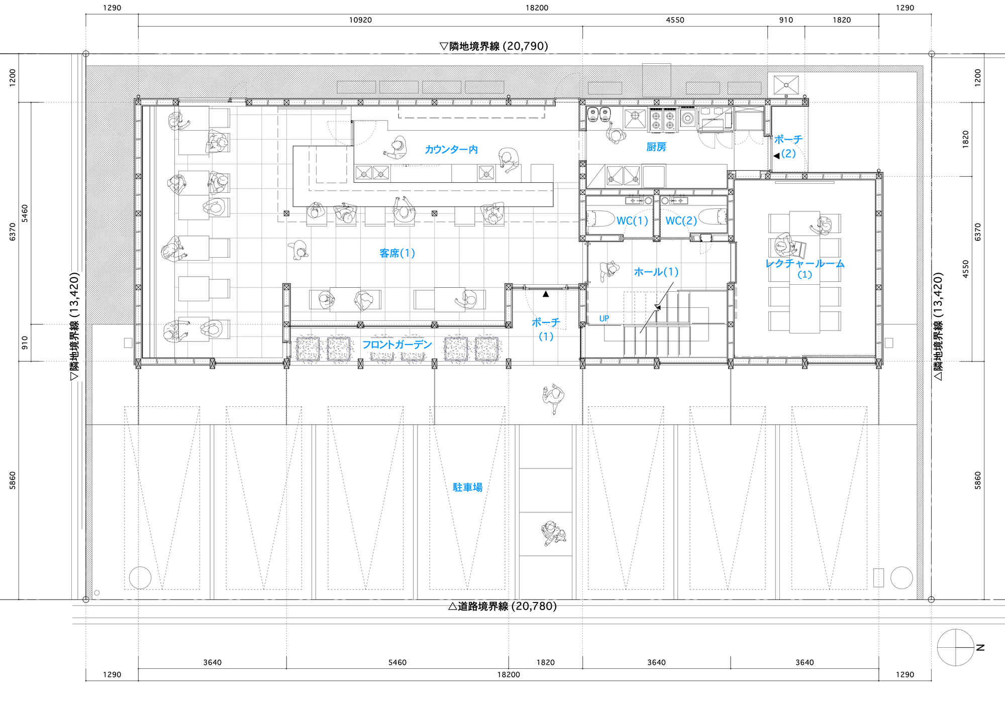
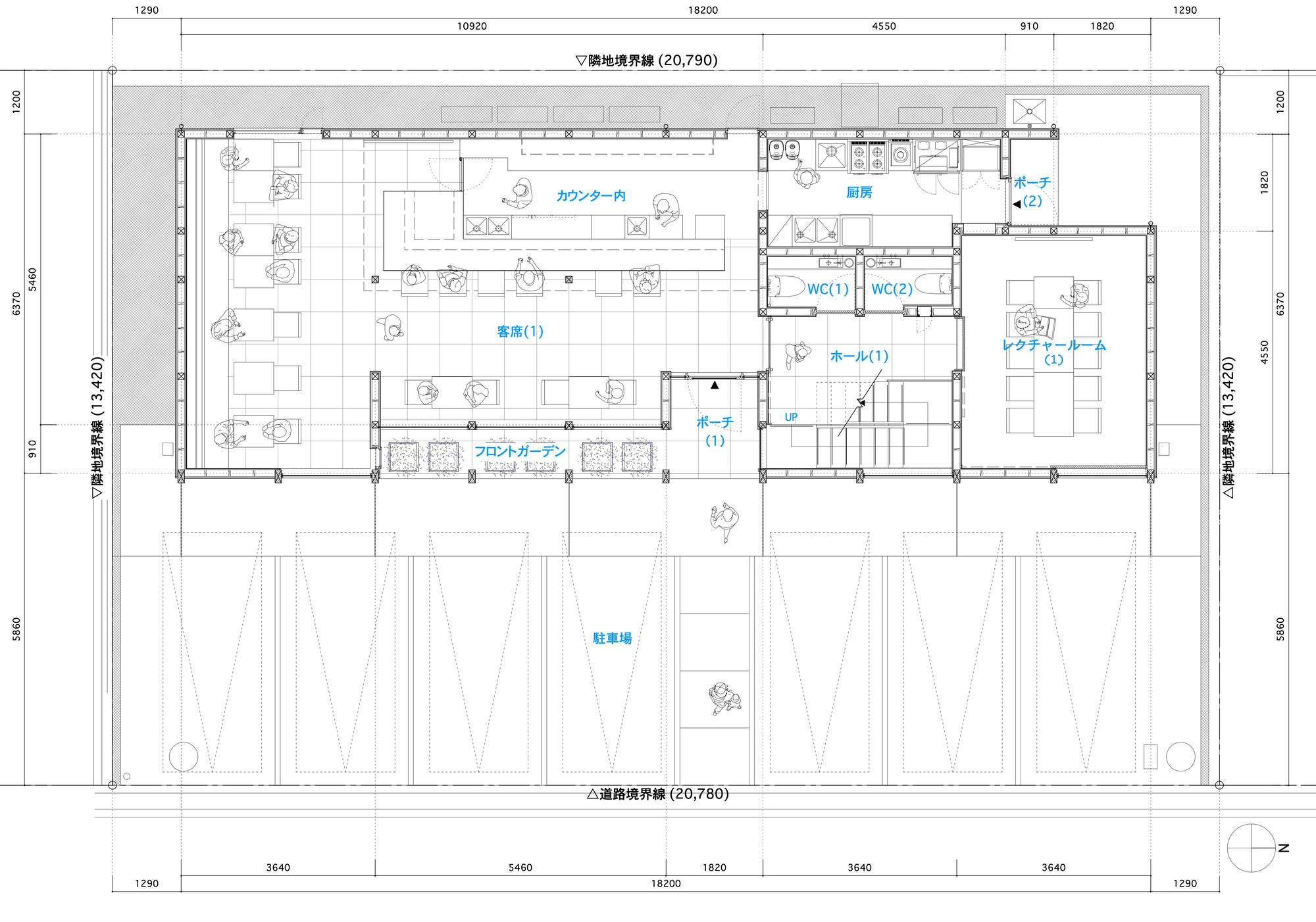
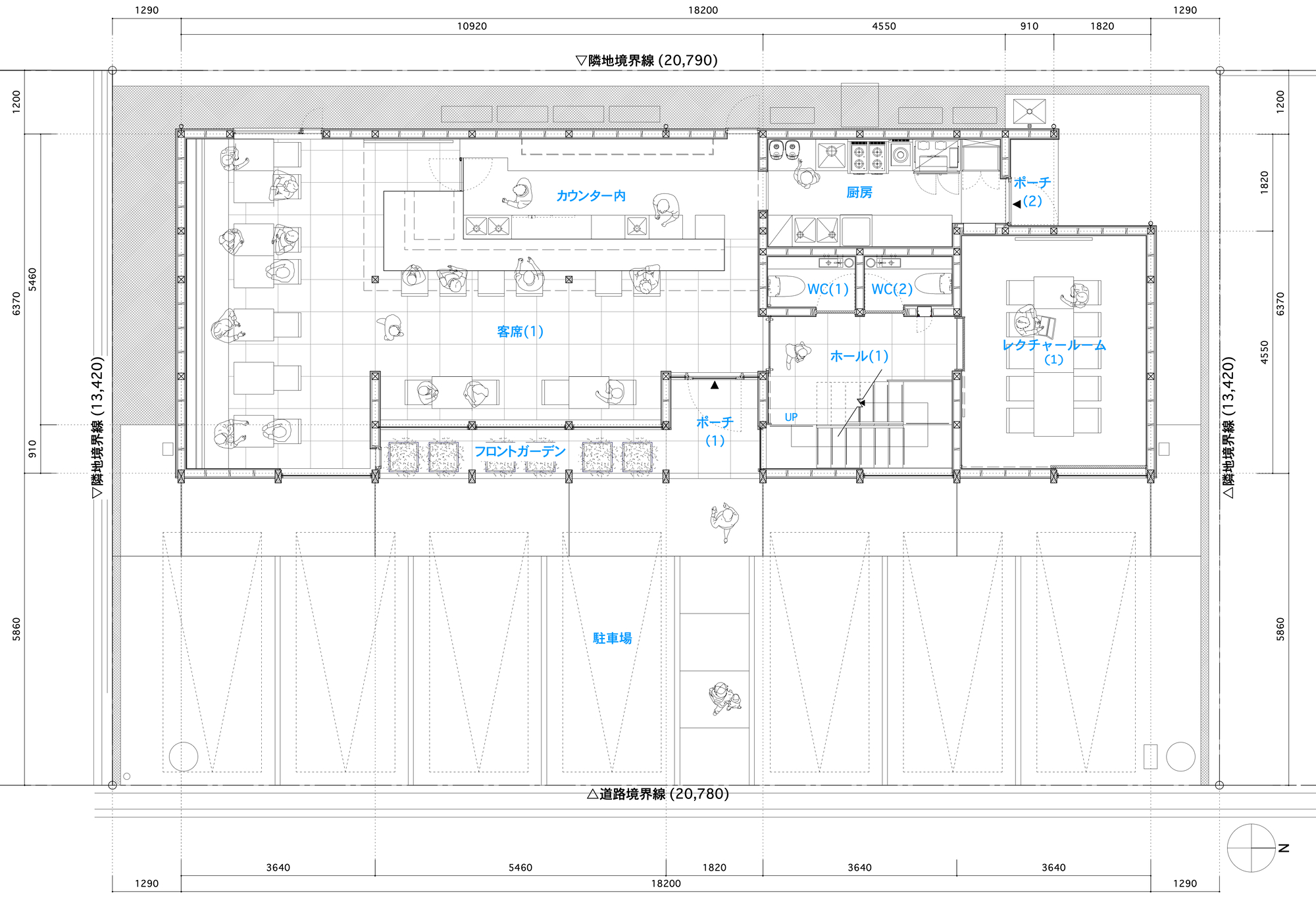
This is a plan for a café that will be built in the middle of town and open to the local community. The client wanted to create a place where local people can easily visit and improve their own brand through this building. The construction site is in the middle of the hustle and bustle of a regional city lined with large facilities, in a chaotic corner of the town where commercial and industrial atmospheres mix together. In this somewhat cold, dry urban environment that lacks naturalness, the architect thought that architecture with the strength to express its existence as it is could create a lively state and place in this place.
도시 한복판에 자리한 자연의 숨결
이 프로젝트는 도시 중심부에 위치해 지역 커뮤니티에 열린 카페를 계획한 것이다. 클라이언트는 지역 주민들이 쉽게 찾을 수 있는 공간을 만들고, 이 건물을 통해 자신들의 브랜드 가치를 높이길 원했다. 건축 부지는 대형 시설들이 즐비한 지방 도시의 중심부에 자리하고 있으며, 상업적 분위기와 산업적 분위기가 혼재된 도시의 혼잡한 모퉁이에 위치한다.
자연스러움이 결여된 다소 차갑고 건조한 이 도시 환경 속에서, 카즈토 니시 아키텍츠와 토잇디자인은 그 자체로 존재감을 드러내는 강렬한 건축이 이곳에 생동감 넘치는 공간을 창출할 수 있다고 생각했다. 마치 척박한 도시 속에 심어진 한 그루의 나무처럼, 이 건축물은 주변 환경에 새로운 활력을 불어넣는다.
거대한 나무를 닮은 건축
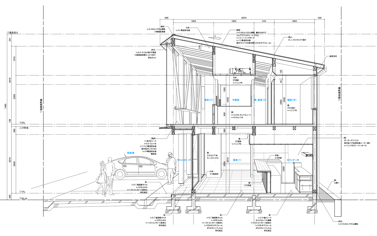
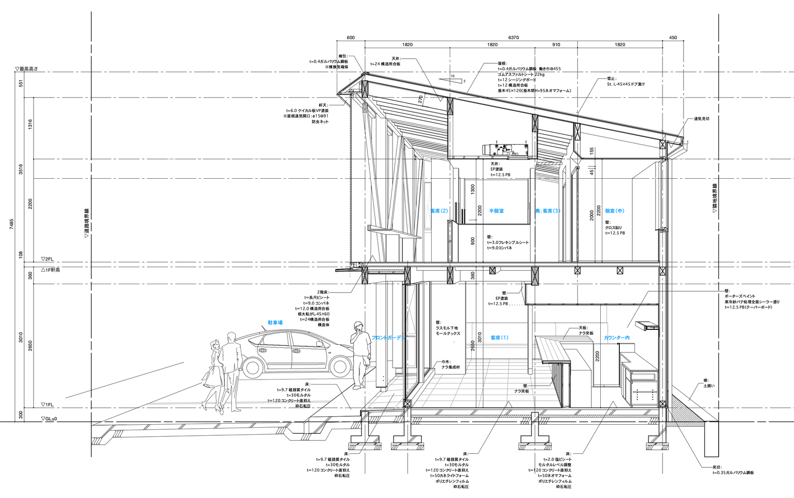
이 건축물은 숲속에 있는 듯한 쾌적한 느낌과 나무의 강인함을 구현한다. 주요 구조는 목재로 지어졌으며, 건축가들은 구조적 뼈대와 하중을 지지하는 부재들을 최대한 노출시켜 건물의 외관으로 살아나도록 계획했다. 이는 마치 인공적인 도시 한가운데 굵은 가지와 잎을 가진 거대한 나무들의 집합체와 같은 건축을 만들어낸다.
건물 외관에서 가장 눈에 띄는 요소는 2층을 감싸는 대형 유리창과 그 안에서 대각선으로 교차하는 목재 구조다. 이 과감한 구조적 표현은 멀리서도 건물의 정체성을 명확히 드러내며, 도시 경관에 독특한 리듬감을 부여한다.
공간의 경험: 숲속을 거니는 듯한 느낌
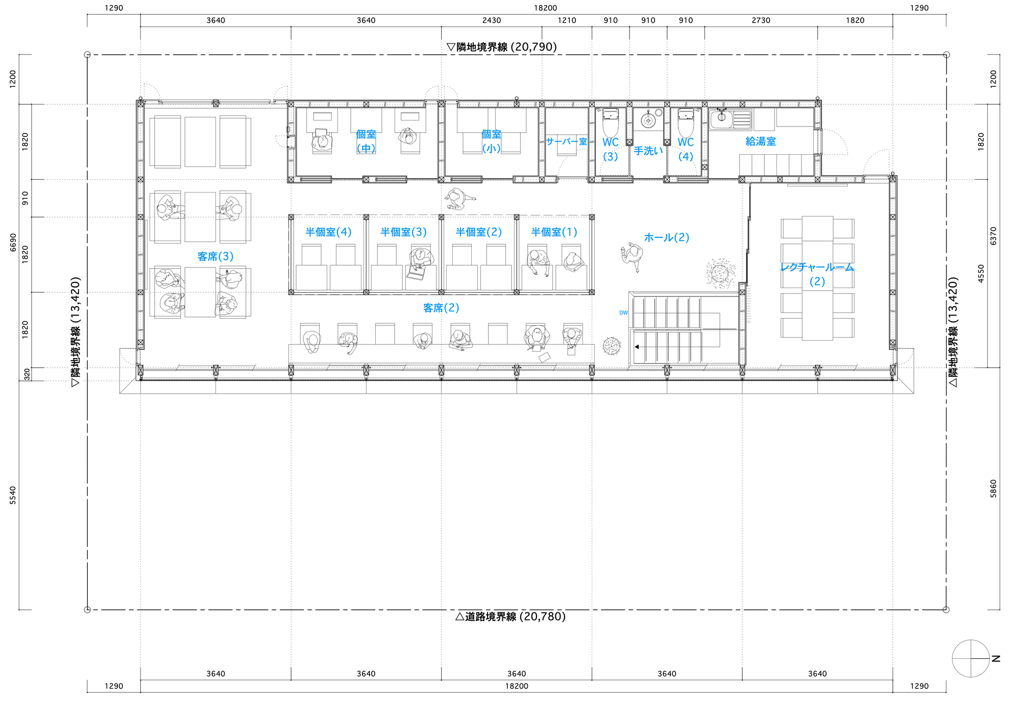
입구에서 건물 안으로 들어서면, 천장은 마치 거대한 나무를 지지하는 굵은 가지들처럼 웅장한 구조미가 돋보이는 형태로 덮여 있다. 목재 외에 배경은 흰색과 회색의 차분한 색조로 처리되어 구조 프레임의 간결한 아름다움을 한층 돋보이게 한다. 이러한 색채의 절제는 자연 소재인 목재가 주인공이 되도록 건축가가 의도적으로 선택한 디자인 전략이다.
2층으로 올라가면, 가지 형태의 구조물은 더욱 섬세하게 나뉘어 경쾌한 리듬감을 선사한다. 대형 유리창을 통해 들어오는 풍부한 자연광은 노출된 목재 구조와 어우러져, 하루 중 시간에 따라 변화하는 다채로운 빛의 패턴을 만들어낸다. 방문객들은 콘크리트 바닥과 목재 천장의 질감 대비를 통해 촉각적으로도 흥미로운 공간 경험을 체험할 수 있다.
자연으로의 초대: 디자인의 의도
이 프로젝트는 획일화된 상업적 디자인 코드에서 과감히 벗어나 자연 환경의 일부로 재해석함으로써, 방문객들이 도시 한복판에서도 자연의 편안함을 느끼며 여유로운 시간을 보낼 수 있는 공간을 창출한다. 카페 내부에 배치된 테이블과 의자, 벤치 등의 가구들 역시 목재로 제작되어 전체적인 디자인 언어와 일관성을 유지한다.
외부에서 바라보면 마치 유리로 둘러싸인 나무집 같은 이 건축물은 밤이 되면 내부의 조명이 켜지며 도시의 작은 등대처럼 따스한 빛을 발산한다. 유리창을 통해 드러나는 목재 구조는 낮과 밤, 계절에 따라 다른 분위기를 자아내며 지나가는 사람들에게도 잠시나마 자연의 감각을 선사한다.
환경을 생각하는 건축: 도시의 두 번째 숲
이 건축물에서 목재의 사용은 단순히 공간을 만드는 것 이상의 의미를 갖는다. 목재를 적극적으로 활용함으로써 '건축 행위' 자체가 이미 숲의 혜택을 받고 있는 도시 지역에서 산림 자원에 대한 새로운 수요가 되어 '목재 순환'의 일부가 된다. 이는 나무를 심고, 기르고, 수확하여 건축 등에 활용한 후 다시 나무를 심는 지속가능한 자원 관리 방식을 의미한다.
또한 이산화탄소의 원천인 탄소는 목재에 고정된다. 목재가 목조 건물에 남아있는 한, 건물 자체는 탄소 저장 측면에서 두 번째 숲, 즉 도시 숲으로 간주될 수 있다. 이처럼 이 카페는 단순한 상업 공간을 넘어 환경적 가치를 지닌 도시의 자산으로서의 역할을 수행한다.
새로운 건축의 시작점
이 건물은 다음 세대를 위한 건축의 본질, 비즈니스와 사회의 관계, 그리고 사람, 도시, 자연 간의 관계 – 이 모든 연결성에 대해 생각해볼 수 있는 출발점이 되기를 바라는 마음으로 계획되었다. 도시화가 가속화되는 현대 사회에서, 이러한 건축적 시도는 우리가 자연과 어떻게 공존할 수 있는지에 대한 중요한 화두를 던진다.
마치 도시 한복판에 심어진 한 그루의 나무가 주변 환경을 바꾸듯, 이 카페는 주변 지역에 새로운 활력과 영감을 불어넣는 촉매제가 된다. 건축이란 단순히 공간을 만드는 것이 아니라, 사람과 자연, 도시의 관계를 재정의하는 행위임을 상기시키는 의미 있는 프로젝트다.
Write by Claude & 5osa


























The architecture embodies the pleasant feeling of being in a forest and the strength of trees. Specifically, the main structure is constructed of wood, and the structural framework and strength bearing members are left as much as possible uncovered, and the plan was made so that they would live as the facade, creating an architecture that resembles a collection of large trees with large branches and leaves in the middle of an artificial town.
Entering the building from the entrance, the ceiling is covered with a powerful structure like the large branches supporting a large tree. Aside from the wood, the background is a monotone of white and gray, enhancing the abstraction of the structural frame. Upon going up to the second floor, the branches become more subdivided and lighter.
By derailing the architecture from the somewhat commercially uniform design code of this place and reinterpreting it as part of the natural environment, we have created a space where visitors can spend a more natural and relaxed time. The use of wood also has a meaning other than simply creating space. By actively using wood, the "act of construction" itself becomes a new demand for forest resources in urban areas that already benefit from forests, and becomes part of the "wood cycle." Carbon, which is the source of carbon dioxide, is fixed in wood.
As long as the wood remains in the wooden building, the building itself can be considered a second forest, an urban forest, in terms of carbon storage as well. We planned this building with the hope that it will become a starting point for thinking about the nature of architecture for the next generation, the relationship between business and society, and the relationship between people, cities, and nature – all of these connections.
from archdaily


