
포스트 코로나에 대한 공공장소의 실험이 시작된다.
인도에 위치한 레스토랑은 사회적거리 두기가 일상화되는 현실에 반응하는 공공장소로 제안된다.
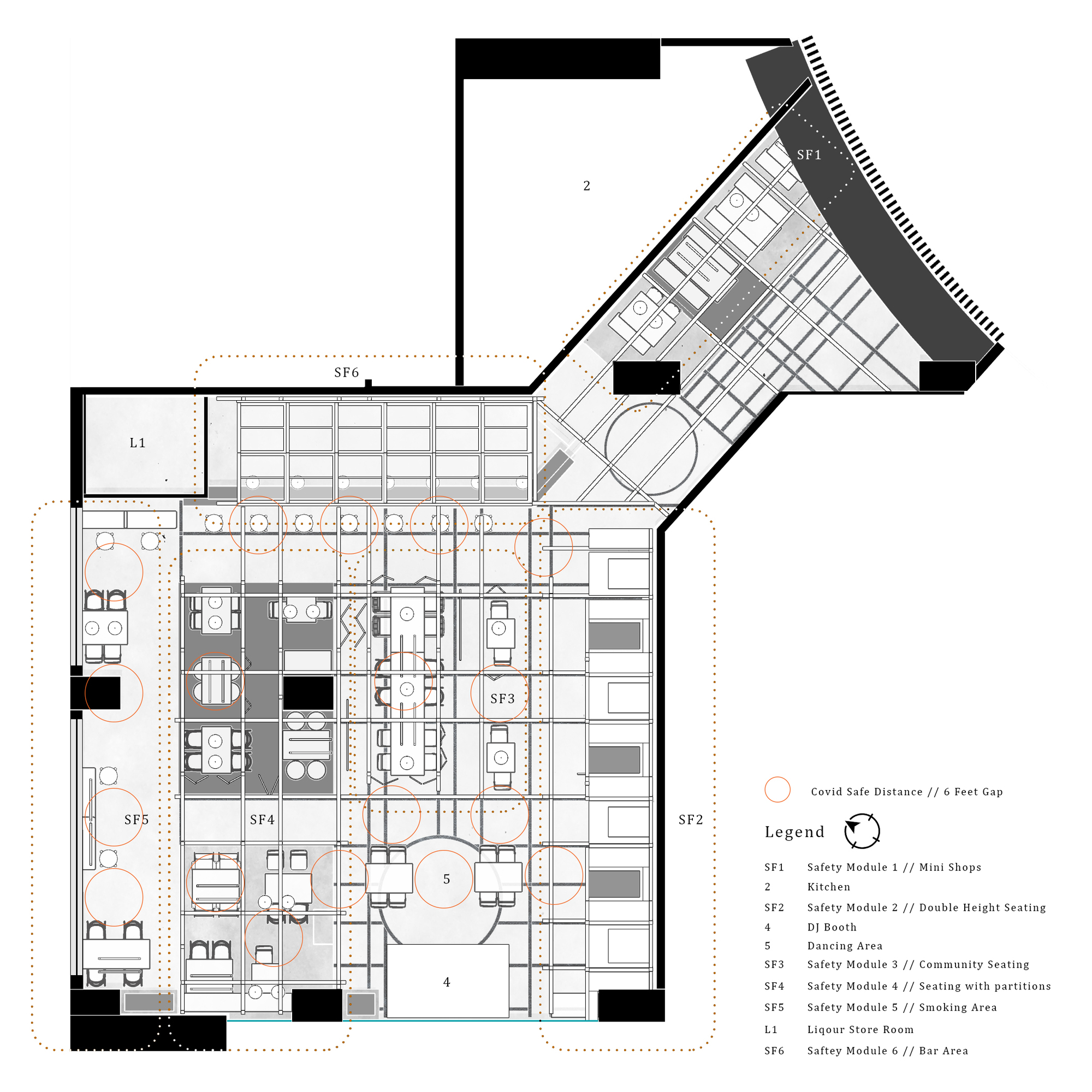
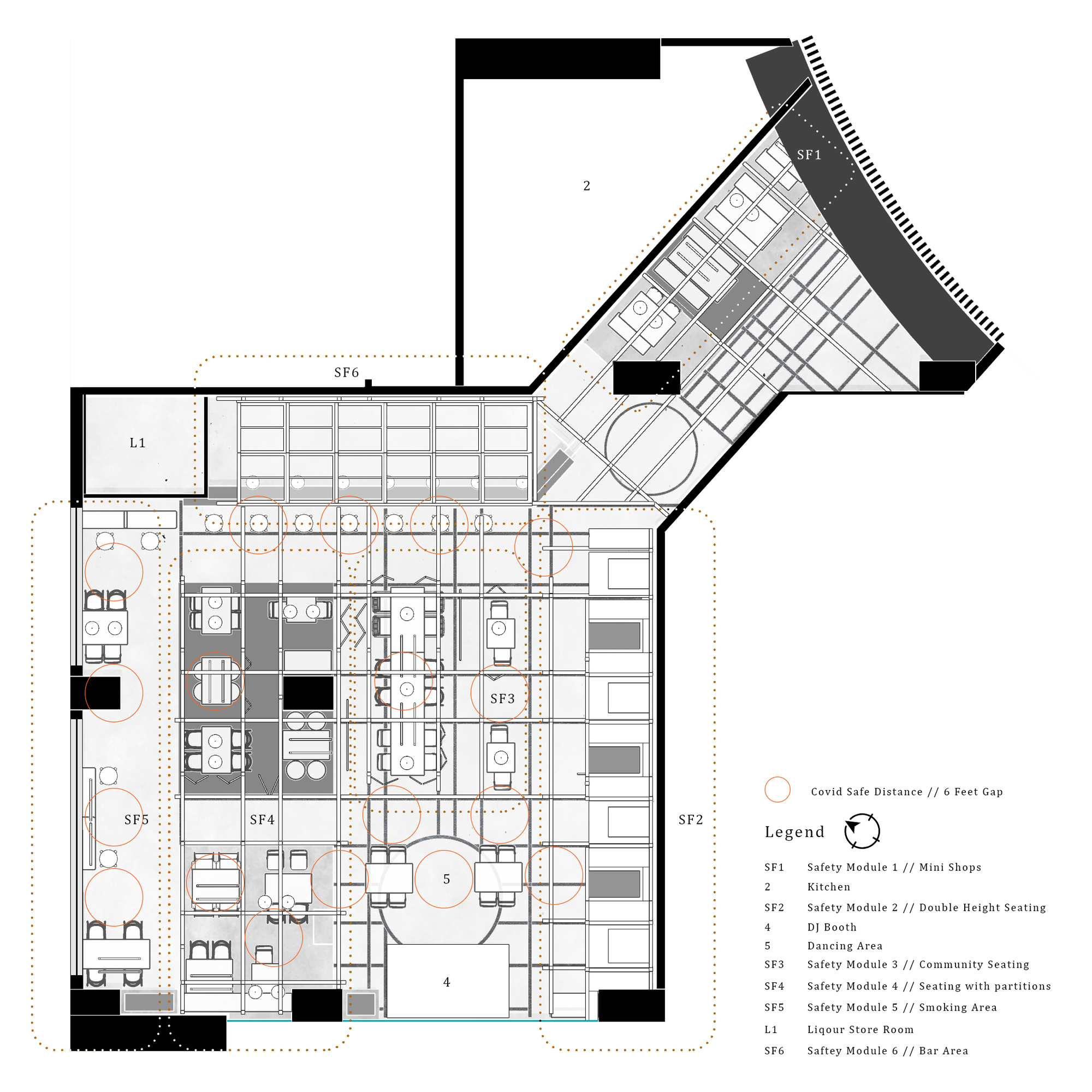
복면을 쓰고 써빙하는 종업원, 6피트 이상 간격으로 설치된 테이블, 접이식 유리 칸막이 등 공공공간 속 거리유지를 위한 장치가 설치 및 적용된다.
The latest product of RENESA ARCHITECTURE DESIGN INTERIORS STUDIO showcases our latest architectural design ideology and safe seating typology behind India's first covid response restaurant and bar. In the midst of this global coronavirus pandemic, when the very nature of public space has become both threatening and threatened, the future of the restaurant industry has been brought into question numerous times.
It is now of worldwide interest to re-think how our public spaces will adapt to a post-COVID-19 era, and take the necessary actions. Understanding that "social distancing" is of vital importance, our various daily-life spaces will face an inevitable change. Considering the current situation which calls for proper architectural solutions in response to the unprecedented pandemic, the studio has conceptualized India's first covid response restaurant for their New Delhi(India) Social branch.
Restaurants play a pivotal role in our collective post-pandemic future, and to be able to return to them safely, they must be empowered to be active participants in the rebuilding of trust. It's time we welcome you to our latest product "Social with distancing ".
Masked waiters, tables placed six feet apart, and fluted glass are all the elements that realize a half Vietnamese- half contemporary space set in New Delhi,India. Renesa’s new design introduces India’s first covid response restaurant that responds to the “new normal” redefining the boundary between communal and booth seating in restaurants. With people yearning to come together with friends and family at restaurants and bars once again, the studio wanted our design to blend two seamless ideologies: design inspired by the buzzing streets and alleyway shops of Vietnam and the intricate lattice arrangement of Dwarka(New Delhi's largest residential Development)’s various sectors that allow to socially distance without seemingly so.

































from archdaily
“파트너스 활동을 통해 일정액의 수수료를 제공받을 수 있음"
'Commerce' 카테고리의 다른 글
| *프랑스 비스트로 인테리어 까페 [ 2BOOKS design ] La Vie Friande (0) | 2021.01.21 |
|---|---|
| *무신경한 공간 [ Bone ] Terra (0) | 2021.01.20 |
| *캐빈인더 씨티 Various Associates designs C2 Cafe & Bar as a wooden "cabin in the city" (0) | 2021.01.11 |
| *랜드마크72 레스토랑 [ ODDO architects ] Pizza 4P’s Restaurant Landmark 72 (0) | 2021.01.01 |
| *파머하우스 [ Reiulf Ramstad Arkitekter ] House of Grain (0) | 2020.12.24 |