
건축은 어디까지 장소와 사람에게 영감을 줄 수 있을까요?
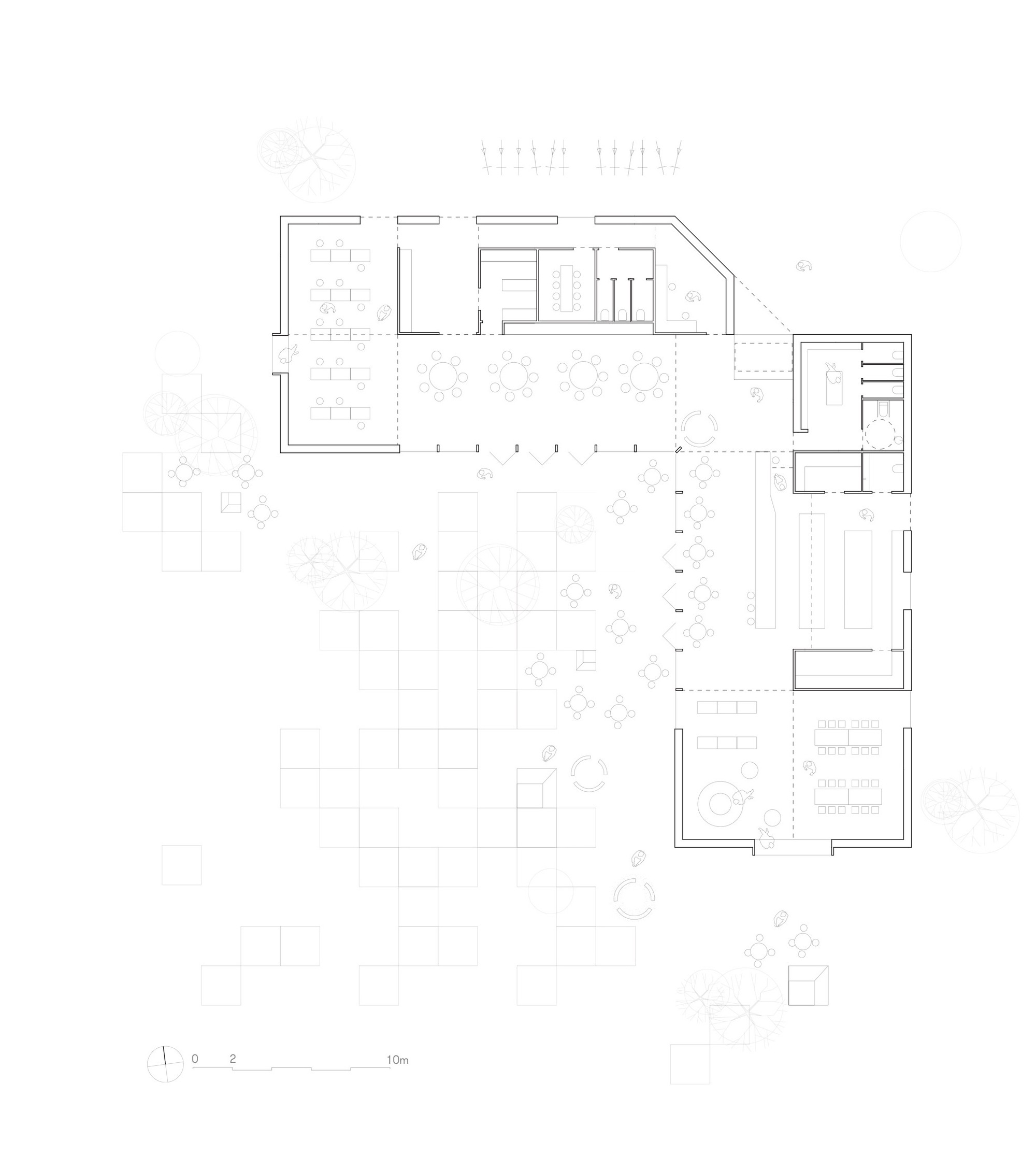
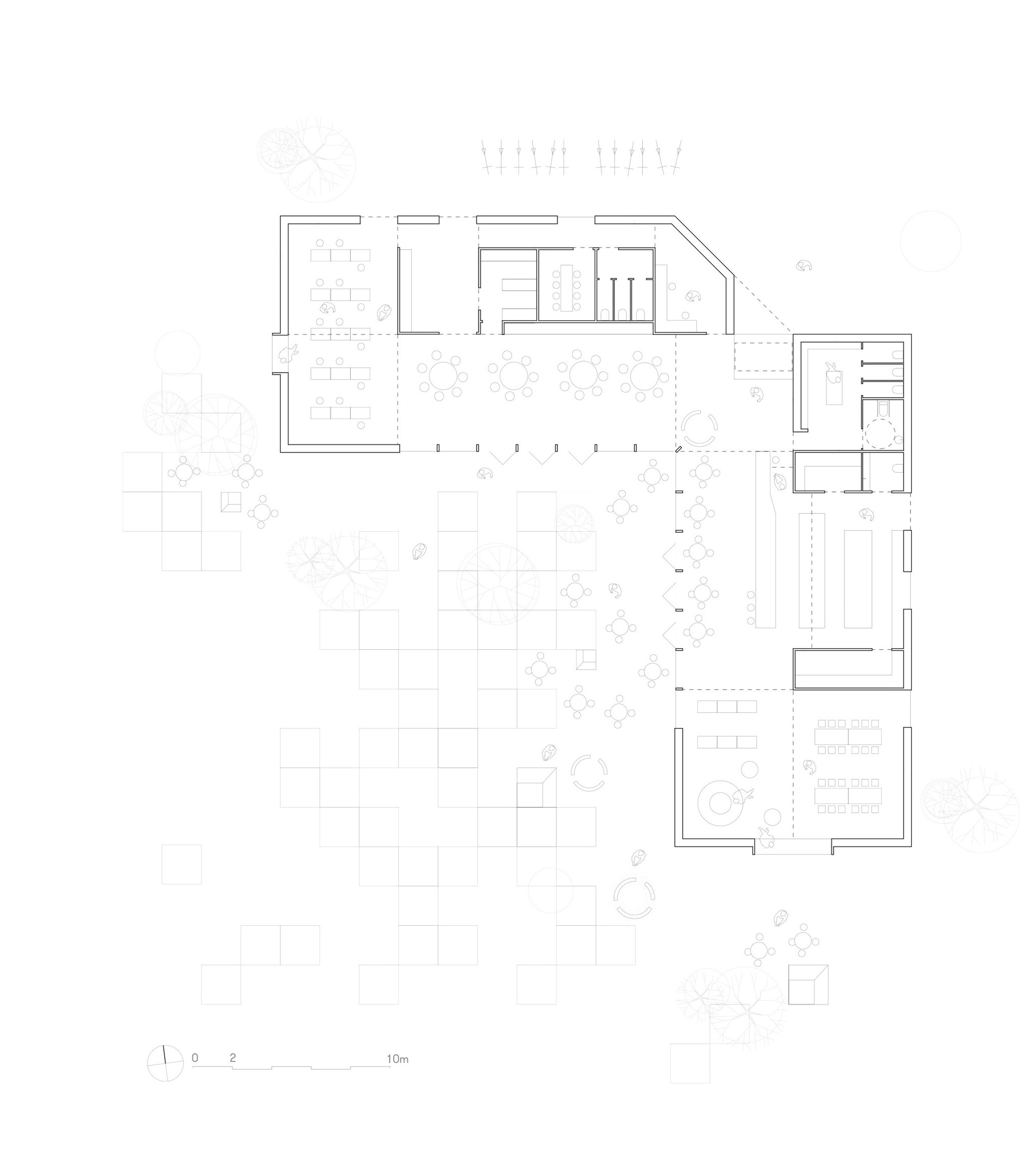
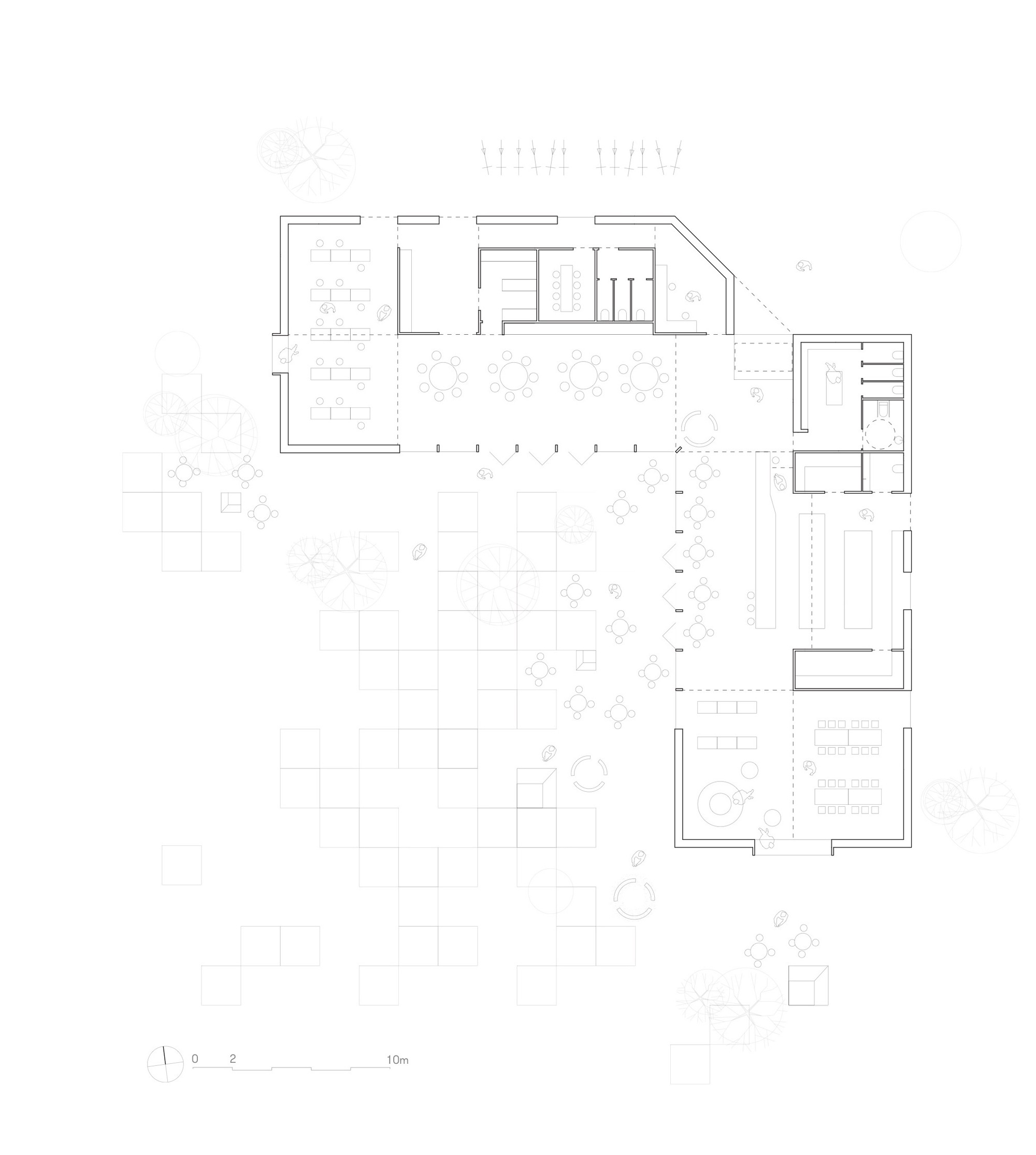
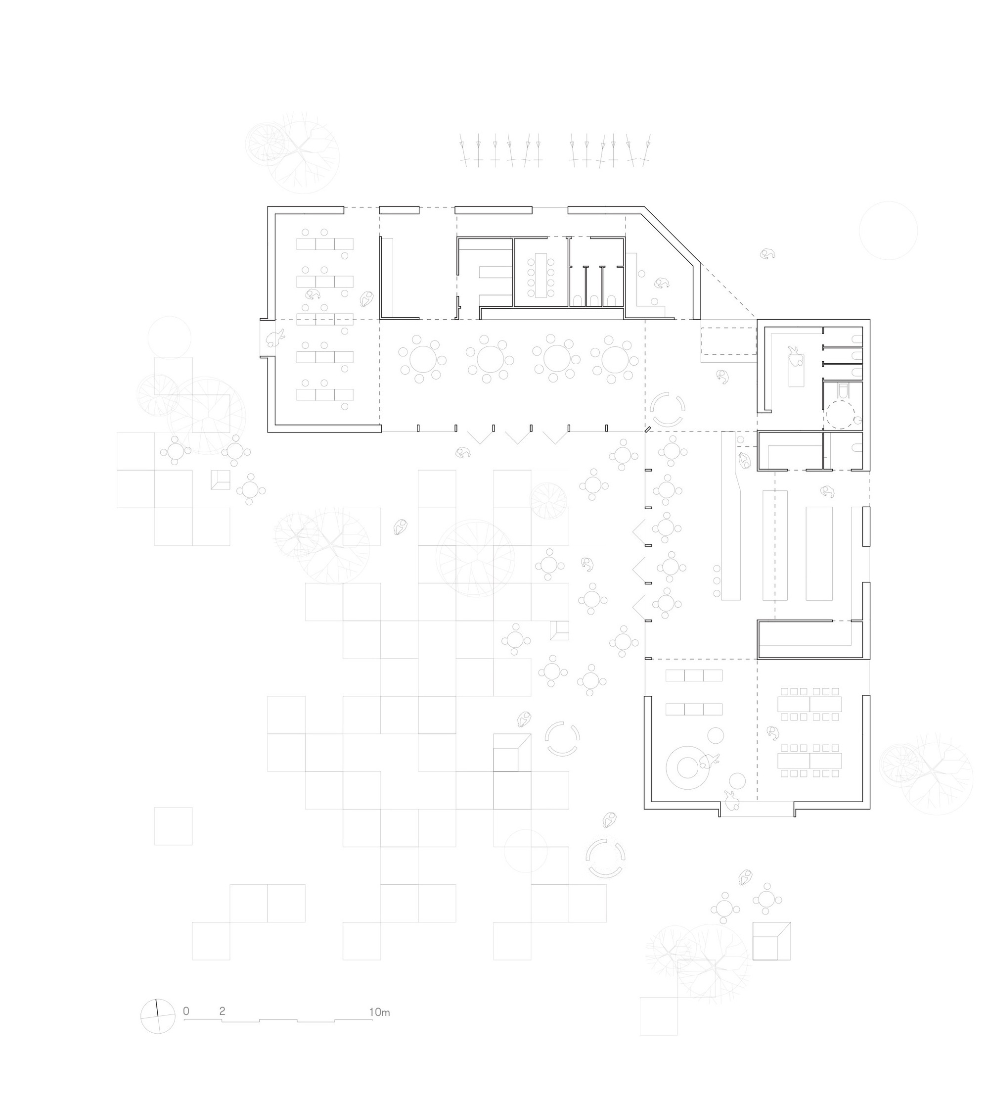
여기 방문센터는 지역문화(농경)을 소개하는 공간으로 베이커리를 겸합니다. 독창적인 외형과 재질은 드넓은 평야의 수평적인 환경에서 인상적인 장면을 연출하는 랜드마크 요소로 작용합니다. 내부 또한 열린공간으로 이곳을 찾는 방문객들에게 편안한 감성과 영감을 전달하는 어휘로 작용합니다.
The Jutland region, with its diversity of landscapes and long history, is in many ways the most continental region in Denmark. Hjørring has some of the oldest traces of settlements nationally and an established cultural landscape. The Kornets Hus – or grain house, is the realisation of a new centre for the dissemination of the region’s rich food and farming culture.
Located on the land of an existing farm and bakery, the new inspiration centre will offer visitors, locals, and employees alike a facility for activity-based learning centered around the importance of grain both to Jutland and human civilization. The building is organized around a simple and flexible plan, which allows for a wide variety of activities and functions to take place.
The architectural form is derived from research into the region’s rich landscape, folk culture, and agricultural heritage – the centre being defined by its two brick-clad light wells, which reinterpret baker’s kilns. The interior is planned to open up to the vast expanse of wheat fields to the west – framing views outward and opening to terrace.
The public spaces are centered around a large bread oven while teaching and exhibition spaces are demarked by the natural lighting and increased volume of the skylights.
















from archdaily
'Commerce' 카테고리의 다른 글
| *캐빈인더 씨티 Various Associates designs C2 Cafe & Bar as a wooden "cabin in the city" (0) | 2021.01.11 |
|---|---|
| *랜드마크72 레스토랑 [ ODDO architects ] Pizza 4P’s Restaurant Landmark 72 (0) | 2021.01.01 |
| *베리어프리 스페이스 [ Nhoow Architects ] Yulin Alley (0) | 2020.12.16 |
| *파머마켓 [ Pierre Marsan ] Billère Farmer Market (0) | 2020.12.01 |
| *90년 감성 이탈리안 레스토랑 MRDK-CAFFETTIERA CAFFÉ BAR (0) | 2020.11.20 |