
시간이 멈춘 장소. 죽은자를 위한 공간, 죽은자와 산자를 연결하는 공동묘지의 성격이 고스란히 드러나는 건축환경은 보수적이며 엄격한 브루탈리즘 디자인으로 발현된다. 콘크리트의 물성 또한 거침과 차가움 그리고 단숨함을 동시에 표현하며 이곳의 성격을 잘 보여준다.
콘크리트의 거침과 차가움 그리고 정직함은 공동묘지 보다 더
The Brion Cemetery (1968-1978) in San Vito d’Altivole near Treviso, Italy, is a masterpiece of modernist architecture. Designed by Carlo Scarpa, the project establishes a contrasting narrative. Subtly, the project reveals the narrative approach that operates within Scarpa’s work and its potential to express mythic concerns within architecture in general.
Brion Cemetery & Sanctuary Technical Information
Architects1-2: Carlo Scarpa
Location: Via Brion 5, San Vito di Altivole, Treviso, Italy
Client: Onoria Brion
Topics: Concrete, Cemeteries, Modernism
Area: 2200 m2
Project Year: 1968 – 1979
Photographs: Flickr User © Trevor Patt

I would like to explain the Brion Cemetery… I consider this work, if you permit me, to be rather good and which will get better over time. I have tried to put some poetic imagination into it, though not in order to create poetic architecture but to make a certain kind of architecture that could emanate a sense of formal poetry….The place for the dead is a garden….I wanted to show some ways in which you could approach death in a social and civic way; and further what meaning there was in death, in the ephemerality of life – other than these shoe-boxes.
– Carlo Scarpa
Brion Cemetery History
The Italian architect Carlo Scarpa (1906-1978) began designing this addition to an existing municipal cemetery in 1968. Although he continued to consider changes to the project, it was completed before his accidental death in 1978. The enclosure is a private burial ground for the Brion family, commissioned by Onorina Tomasi Brion, widow of the Brionvega company’s founder.
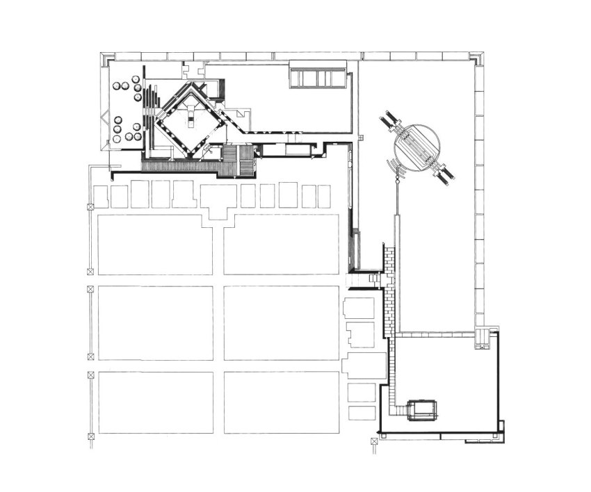
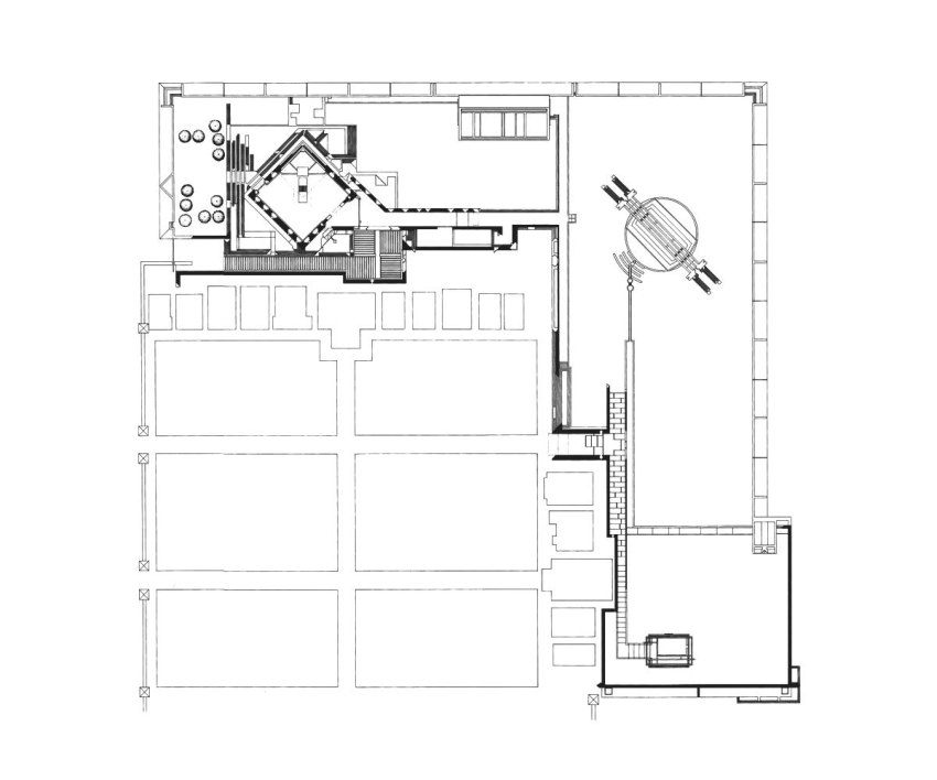
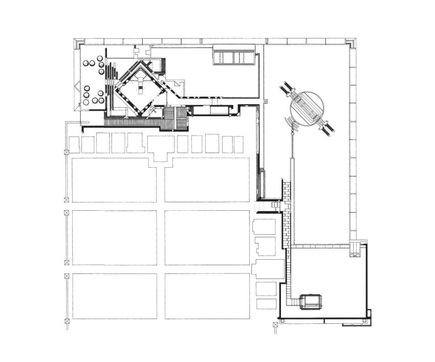
Scarpa himself is buried adjacent to the Brion sanctuary. Several discrete elements comprise the Brion family burial site: a sloped concrete enclosing wall, two distinct entrances, a small chapel, two covered burial areas (the arcosolium for Giuseppe and Onorina Brion, and one for other family members), a dense grove of cypresses, a Prato (lawn), and a private meditation/viewing pavilion, separated from the main Prato by a separate and locked entrance, and a heavily vegetated reflecting pool.
The site is an L-shape situated along two sides of the cemetery of San Vito. A boundary wall leaning inwards encloses the site with its three centers: the pool around the pavilion, the “arcosolium” at the corner of the “L,” and the chapel. There are two entrances, one directly from outside to the chapel, the other from the cemetery at the end of the main avenue. This second entrance gives access to the site: Scarpa borrowed the name “propylaeum” from the Acropolis. It leads to a portico, from which one sees the garden through two intersecting mosaic-framed rings.








































from archeyes