
![]() |
![]() |
![]() |
FORM / KOUICHI KIMURA ARCHITECTS-FRAME HOUSE
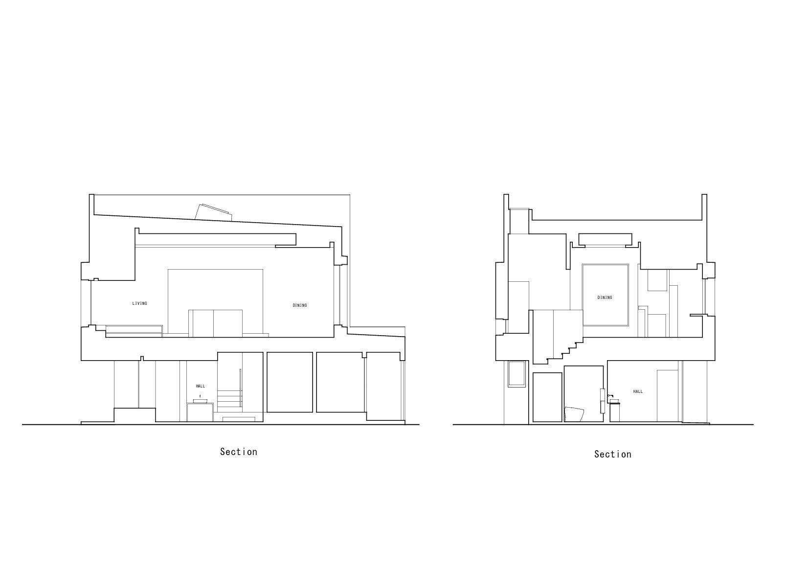
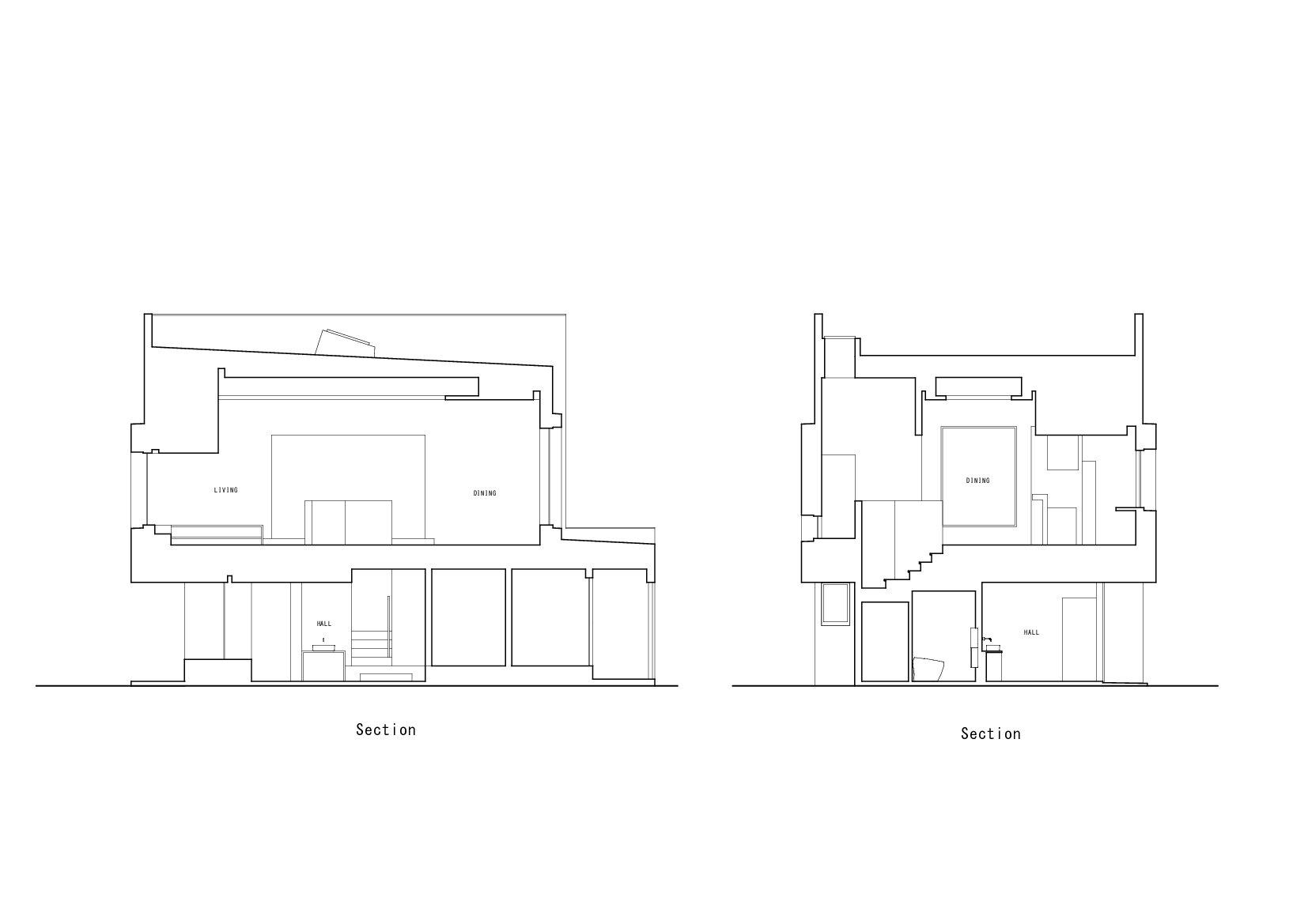
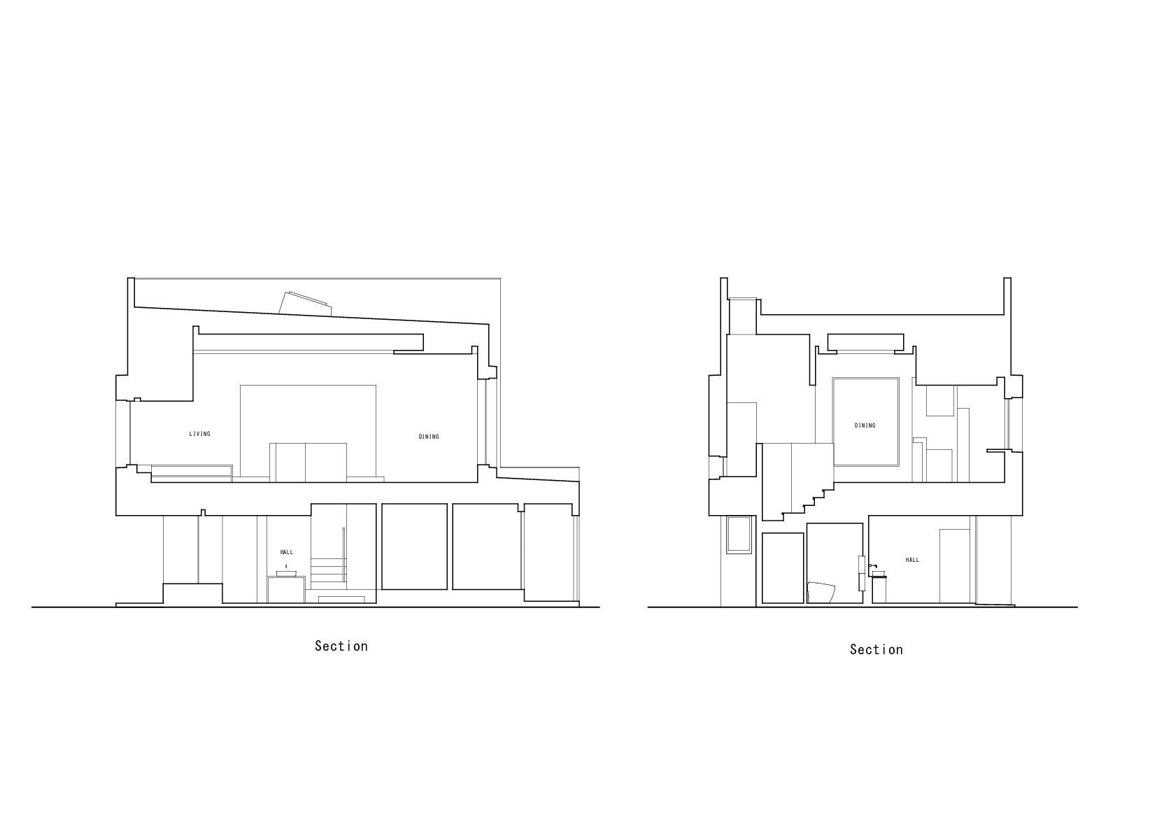
천장이 낮은 현관은 클라이언트의 매장으로도 사용할 수 있는 유연한 공간입니다.탁 트인 전망과 채광이 이 공간 특유의 편안함을 연출하며 소통을 유도합니다. 2층은 각 공간과 연결된 원룸형 리빙 다이닝을 중심으로 순환형 평면을 구성했습니다. 또한 다양한 천장 높이를 통해 공간을 입체적인 볼륨으로 인식할 수 있도록 했습니다.
채광과 개방감도 중요하게 생각했습니다. 계단의 채광창을 통해 들어오는 빛이 계단 모서리를 선명하게 강조합니다. 또한 금속 벽에 반사되는 다양한 형태로 변화합니다. 밝은 빛이 들어오는 거실 식당에는 천장이 덮여 있어 부드러운 빛의 그라데이션을 제공합니다. 조작 조명을 건축 공간에 도입하여 각 방의 특징을 살렸습니다.translate by Deeple

























The site is located in the community where a rustic landscape stretches out.
It is faced with a walking path with a row of cherry trees and a small stream. In the back runs a highway among the rustic scenery.
We then made a goal to produce dialogues with the scenery in the architectural space which is built in such an environment as described above, and to meet the client’s request for a house where they can live a prosperous life.
The exterior is composed of volumes based on carefully examined proportion, window layout, and materials. The overhanging cantilever which gives some impression to the exterior is effectively used as an eaves for an approach to the entrance or a parking lot.
The entrance hall with a low ceiling is a flexible space that can also be used for the client’s shop.
The tranquil view and light from the limited opening area produce comfortableness which is unique to this space, inducing communication.
The 2nd floor centers on the one-room living dining connected with each space, providing a circulatory floor plan. In addition, a variety of ceiling heights allow the space to be recognized as a three-dimensional volume.
I also placed an importance on producing light and opening. The light from the skylight at the staircase clearly highlights the step edges. It is also changed into various forms that are reflected onto a metal wall.
The living dining room with bright light has a coved ceiling which provides gradation of gentle light. The manipulated lights are introduced in the architectural space to characterize each room.
The look of framed scenery and sky is produced with a furnished bench or dining table, transforming ordinary scenes into unusual ones.
To live with the surrounding environment, it is important to clearly image what kind of scenes you will view and what you will spend your time on.
By interpreting environment and introducing it in architecture, you will achieve new findings and fulfillment in the scenery which you have ever taken for granted.
from divisare
'House' 카테고리의 다른 글
| *라이트하우스 [ toledano + architects ] The Lighthouse (0) | 2024.04.10 |
|---|---|
| *아랑고 마르브리사 [ John Lautner ] The Arango Marbrisa House in Acapulco (0) | 2024.03.29 |
| *교회 레지던스 [ Michiru Higginbotham ] The Church Residence (0) | 2024.03.14 |
| *해변을 바라보는 비치하우스 [ Norm Architects ] Heatherhill Beach House (0) | 2024.03.13 |
| *미드 센추리 주택 [ Raheen by C. Kairouz Architects ] A Respectful Revitalisation (0) | 2024.03.08 |


