
![]() |
![]() |
![]() |
IGArchitects slots skinny 2700 house into narrow plot in Japan
일본 사이타마에 위치한 이 날씬한 주택은 노출 콘크리트 벽이 특징이며, 현지 스튜디오 IGArchitects가 폭이 2.7미터에 불과한 디자인으로 설계했습니다. 2700이라는 이름이 붙은 이 집은 도쿄에서 가까운 도시의 도로 확장으로 남은 길고 얇은 부지에 젊은 부부를 위해 설계되었습니다. 가용 공간을 극대화하기 위해 IGArchitects는 1층에는 유연한 공간을, 1층에는 개인 공간을 배치하여 2층에 걸쳐 일련의 계층화된 생활 공간을 만들었습니다.translate by Deeple



























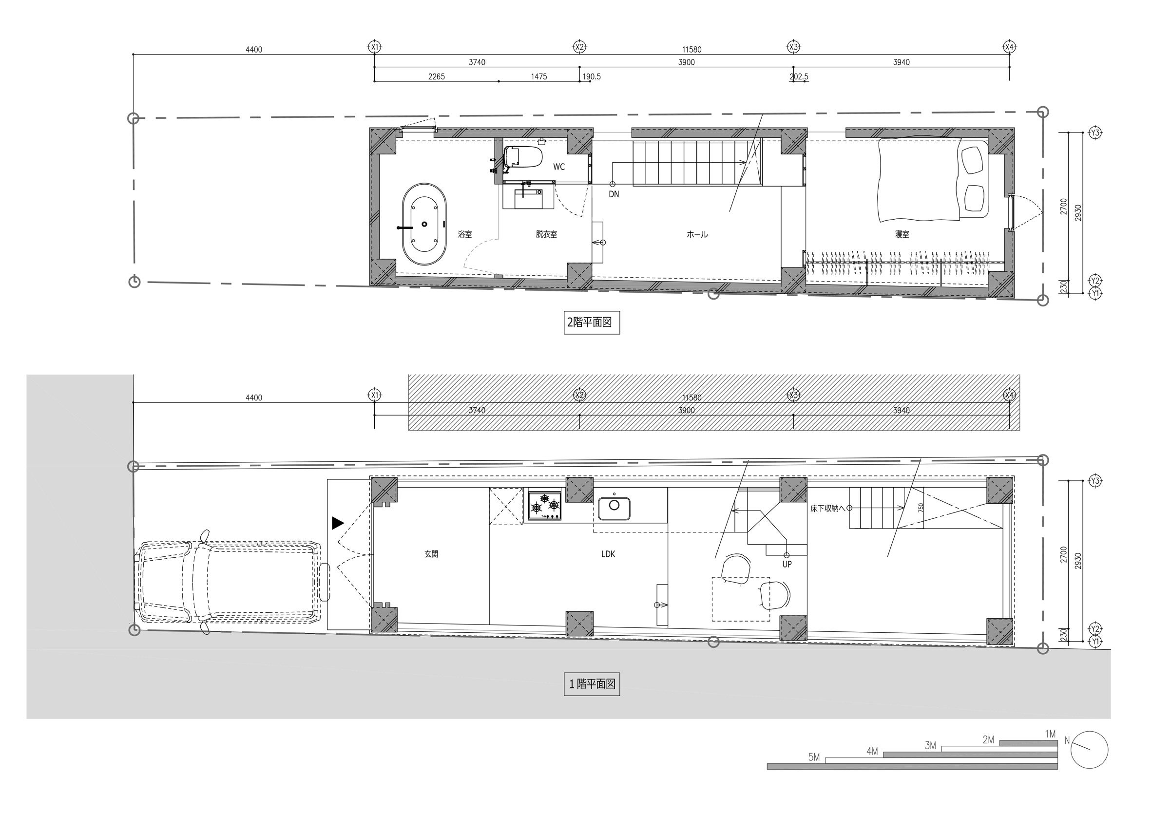
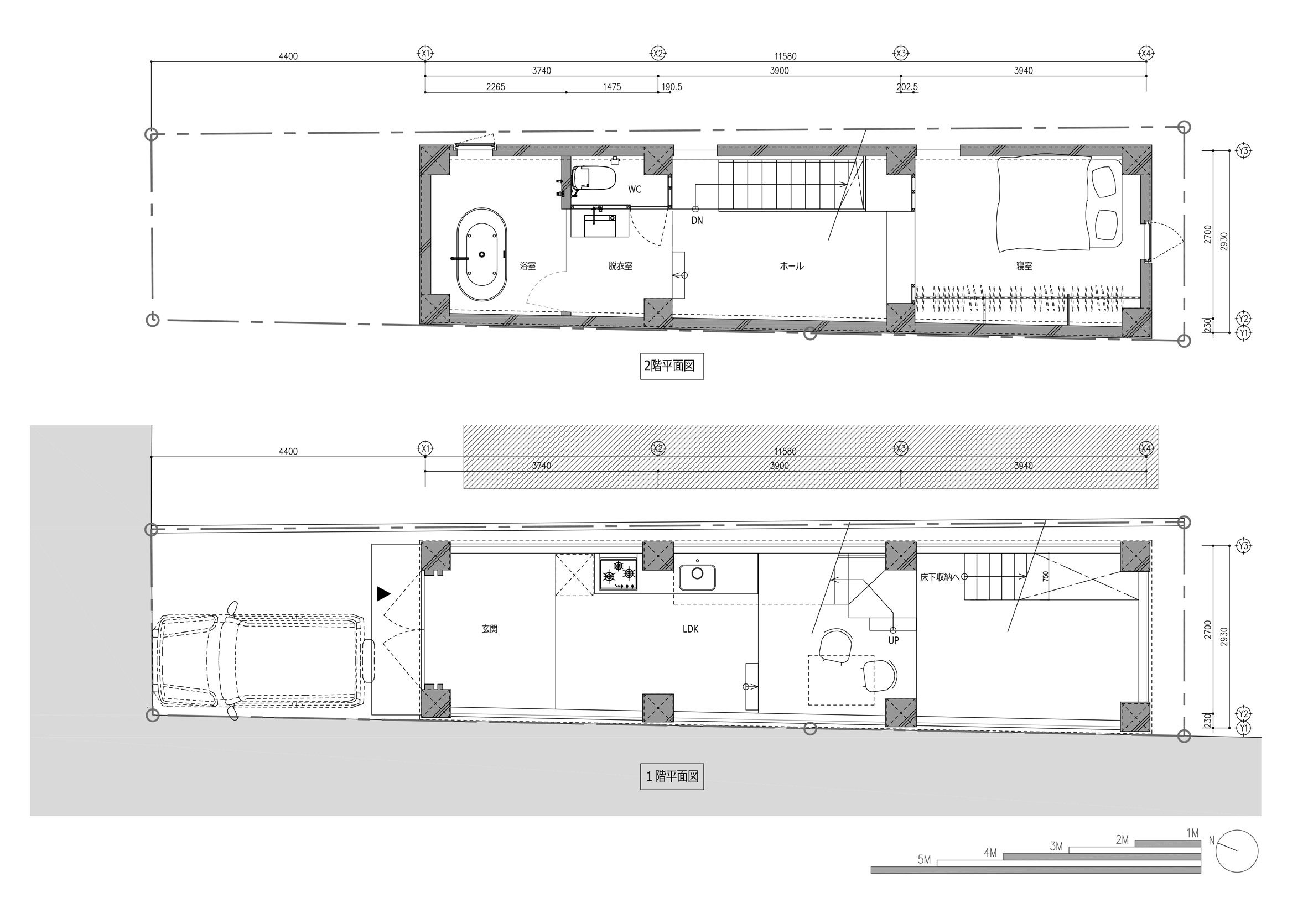
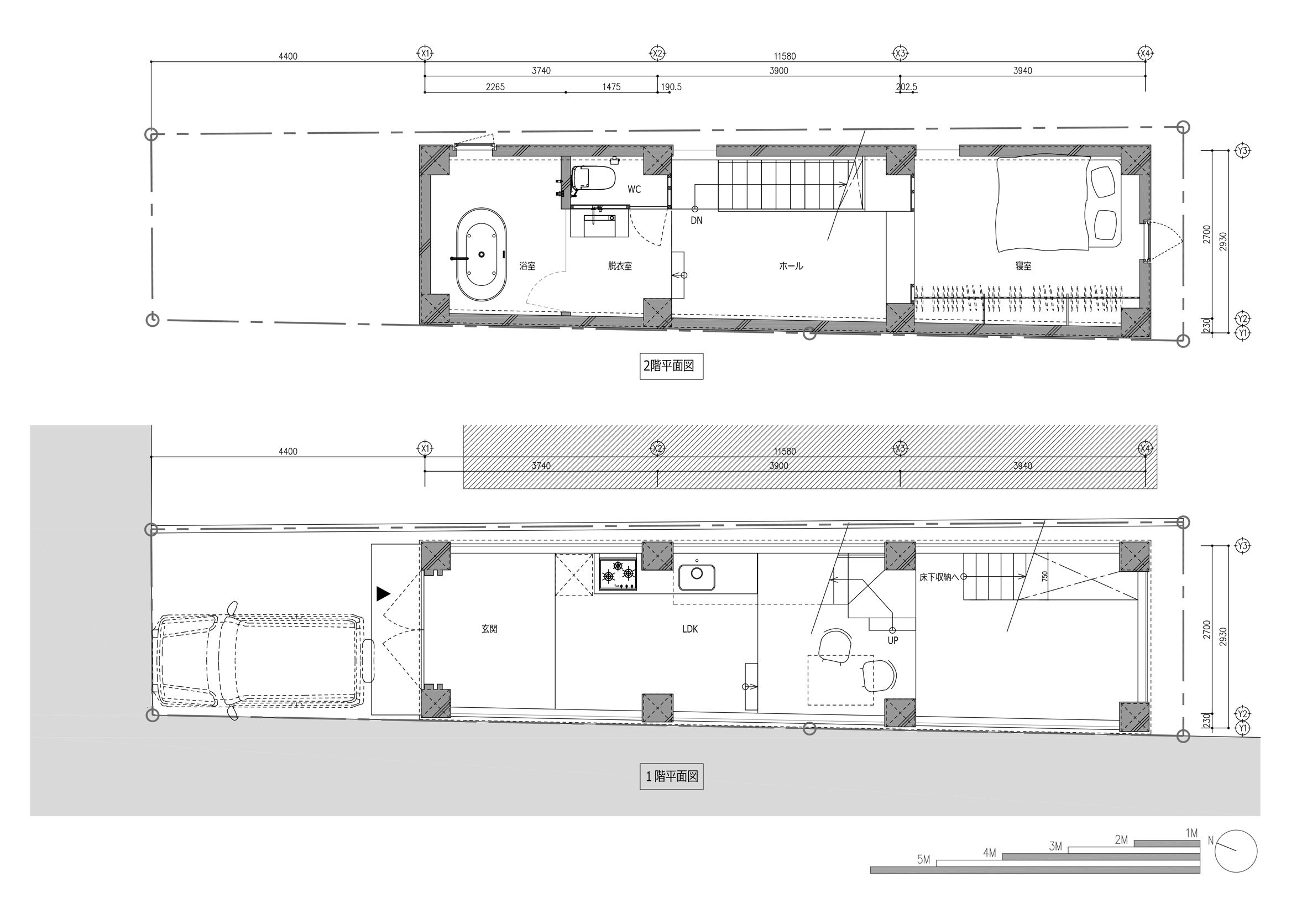
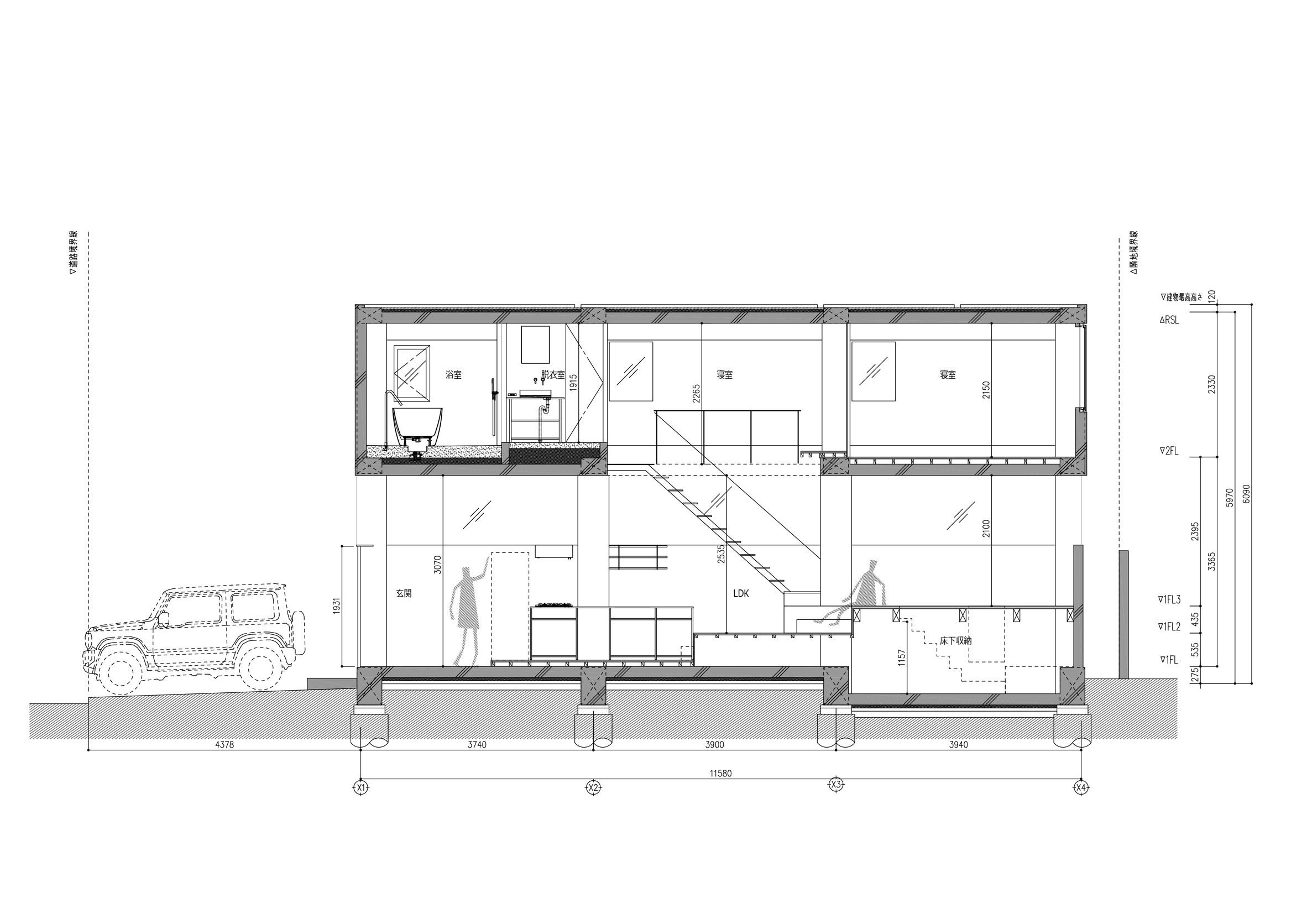
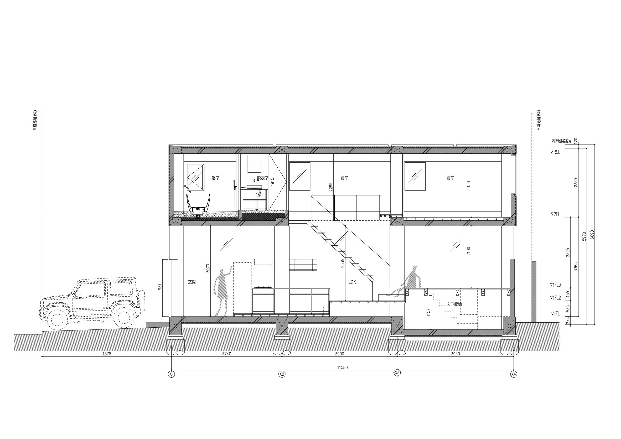
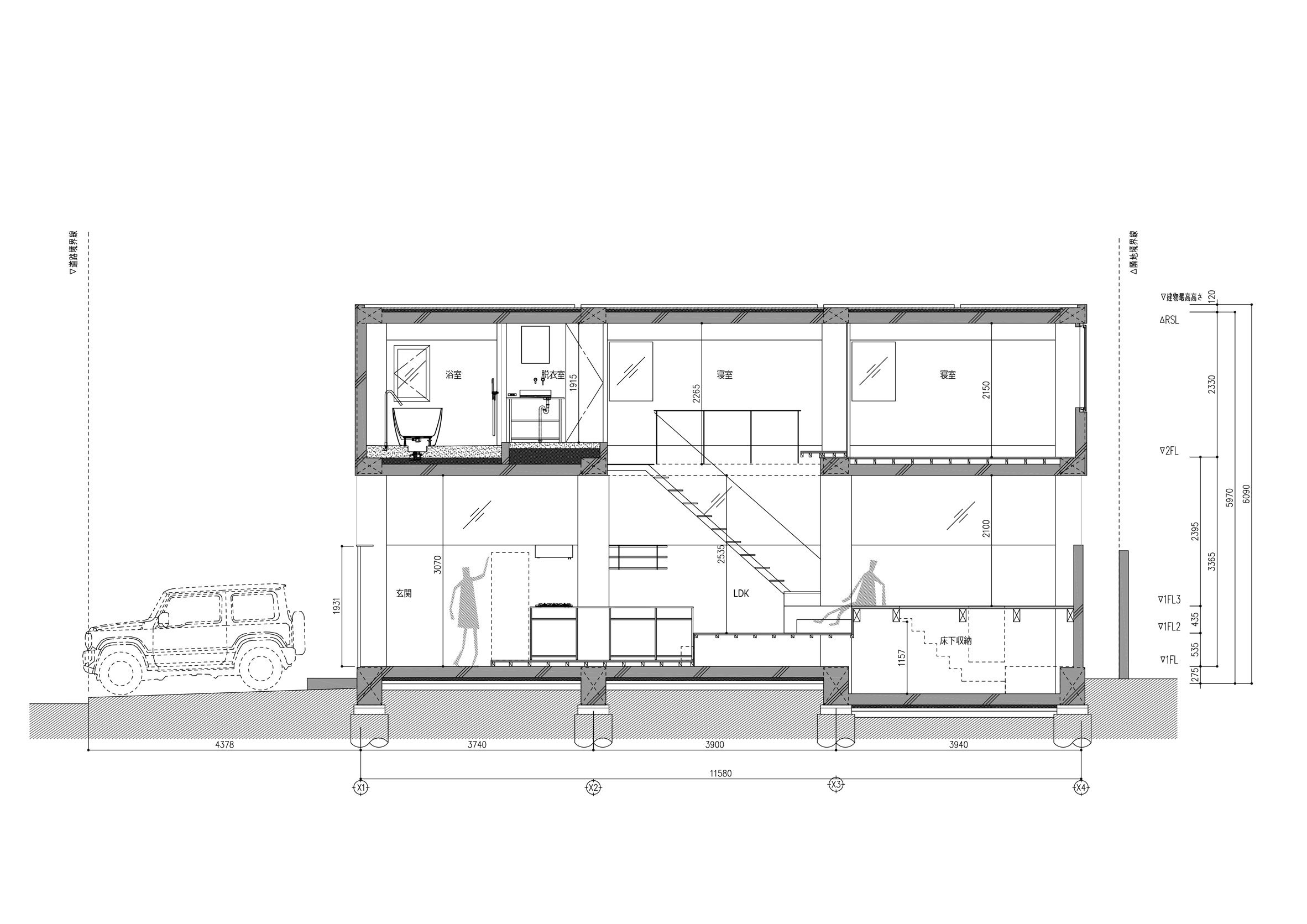
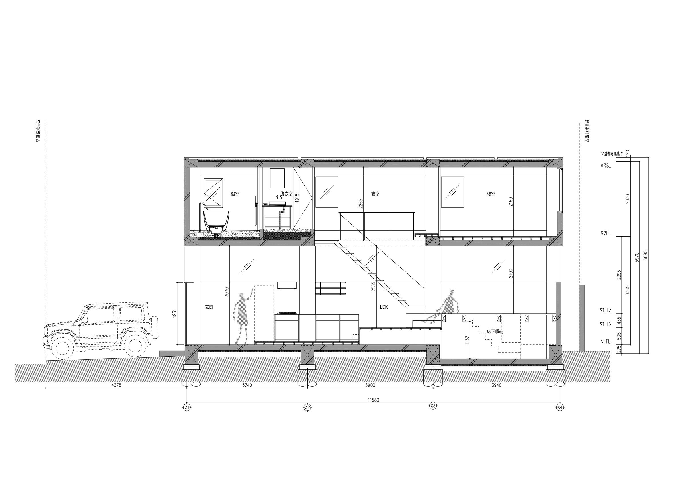
Walls of exposed concrete define this skinny house in Saitama, Japan, which local studio IGArchitects designed with a width of just 2.7 metres.
Named 2700, the home is designed for a young couple on a long and thin site left over following a road expansion in the city, which is close to Tokyo.
To maximise usable space, IGArchitects created a series of layered living spaces across two storeys, with flexible spaces on the ground floor and private spaces on the first floor.
"Land in Tokyo and surrounding cities is very expensive," IGArchitects founder Masato Igarashi told Dezeen.
"We thought we could shape the possibility of living in the city by directly forming the idea of living in Tokyo with the readiness to live on a small piece of land that most people would not even look at," he continued.
IGArchitects described 2700 as a "concrete box" with eight chunky concrete columns rising through it to support the upper storey.
The site is open to the north, south and west. Taking advantage of this, IGArchitects placed windows on all four facades of the home, allowing natural light to pour in.
On the ground floor, windows are placed at a clerestory height to provide privacy. Upstairs, smaller slot windows punctuate the concrete to provide light to the bedroom, bathroom and hallway.



from dezeen
'House' 카테고리의 다른 글
| *스플릿레벨 가든 [ A Threshold ] In Between Gardens Residence (0) | 2024.04.25 |
|---|---|
| *윌리엄버그 타운하우스 [ Brent Buck Architects ] Williamsburg Townhouse (0) | 2024.04.24 |
| *1615하우스 [ Nordest Arquitectura ] 1615 House (0) | 2024.04.22 |
| kseniia kolesnikova's stilted glass house rises over a lake amid mountain peaks (0) | 2024.04.12 |
| *라이트하우스 [ toledano + architects ] The Lighthouse (0) | 2024.04.10 |


