"건축은 사람을 위한 것이며, 인간의 감각과 정서를 강화해야 한다." – 앨바 알토

![]() |
![]() |
![]() |
천공 패널의 숨겨진 비밀: 공기와 빛이 춤추는 무대 SHISUO design office-the Breeze Hall
상하이 루쉰 공원의 중심부, 자연과 도시가 만나는 경계에서 "The Breeze Hall"이 탄생했습니다. 한때 도시 개발로 방치되었던 혼합 숲은 이제 현대 건축과 조화를 이루는 공공 공간으로 재탄생했습니다. 이 프로젝트는 제한된 자원과 시간 속에서도 고품질의 건축물과 공공 공간을 창조할 수 있다는 가능성을 보여주는 사례입니다. SHISUO Design Office의 혁신적 설계와 기술력은 이 프로젝트를 통해 새로운 건축적 경험을 선사합니다.
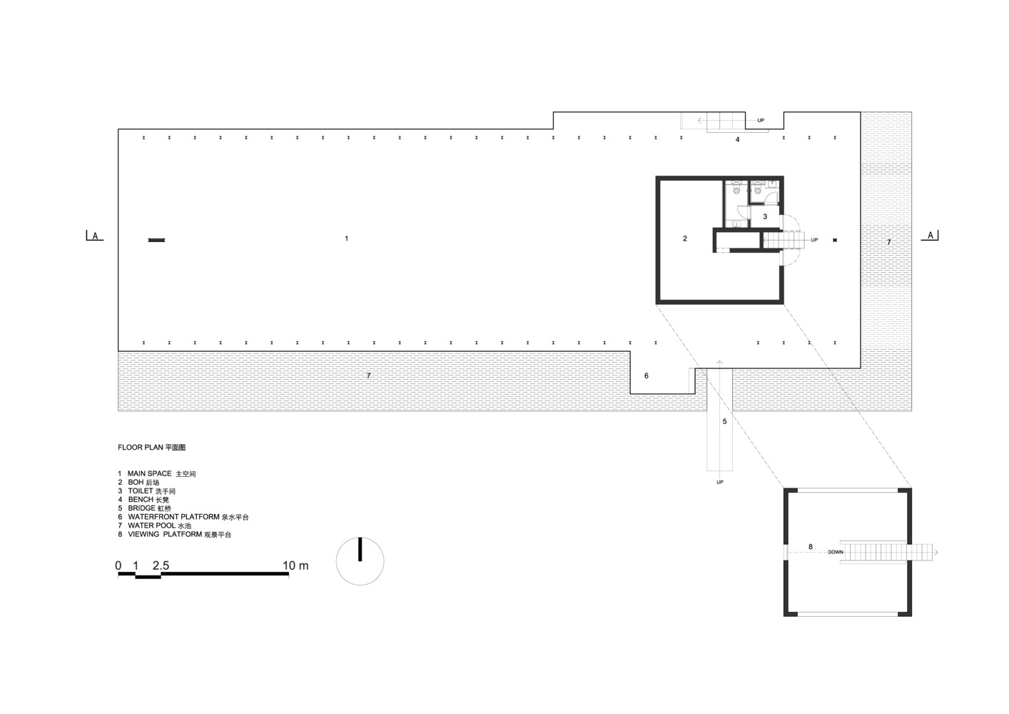
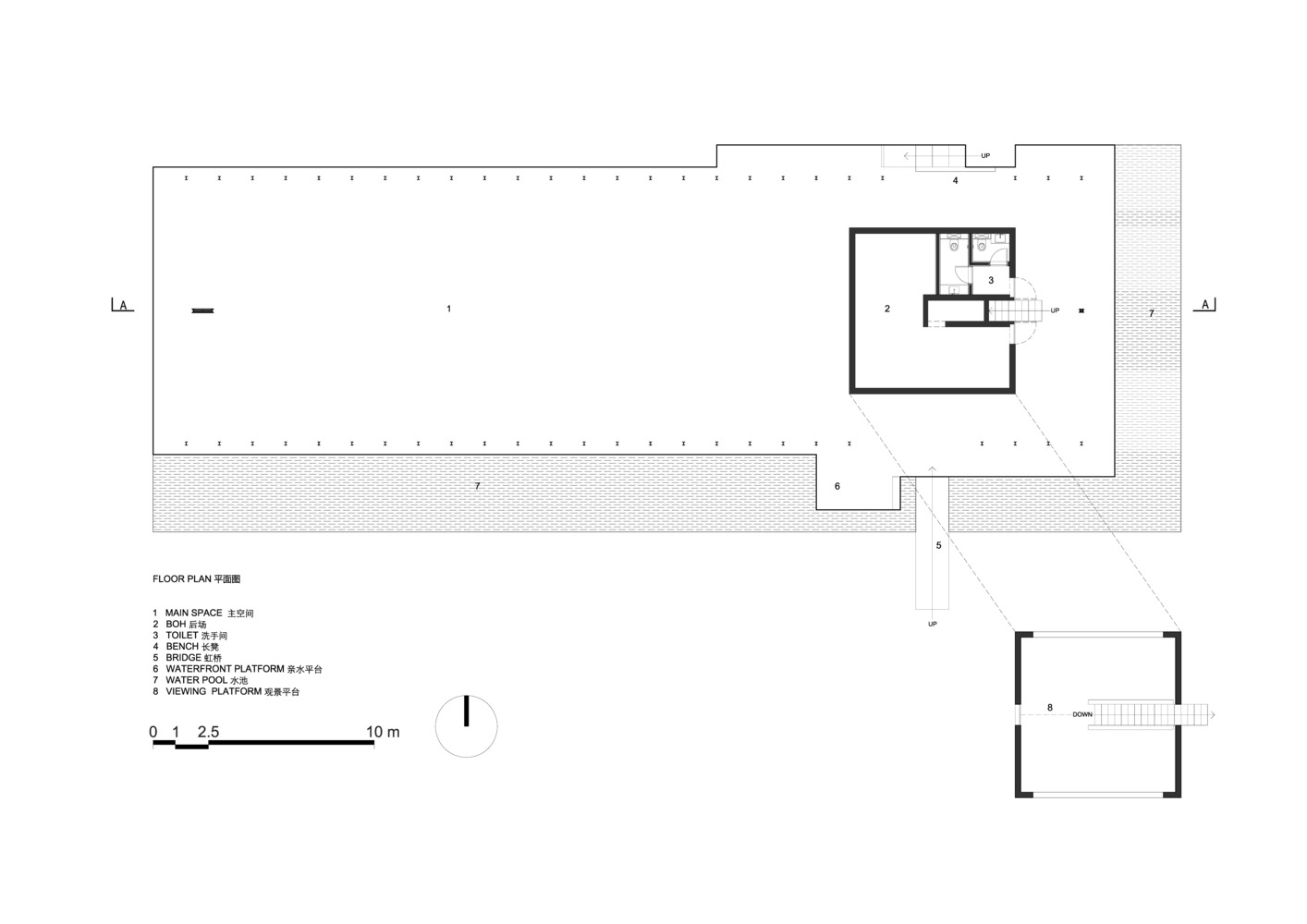
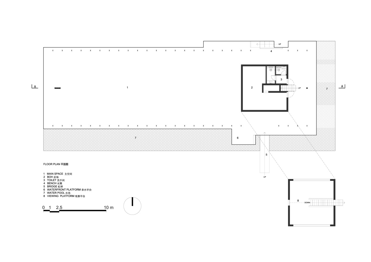
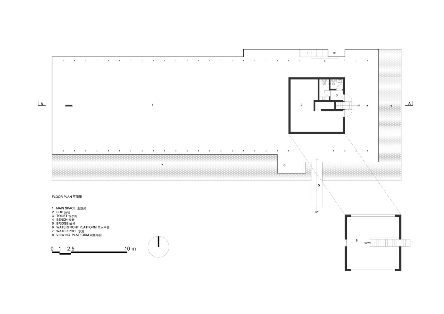
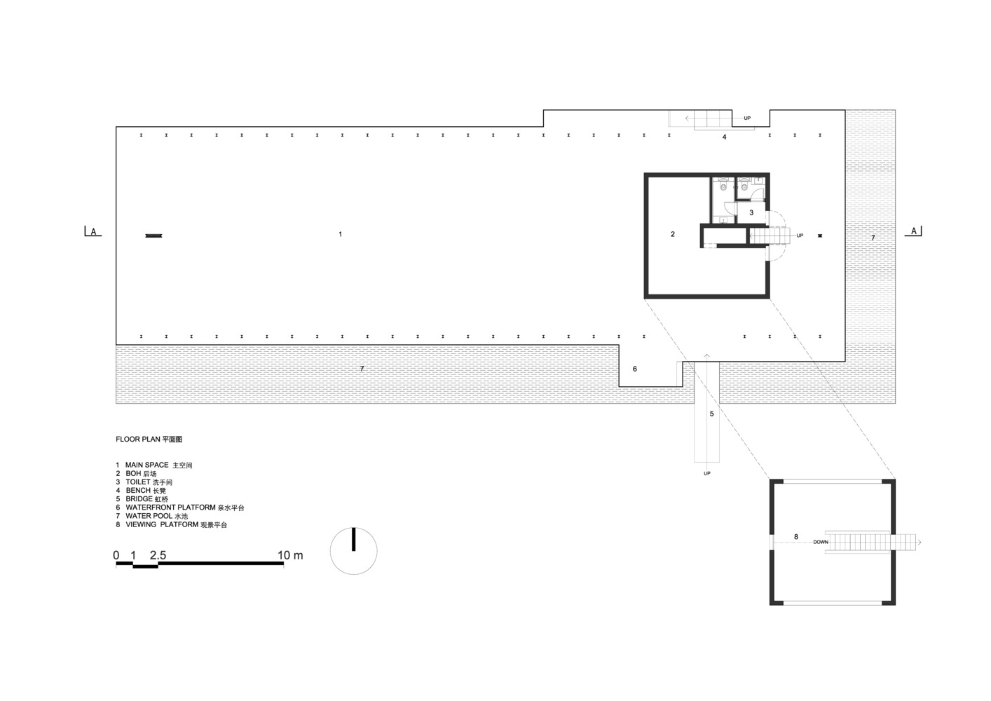
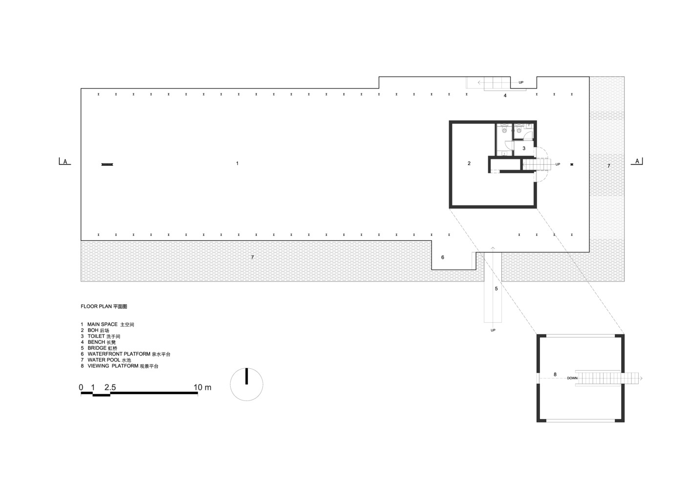
프로젝트 개요
"The Breeze Hall"은 결혼식, 전시회, 지역 모임 등 다양한 활동을 지원하기 위한 다목적 공간으로 설계되었습니다. 프로젝트의 중심에는 경량 철골 구조와 이중 천공 패널이라는 혁신적 요소가 자리 잡고 있으며, 이는 공간의 개방성과 심미적 가치를 동시에 실현합니다. 건축물은 루쉰 공원의 남쪽에 위치하며, 기존 자연 환경과 조화를 이루며 새로운 공공 가치를 창출합니다.
설계 컨셉과 구현
자연과의 공존
"The Breeze Hall"의 설계는 자연과 건축의 경계를 허무는 데 중점을 두었습니다. 기존의 나무와 대나무는 보존되거나 재배치되어 건축물과 자연이 유기적으로 연결되도록 설계되었습니다. 이를 통해 건축물은 공원의 연장선상에 자리하며, 방문객들에게 평온한 환경을 제공합니다.
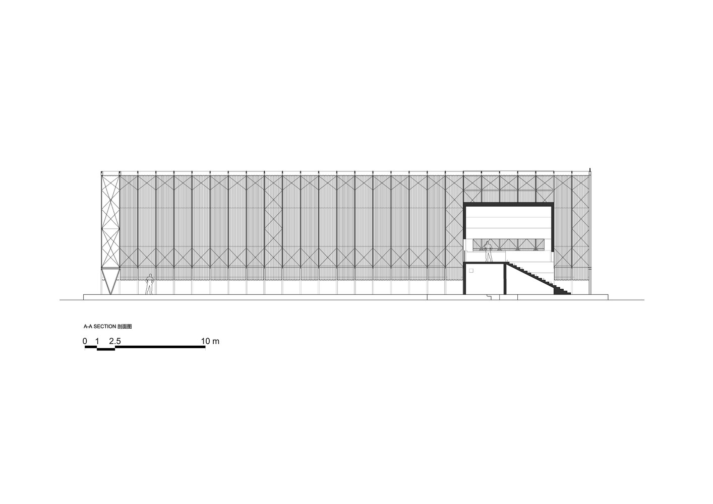
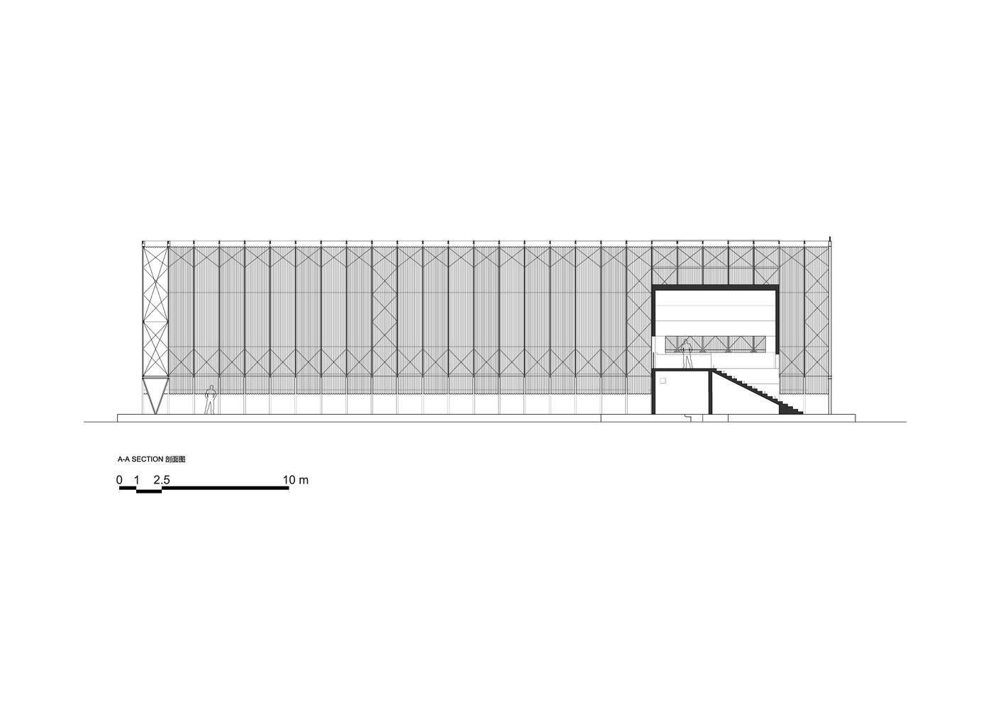
구조적 혁신
100x150mm 크기의 얇은 강철 기둥이 대형 개방 공간을 지탱하며, 모듈형 조립식 패널은 효율적인 시공을 가능하게 했습니다. 이중 천공 패널은 빛과 공기의 흐름을 자연스럽게 조화시키며, 공간을 부드럽게 연결하는 역할을 합니다.
미학적 요소
시간에 따라 변화하는 빛과 그림자는 "The Breeze Hall"의 내부를 살아 있는 예술 작품처럼 보이게 합니다. 아침 햇살은 공간에 부드러운 밝음을 더하고, 저녁에는 그림자가 공간에 깊이를 부여합니다. 낮은 처마는 외부의 소음을 차단하며, 물 연못과 잔디밭의 자연 요소와 조화를 이루는 조용한 분위기를 만듭니다.
주요 설계 요소
공간의 유연성
"The Breeze Hall"은 결혼식, 전시회, 지역 행사를 포함한 다양한 목적을 수용할 수 있는 다목적 공간입니다. 내부 공간은 유연하게 설계되어 사용자들이 자신의 창의력에 따라 활용할 수 있습니다.
환경적 지속 가능성
알루미늄 소재의 천공 패널은 열효율성을 높이고 지속 가능성을 고려한 설계를 반영합니다. 이러한 접근은 에너지 절약과 환경 보호라는 현대 건축의 핵심 가치를 실현합니다.
사회적 가치
"The Breeze Hall"은 지역 주민들에게 쉼터와 같은 역할을 하며, 공원의 공공성을 강화합니다. 자연과의 조화는 도시 속에서 자연의 가치를 재발견하는 기회를 제공합니다.
글로벌 트렌드와 비교
"The Breeze Hall"은 현대 건축에서 중요하게 여겨지는 지속 가능성과 효율성을 충실히 반영한 사례입니다. 특히, 모듈형 설계와 천공 패널의 활용은 기능과 미학을 동시에 실현한 대표적인 혁신 사례로 평가받고 있습니다.
사용자 경험
방문객들은 이 공간에서 빛과 그림자의 상호작용 속에서 자연과 연결된 감각을 느낍니다. 내부 공간의 개방성과 유기적인 설계는 심리적 안정감을 제공하며, 일상적인 활동과 특별한 행사를 위한 최적의 환경을 만듭니다.
결론
"The Breeze Hall"은 자연과 건축의 조화를 통해 도시와 자연이 공존할 수 있는 가능성을 제시합니다. 제한된 자원과 시간 속에서도 창의적 설계를 통해 고품질의 건축물을 구현할 수 있음을 보여줍니다. 이 프로젝트는 환경적 지속 가능성과 공공 공간 설계의 새로운 기준을 제시하며, 지역 사회와 건축계 모두에 영감을 줄 중요한 사례로 남을 것입니다.
Write by ChatGPT & 5osa

































The Breeze Hall is located in Lu Xun Park, the most important memorial park in Shanghai. It originated from a patch of mixed woods on the south side of the Lu Xun Memorial Museum, which was fenced off and designated as a dead corner left by urban development. In 2023, SHISUO Design Office was commissioned to reorganize this site some trees were transplanted to the south, creating a walkway together with the existing trees in front of the Lu Xun Memorial Museum, and also providing a soft boundary for the new building. Other trees were moved to the flanks of the site, forming a large enclosed open space. Large trees and bamboo within the site were retained, and the newly placed pathways harmoniously interacted with them——All these adjustments endow the site with greater publicness.
The design needs to address two issues—how to achieve high quality construction within a limited budget and construction timeline, and how to create a landmark spiritual building that harmonizes with the chaotic surroundings.
The main building consists of a wing-like steel structure and a landscape like base. The slender steel structure is arranged to be lightweight and transparent while achieving high structural efficiency. Steel columns of only 100*150mm support an open space measuring 42m in length, 15m in span, and 12m in height, catering to the needs of weddings, events, exhibitions, and gatherings. The roof is made of prefabricated perforated panels, and the modular assembly ensures quick construction on-site. This porous material provides varying visual experiences at different scales, appearing simple at first glance but revealing intricate details upon closer inspection. The double-layer perforated panels also act as a filter between the interior and the exterior—calm on cloudy days and warm on sunny days. The roof's shape transforms at the entrance, inviting people to come in. The interior space is lofty and expansive, resembling a blank canvas that allows users to add color later.
The low eaves filter out the noise from the commercial street across the way, only revealing the reflections in the water pool and the rolling grassland. Here, air currents, light, and birdsong pass through, while the chaotic world outside is kept at bay. The landscape like base interacts diversely with the site, serving as steps leading upward, viewing benches, a rainbow bridge connecting the building and the grass, or transforming into a waterside platform.
Inside, the base rises upward and solidifies into an abstract house, reminiscent of a silent monument or tower. Behind it, a canyon like staircase guides people to a higher platform, offering the framed views within the changing light and shadows; the narrow windows on both sides allow light to enter, enabling visitors to look back at the entrance. Every morning, the sun rises behind it, casting a halo that imbues it with a mysterious and sacred quality.
We intentionally depict its sacred aspect because sacred spaces are meant to celebrate the poetic moments of ordinary daily life. In the distinction and juxtaposition of the secular and the sacred, people can discover that life is not homogeneous. Crying and laughing, losing and gaining, the secular and the sacred... all are essential parts that make up a human being. All of this exists within each individual, and the divine always appears alongside the everyday.
from archdaily


