"공간은 빛을 통해 살아난다." — 루이스 바라간

![]() |
![]() |
![]() |
빛, 공간, 재료: 건축이 만들어내는 감각의 시 Adriano Pupilli Architects-Windale Hub
1. 프로젝트 개요
Windale Hub는 호주 뉴캐슬 남쪽 20분 거리에 위치한 지역 커뮤니티 시설입니다. 이 프로젝트는 설계 공모전을 통해 6년간 개발되었으며, Windale의 문화적 정체성과 자연환경을 반영한 디자인을 기반으로 조성되었습니다. 이 공간은 지역 주민들이 소통하고 협력하며 함께 성장할 수 있는 열린 공간을 제공하는 것을 목표로 합니다.
2. 설계 개념 및 디자인 원칙
Windale Hub는 커뮤니티 활동과 공공 기능이 자연스럽게 연결되도록 설계되었습니다. 기존 커뮤니티 홀의 이중 박공지붕(double gable) 형태를 현대적으로 재해석하여 지역의 역사적 정체성을 반영하였습니다. 또한, 대형 창을 배치해 자연광을 최대한 활용하도록 설계하였으며, 내부는 목재와 공기가 잘 통하는 패널을 사용해 따뜻하고 개방적인 분위기를 조성하였습니다.
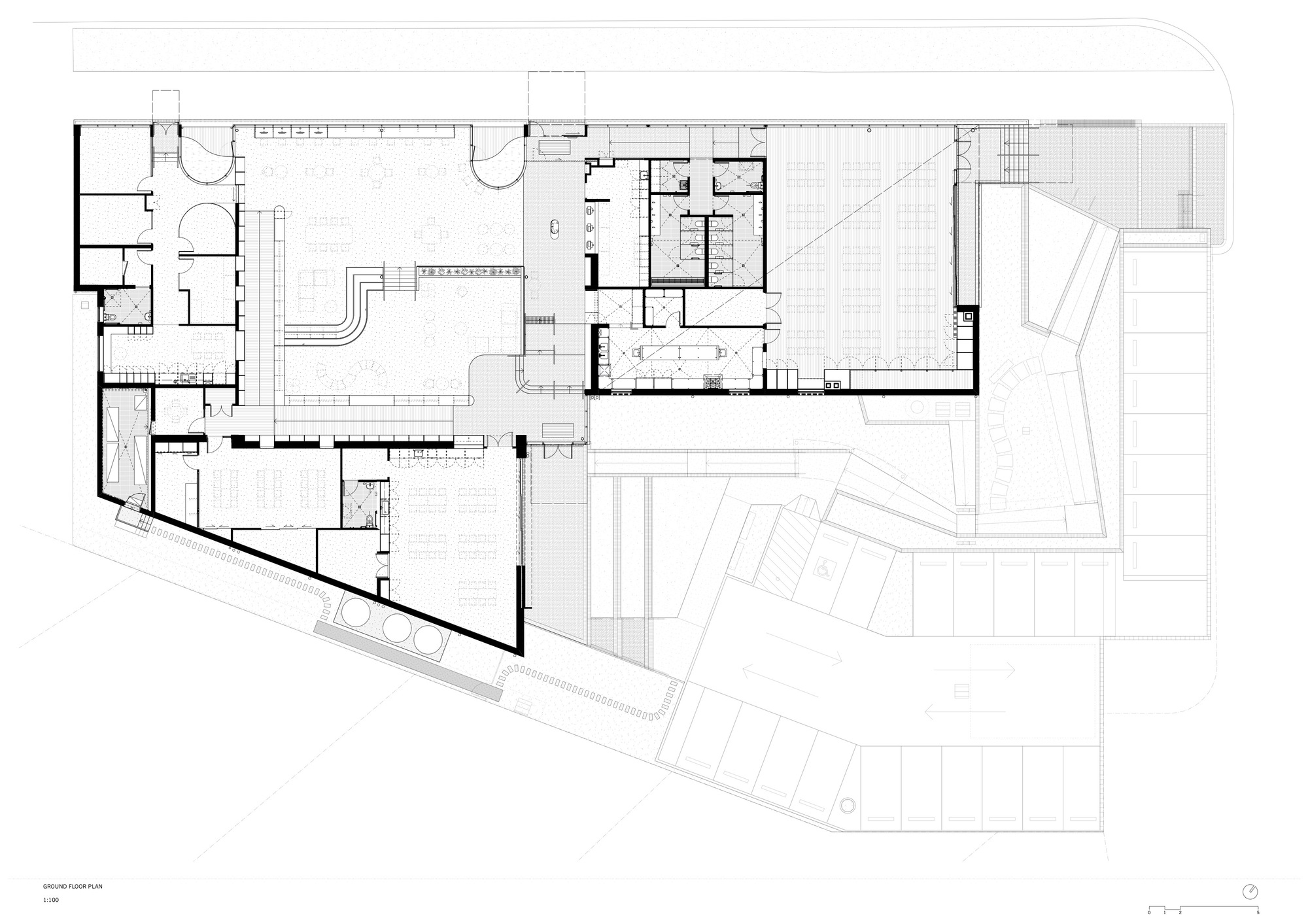
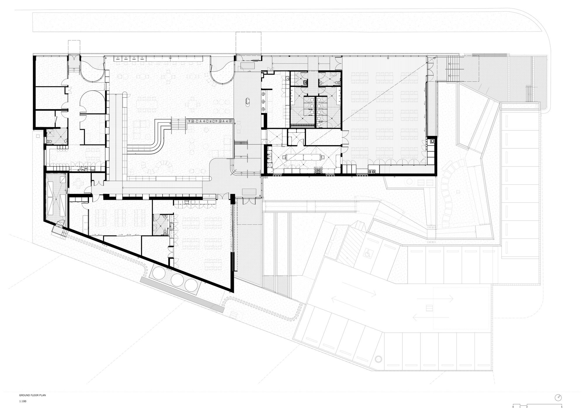
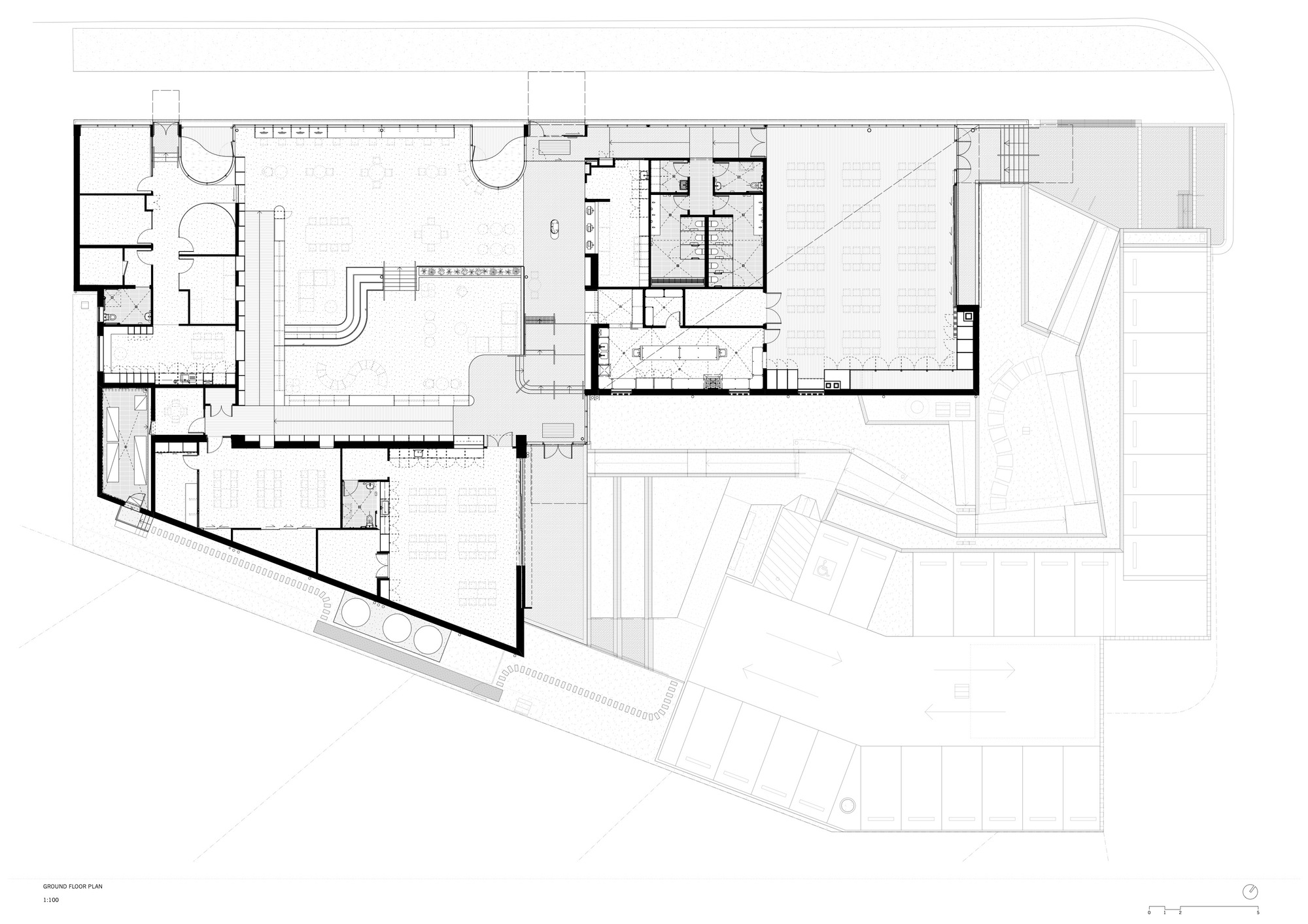
3. 공간 구성 및 기능적 요소
Windale Hub는 다음과 같은 네 개의 주요 공간으로 구성됩니다.
커뮤니티 홀: 다양한 행사와 모임을 위한 다목적 공간입니다.
공공 도서관: 학습과 자료 열람이 가능한 개방형 공간으로, 모든 연령층이 이용할 수 있습니다.
커뮤니티 오피스 및 회의실: 지역 단체와 조직이 업무를 수행할 수 있는 공간입니다.
청소년 제작 공간(Youth Maker Space): 창작 활동과 기술 학습을 지원하는 공간으로, 창의적인 협업이 이루어지도록 구성되었습니다.
층간 이동을 고려한 경사로와 계단을 활용하여 접근성을 높였으며, 내부 볼트 천장과 중정을 통해 자연광과 공기 순환이 원활하도록 설계되었습니다.
4. 외부 디자인과 지역 환경과의 조화
건물 외관은 Lake Street을 따라 자연스럽게 이어지며, 주변 환경과 조화를 이루도록 디자인되었습니다.
지붕과 차양: 건물의 리듬감을 형성하고 각 공간의 진입점을 시각적으로 구분하는 역할을 합니다.
반투명 금속 패널: 태양빛을 조절하고, 지역의 고유한 야생화 색감을 반영하여 건물 외관에 생동감을 더합니다.
파사드와 지붕 형태: 쇼핑가 방향에서 가장 높은 지점을 형성하여 도시 경관과 조화를 이루면서 독립적인 아이덴티티를 유지합니다.
이중 박공지붕(double gable) 형태: 기존 커뮤니티 홀의 역사적 요소를 현대적으로 해석하여 건축적 정체성을 강화합니다.
5. 지속 가능성과 친환경 설계
Windale Hub는 지속 가능한 발전을 고려하여 설계되었습니다.
자연광 활용 극대화: 대형 창문과 볼트 천장을 통해 실내 전체에 균일한 빛이 들어오도록 하였습니다.
친환경 건축 재료 사용: 내부 마감재로 목재와 공기가 잘 통하는 패널을 사용해 따뜻하고 자연스러운 분위기를 조성하였습니다.
야외 조경 설계: 지역 생태계를 보호하기 위해 원주민 식물을 활용하여 녹지를 조성하고, 자연적인 그늘을 형성해 쾌적한 외부 환경을 제공합니다.
6. 지역 사회와의 연결 및 활용성
이 시설은 다양한 연령층과 관심사를 가진 사람들이 모일 수 있는 열린 공간입니다.
코워킹 스페이스 및 녹음 스튜디오: 창작자들이 협업하고 다양한 활동을 할 수 있는 공간입니다.
야외 계단형 잔디 공간: 소규모 공연과 이벤트를 위한 개방된 장소로 활용됩니다.
접근성과 편의성 고려: 경사로와 최적화된 내부 동선을 통해 모든 이용자가 쉽게 이동할 수 있도록 설계되었습니다.
7. 결론 및 기대 효과
Windale Hub는 단순한 건축물이 아니라 Windale 지역의 문화적 다양성을 반영하고 주민들이 배우고 교류할 수 있는 열린 공간으로 자리 잡을 것입니다. 또한, 지속 가능한 설계를 통해 에너지 효율을 높이고, 자연친화적인 환경을 조성하여 지역 공동체의 발전을 지원하는 중요한 거점 역할을 수행할 것입니다.
Write by ChatGPT & 5osa






















Located in the Lake Macquarie LGA 20 minutes south of Newcastle in Australia, the Windale Hub is a new facility providing much-needed community infrastructure in an underserved region. The result of an initial design competition and six years of development, our design draws inspiration from the cultural richness of Windale and biodiversity of the surrounding area, while breathing new life into the commercial center and providing locals with an inspiring place to come together.
Part civic building, part community living room, the building is split into four main areas linked by an internal 'street'; a Community Hall, Public Library, Community Offices and Meeting Rooms, and a Youth Maker Space. This required a large floor plate on a sloping site. We utilize a sloping walkway to link the levels as well as for the library collection. Vaulted ceilings and internal courtyards draw in natural light and ventilation.
Externally the building undulates along Lake St, reaching its highest point towards the adjacent shopping strip. The rhythm of the facade, roof forms, and awnings respond to the surrounding residential and commercial context and signal points of entry and the different functions within.
A folded screen made of perforated metal serves to shade the facade and enliven the streetscape, the vivid colors of local wildflowers revealing themselves as you move around the building, creating a sense of surprise and delight for everyday passers-by. The double gable forms are a nod to the post-war community hall that previously occupied the site.
Designed to cater to a wide range of users, the internal program includes co-working spaces, a recording studio, a maker space, and a kiosk. Outdoors, a tiered grass area provides an impromptu performance space, and native planting creates shade and informal places for people to mill.
The overarching intent behind the project is more than a built outcome. It's about creating a welcoming space that celebrates the cultural diversity and richness of Windale, where the community can gather, play, learn, and be proud.
from archdaily


