"Nature is the most beautiful architect." "자연이야말로 가장 아름다운 건축가다." — 안토니 가우디 (Antoni Gaudí)

![]() |
![]() |
![]() |
물 위의 쉼터: 암 카이저스트란트 베스 하우스의 경험 Lang+Schwaerzler-Am Kaiserstrand Bathhouse
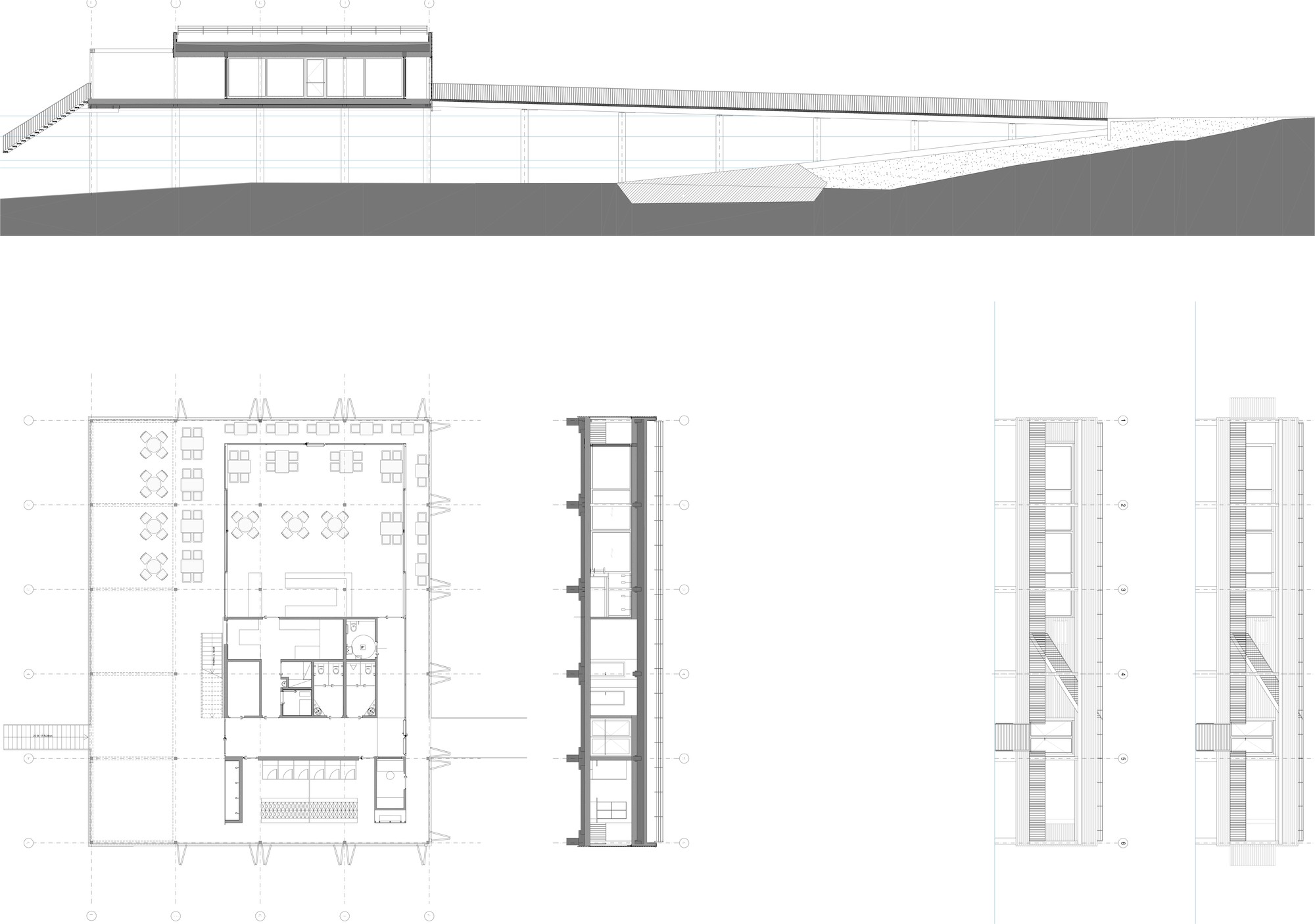
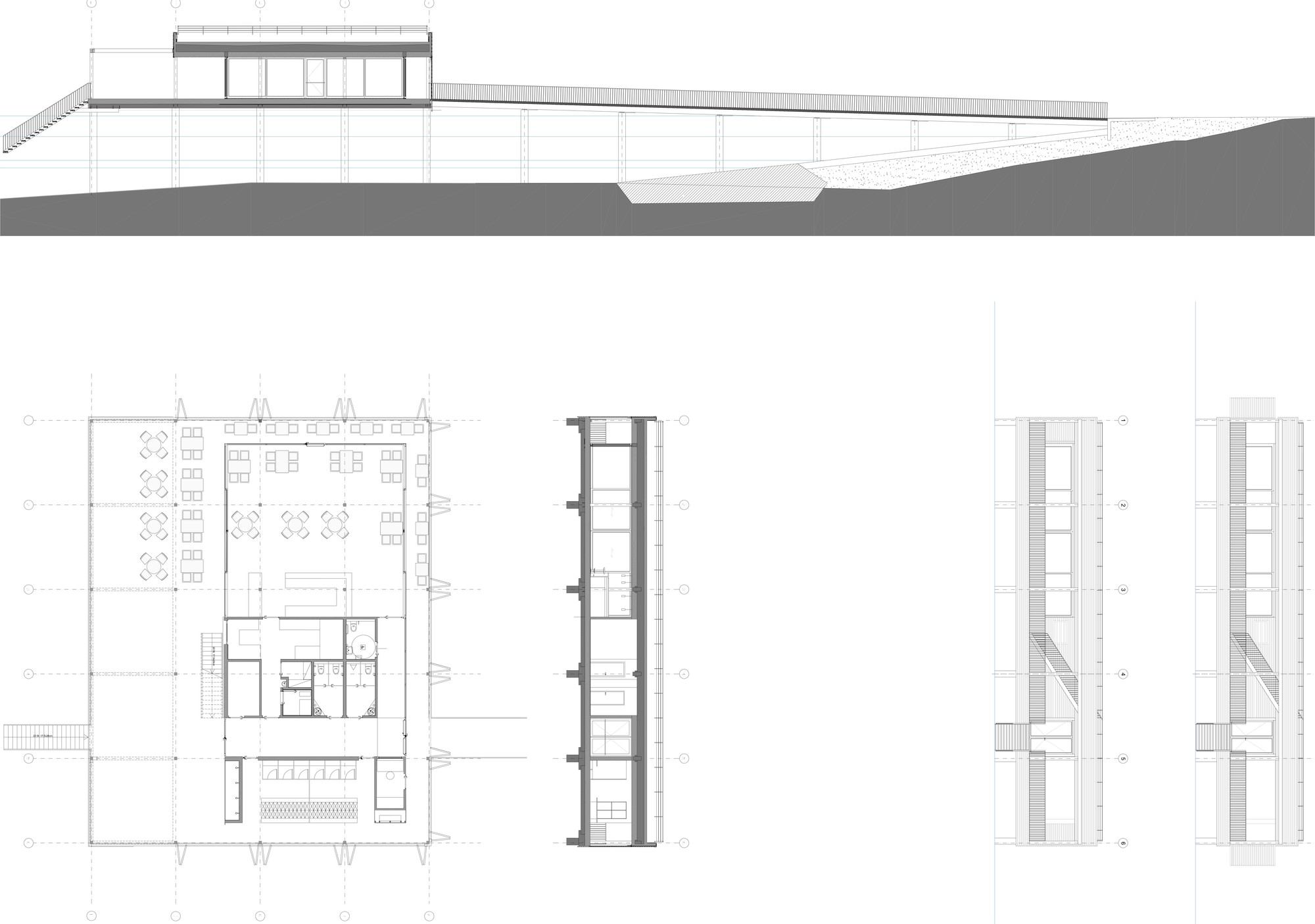
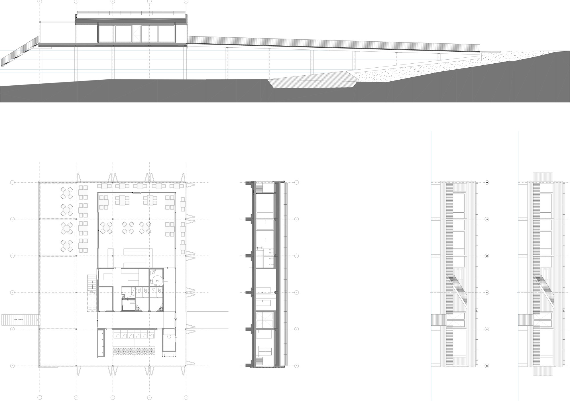
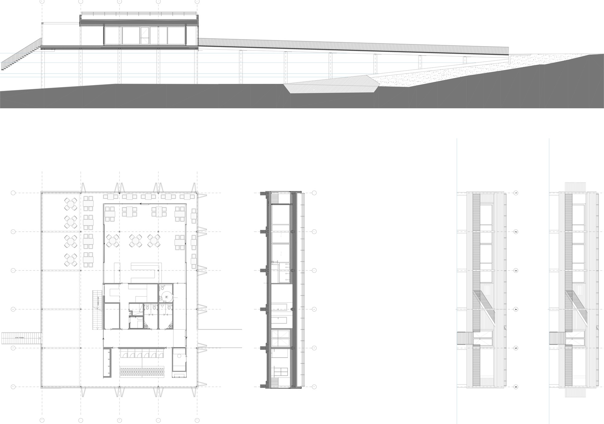
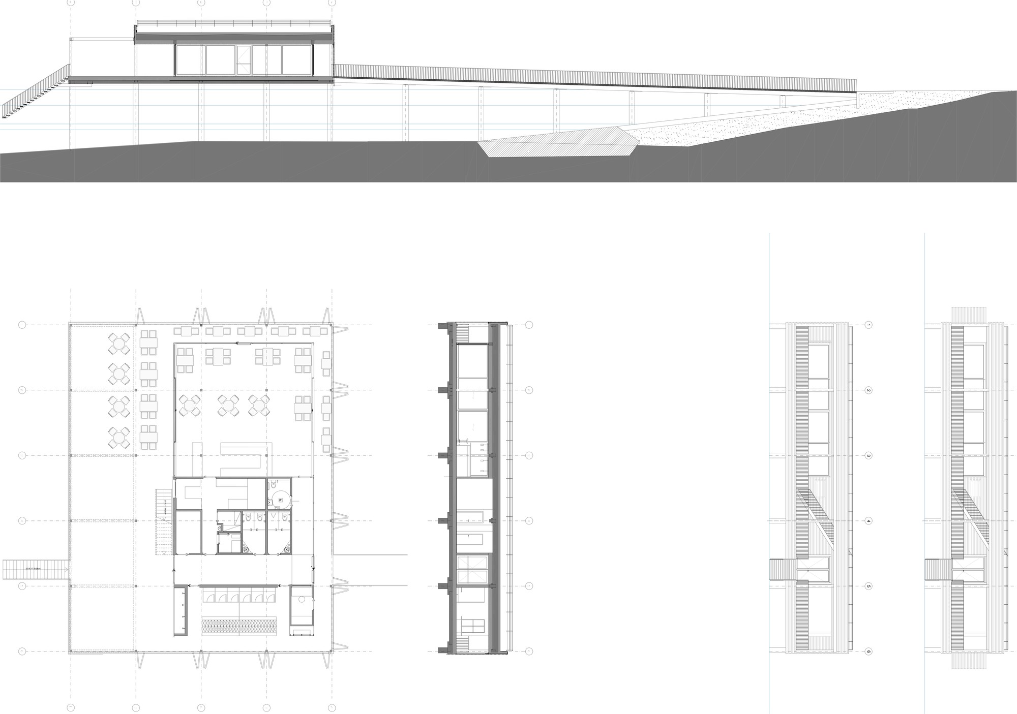
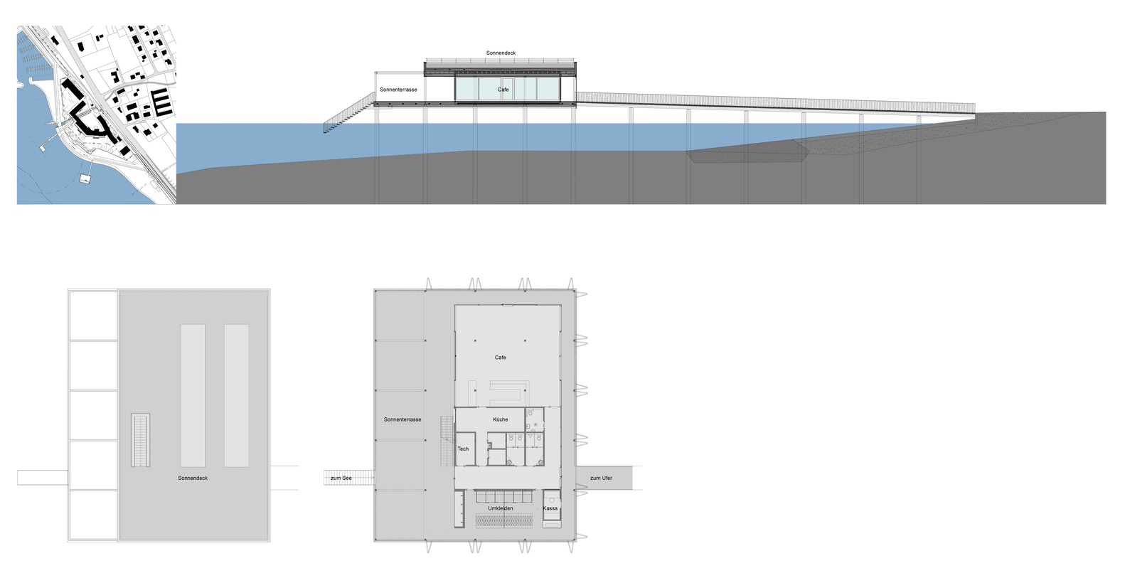
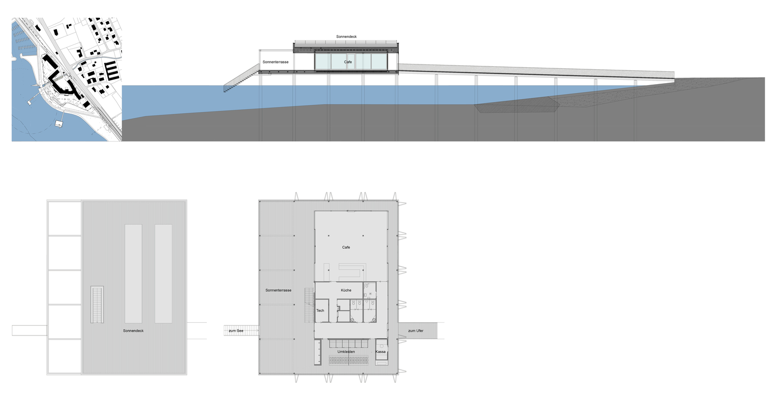
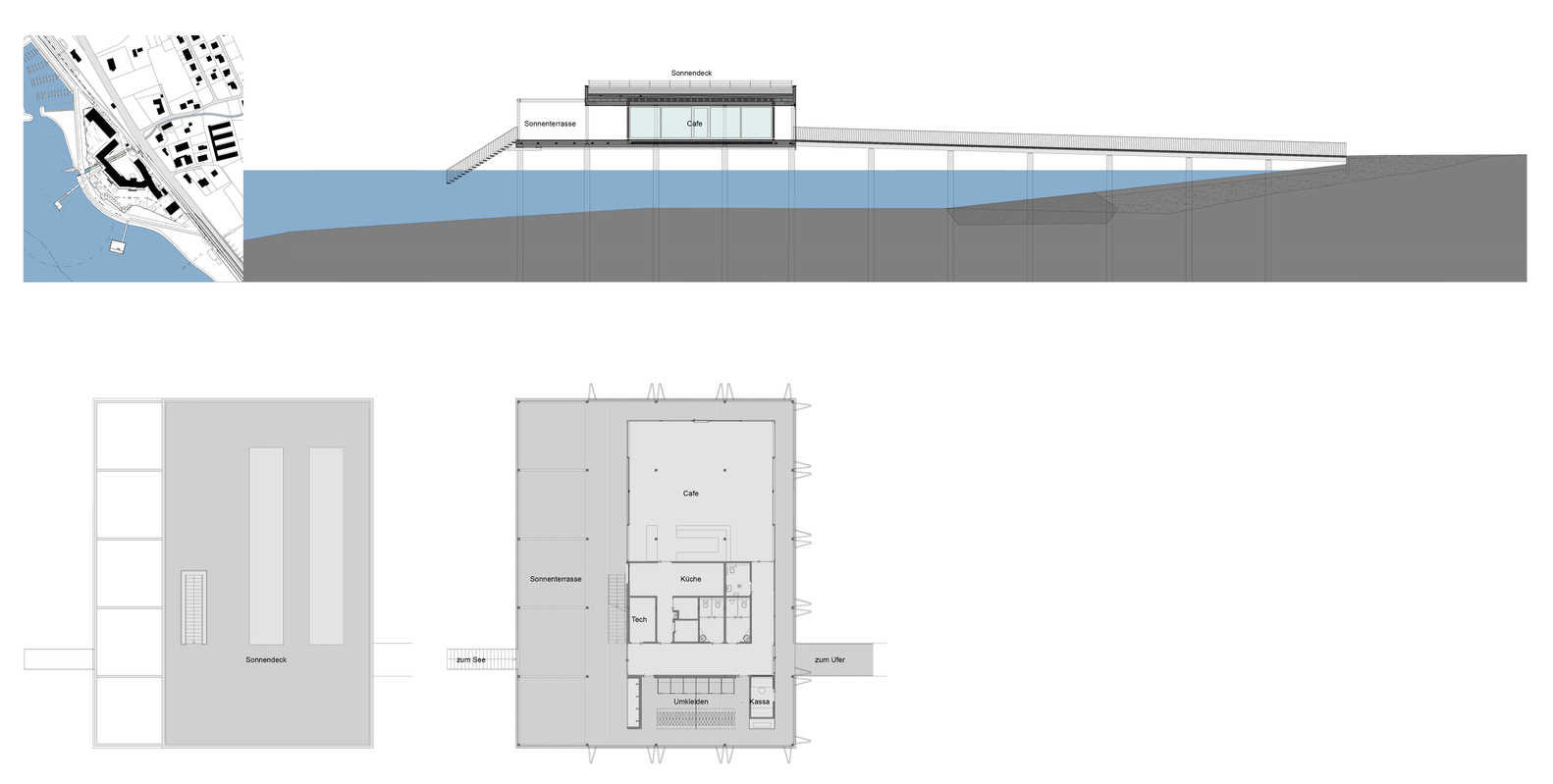
The "Am Kaiserstrand" bathhouse in western Austria offers spectacular views of the Bay of Bregenz, Pfaender Mountain and the foothills of the Swiss Alps. A 42 metre long pier connects the pile structure situated on the eastern coast of Lake Constance to the recreational zone of the same name on shore. The revitalisation of the entire complex has also just been completed: the coastal promenade was extended, new pedestrian and bike paths were laid out, and a historic hotel complex was refurbished.
1. Location and Landscape | 경관과 입지
오스트리아 서부에 위치한 "암 카이저스트란트(Am Kaiserstrand)" 베스 하우스(Bathhouse)는 브레겐츠 만과 팬더 산(Pfaender Mountain), 그리고 스위스 알프스의 장대한 풍경을 조망할 수 있는 건축물이다. 보덴 호수(Lake Constance) 동쪽 해안에 자리한 이 구조물은 길이 42미터의 부두를 통해 육상의 휴양지와 연결된다. 최근 해안 산책로가 확장되었으며, 보행자 및 자전거 도로가 새롭게 조성되었다. 또한, 인근 호텔 단지가 복원되면서 이곳은 지역의 대표적인 명소로 자리 잡았다.
2. Architectural Concept | 건축적 개념
이 프로젝트의 중심에는 단연 베스 하우스(Bathhouse)가 있다. 포어아를베르크(Vorarlberg) 지역의 현대적 건축 언어를 반영한 이 공간은 '슈바벤 해(Swabian Sea) 전통'을 존중하는 건축 언어를 바탕으로 기능성과 미학을 함께 표현한다. 30개의 철근 콘크리트 기둥 위에 자리 잡은 단층 구조물은 단순하면서도 세련된 디자인이 조화를 이루며, 내부에는 탁 트인 유리창을 통해 자연과 조화를 이루는 레스토랑(테라스를 통해 일광욕 데크로 연결됨), 탈의실, 샤워실 및 화장실이 효율적으로 배치되어 있다.
3. Flexible Space Utilization | 유연한 공간 활용
외벽은 바닥에서 천장까지 이어지는 폴딩 셔터(Floor-to-ceiling folding shutter)와 그 뒤편의 슬라이딩 유리문으로 구성되어 있다. 이러한 설계를 통해 베스 하우스(Bathhouse)는 상황에 따라 완전히 개방하거나, 반대로 악천후 시에는 실내를 보호하는 폐쇄적인 공간으로 활용할 수 있다. 날씨가 좋은 날에는 자연과 하나 되는 개방감을 제공하며, 비바람이 몰아치는 날에도 아늑한 실내 환경을 유지할 수 있도록 설계되었다.
4. Sustainable Material Usage | 지속 가능한 재료 사용
목재 활용은 이 건축물의 가장 두드러지는 특징 중 하나이다. 기둥과 보, 외벽 마감재뿐만 아니라 실내외 바닥까지 모두 지속 가능한 자원인 목재로 제작되었다. 건축가는 지역의 지속 가능성을 고려하여 인근 산림에서 자란 미가공 실버 퍼(Silver Fir)를 사용했으며, 시간이 흐르면서 자연스럽게 풍화되어 독특한 색감을 형성하도록 설계되었다.
5. Eco-friendly Energy System | 친환경 에너지 시스템
에너지 시스템 또한 친환경적이다. 베스 하우스(Bathhouse)는 제어된 환기 시스템과 열 회수 장치를 갖추고 있으며, 공기-공기 열펌프(air-to-air heat pump)를 이용해 난방이 필요한 계절에도 실내 온도를 효율적으로 유지할 수 있다. 자연과 기술이 조화를 이루는 이 공간은 단순한 목욕 시설을 넘어, 지속 가능한 건축물로서 환경 친화적인 역할을 수행하고 있다.
Write by ChatGPT & 5osa
























The bathhouse is, however, without a doubt, the highlight. Translated into the contemporary formal vocabulary of Vorarlberg's architecture, it convincingly continues the typology referred to as the Swabian Sea tradition. Resting atop the platform - which is supported by 30 reinforced concrete columns - is a simple, single storey structure. It houses a glazed restaurant (whose terrace provides access to the sundeck), as well as changing rooms, showers and WCs.
The numerous storey-high folding shutters, which constitute the facade's outermost layer, and the sliding glass doors behind them allow the building to be used flexibly; because the bathhouse can be opened up completely, or, on the other hand, closed and protected, for example, from inclement weather, a variety of spatial combinations are possible.
The use of wood, however, is a constant: the columns and the beams. as well as the horizontal cladding of the facade, and all floors - inside and out are all of the renewable resource. In a nod to sustainabllity, the architects worked with untreated silver fir from nearby forests. The silver fir, which is exposed to the elements, will weather naturally with the passage of time.
The energy concept is also environmentally sound. The bathhouse is equipped with controlled ventilation and heat-recovery. During the heating season, an air-ta-air heat pump pre warms the incoming air to ensure that the restaurant space can be quickly brought up to a comfortable temperature.
from archdaily


