"건축은 공간, 빛, 그리고 인간의 경험이 조화롭게 만나는 예술이다. 진정한 건축은 단순히 건물을 짓는 것이 아니라, 삶의 방식을 창조하는 것이다." - 루이스 칸 (Louis Kahn)

![]() |
![]() |
![]() |
스윙의 건축학: 도심 속 골프 문화의 혁신을 담아낸 ASWA-PLP 시티 레인지 ASWA-PLP City Range
Situated within the tranquil and upscale neighborhood of the Thonglor area in Bangkok, the PLP City range presents an innovative mixed-use facility designed primarily as a state-of-the art golf simulation center. The building's striking facade is crafted from a combination of concave and convex precast concrete panels, serving aesthetic and functional purposes. These uniquely shaped modules generate a dynamic interplay of shade and shadow throughout the day, ingeniously echoing the graceful arc of a golf swing and creating a visual representation of the sport itself. Steel elements accentuate the entrance and future retail spaces on the ground floor, purposefully designed to mimic the sleek form of a golf driver and featuring semi-reflective materials that enhance their modern appeal.
방콕의 고급 주거지역인 통로(Thonglor)에 위치한 PLP 시티 레인지는 도심 속 골프 문화의 새로운 지평을 여는 혁신적인 복합 시설이다. 골프 스윙의 우아한 궤적을 건축 언어로 재해석한 이 건물은 최첨단 골프 시뮬레이션 센터를 중심으로 다양한 기능을 품고 있다.
골프 스윙에서 영감받은 입면 디자인
건물의 외관은 오목볼록한 프리캐스트 콘크리트 패널로 구성되어 있다. 이 독특한 형태의 모듈은 단순한 장식적 요소를 넘어 미적 가치와 기능적 목적을 동시에 충족시킨다. 하루 종일 시시각각 변화하는 빛과 그림자의 역동적인 상호작용은 마치 골프 스윙의 우아한 궤적을 시각화한 듯한 인상을 준다. 마치 한국의 현대 건축가 최문규의 'Flow' 시리즈나 승효상의 '빈자의 미학'에서 볼 수 있는 절제된 표현력을 연상시키는 이 디자인은 형태와 기능의 완벽한 조화를 이룬다.
1층 출입구와 상업 공간은 세련된 철제 구조물로 강조되었는데, 이는 골프 드라이버의 유려한 형태를 형상화했다. 반사성 마감재를 활용한 이 요소는 건물에 현대적인 감각을 더하면서도 전체적인 디자인 언어와 일관성을 유지한다. 마치 서울 성수동이나 판교의 혁신적인 스타트업 건물들이 산업적 요소와 세련된 디자인을 결합하는 방식과 유사한 접근법이다.
수직적 공간 경험의 정교한 설계
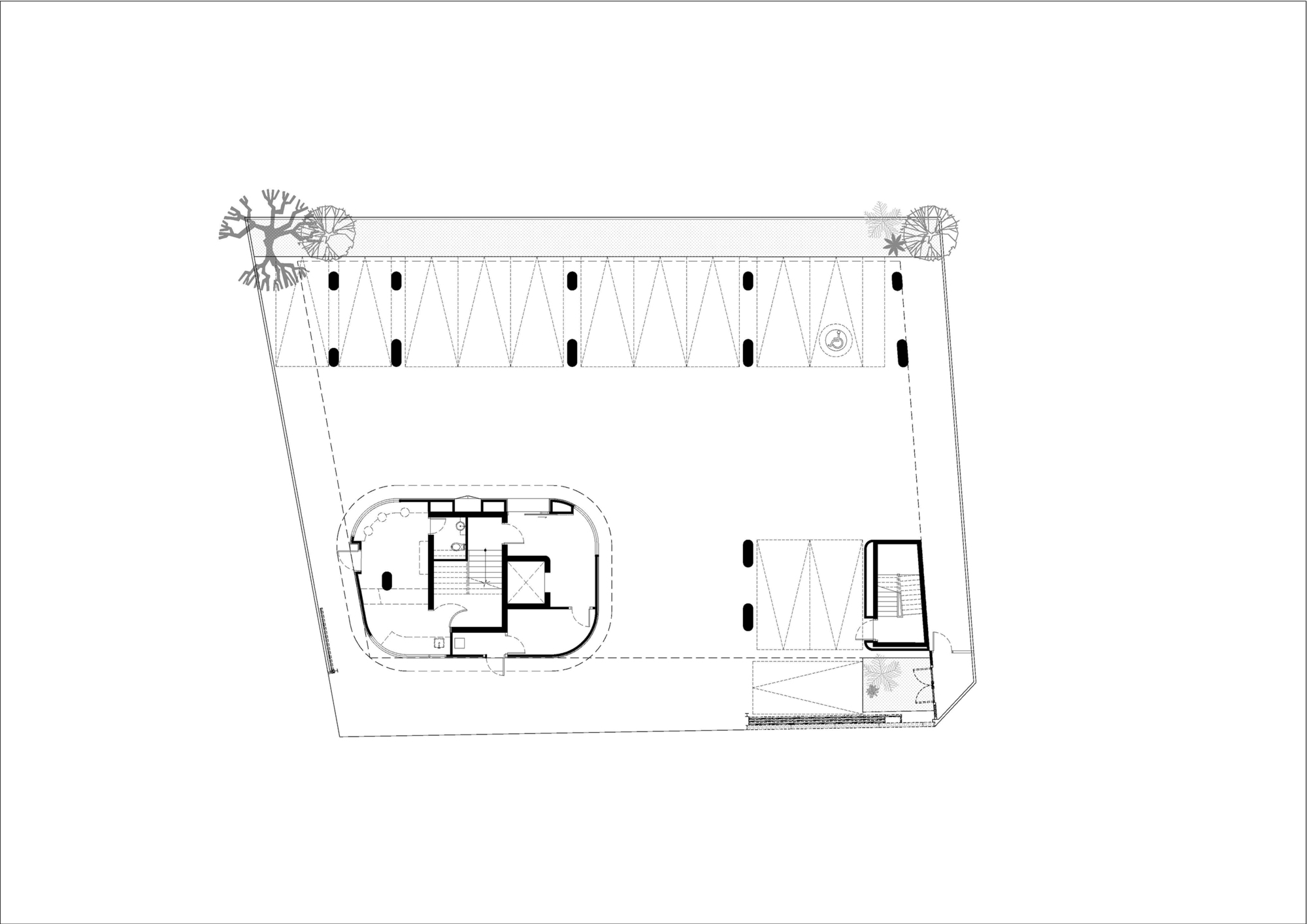
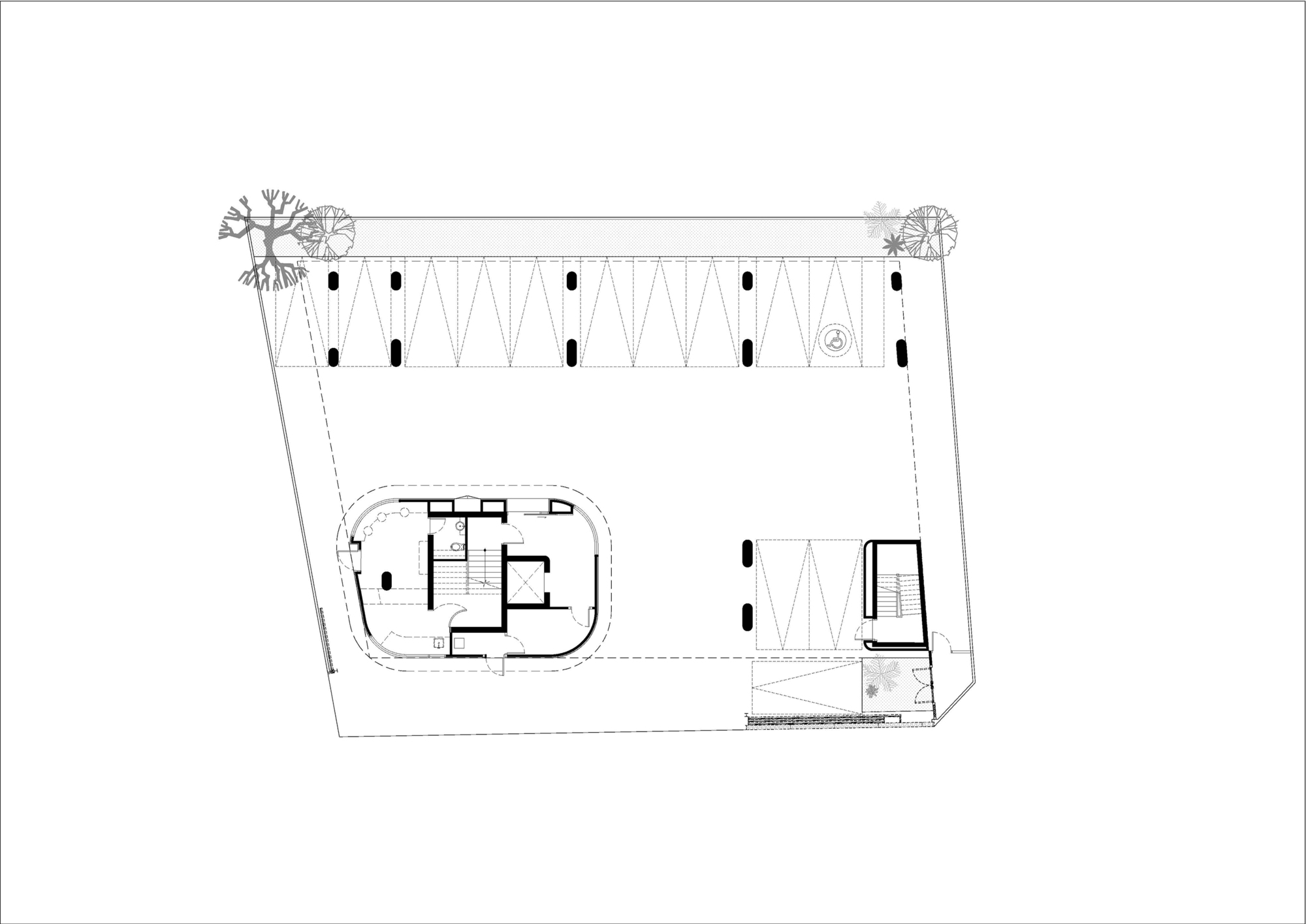
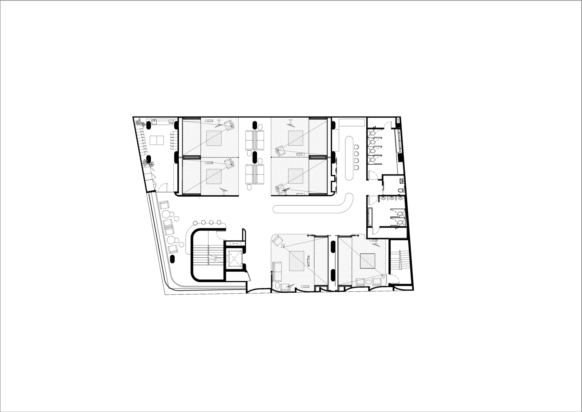
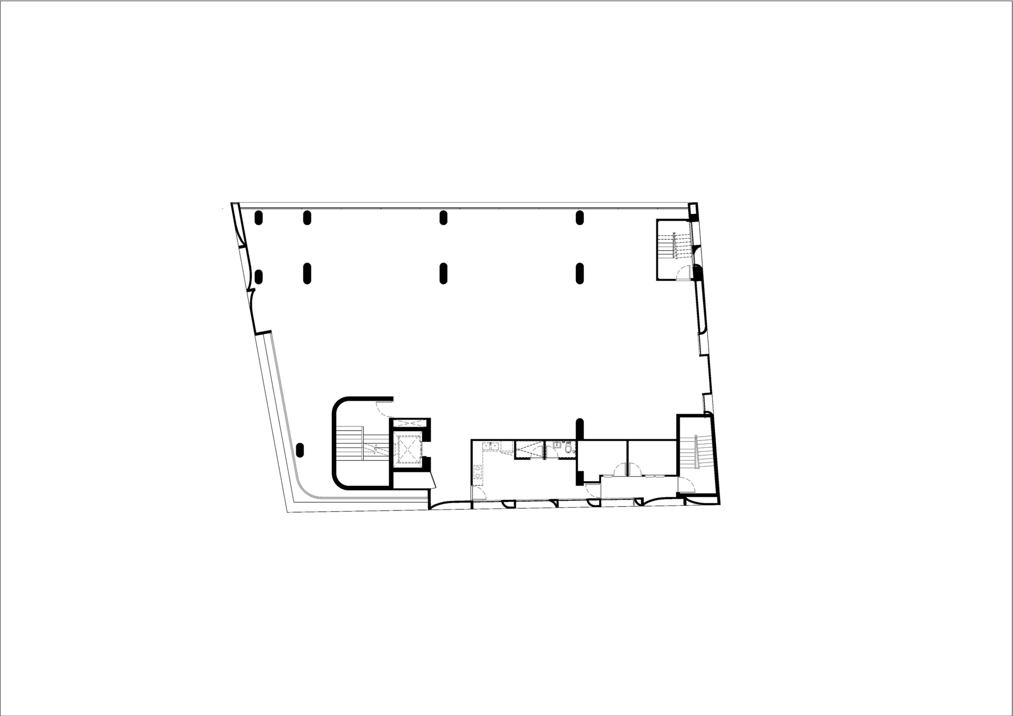
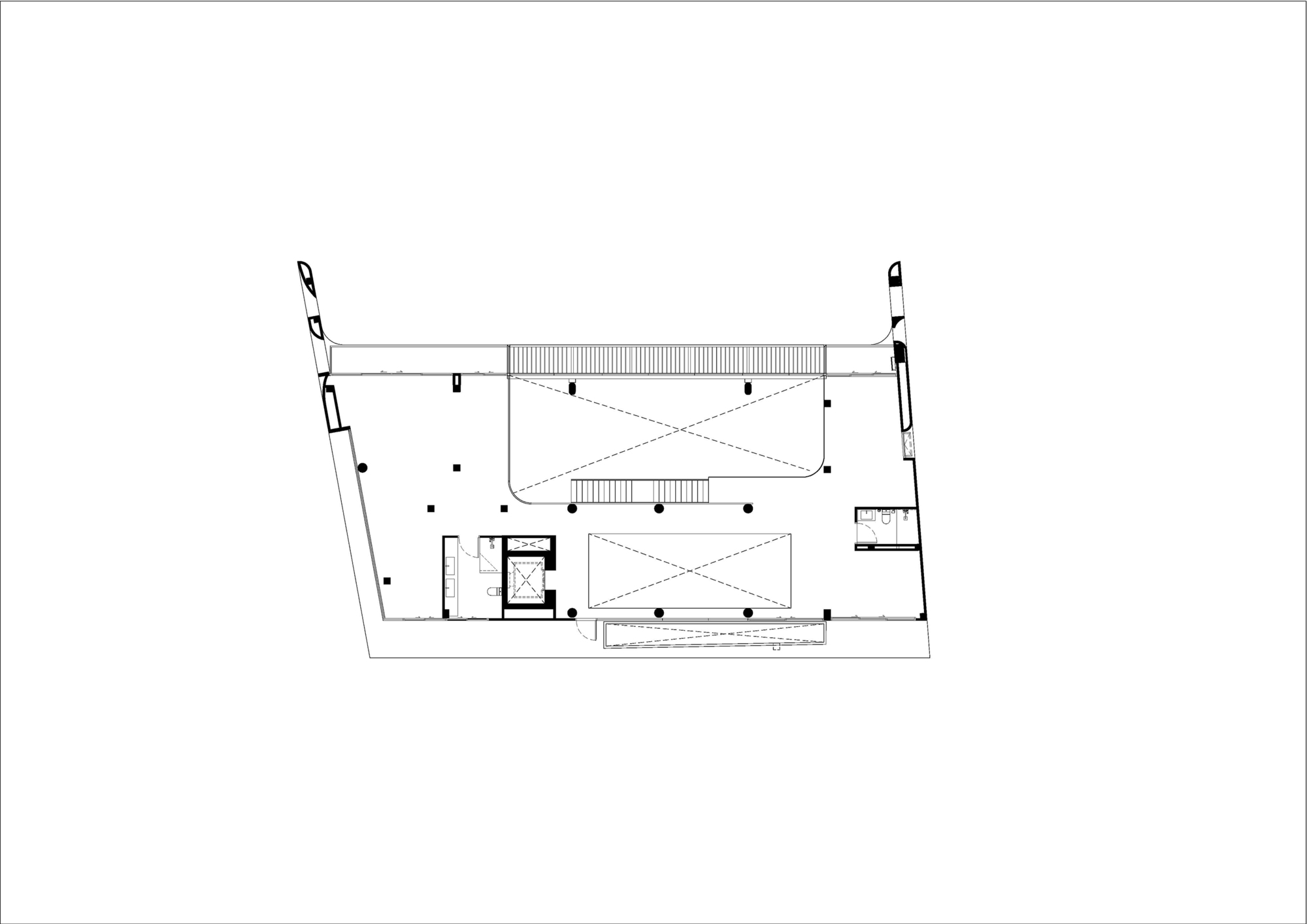
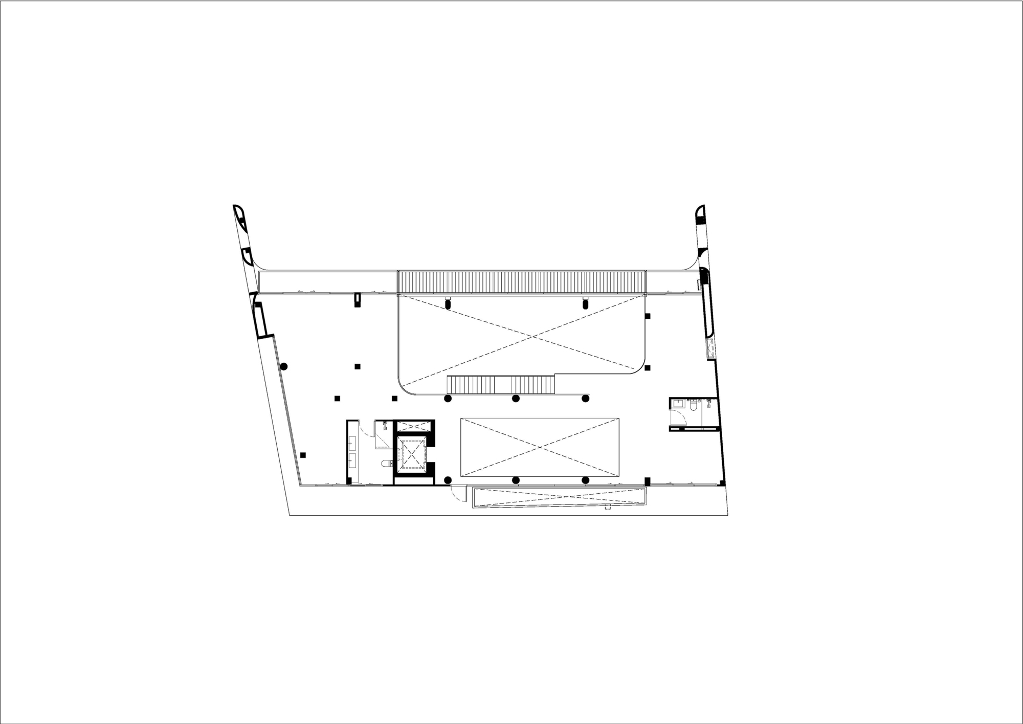
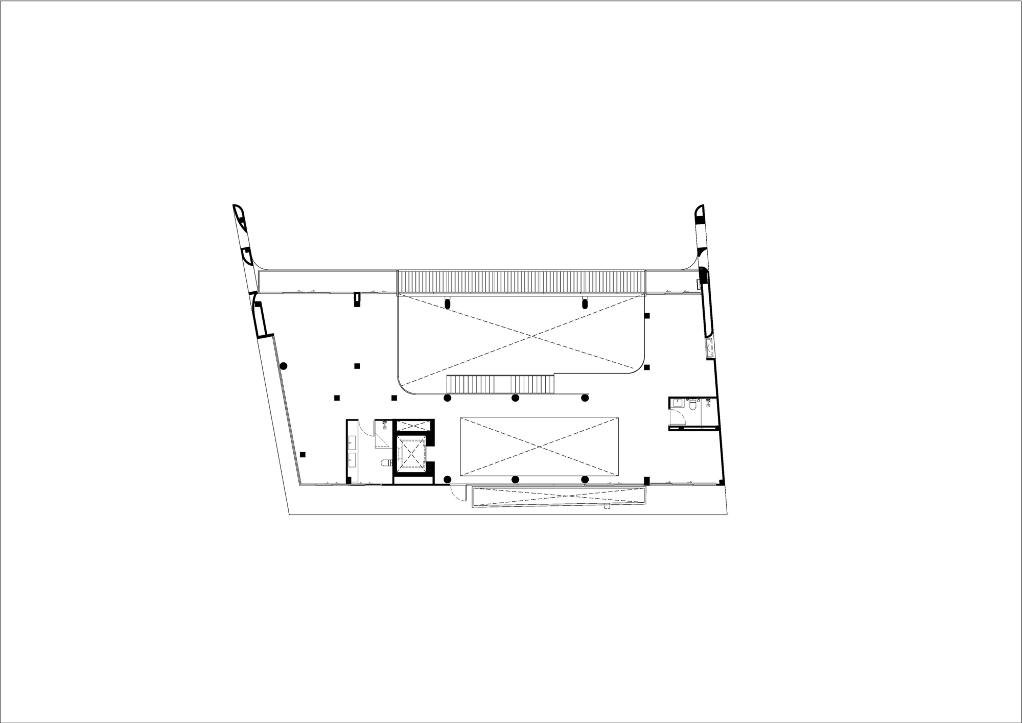
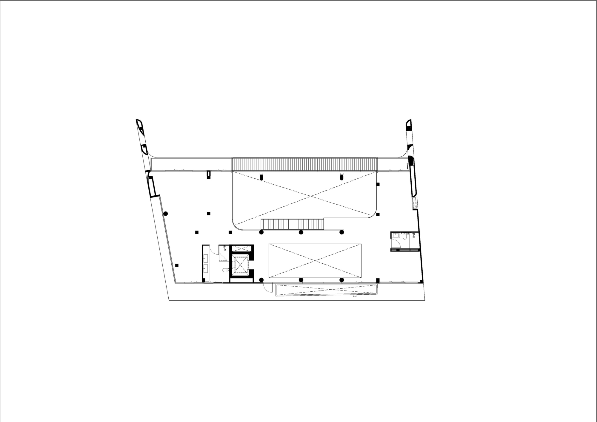
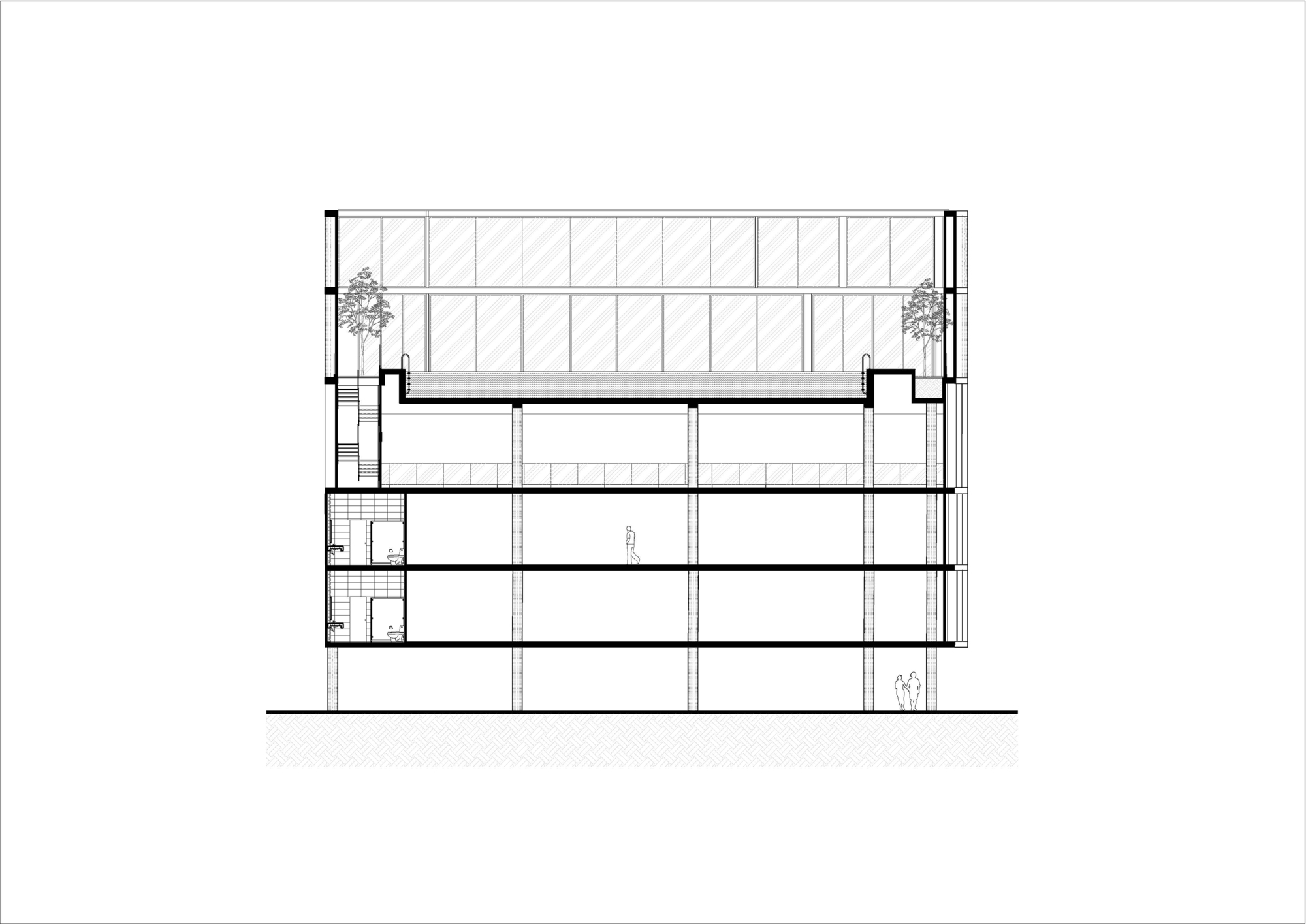
PLP 시티 레인지는 총 6개 층으로 구성되어 있으며, 각 층마다 특화된 기능을 배치하여 공간 활용을 극대화했다. 넓은 메인 로비와 미래 소매 공간이 자리한 1층은 방문객을 맞이하는 첫 관문으로, 현장 주차 시설과 함께 편리한 접근성을 제공한다.
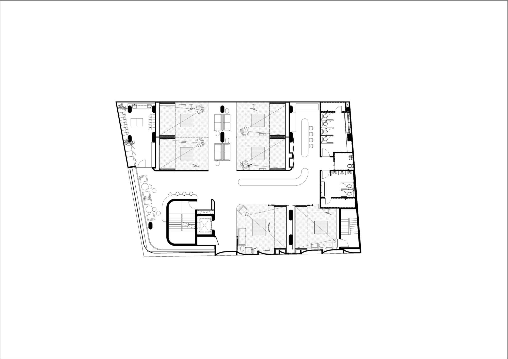
2층으로 올라가면 젊은 골퍼들을 위한 실내 골프 시뮬레이션 공간이 펼쳐진다. 이곳에는 세션 사이에 휴식을 취할 수 있는 아담하지만 아늑한 구내식당도 마련되어 있다. 국내 골프 아카데미나 실내 골프 연습장과 달리, 이 공간은 젊은 세대를 위한 특화된 교육 환경과 휴식 공간을 유기적으로 결합했다.
3층은 프라이버시와 편안함을 중시하는 진지한 골퍼들을 위한 VIP 골프 시뮬레이션 베이, 고급스러운 프라이빗 룸, 그리고 바 공간으로 구성되어 있다. 이 층의 세련된 인테리어는 마치 강남의 고급 회원제 클럽을 연상시키는 품격 있는 분위기를 자아낸다.
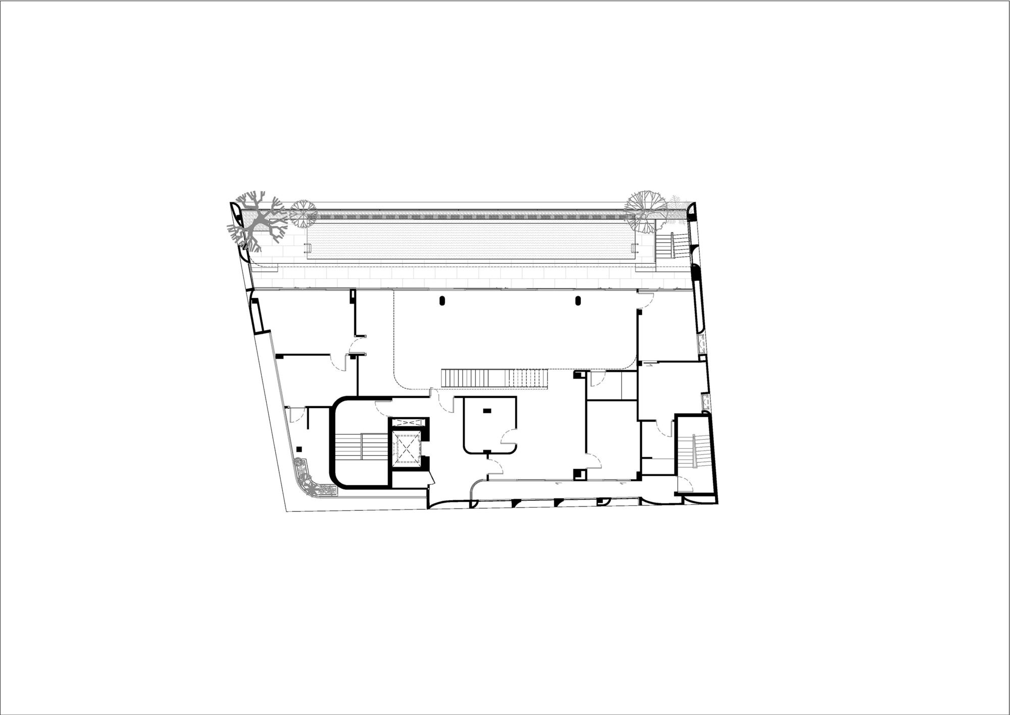
건물의 가장 특별한 공간은 4층에 자리한 반외부형 칩샷 연습장, 퍼팅 그린 구역, 그리고 다목적 스포츠 코트다. 사진에서 볼 수 있듯이 초록색 인조 잔디와 원형 퍼팅 공간이 인상적인 이 층은 자연 환기를 최대한 활용하도록 설계되어, 실내에서도 마치 야외에서 골프를 즐기는 듯한 개방감을 선사한다. 천장의 노출된 설비와 콘크리트 기둥은 산업적 미학과 세련된 스포츠 문화를 절묘하게 결합시킨다.
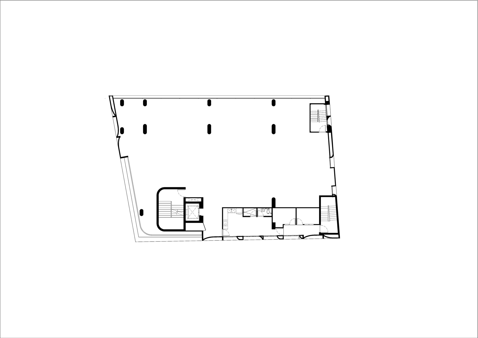
5층과 6층은 통로 지역의 탁 트인 전망을 감상할 수 있는 복층 구조의 기본 골조 공간으로 준비되어 있다. 사진 속 옥상 수영장에서 보이듯이, 이 공간은 거주자들에게 레크리에이션과 여가 활동이 가까이 있는 독특한 주거 경험을 제공한다. 이는 최근 국내에서도 주목받고 있는 '워라밸'을 중시하는 라이프스타일 트렌드와 맞닿아 있다.
기술과 미학의 조화로운 공존
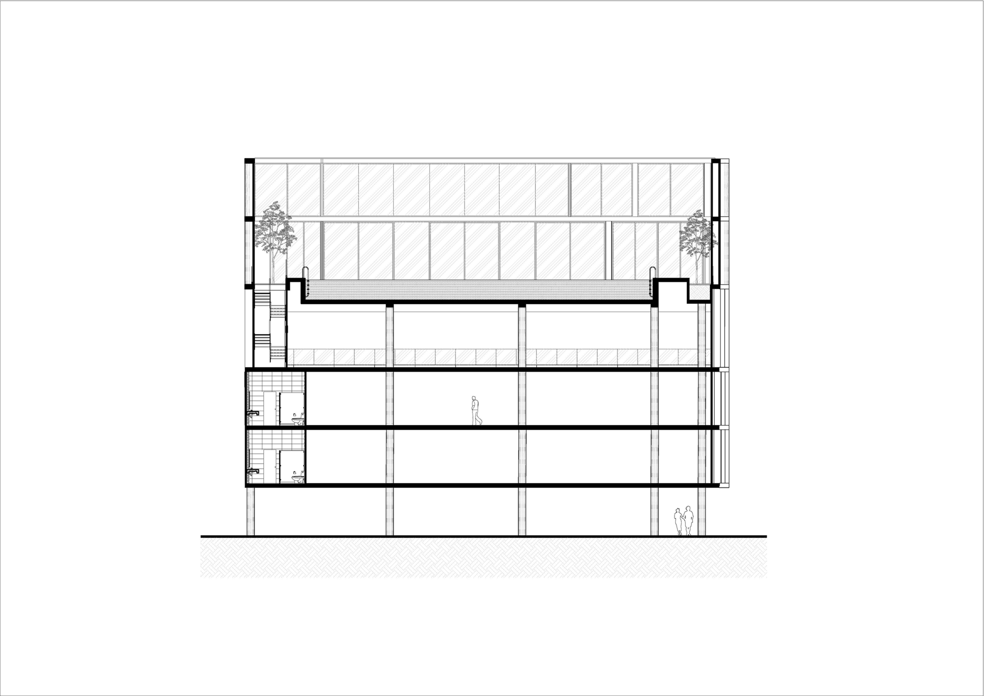
골프 시뮬레이션 장비의 최적 성능을 위해서는 자연광 관리가 무엇보다 중요하다. PLP 시티 레인지는 이러한 기술적 요구사항과 건축적 미학 사이의 균형을 섬세하게 유지한다. 오목볼록한 프리캐스트 콘크리트 패널이 주 건축 자재로 선택된 이유도 여기에 있다. 이 패널들은 시뮬레이터의 정교한 기술이 제대로 작동할 수 있도록 불투명한 내부 환경을 조성한다.
동시에 건물 모서리에 전략적으로 배치된 곡면 투명 유리창은 지면 위에 위치하여 주변 전망과 자연 햇빛의 유입을 극대화한다. 사진에서 볼 수 있듯이 라운지 공간에 배치된 곡선형 소파와 간결한 디자인의 가구들은 건물 외관의 곡선 언어를 내부로 확장시키면서, 골퍼들에게 편안하면서도 세련된 휴식 공간을 제공한다.
지하 주차장 입구로 보이는 은색 곡선형 구조물은 건물의 전체적인 디자인 언어와 일관성을 유지하면서도 기능적 요소를 미적으로 승화시킨 좋은 예다. 이는 건축의 모든 요소가 하나의 통합된 디자인 언어로 표현되어야 한다는 현대 건축의 중요한 원칙을 충실히 따르고 있다.
도시 맥락 속의 새로운 레저 공간
PLP 시티 레인지는 단순한 스포츠 시설을 넘어 도시 생활의 새로운 가능성을 제시한다. 이 건물은 그동안 교외나 리조트 지역에 한정되었던 골프 문화를 도심 속으로 가져와, 접근성과 편의성을 높이면서도 최첨단 시설과 세련된 환경을 제공한다.
한국의 도시 환경에서도 시사하는 바가 큰 이 프로젝트는 제한된 도심 공간에서 레저와 업무, 주거가 공존할 수 있는 새로운 모델을 제시한다. 국내에서도 강남의 골프존 타워나 판교의 스포츠 복합시설들이 유사한 개념으로 발전하고 있지만, PLP 시티 레인지는 더 적극적으로 건축적 표현과 기능적 혁신을 결합했다는 점에서 주목할 만하다.
골프라는 특정 스포츠의 요구사항을 충족시키면서도, 그것을 넘어서는 건축적 표현과 공간적 풍요로움을 추구한 PLP 시티 레인지는 스포츠 시설의 새로운 가능성을 열어 보인다. 방콕의 세련된 통로 지역에 자리한 이 건물은 골프와 건축의 창의적 만남이 만들어낸 도시 속 오아시스로서, 현대 도시인의 삶에 새로운 여유와 활력을 불어넣고 있다.
Write by Claude & 5osa
















































With the six function stories, each floor has a specific function, ensuring efficient space utilization while catering to a diverse clientele. The ground floor welcomes visitors with a spacious main lobby and future retail area, complemented by on-site parking facilities to accommodate guests. Ascending to the second floor, visitors will find a youth indoor golf simulation area tailored for young athletes, complete with a small but cozy canteen that provides refreshments and a place to relax between sessions.
On the third floor, the experience elevates further with a VIP golf simulation bay, luxurious VIP rooms, and a bar area that offers a more exclusive environment for serious golfers seeking enhanced privacy and comfort. One of the standout features of the building is the fourth floor, which boasts a semi-outdoor chip, a putting green area, and a multi sport court. This floor is designed to take advantage of natural ventilation, allowing an open-air feel while providing key golfing practice facilities.
The fifth and sixth floors have been prepared as bare-shell double volume spaces with panoramic views of the Thonglor area for the owners' residences, which creates unique opportunities for residents to live near recreation and leisure activities.
To address the critical issue of managing natural light an essential consideration for maintaining the optimal functionality of golf simulation equipment—concave and convex precast concrete panels were carefully selected as the primary construction material. These panels are engineered to provide an opaque interior that supports the sophisticated technology of the simulators. The building's design ingeniously incorporates a transparent curved glass opening strategically located at the corner of the building, positioned above ground level to maximize views and influx of natural sunlight, thereby enhancing the overall experience for guests while maintaining the necessary internal conditions for the golf simulations.
from archdaily


