나의 마음을 끄는 것은 자유롭게 흐르는 감각적인 곡선이다 - 오스카 니마이어

![]() |
![]() |
![]() |
Bernardes Arquitetura-Pascoal Vita Building
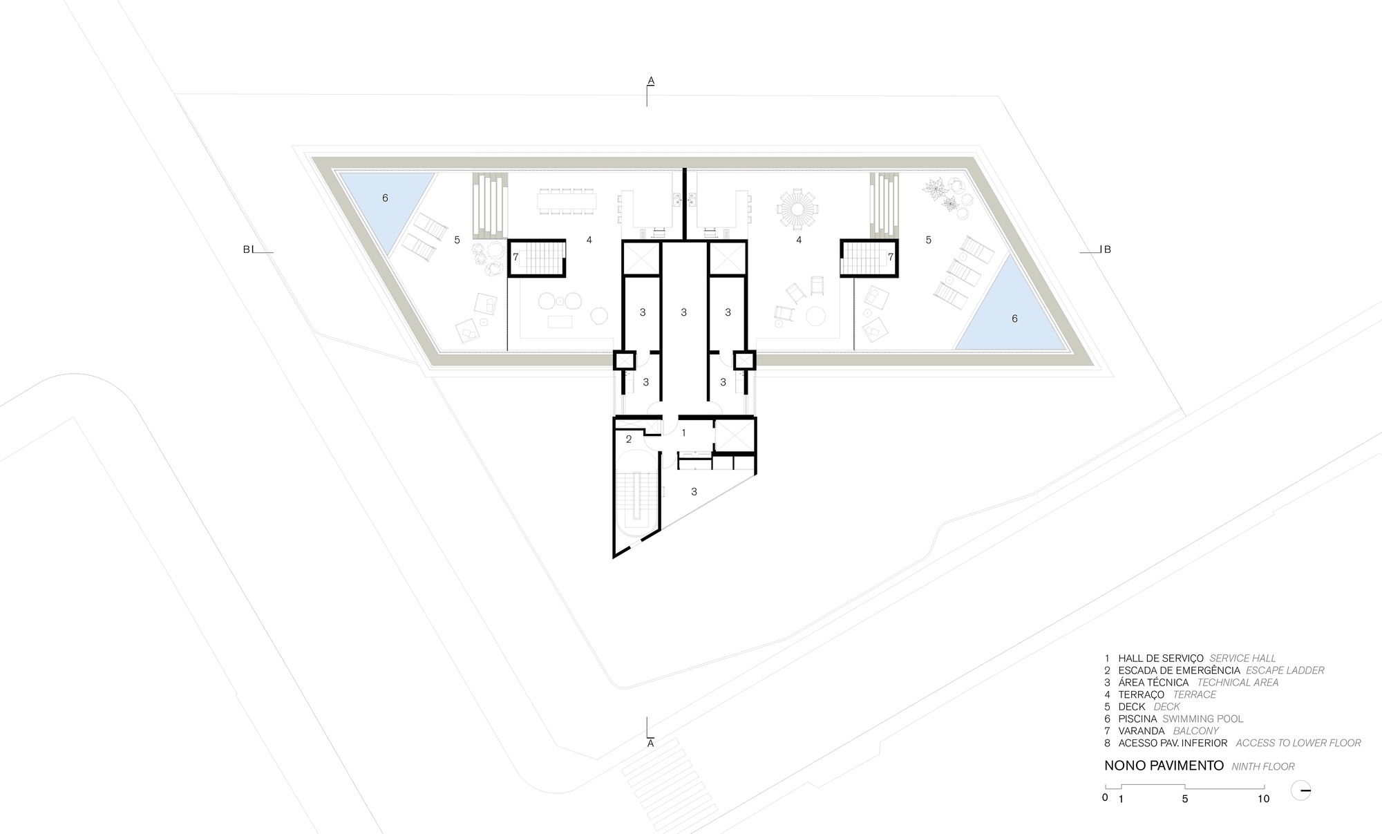
도시 맥락과 기하학적 형태의 조화
상파울루 서부, 두 가로가 교차하는 모퉁이에 들어선 파스코알 비타 빌딩은 특유의 강렬한 기하학적 조형미로 단번에 시선을 사로잡는다. 자칫 차갑게 보일 수 있는 이 엄격한 건축적 형태는 건물 전체를 에워싸며 주변 풍경과 자연스럽게 이어지는 풍성한 정원 덕분에 한결 부드러운 인상을 자아낸다.
이 프로젝트는 대지가 처한 주변 환경의 조건에 기민하게 대응한 결과물이다. 저층 주거지가 밀집한 조용한 동네와 인접해 있다는 전략적 입지, 그리고 사다리꼴 형태의 대지가 가진 고유한 특성을 영리하게 활용했다. 그 결과 넉넉한 발코니를 품고 석양이 지는 서쪽을 향해 탁 트인 조망을 누릴 수 있는 유려한 주거 공간이 탄생했다.
보행자를 배려한 유기적 진입 공간
가로변 공공 영역과 건물이 만나는 경계에는 구불구불한 유기적 형태의 정원과 투과성 높은 금속 루버가 부드럽게 자리한다. 이는 거주자와 방문객을 주출입구로 자연스럽게 안내하는 쾌적한 보행로를 형성한다. 진입로를 따라 걷다 보면 도로보다 단을 높인 1층에 닿게 되는데, 이는 외부의 시선으로부터 프라이버시를 보호하는 동시에 거주자에게 한층 시원한 개방감을 제공하기 위한 건축적 배려다.
반투명한 C-글래스로 구획된 1층 공간 안쪽으로는 헬스장, 사우나, 라운지를 비롯해 25미터 길이의 랩풀 등 공용 레저 시설이 알차게 마련되어 있다. 이 공간들은 정원 사이사이에 놓여 유연한 동선으로 연결되며, 날렵하고 우아한 캐노피가 그 위를 다정하게 덮고 있다. 조경은 유기적인 곡선을 그리며 건축의 직선적인 기하학과 선명한 대조를 이룬다. 1층 위로 조성된 정원 테라스에는 다양한 수종이 자라나 단지 내 녹지와 휴식 공간의 범위를 한층 더 넓혀준다.
시각적 쾌적함을 극대화한 타워 파사드
메인 타워는 층당 두 세대가 평면을 공유하는 구조이며, 모든 공용 생활 공간을 서쪽으로 향하게 해 탁월한 조망을 극대화했다. 파사드의 개구부 리듬을 섬세하게 조율하는 것은 수직과 수평 프로파일로 엮어낸 금속 외골격이다. 이 외부 구조물은 식재 공간의 배수 시스템을 자연스럽게 품어낼 뿐만 아니라 전동 블라인드를 지지하는 핵심 역할을 수행한다. 특히 바람 센서가 달린 이 블라인드 시스템은 세대별로 일사량과 프라이버시를 개별 조절하게 해주어 건물의 전반적인 친환경 성능을 높이는 데 크게 기여한다.
경쾌한 율동감을 부여한 듀플렉스 특화 세대
건물의 가장 아래층과 꼭대기 층은 듀플렉스 형태의 두 세대로 구성된다. 유닛 전체를 넓게 감싸는 C자형 발코니는 가로에서 올려다볼 때 자칫 무거워 보일 수 있는 건물의 거대한 볼륨에 가벼운 율동감을 불어넣는다. 옥상층 역시 아래층과 결을 같이 하는 건축적 논리를 따르지만, 바비큐 그릴과 다이닝 공간, 수영장이 갖춰진 전용 테라스로 자유롭게 오갈 수 있도록 평면의 짜임새를 더욱 섬세하게 다듬었다.
Write by Gemini & Jean Browwn


























Implanted on a corner lot between two streets in the western part of São Paulo, the Pascoal Vita Building stands out for its striking geometry, softened by the gardens that surround the entire construction and establish a continuity with the surrounding landscape.
The project directly responds to the conditions of the surroundings and takes advantage of the strategic location — next to an exclusively residential neighborhood with low rise buildings — and the trapezoidal shape of the lot to create apartments with generous balconies and wide views of the sunset.
At the street level, the meeting between the public space and the building is defined by winding gardens and a permeable metal enclosure, creating a generous and pleasant walkway that guides residents and visitors to the main entrances. The pedestrian entrance leads to the ground floor, elevated in relation to the street to ensure more privacy and better visual enjoyment. At this level, areas delineated by C Glass organize the common leisure areas — gym, sauna, lounge, and a 25-meter lap pool — distributed among the gardens and connected by a fluid pathway, covered by a slender canopy.
The landscaping follows organic lines, contrasting with the geometry of the architecture. Above the first floor, a garden terrace with a wide diversity of species expands the green and leisure areas of the complex.
In the main tower, two apartments per floor share the typical floor plan, with all social areas facing west, maximizing the enjoyment of the view. A metallic exoskeleton, composed of vertical and horizontal profiles, organizes the rhythm of the openings in the facade, integrates the drainage of the planters, and supports the motorized shades. Equipped with wind sensors, these elements allow for individual control of shading and privacy, contributing to the building's environmental performance.
The first and last floors of the building are occupied by two duplex apartments, whose wide “C” shaped balconies wrap around the units, giving lightness to the volume when viewed from the street. On the roof, they follow the same logic as the lower levels, with minor adjustments to the layout to accommodate the staircase to the private terrace, equipped with a barbecue grill, gourmet area, and pool.
from archdaily
'House' 카테고리의 다른 글
| * 침묵하는 매스가 빚어낸 내면의 풍경 [ TACO taller de arquitectura contextual ] Casa Ceniza (0) | 2026.04.23 |
|---|---|
| * 지우지 않고 깊어지는 집 [ Lawless & Meyerson ] Belleview (0) | 2026.04.22 |
| * 시간의 집: 생물학적 시계로서의 건축 Natura Futura - The House of Time (0) | 2026.04.13 |
| * 가르다 호수와 교감하는 이중 파사드의 풍경depaolidefranceschibaldan architetti- EF(Villa EF) (0) | 2026.04.09 |
| * 검은빛의 묵직함과 자연의 조화 [ Taller Alberto Calleja ] Casa Mavra (0) | 2026.04.07 |


