"건축은 보이지 않는 것을 보이게 하는 것이다." 안도 다다오

![]() |
![]() |
![]() |
TACO taller de arquitectura contextual-House of Ashes
기하학적 매스의 침묵과 내밀한 풍경의 탄생
카사 세니사는 거리의 번잡함으로부터 한 걸음 물러난 거대한 기하학적 건축물입니다. 단단하게 닫힌 외벽 안으로는 수공간과 식물이 어우러진 고요한 중정의 풍경을 오롯이 품고 있습니다. 밖을 향해서는 침묵하지만 내부 정원을 향해서는 활짝 열려 있어, 발걸음을 옮길수록 집의 진정한 표정이 서서히 드러나는 내향적 건축의 아름다움을 보여줍니다.
발끝에서 일깨우는 감각의 전이
현관으로 향하는 길은 맑은 하늘과 푸른 식물, 솟아오르는 분수와 화산 자갈이 어우러진 전이 공간에서 시작됩니다. 발밑에서 기분 좋게 바스락거리는 자갈 소리는 밖에서의 복잡한 마음을 씻어내며 집이 지닌 깊고 차분한 분위기를 예고합니다. 이윽고 이중문으로 짜인 현관에 들어서면 공간을 감도는 고요함이 본격적으로 펼쳐집니다.
시선을 이끄는 축과 공간의 전개
집의 한가운데를 가로지르는 긴 동선은 전체 공간을 매끄럽게 이어주는 척추와 같습니다. 이 길을 따라 걷다 보면 시선은 자연스럽게 햇살이 비치는 중정과 정원, 그리고 거주자의 애정이 담긴 예술 작품에 가닿습니다. 이는 집 안 구석구석을 천천히 거닐며 공간의 숨겨진 매력을 하나씩 발견해 나가는 탐험의 과정이기도 합니다.
빛과 물이 빚어낸 명상의 장소
가족이 모이는 거실과 다이닝 구역은 실내 수영장을 품은 시원한 수직 공간을 중심으로 넓게 펼쳐집니다. 높은 천창을 통해 쏟아지는 빛과 물결에 반사된 잔물결은 공간에 생동감을 불어넣습니다. 곳곳에 마련된 내부 중정은 식물과 자연 바람을 실내로 들이며 기후에 유연하게 대응하고, 거주자에게 훌륭한 명상의 자리를 내어줍니다.
동선이 교차하는 삶의 중심
다소 개방적으로 꾸며진 주방은 온 가족이 머무는 거실과 지극히 사적인 침실을 자연스럽게 이어주는 징검다리입니다. 주차장과 보조 공간, 1층의 침실을 하나로 묶어줄 뿐만 아니라 위층으로 향하는 계단과도 바로 맞닿아 있습니다. 단순히 음식을 만드는 곳을 넘어 집 안의 모든 움직임이 교차하고 모이는 따뜻한 심장과도 같은 곳입니다.
바깥의 빛을 끌어안은 사적 공간
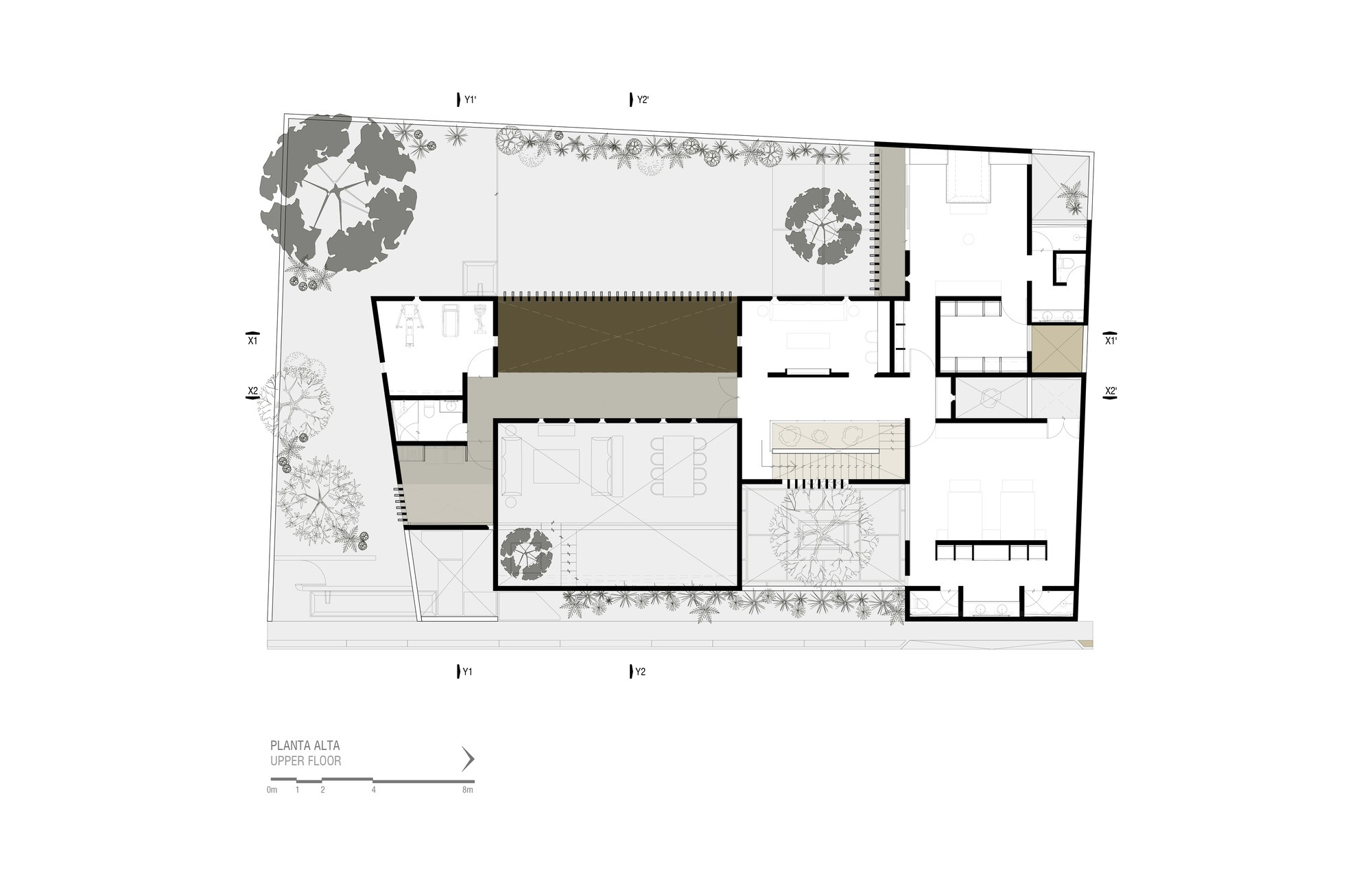
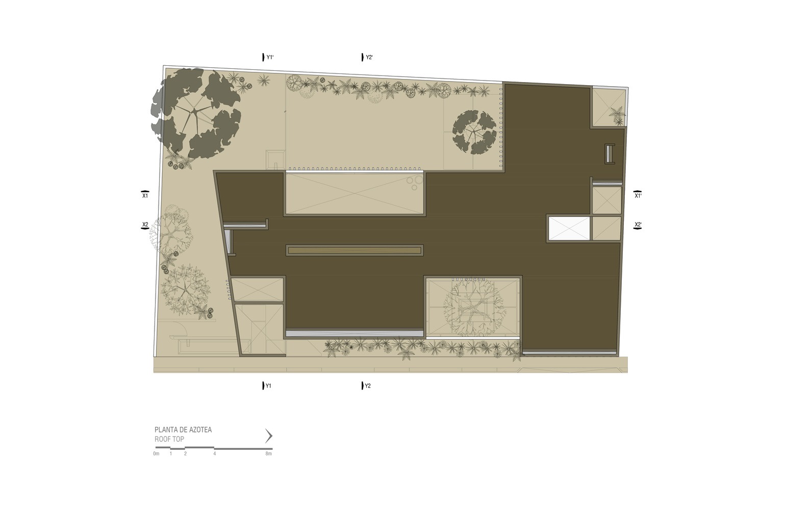
위층에는 두 개의 침실을 비롯해 운동실과 세탁실, 그리고 아담한 테라스가 자리합니다. 모든 방은 자연광을 듬뿍 머금도록 배치되었으며, 창 너머로는 1층의 중정과 시선이 자연스럽게 이어집니다. 덕분에 오롯이 혼자만의 시간을 보내는 곳임에도 집 전체가 공유하는 시원한 개방감을 한껏 누릴 수 있습니다.
화산 자갈과 나무가 남긴 깊은 여운
건물을 감싸는 묵직한 질감은 검게 칠한 거친 무늬의 콘크리트, 검은색 안료를 섞어 바른 스터코, 그리고 시더 나무의 온기가 만나 완성됩니다. 특히 화산 자갈은 바깥 정원의 바닥을 채우는 것을 넘어 콘크리트 벽면의 거친 표면에도 녹아들며 이 집만의 독특한 건축 언어를 만들어냅니다. 이러한 광물 본연의 질감은 공간 전체에 깊이감을 더하며 묵직한 무게중심을 잡아줍니다.
어둠 속에서 피어나는 빛과 색채의 온기
이토록 차분하고 어두운 바탕색 위로 멕시코 전통의 분홍빛과 자카란다꽃의 짙은 보라색 벽면이 불쑥 나타나 생기 넘치는 대비를 이룹니다. 여기에 노란색 유리창을 통과한 햇살이 실내 곳곳에 따스한 물감을 풀어놓으며 시간의 흐름을 빛의 춤사위로 그려냅니다. 마침내 중정을 채운 푸른 잎사귀와 보랏빛 라벤더가 묵직한 건축물에 부드러운 숨결을 불어넣으며 아름다운 내면의 풍경을 완성합니다.
Write by Claude & Jean Browwn































Casa Ceniza is a single family home conceived as a massive geometric volume that protects itself from the street while creating an internal landscape of patios, water, and vegetation. Closed off from the outside and open to gardens and interior patios, the house proposes an introspective architecture where spaces are gradually revealed along the journey.
Access occurs through a transition patio where the sky, vegetation, a fountain, and volcanic gravel prepare the inhabitant for the interior experience. The sound of the stones underfoot accompanies this initial moment of the journey, introducing a sensory dimension that emphasizes the introspective character of the home. From this point, a double-door vestibule marks the entrance and anticipates the tone of the project.
A longitudinal axis organizes the house and articulates the distribution of spaces. Along this path, visual highlights direct attention toward patios, gardens, and pieces from the owners’ art collection, creating a spatial sequence that invites exploration and progressive discovery of the home.
The social area develops around a double height space with an indoor pool. The overhead light and reflections from the water define the character of the environment, while the interior patios allow for controlled entry of vegetation, light, and natural ventilation, responding to the climate and generating spaces for contemplation.
The kitchen, designed as a semi public space, serves as a transition between the social areas and the more intimate zones of the house, linking the garage, service area, and a ground-floor bedroom. At this point, vertical circulation is also integrated, connecting to the upper floor and reinforcing the role of the kitchen as a hub within the home.
On the upper floor, there are two bedrooms, a gym, a laundry room, and a terrace. Each space is oriented to take advantage of natural light and establish visual connections with the interior patios, maintaining spatial continuity and a sense of openness toward the interior of the house.
The materiality of the project combines serrated concrete painted black, stucco with integrated black pigment, and cedar wood. The volcanic gravel is part of the construction language and appears in various elements of the project: in outdoor patios, integrated into site cast concrete, and in the texture of the serrated walls. This mineral presence adds texture and depth to the surfaces while defining the chromatic foundation of the project.
Against this dark, mineral palette, some walls in Mexican pink and jacaranda color introduce specific chromatic accents that contrast with the sobriety of the volume. Complementarily, windows with yellow glass filter natural light and project warm tones indoors, generating luminous variations throughout the day.
Vegetation brings contrast and softness to the ensemble through green foliage and lavender blooms that integrate into the interior patios.
FROM ARCHDAILY
'House' 카테고리의 다른 글
| * 지우지 않고 깊어지는 집 [ Lawless & Meyerson ] Belleview (0) | 2026.04.22 |
|---|---|
| * 기하학과 자연의 유려한 공존 [ Bernardes Arquitetura ] Pascoal Vita Building (0) | 2026.04.14 |
| * 시간의 집: 생물학적 시계로서의 건축 Natura Futura - The House of Time (0) | 2026.04.13 |
| * 가르다 호수와 교감하는 이중 파사드의 풍경depaolidefranceschibaldan architetti- EF(Villa EF) (0) | 2026.04.09 |
| * 검은빛의 묵직함과 자연의 조화 [ Taller Alberto Calleja ] Casa Mavra (0) | 2026.04.07 |


