
박공지붕형태, 선형으로 이루어진 평면, 노출콘크리트 외장.
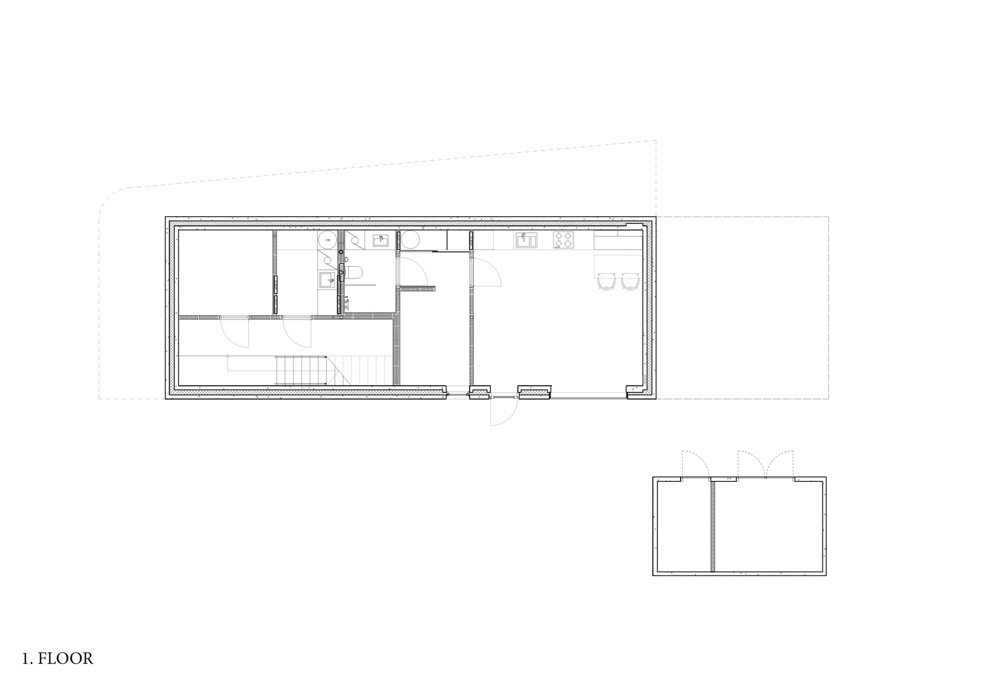
경사지를 따라 위치한 하우스는 단순한 형태와 평면구조로 무게감 있는 건축을 전달한다.
내부에 위치한 직선계단과 별개로 외부계단은 각층과 외부를 직접 연결하는 동선역활을 수행한다. #비스포크
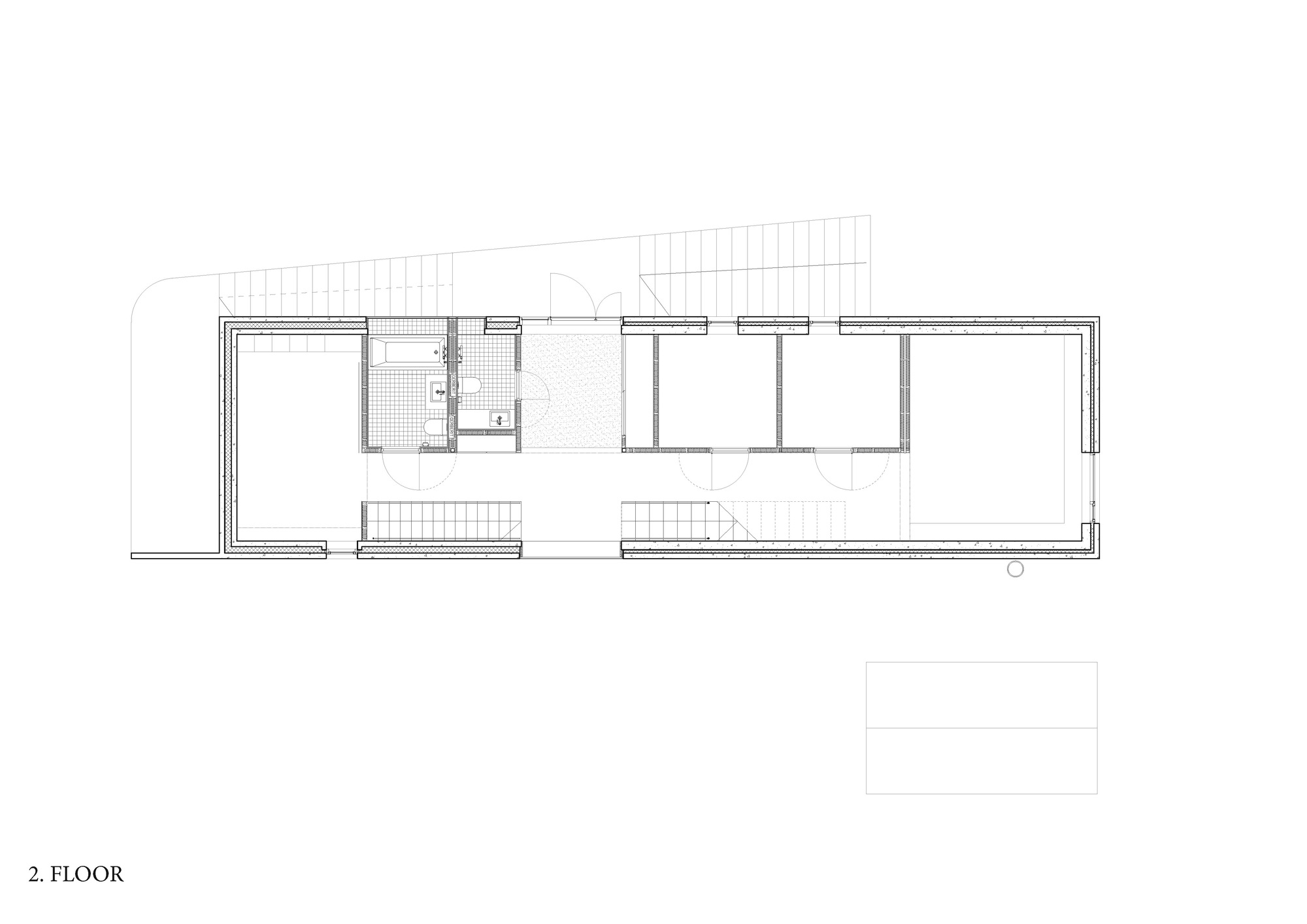
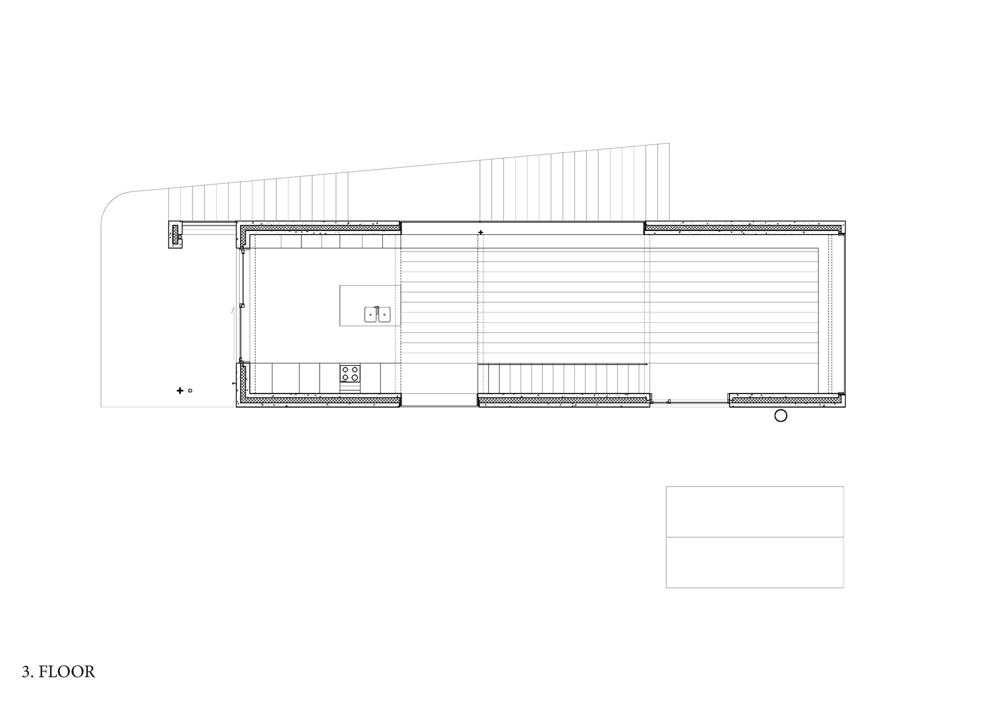
This detached residence near Sandnes town centre, on the southwest coast of Norway, features a maritime climate with abundant rainfall. The plot slopes steeply to the east, dropping about 7 metres and overlooking the town. The poured concrete structure encloses roughly 2368 square feet of floor space. To maximise the view and the evening sunshine the house has three levels, the top floor being flush with the plot's highest point, to the west. The primary living areas are here, with direct access through the kitchen to the upper garden.
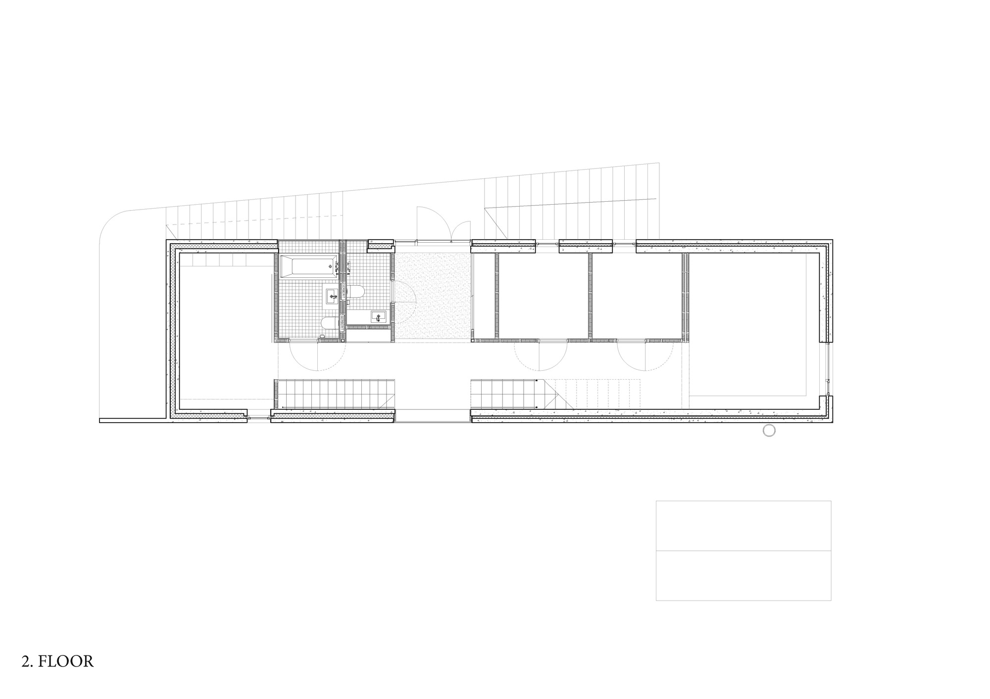
The kitchen exit is recessed to provide shelter as you step into the garden. Rainwater is conducted on one side to a standing water feature. A mezzanine wooden floor above the kitchen offers a no-nonsense study nook. All non-opening windows are sealed directly into the concrete. The rectangular windows have broad concrete sills to provide seating. Garden steps lead to the main entrance on level 2, where there are three bedrooms and an entertainment lounge. One of the two bathrooms is suitable for guests. All floors on this level are finely polished concrete screed.
Light fittings are moulded into the ceilings. Internal walls are constructed of pinewood panels and matching doors. Level 1 contains the life-support functions for the main residence, including storage facilities and laundry room. A rental apartment offers the option to let. This bottom level is recessed six metres beneath levels 2 and 3 to create a double carport. Apart from the main building, there is also a complementary shed to house the recycling bins and cycles.



*섬머하우스 [ Judith Benzer Architektur ] Austria Summer House
섬머하우스는 지역의 건축적 성향을 고스란히 이어갑니다. 박공지붕형태의 심플한 형태는 농장의 커다란 오두막 또는 와인셀러를 닮아 있습니다. 섬머하우스의 외형적 특징은 슬라이딩 셔터를
5osa.com

















from archdaily 파트너스 활동을 통해 일정액의 수수료를 제공받을 수 있음
'House' 카테고리의 다른 글
| *55우드 레지던스 [ TANK ] 55 housing units in nantes (0) | 2021.01.19 |
|---|---|
| *까사 리오 [ PAULO MERLINI ARCHITECTS ] CASA RIO (0) | 2021.01.18 |
| *마프라 하우스 [ João Tiago Aguiar Arquitectos ] Mafra House (0) | 2021.01.04 |
| *이탈리안 스타일 인테리어 studio 10 completes italian style interior refurbishment in china with arched openings (0) | 2020.12.29 |
| *원목마감 인테리어 [ Aixopluc ] JEC House (0) | 2020.12.28 |