
따뜻한 감성으로 마감되는 집은 어떤 느낌일까? 할아버지의 유산을 새롭게 재구성한다. 기존 레이아웃은 유지하며 필요한 부분만 최소한으로 더하고 보수한다.
나무의 질감이 그대로 전달되는 내부 인테리어는 따뜻한 감성을 풍긴다.
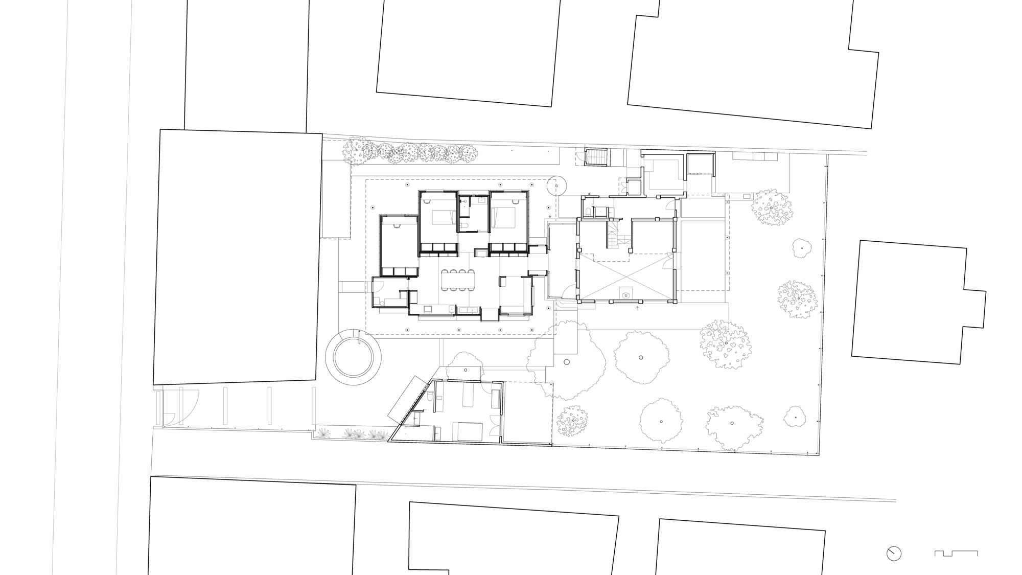
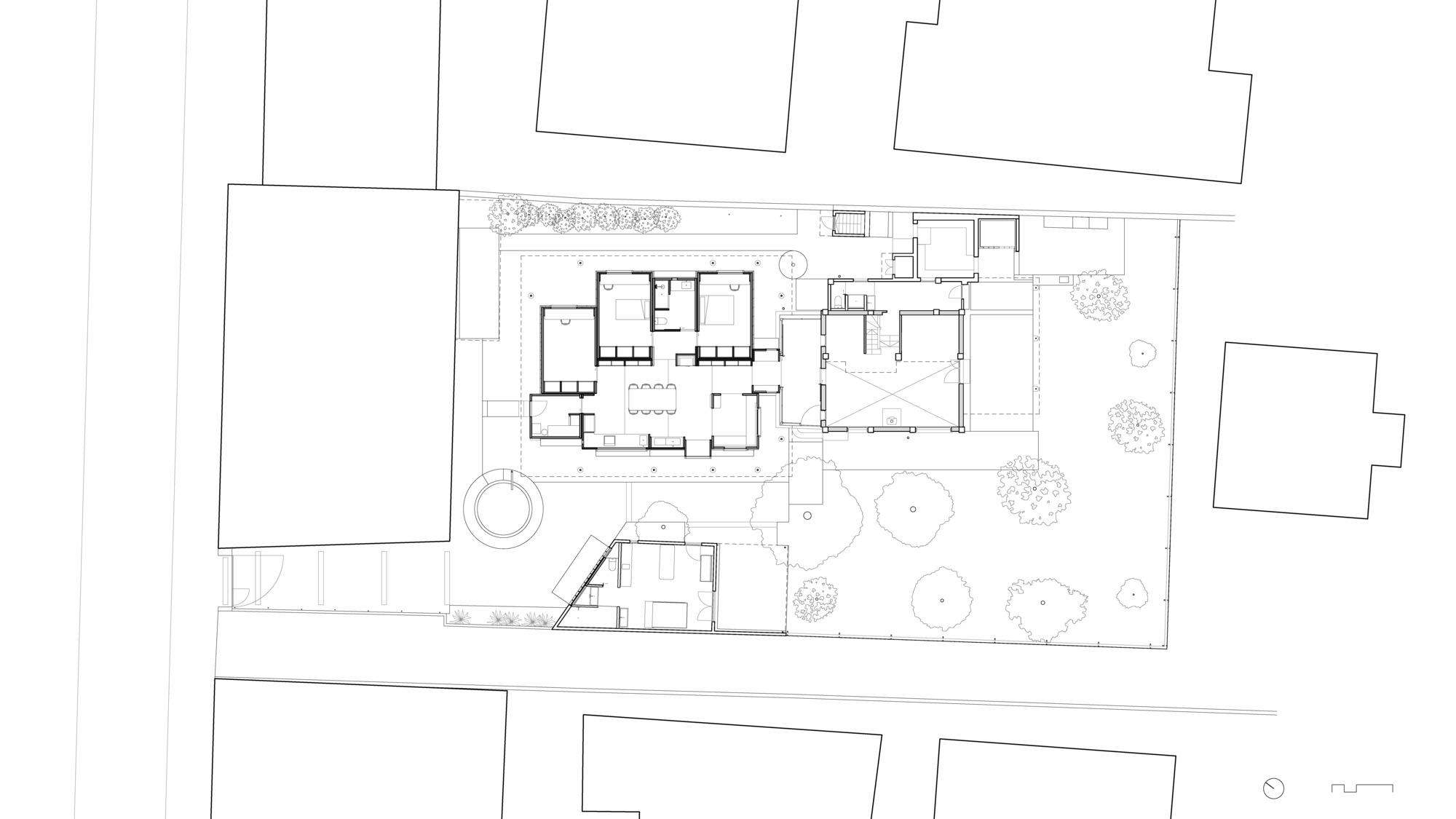
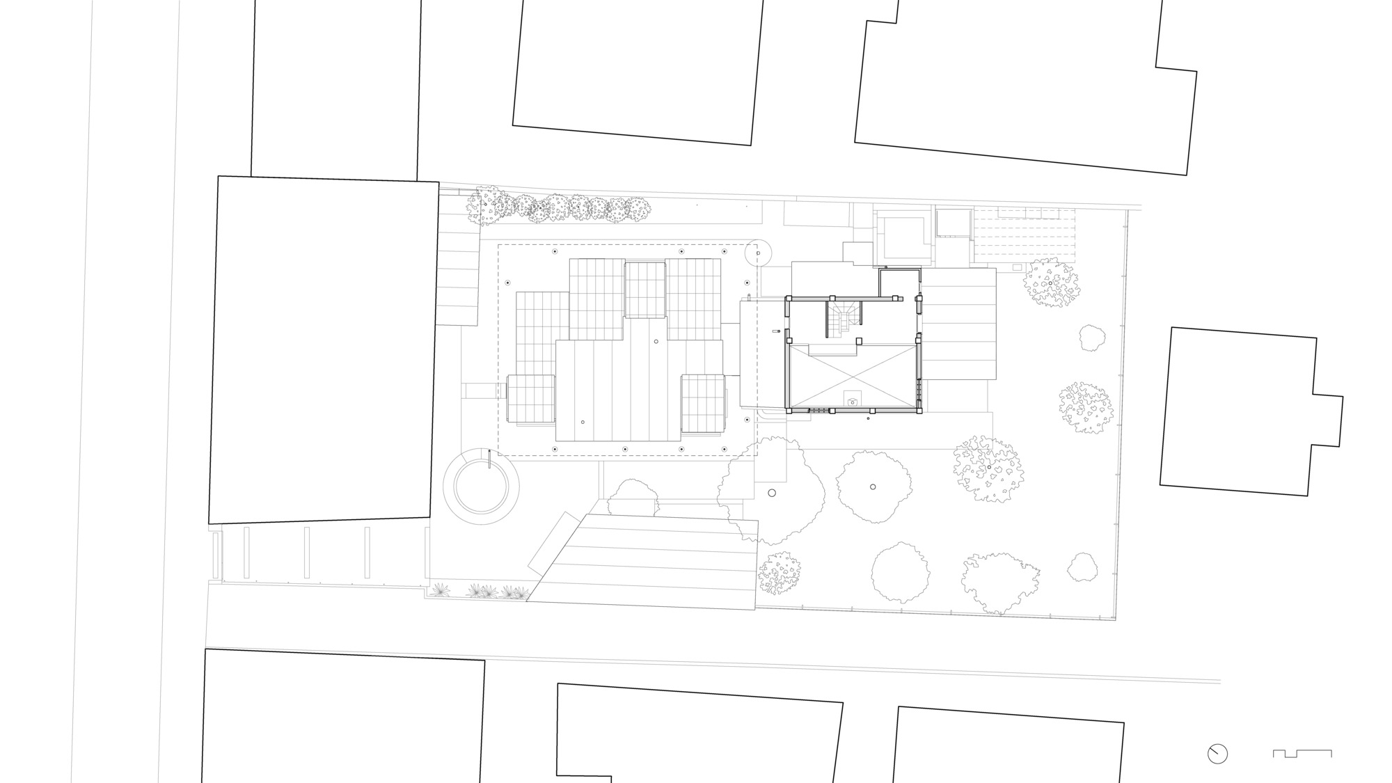
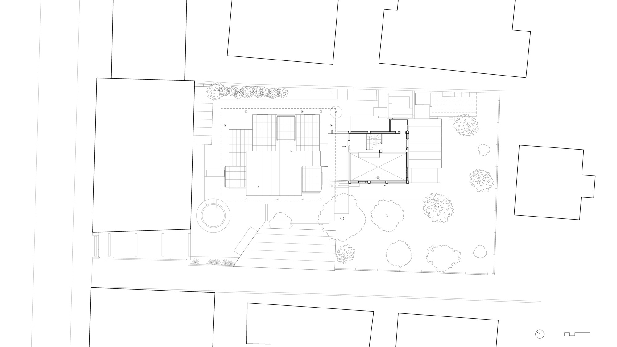
A 1000 m2 plot at a five-minute walk from the center of Reus. In the middle of the site, a self built country house. A hidden misfit gem. The late grandfather bought this mas many years ago. He spent the second part of his life taking care of it. Using his skills as a watchmaker, he patiently assembled additions, welding, screwing, and growing all kinds of rooms, huts, shacks, porches, fig trees, palm trees, plants, and shades: An outdoors abode, a second house around the former one-floor self-built construction. The house was in a perpetual state of construction, a never-ending laborious enjoyment for its dwellers. And then in 2016 the father died, and the place was empty. A year after the father’s passing, the son, his wife, and daughter -the JECs- decided to move back in. Their only initial demand was that they wanted to live on the ground floor. The JECs first question was whether it was better to keep the existing mas, or to demolish it and build a new structure instead?
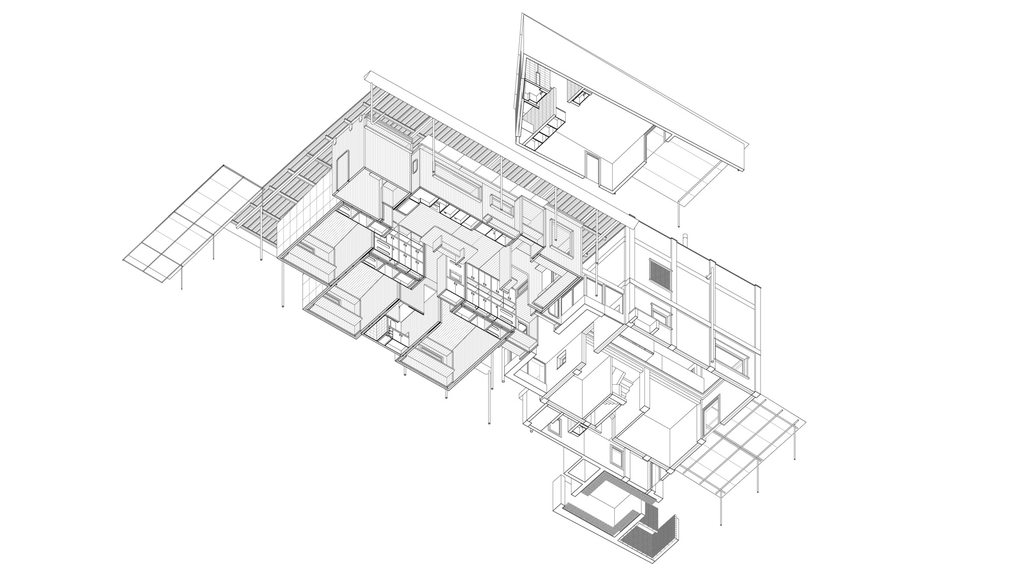
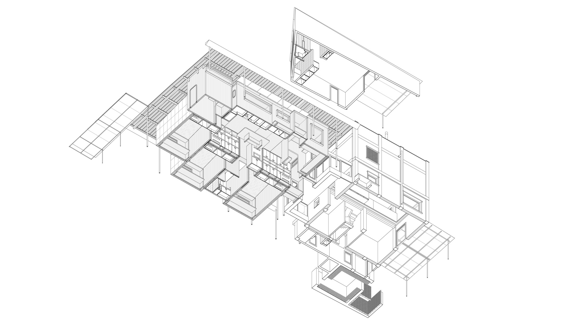
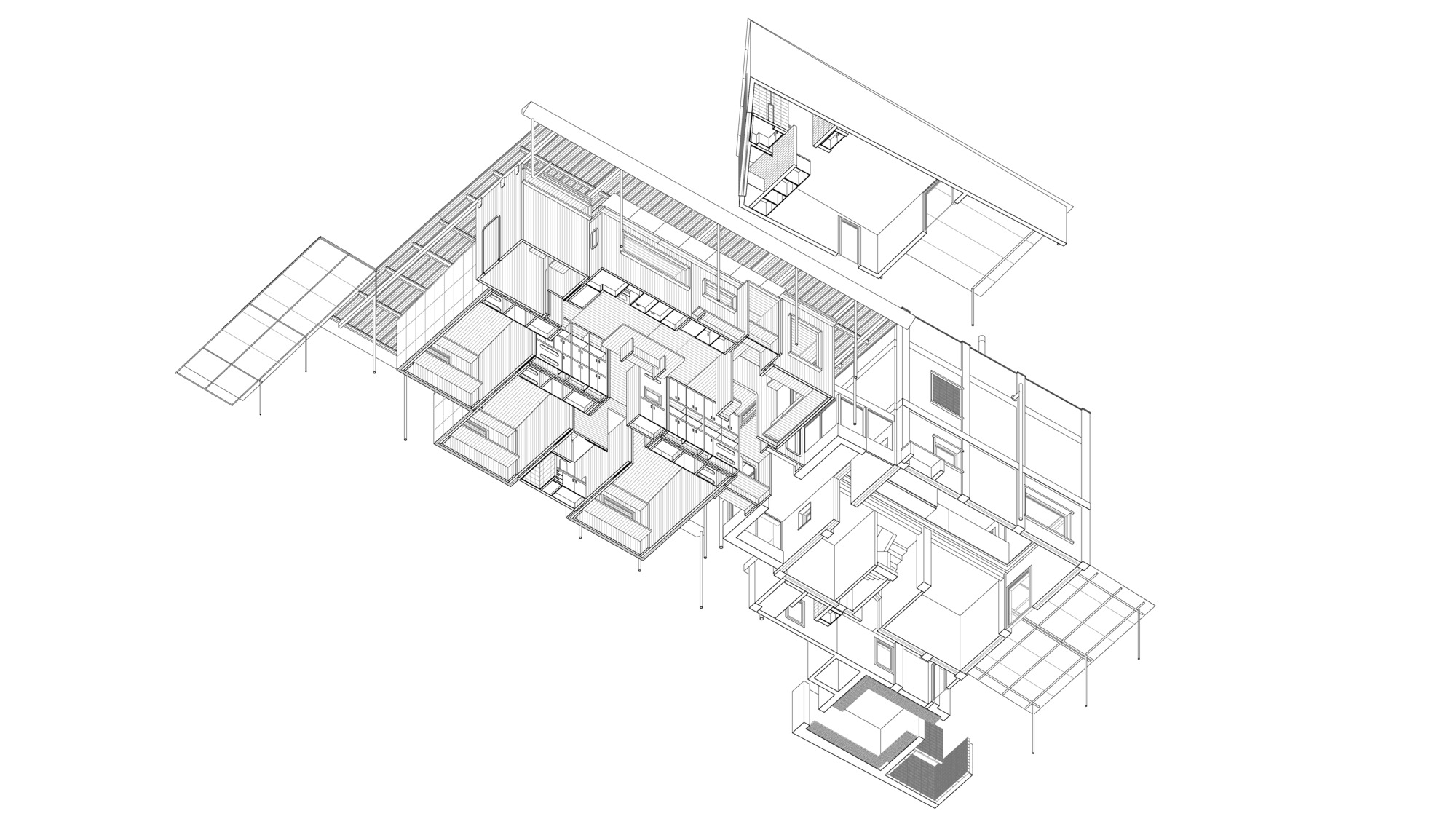
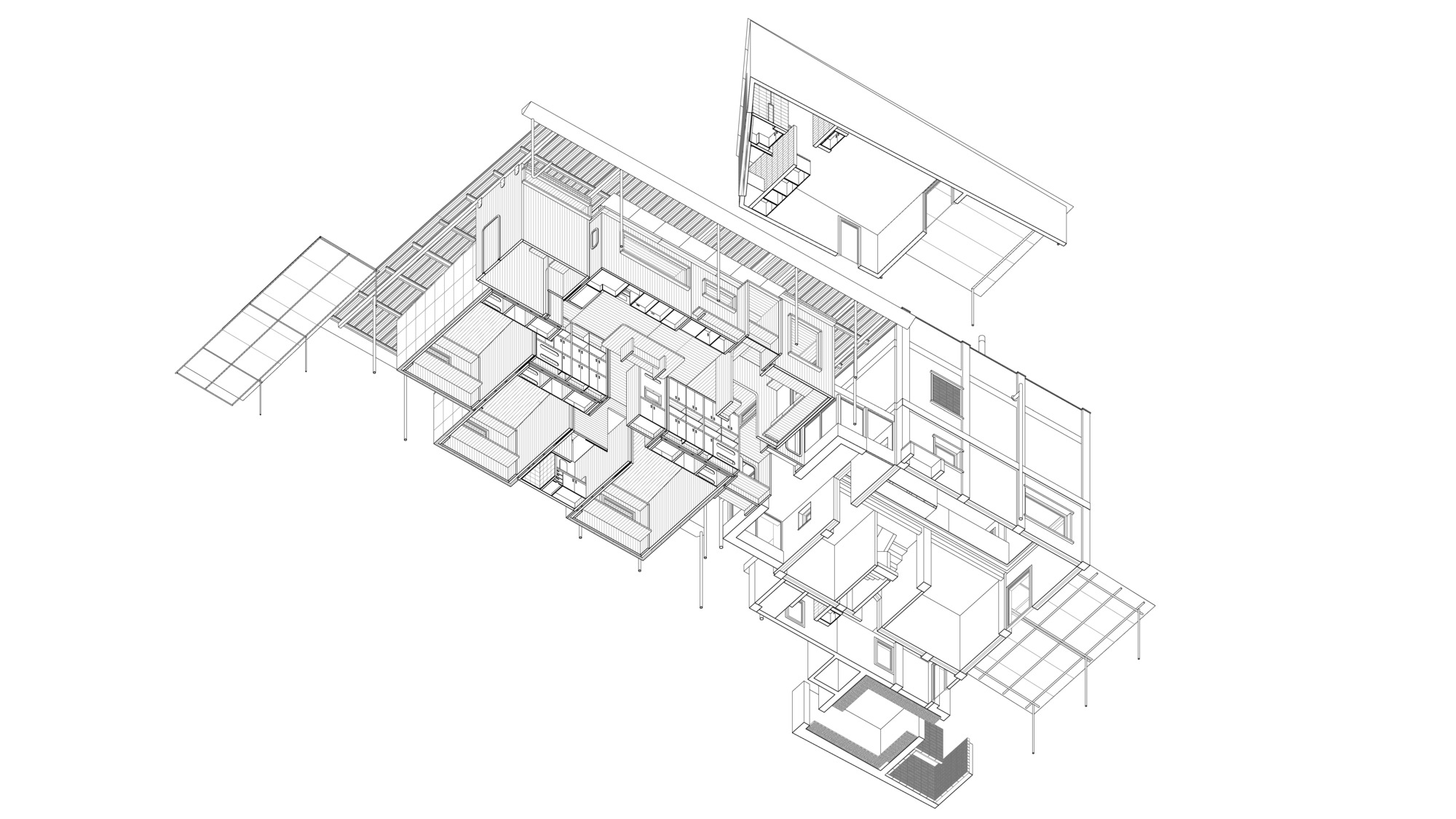
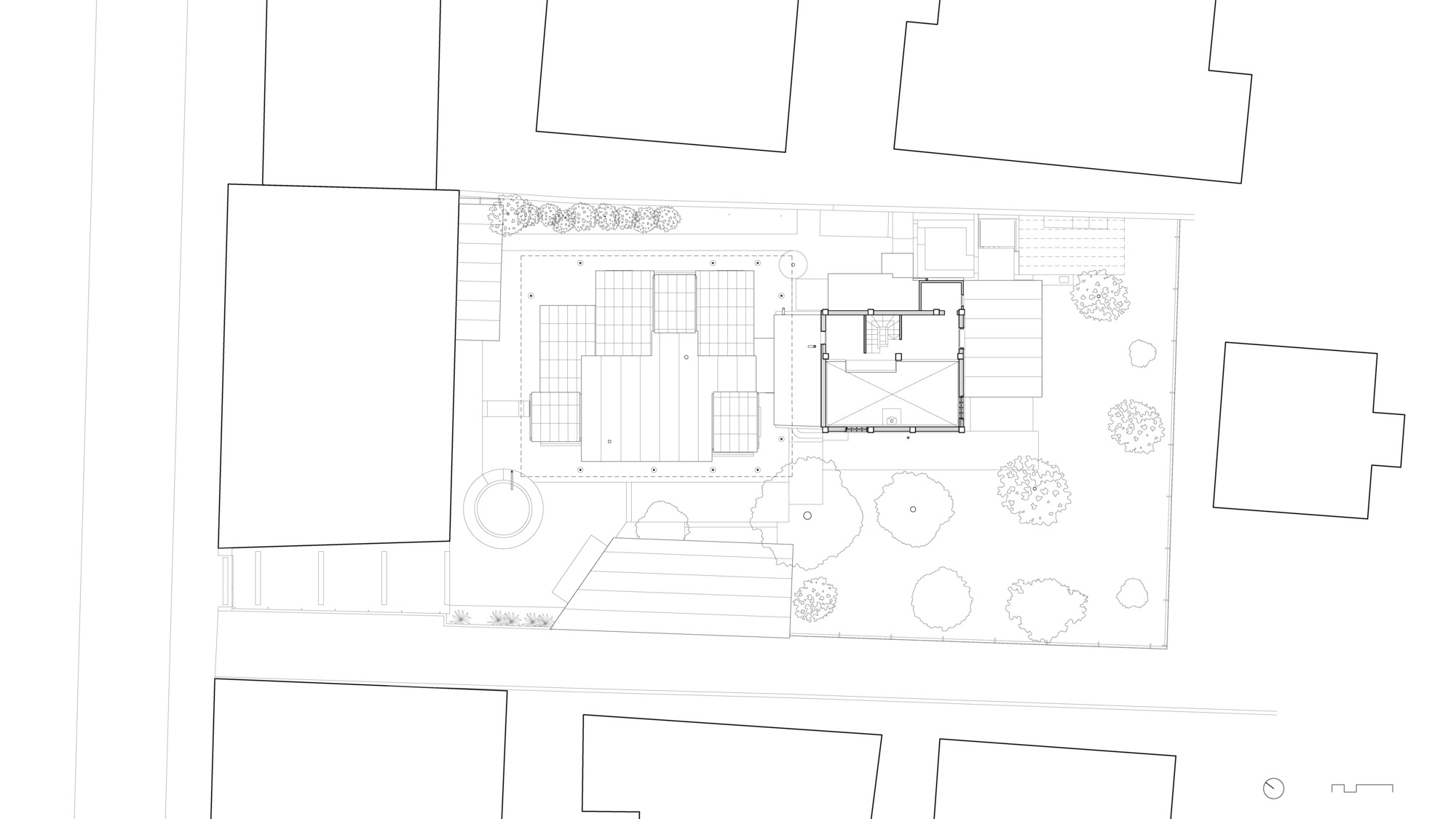
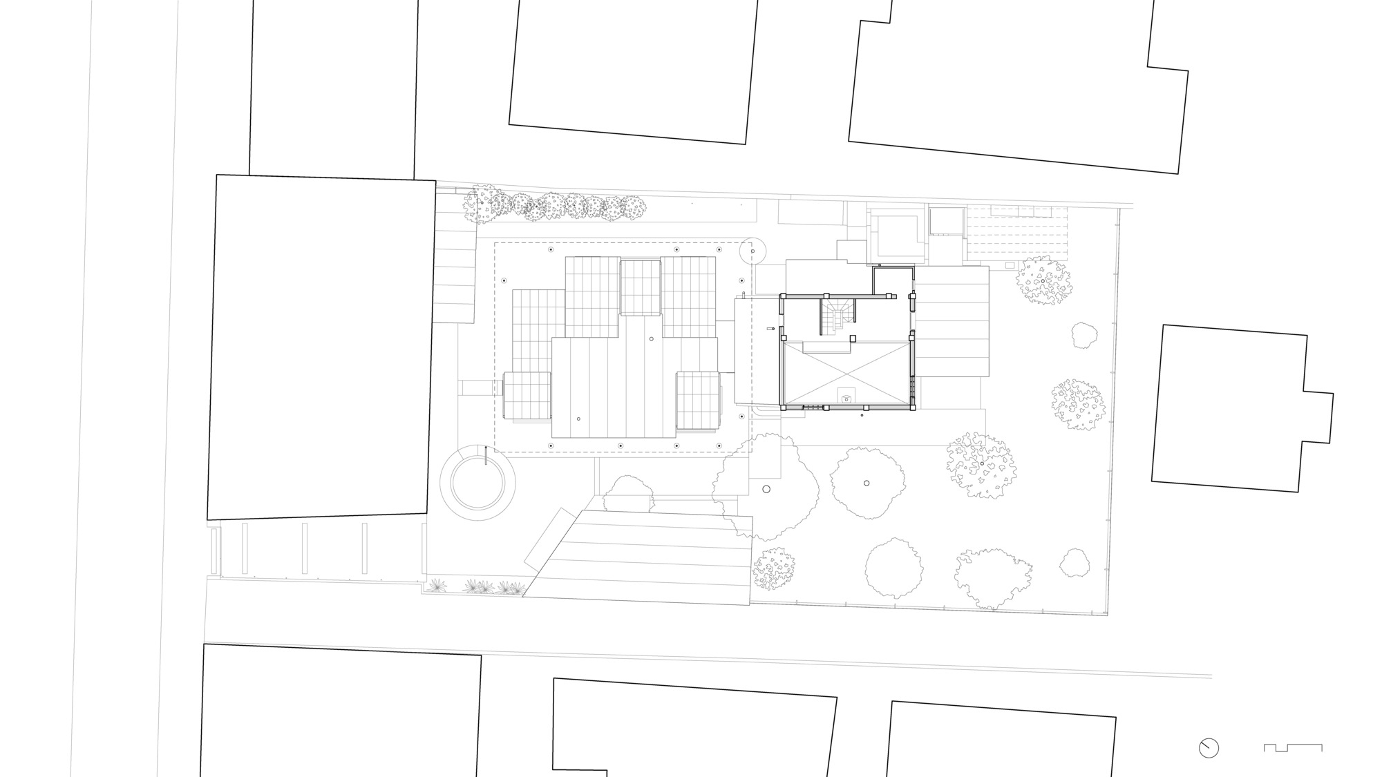
The value of this place was not the existing main house. Although its structure was quite in good shape, what made it inhabitable were its self-built garden structures. These outdoor shelters are the real quality of this place. They are impossible to design. Probably they are impossible to reproduce. They are extremely fragile, to the point that it seems impossible to repair them. What we needed to find was a way to up-cycle these structures, and add some more inhabitable air among them. Our approach was not to touch what we wanted to keep -we would just paint it.
So neither we kept the existing mas as is, nor we totally demolished it. Instead, we placed more inhabitable air in the worst area of the plot, which was often shaded by the main house. The extension is family to the existing porches. In order to minimise the impact of this new structure, we kept its weight light as a porch, using CLT panels and thin steel tubes. The presence of quite tall apartment blocks on the northern and north-western side protects the site from the strong Mestral winds and shades it during the hot summer afternoons. Surrounded by this slight geological ring, a microclimate unfolds.














from archdaily