
이제는 더이상 대장간이 아닙니다. 미니멀하면서도 따듯한 거주공간이 갖추어진 소형 아파트먼트 입니다.
내부 마감은 백색과 밝은 톤으로 함께 잘 정리 되었으며, 원목을 사용한 맞춤형 가구로 각공간에 그 자리에 있었던 것처럼 매칭되었다.
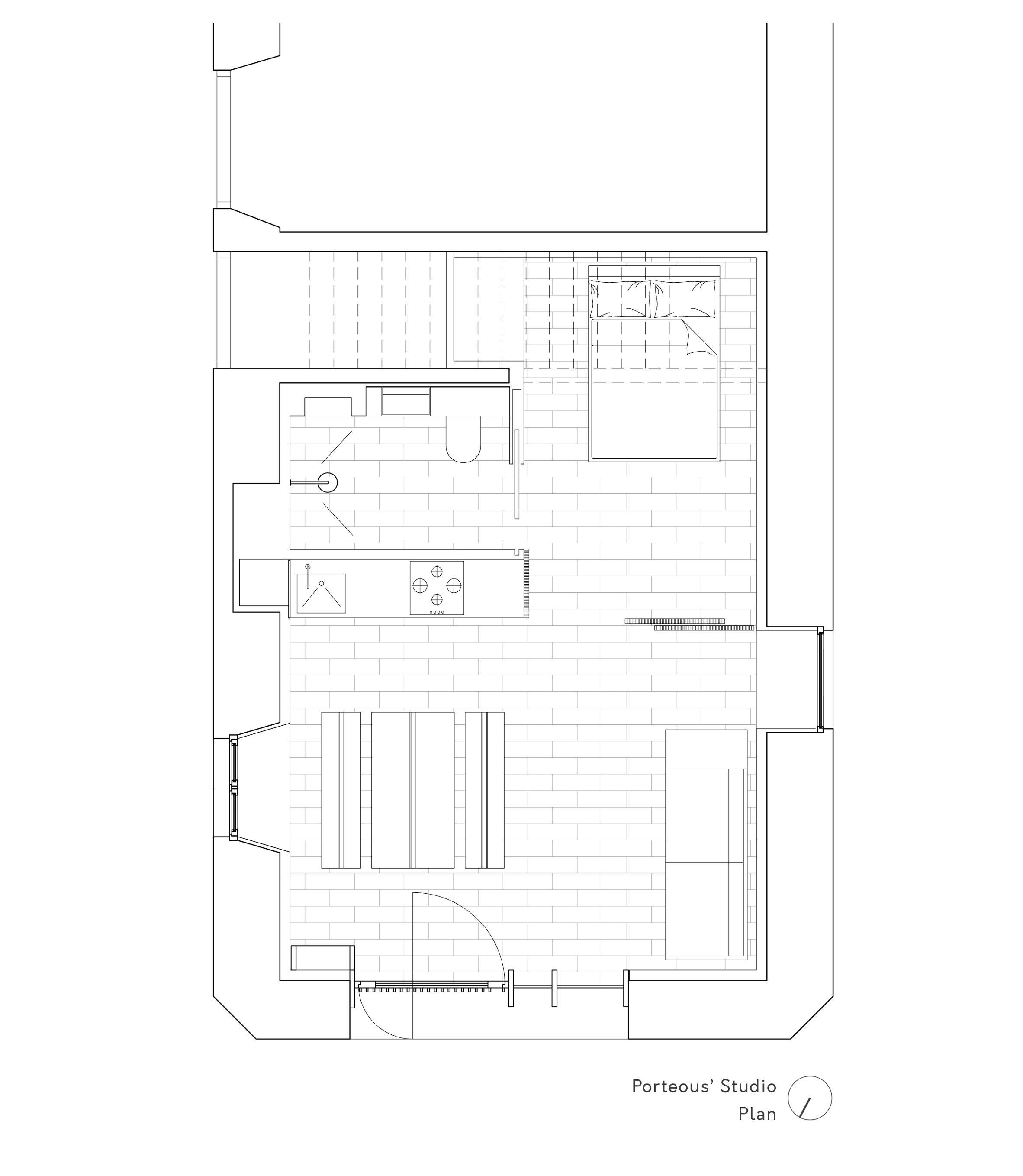
Design studio Izat Arundell has converted a former blacksmith's workshop in Edinburgh into a compact apartment, featuring a muted material palette and sliding screens that hide the bedroom from sight.
Porteous' Studio is the first project by Izat Arundell, a design practice founded by Eilidh Izat and Jack Arundell, which explores the fields of architecture, craft and food.
The property occupies a rare undeveloped space on one of the Old Town's historic cobbled lanes, and will be rented out as a holiday retreat for use by visitors to the Scottish capital.
When Izat and Arundell purchased the site in 2016, the former 18th-century blacksmith's workshop was marketed as a garage and was being used by a stained-glass maker.
The duo decided to transform the 36-square-metre space into a studio apartment and creative venue, featuring a minimal design intended to provide visitors with a haven in the centre of the city.
To achieve the muted and relaxing feel they wanted for the interior, the designers commissioned bespoke furniture and fittings to be made using natural materials.


















from dezeen
'House' 카테고리의 다른 글
| *카탈로니아 전원주택 GMO arquitectura restores a small stone house in the catalan countryside (0) | 2021.06.08 |
|---|---|
| *카모플라쥬 건축 [ NADAAA ] Villa Varoise (0) | 2021.06.07 |
| *최소의 건축 [ Marazzi Reinhardt ] Haus zum Pudel (0) | 2021.06.02 |
| *앤트워프 리니어 하우스 [ MADE architects ] House Huy (0) | 2021.05.28 |
| *레트로 레지던스 [ Dupont Blouin Architects ] Garnier Residence (0) | 2021.05.27 |