
![]() |
![]() |
![]() |
![]() |
![]() |
Superlimão converts single-family home for São Paulo couple's multiple uses
슈퍼리마오-싱글-패밀리 홈_상파울로 다목적 하우스
Brazilian architecture firm Superlimão has overhauled a large home in São Paulo, relocating the staircase to the facade and painting the front a deep shade of red.


강렬한 레드컬러가 매력적인 건축미를 발산하는 오늘 하우스는 90년대 준공된 주택을 현재의 생활공간으로 변신한 작업입니다.
진취적인 부부의 생활양식을 반영한 내부공간은 기존 비내력 벽체를 삭제하며, 오픈공간을 확보하는 것에서 시작합니다.
이를 위해 내부 계단 또한 건물의 정면으로 이동, 공간을 확보합니다. 이렇게 확보된 공간은 요가스튜디오, 공동작업실, 침실 등 다목적 공간으로 구성됩니다.





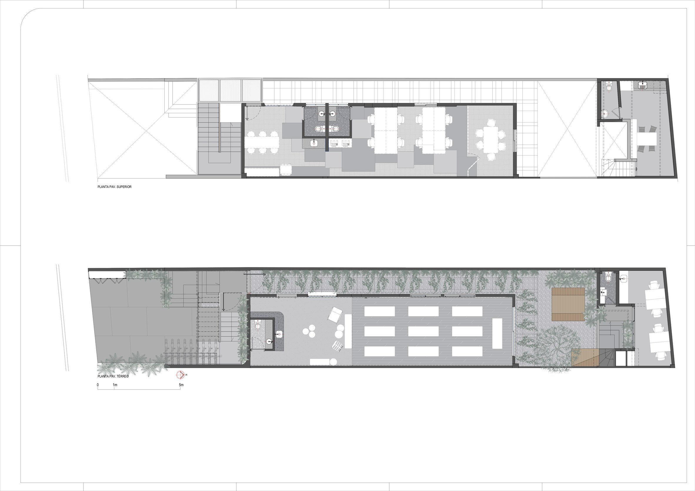
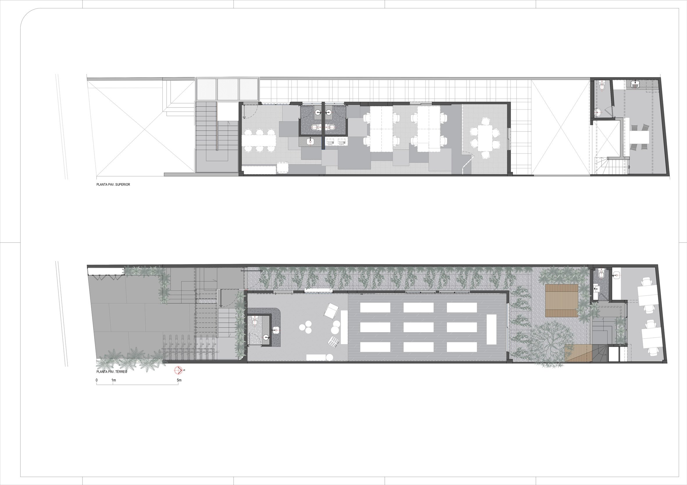
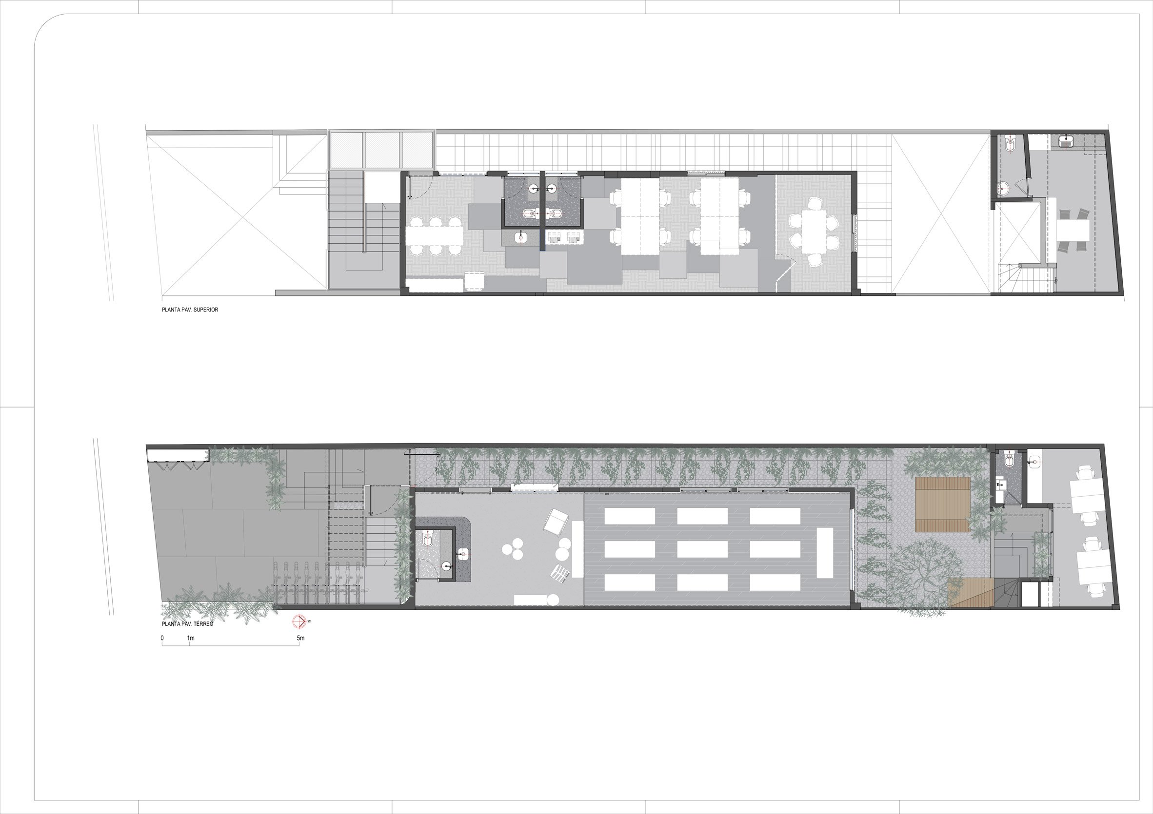
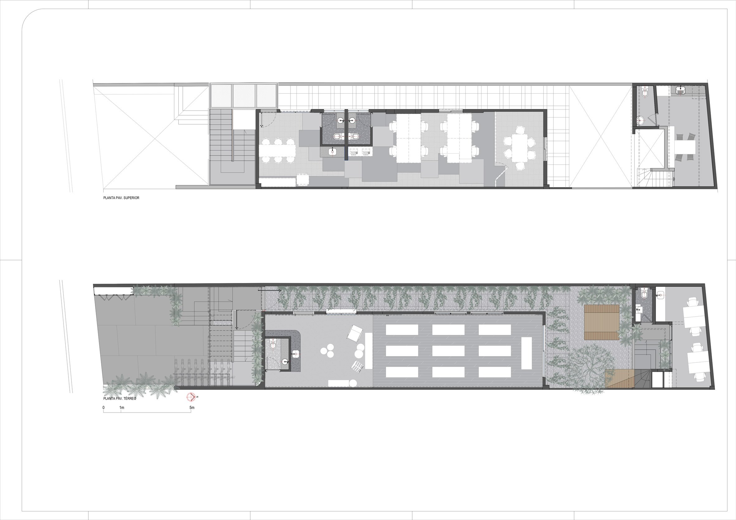
The Yoga House project was completed for an enterprising couple that wanted to convert a portion of their home into a yoga studio, a co-working space and a rental bedroom, all on the same property.
The original building was constructed in the 1990s and is located in Vila Madalena, a trendy area of São Paulo.
"[The] project had to accommodate a large room for classes, a reception area on the ground floor, a studio and co-working area on the top floor, and a room for rental in the old smaller house in the back," the team explained. On completion, the project encompasses an area of 310 square metres.
In order to create more room inside the house, the Superlimão team relocated the staircase to the front of the building, facing the street.
This allows separate access to visitors using the ground floor spaces and those going upstairs.
The steel structure was painted red, along with the rest of the exterior of the house.
By removing walls within the home as well as the staircase, Superlimão was able to bring much more light to the interiors.
from dezeen
'House' 카테고리의 다른 글
| *고로고로 스페이스 하우스 [ YSLA architects ] casa eri (0) | 2021.09.01 |
|---|---|
| *나인 블럭 레지던스 [ Gets Architects ] Rubic JGC Residence (0) | 2021.08.31 |
| *베이징에 위치한 제로하우스 tenio works toward green self-sufficiency in rural beijing suburb with its zero house (0) | 2021.08.25 |
| *하우스 인 데저트 [ robert stone ] rosa muerta (0) | 2021.08.24 |
| *계단과 베트남 하우스[ AD+studio ] Nhà TRIỀN DỐC (0) | 2021.08.20 |




