
![]() |
![]() |
![]() |
HAMS and, Studio-Ring on the Green Apartment
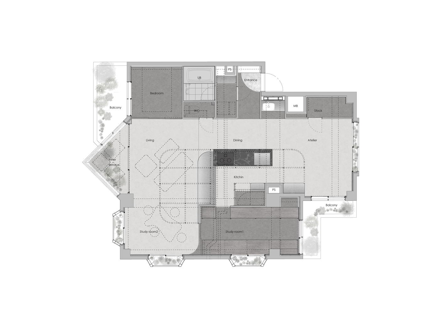
하나의 공간을 가지고 열림과 닫힘을 규칙적으로 배열함으로써 거주자의 사용성에 따라 공간이 변화하도록 설계하였다. 건축가 자신의 집을 리모델링하여, 90m2 규모 안에 주거, 사무실, 스튜디오, 쇼룸을 함께 사용할 수 있도록 구성했다. 집의 가운데 자리 잡은 주방과 식당은 코어역활을 수행하며 오픈스페이스의 장점을 소화한다.




*미니멀리스트 아파트 인테리어 [ Nicolas Dorval-Bory Architects ] Apartment P42
Nicolas Dorval-Bory Architects가 설계한 아파트먼트 P420은 이탈리아 볼로냐에 위치한 미니멀리스트 아파트 입니다. 맞춤 제작된 월넛 프레임의 창문과 벽 그리고 문은 백색공간과 대비를 이루며 인테
5osa.com

























This is a renovation project of an architect's own residence. The 90 ㎡ floors on the second floor of the apartment building in a high density residential area was planned as a base for the diverse activities of the architect: a residence, an office, a studio, and a showroom.
We carefully read the existing conditions and proceeded with the renovation plan, respecting "a bright space with eight openings" and "the materiality of the aged concrete". In order to utilize the eight openings, after a large number of design studies to maximize air volume and line of sight, a one room was adopted merging of dining and living room and kitchen and atelier that can be partitioned by sliding doors. Furthermore, to maximize the presence of the existing concrete structure, steel flat bars were inserted to create a contrasting relationship between the materials and structural members.
A " Linkaged Ring" was planned in the center of the plan as hardware suspended from the existing ceiling, crossing the kitchen, dining room, living room, and studio, which are all arranged in one room. It is composed of two flat bars, with lighting fixtures placed above and below. When used as a studio, it can be utilized as a lighting baton. The design contrasts the irregular and strong existing frame with the sharp straight lines of the steel frame passing through FL+2050, and the integrated lighting brings them both to attention.
The distance from the neighborhood is an extremely important theme when living in the high density residential area of Tokyo. We planned a "Green Back" as a background surrounding the one-room. Using the existing bow window, the green layer made by plants was put together, partitioned by an inner sash. the sash was hidden by covering the inner wall from the inside, and it was set up as an opening with rounded corners. The four layers avoid the direct line of sight with the neighbors while controlling direct light and improving thermal insulation. The building is designed to be a comfortable and attractive space at the same time. The idea was to create a perimeter that is derived from the central Linkaged Ring, and which can be continuously experienced as a single enclosure up to the exterior walls of the neighborhood filtered by the Green Back.
from archdaily
'House' 카테고리의 다른 글
| *빛을 가득, 박공지붕 [ Airhouse ] House in Yokohama (0) | 2022.07.26 |
|---|---|
| *집과 중정이 만는 방법 [ Retallack Thompson ] House for a Garden (0) | 2022.07.22 |
| *루이스칸 칸 코먼 하우스 [ Louis Kahn ] Kahn Korman House (0) | 2022.06.29 |
| *레드 미니멀 하우스 [ BE Architecture ] Anderson Road House (0) | 2022.06.28 |
| *우드인테리어 [ ATELIER 111 architekti ] Dům na Kozině (0) | 2022.06.22 |


