
![]() |
![]() |
![]() |
JSPA Design-Oatmeal Factory
오트밀 팩토리
귀리를 밀가루제품으로 변환하는 오트밀 공장 프로젝트
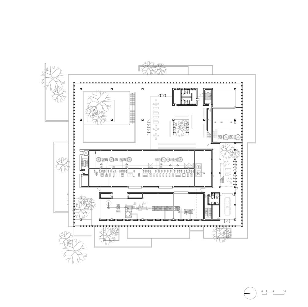
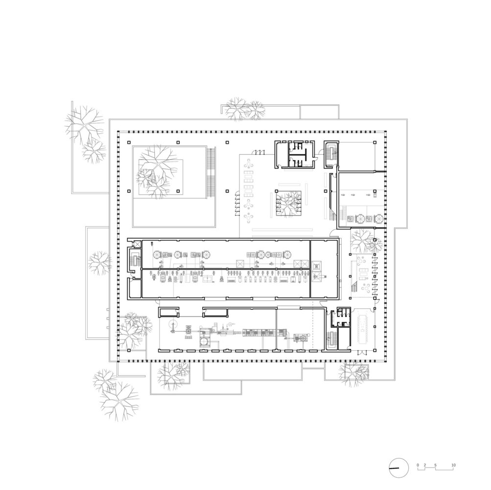
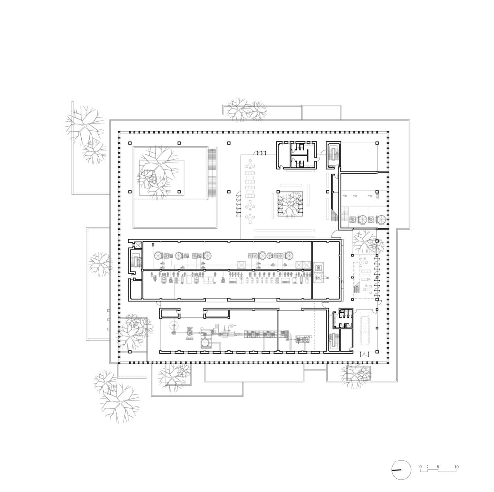
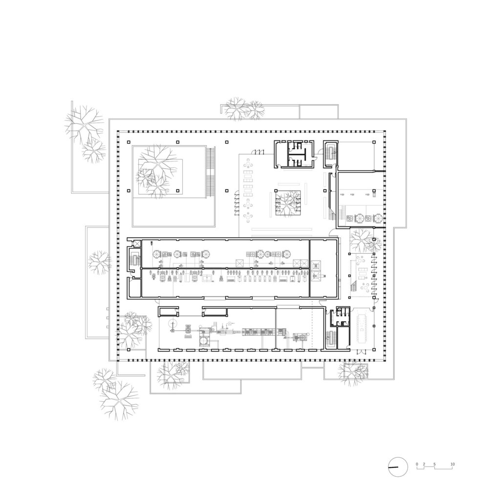
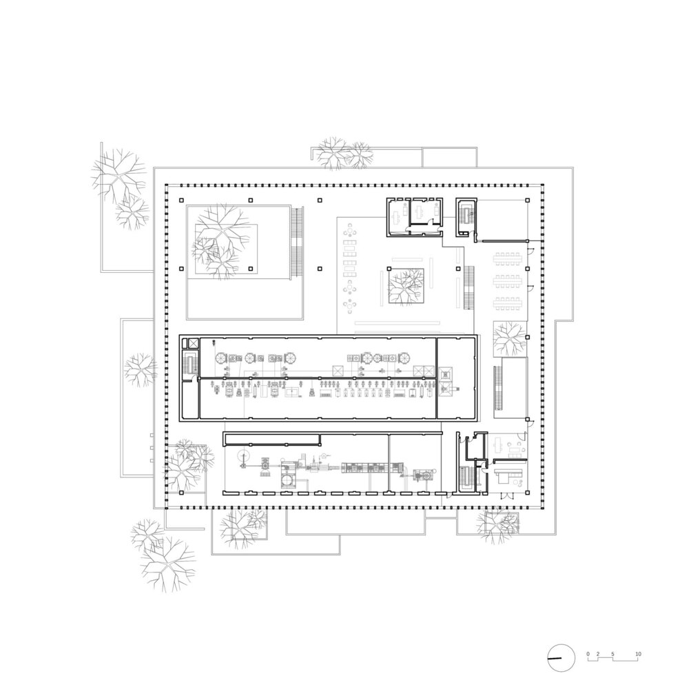
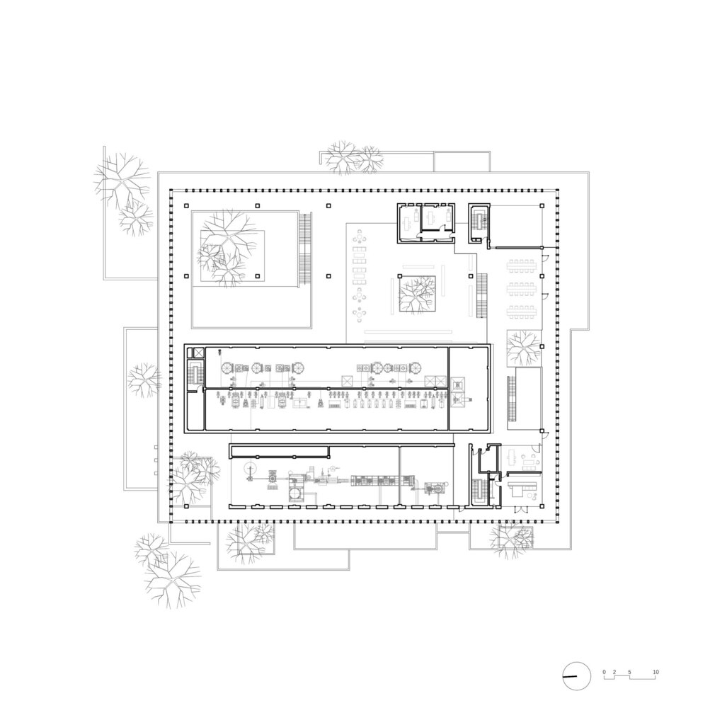
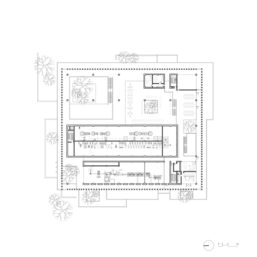
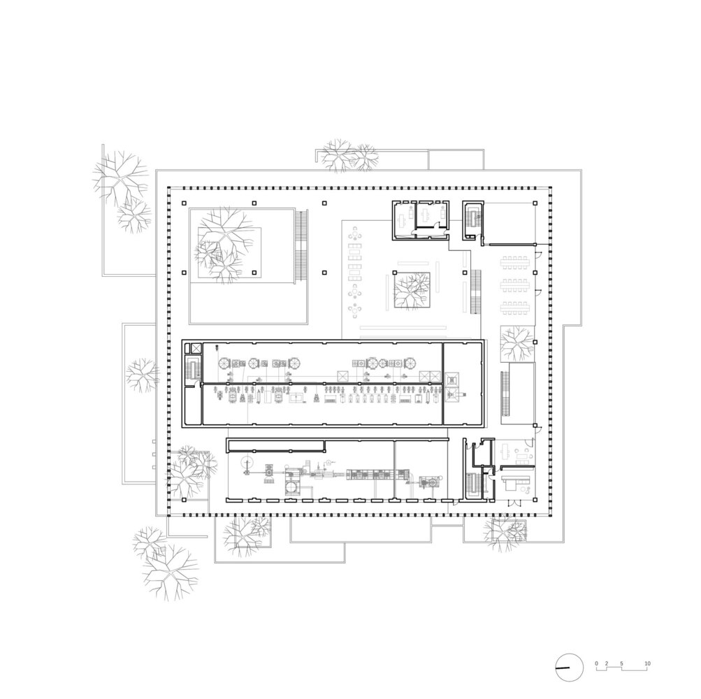
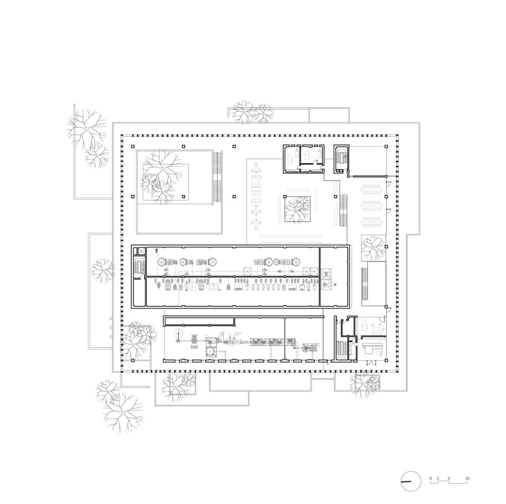
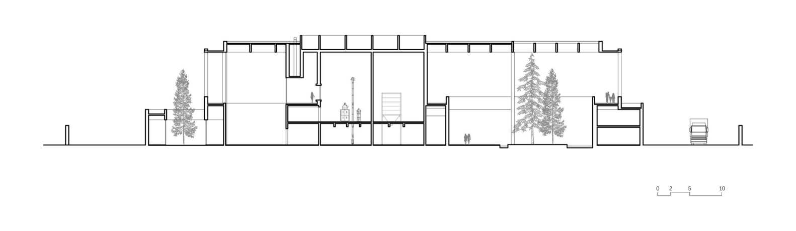
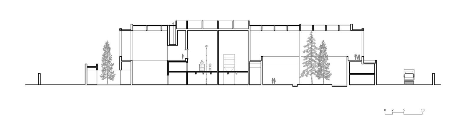
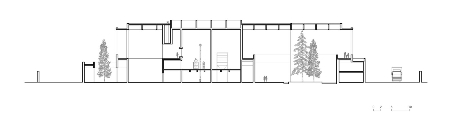
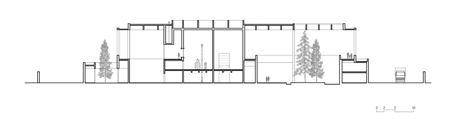
새로운 생산라인 증설과 상점, 카페를 추가하는 이번 작업은 일반인들에게 개방을 목표로 진행되었다. 내부 지향적인 건축방향은 건조한 외부 풍경을 의미 없이 유입하는 대신 필터링된 외부요소를 차용하는 것으로 설정되었다. 격자형태의 천장구조물을 통해 오픈스페이스를 확보하는 동시에 자연채광을 유입, 일정한 조도를 유지한다.












































Located in Ningwu, Shanxi province, the project consisted of the creation of an Oatmeal factory, transforming raw oat into flour products. The production process, mostly automated, needed two different production lines with high-volume machinery and spaces open to the public with shop, café, and office spaces.
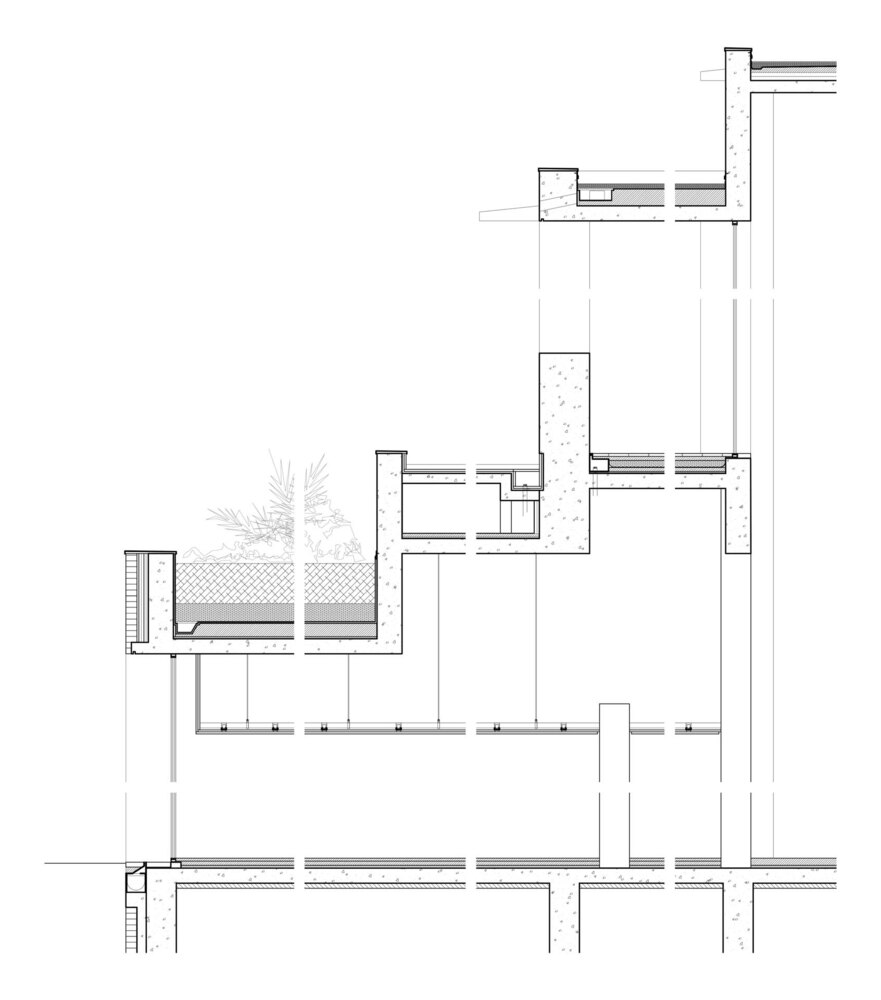
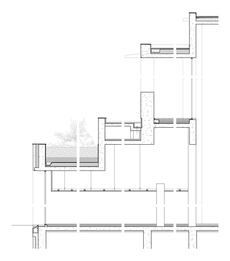
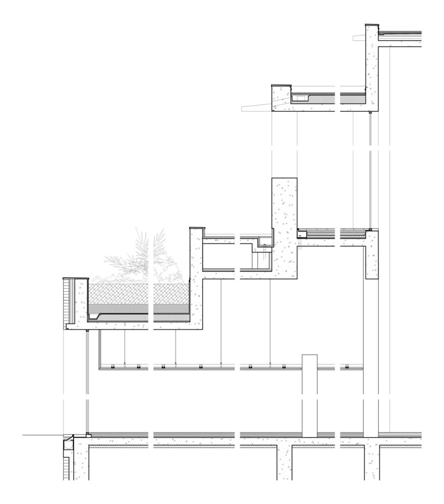
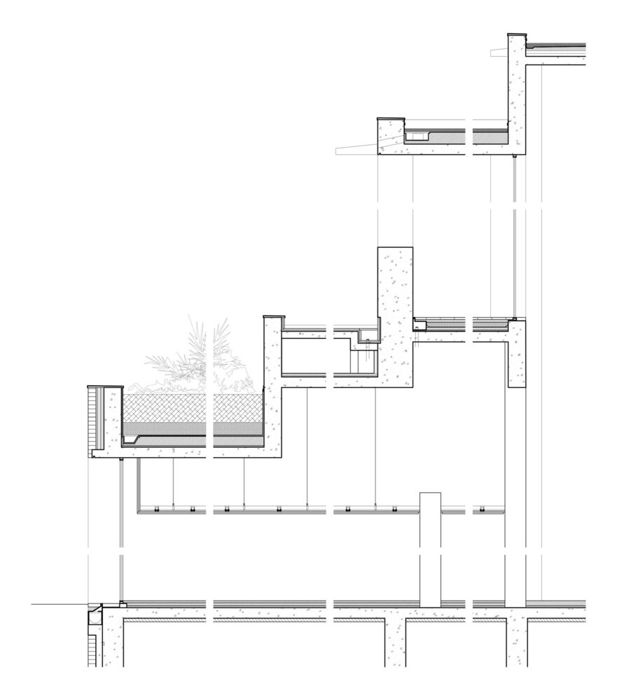
The surroundings of the project offered very low quality with newly constructed industrial buildings, dry landscape, and coal mines and it seemed interesting to develop the factory as an introverted building that would recreate its own natural environment. Besides satisfying all functional requirements, we thought of the project as a building that stimulates the human senses, that would propose a surprising experience to the visitor. The idea was to use a system of brick walls to enclose and hide the various technical spaces of the factory into an opaque ground floor and to set up, a simple concrete volume on the top of it, to host all the public spaces of the program. Patios and large gardens will pierce the whole building, to provide natural light while creating impressive spatial dilatations within the factory. Central production spaces will also get natural light from concrete sheds, opening the roof to the north light.
The system of brick walls starts from the front of the factory, where a landscape area is voluntarily left open to the use of the local community with benches and water pools for kids to play. Brick walls grow slowly from benches shape to become the propriety fence of the factory and later, the façade of the whole building. The shape taken by the brick walls will form and define the different entrances of the factory, each of them with a specific function: The raw materials delivery, the products loading, the staff, and the visitor entry. Separated into distinct paths, staff and visitors will never crossways inside the factory and while the workers will enjoy a functional organization, the visitor, will go through a planned spatial experience. For one moment only, the production line is showcased to the visitor in an elevated corridor overlooking the workshop.
The dormitory for employees was set up in the back of the factory and conceived as an invisible architecture. The brick fence wall was thickened to host the building and patios were created to bring light to the rooms while preserving their intimacy. The space between the factory and the dorm becomes a garden in which a concrete table and square seats were set up.
from archdaily
'Commerce' 카테고리의 다른 글
| *인더스트리얼 코스메틱 인테리어 [ AIM Architecture ] HARMAY in Shenzhen (0) | 2023.02.07 |
|---|---|
| *빈티지 까페 [ Studio Sherpa ] Vonzrr (0) | 2023.02.02 |
| [ Jean Verville - architecte ] Clinique dentaire St-Charles (0) | 2022.12.07 |
| *퓨리오소 와이너리 [ Waechter Architecture ] Furioso Vineyards (0) | 2022.11.29 |
| *문하우스 레스토랑 [ Ewert Leaf ] Moonhouse_Senses Aglow (0) | 2022.11.28 |


