
![]() |
![]() |
![]() |
Paperfarm conceals home in Taiwan behind perforated "brick veil"
A perforated facade provides light, air and privacy to Veil House, a home in Taiwan that architecture studio Paperfarm designed to reference the area's history of brick manufacturing.
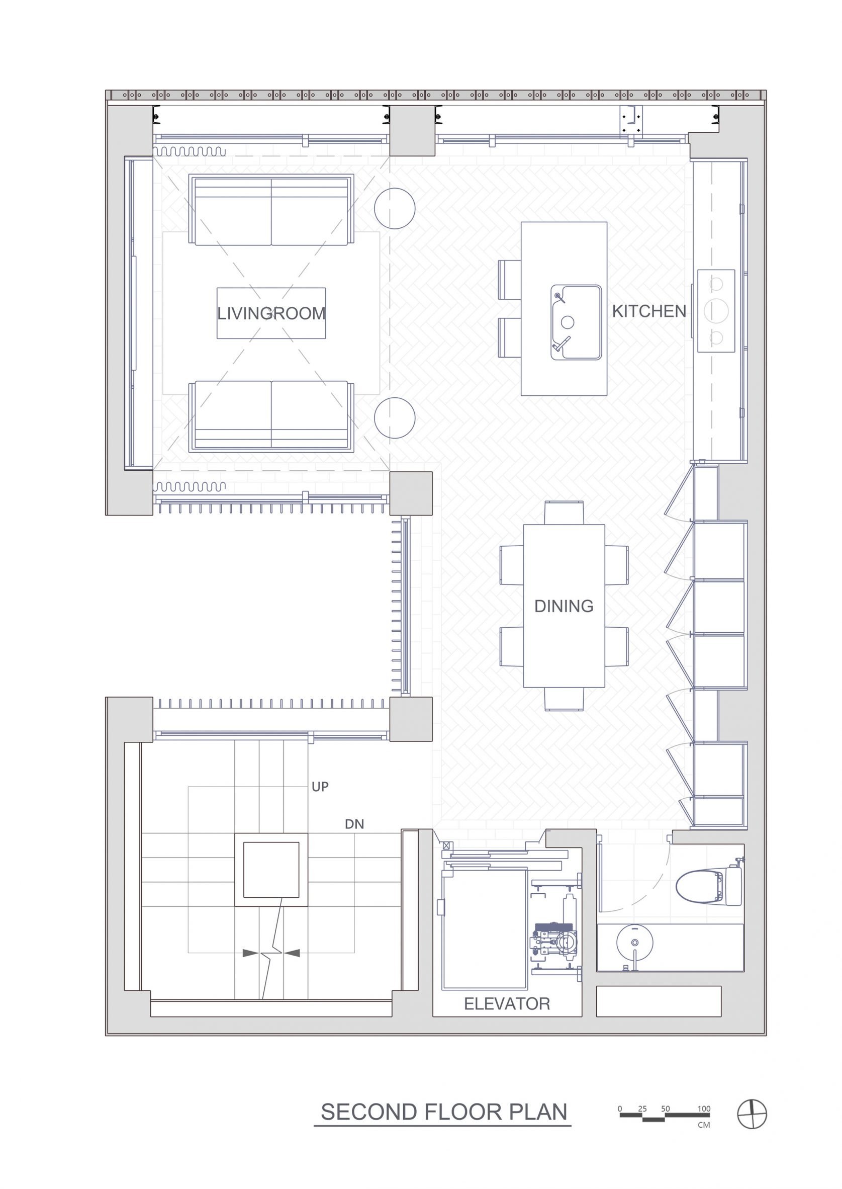
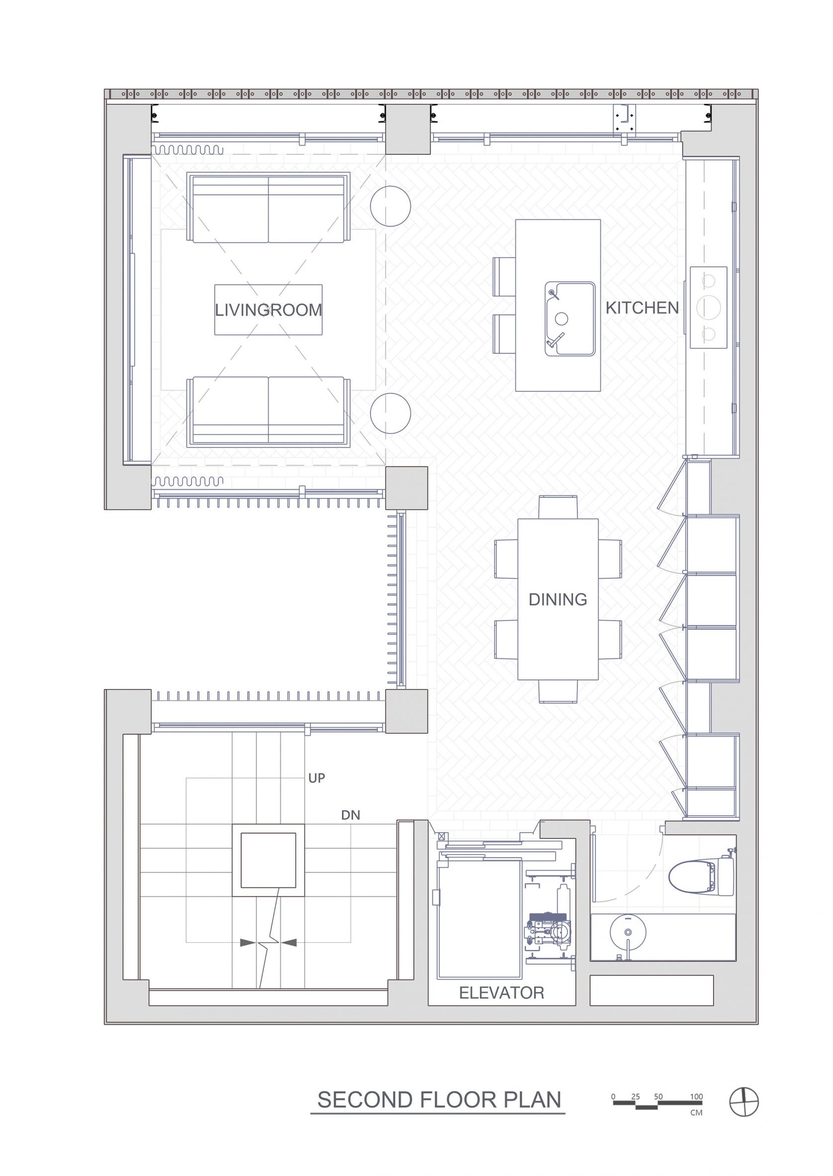
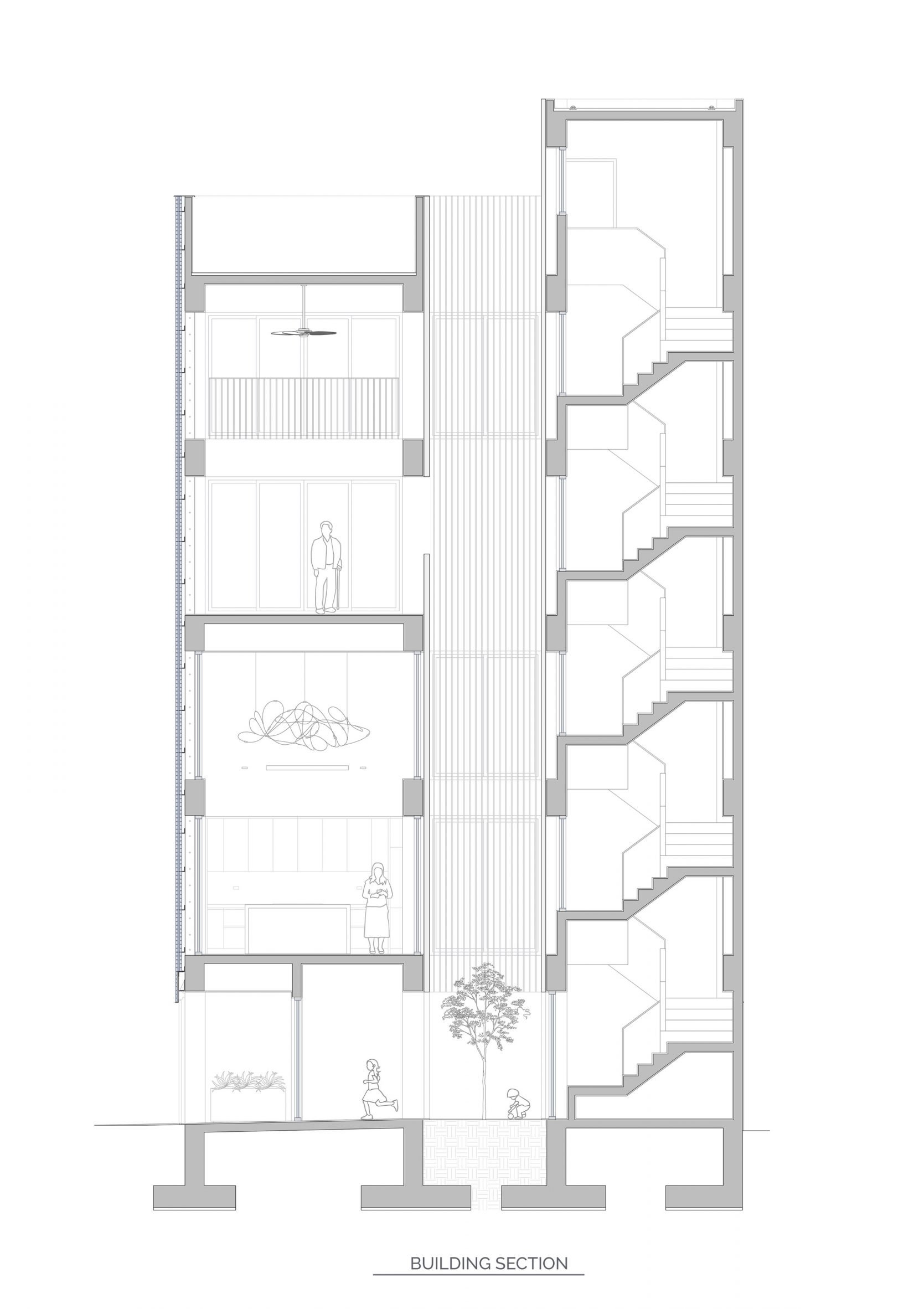
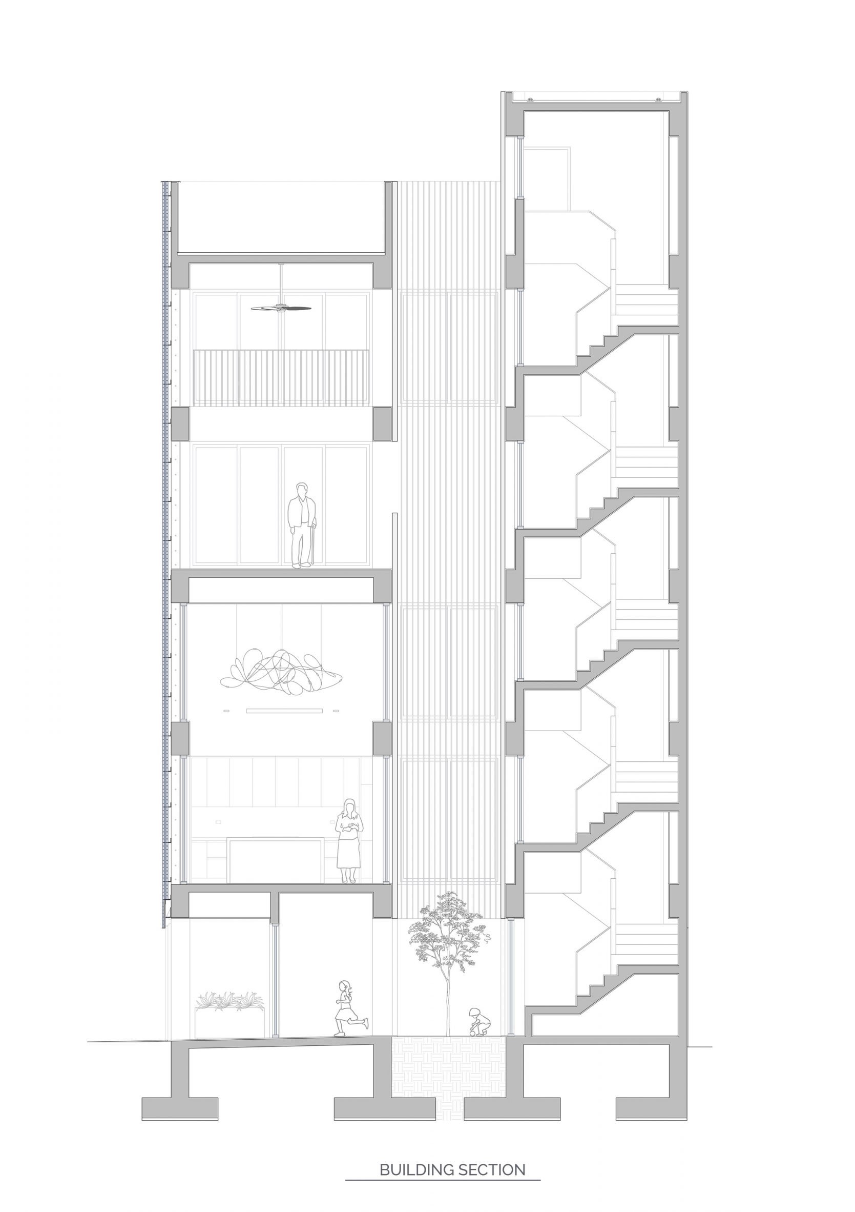
Located in a dense urban area in Kaohsiung, Veil House meets the client's desire for airy, open spaces while retaining their privacy from the neighbouring buildings on the tall and narrow site.
"On narrow streets like the site of Veil House, traditional houses have a large issue with privacy and security, resulting in windows equipped with translucent glass and many with metal security bars," Jarrett Boor, partner at Paperfarm told Dezeen.
"Our approach with Veil House is a reaction to such privacy concerns," Boor continued. "However, maintaining the functionality of outdoor spaces where transparency benefitted living conditions was of utmost importance."
The home's brick facade, or "veil", is a nod to the nearby Tangrong Brick Kiln according to Paperfarm.
This former kiln provided bricks for many of the area's public buildings until its closure in 2002 and it is now used as a tourist attraction and public park.
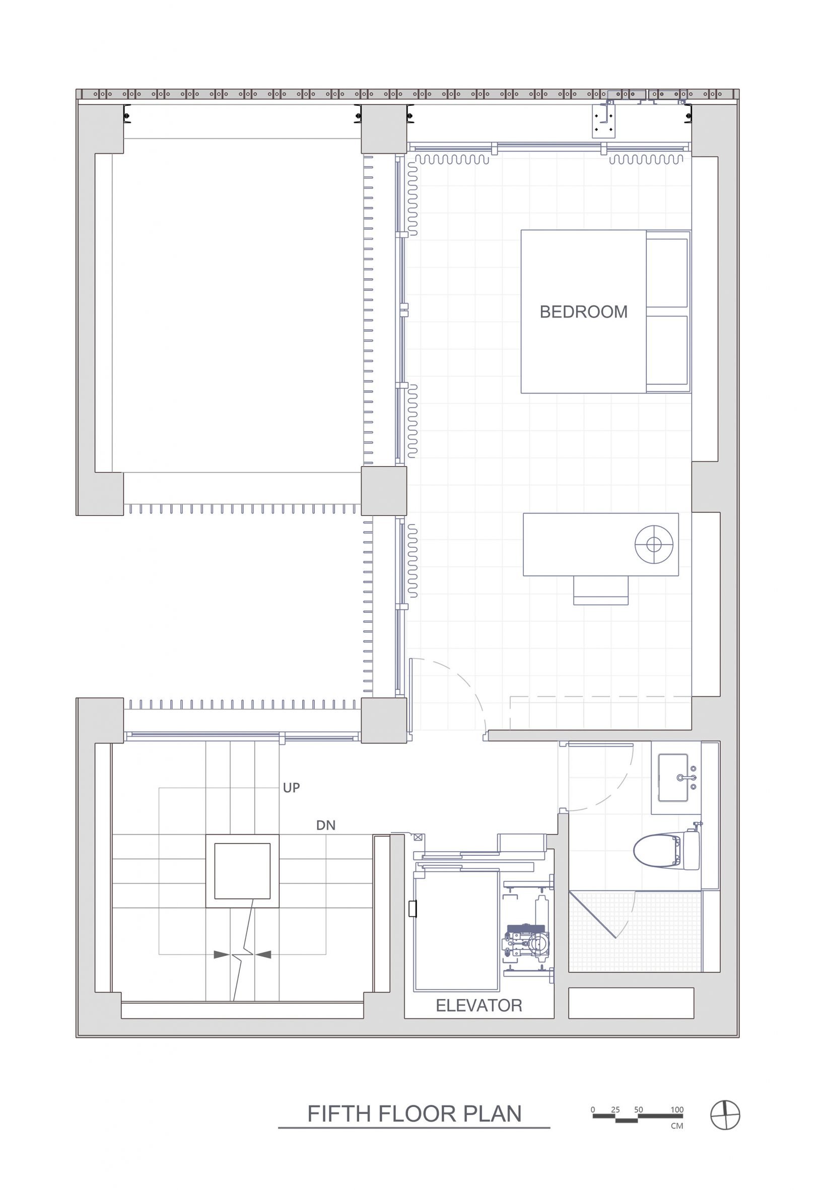
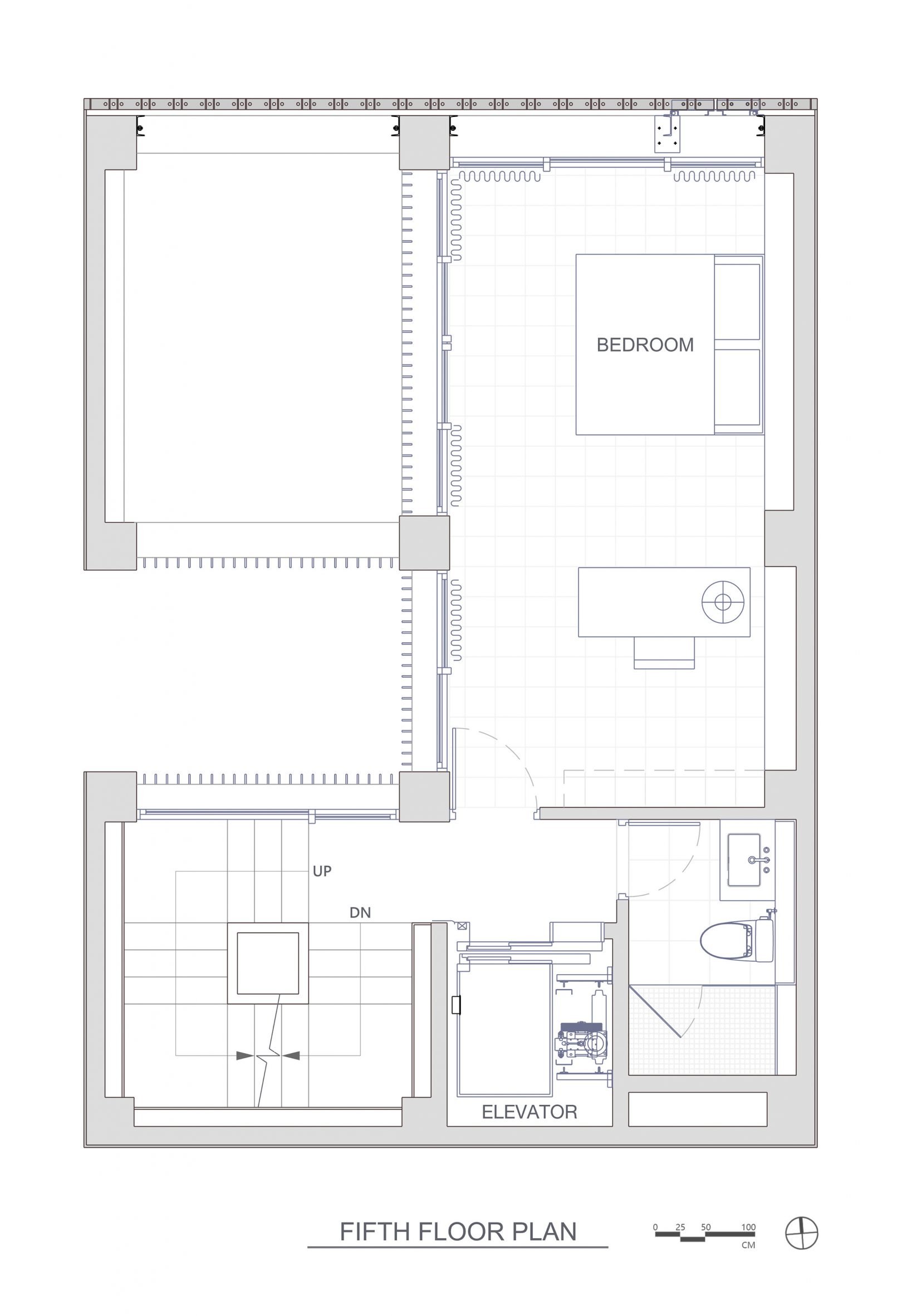
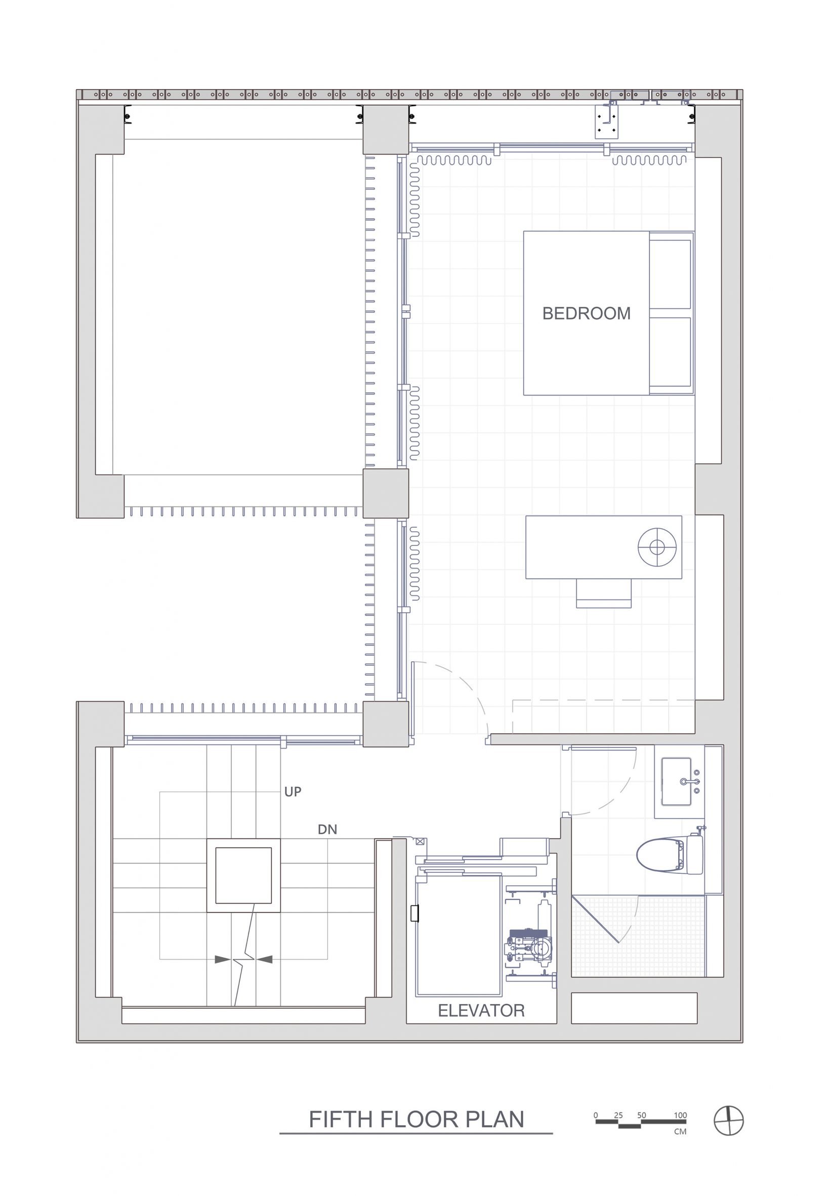
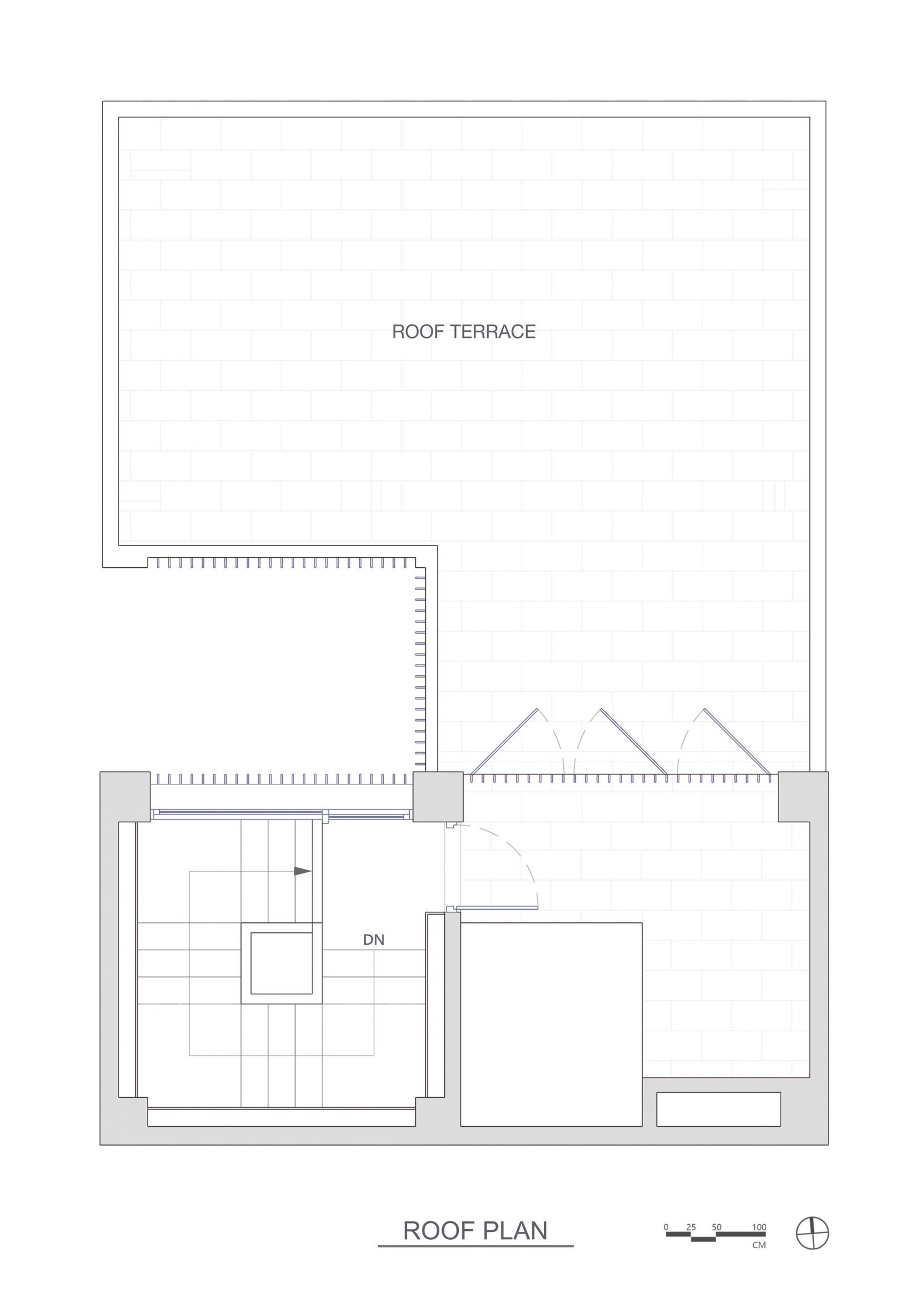
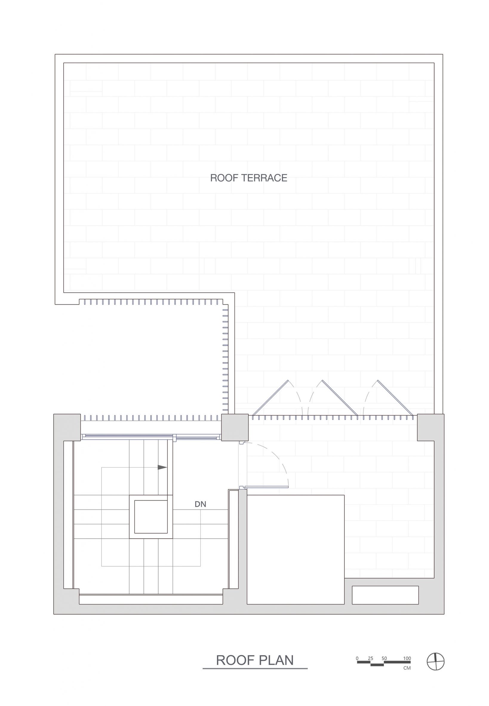
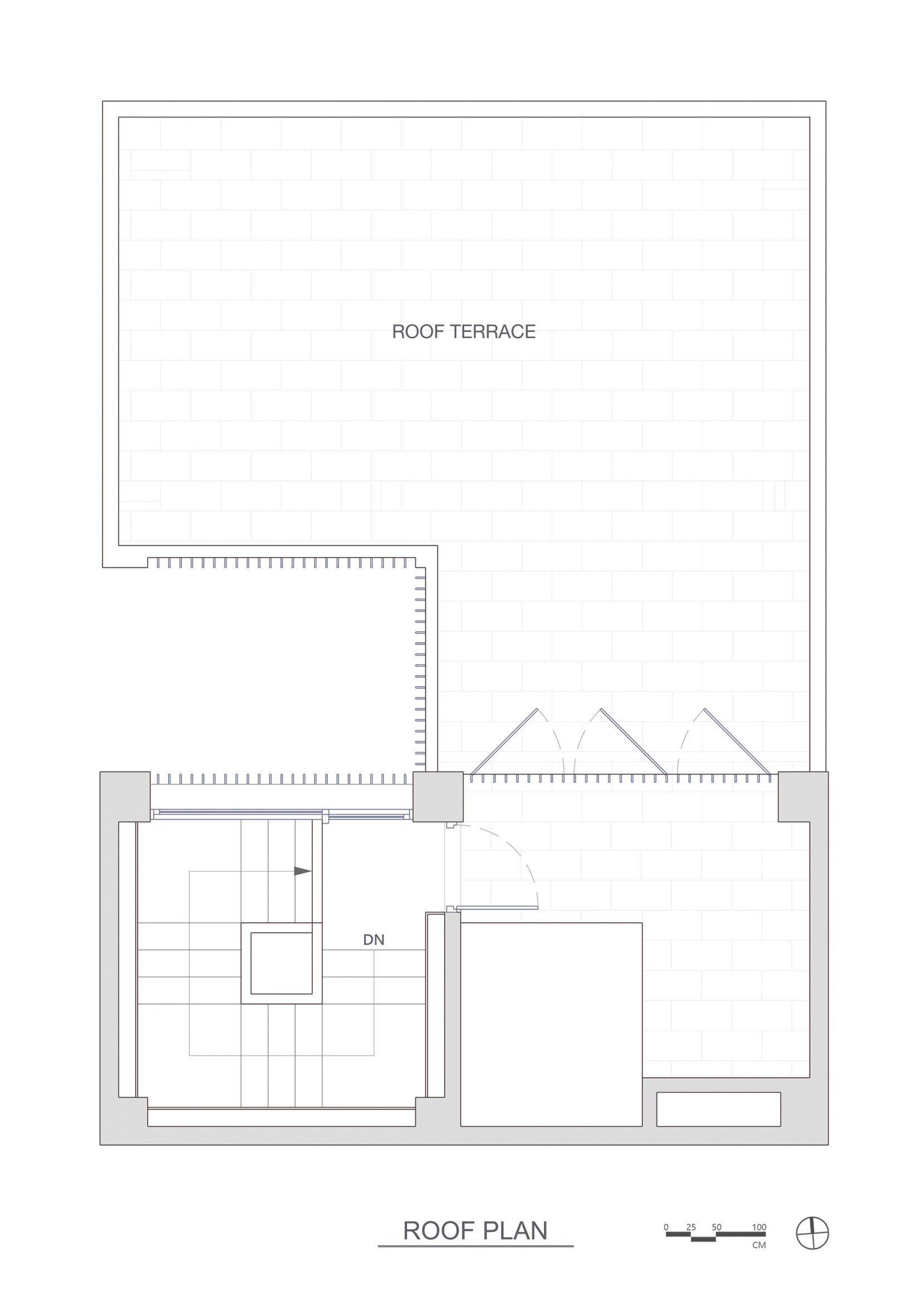
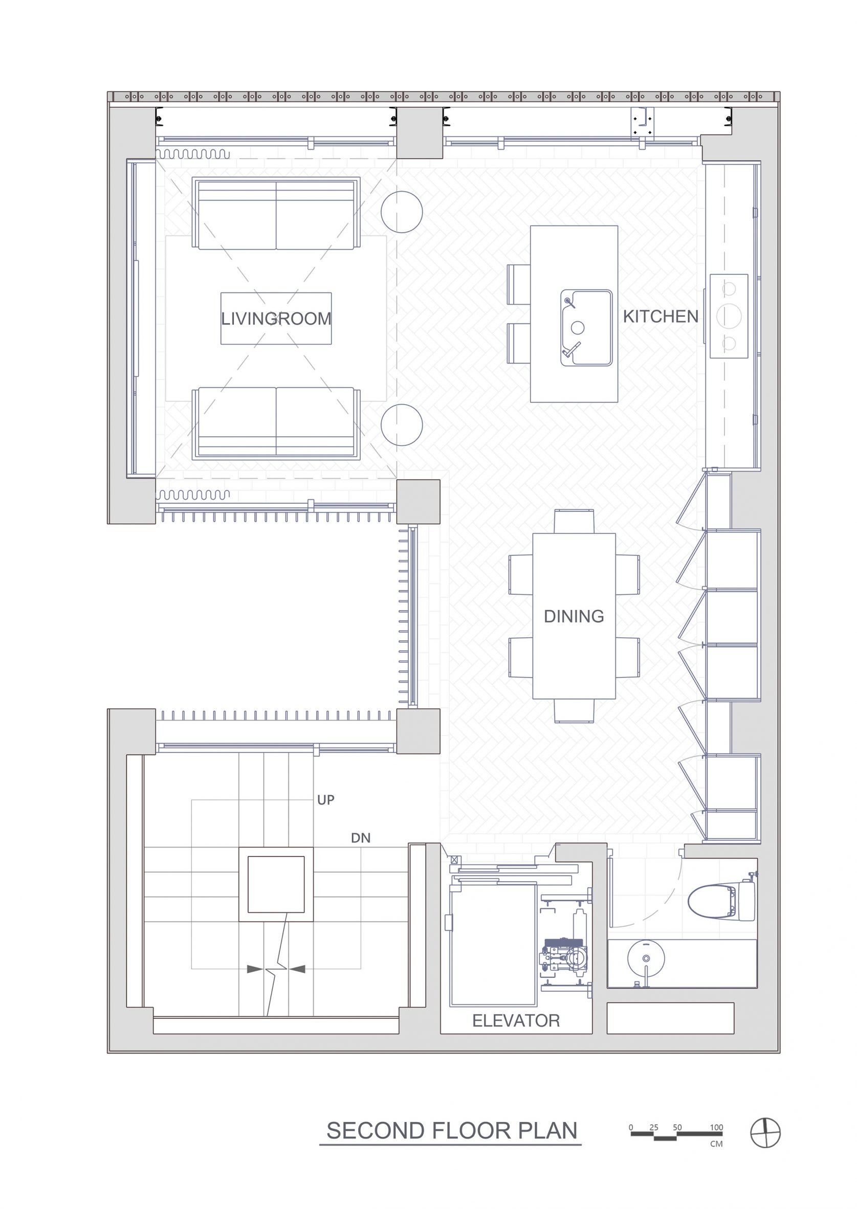
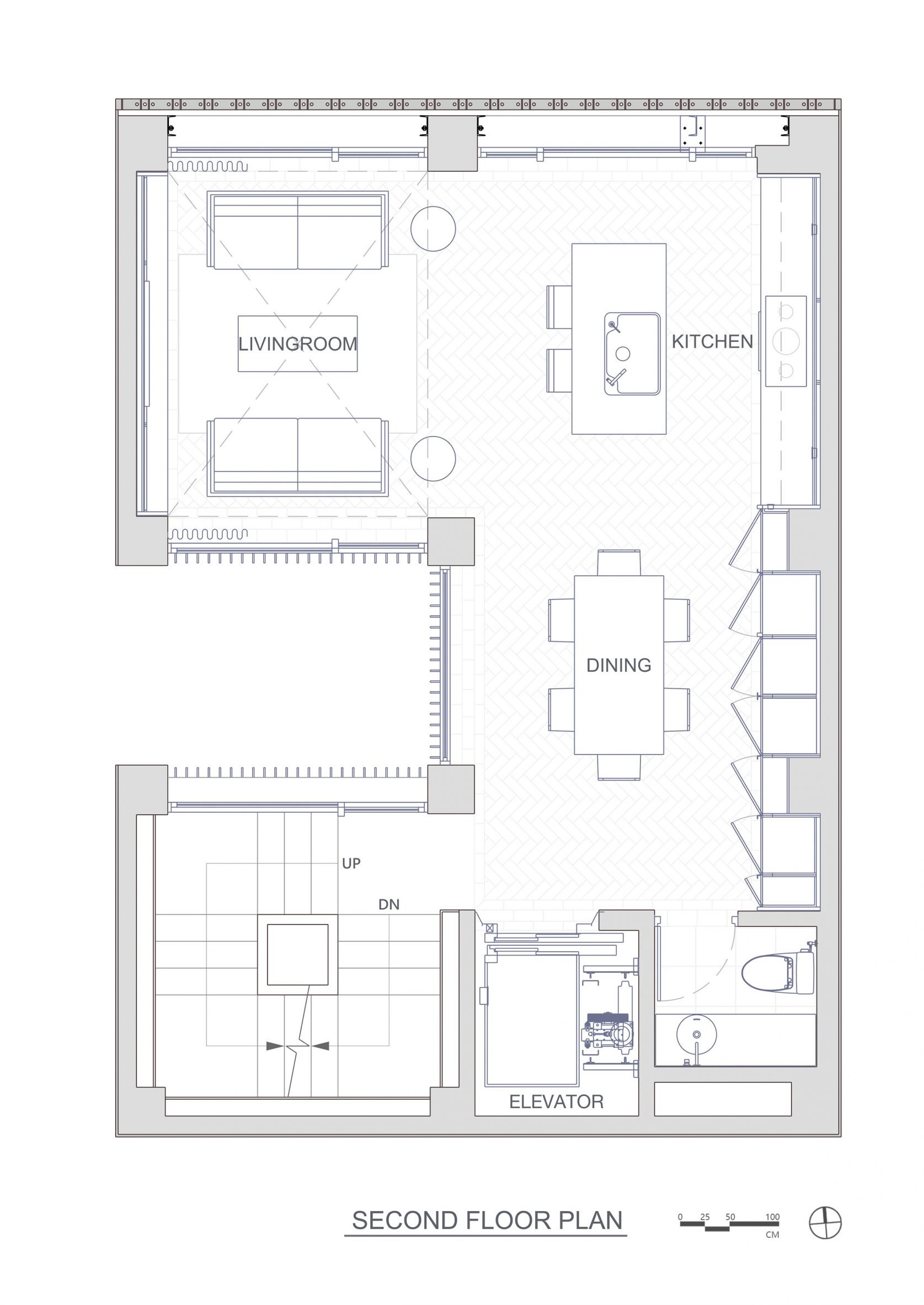
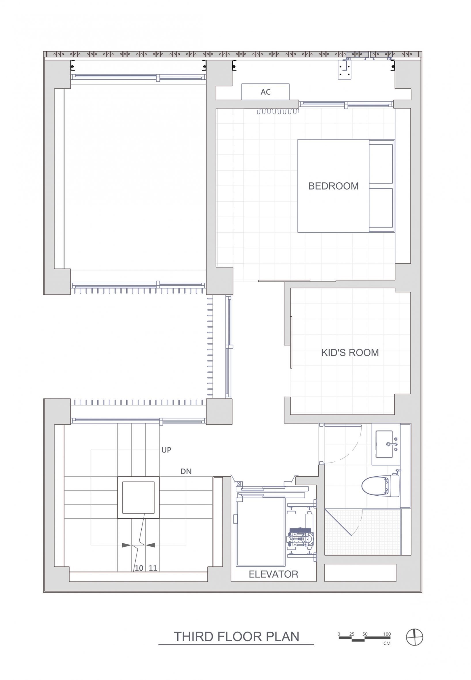
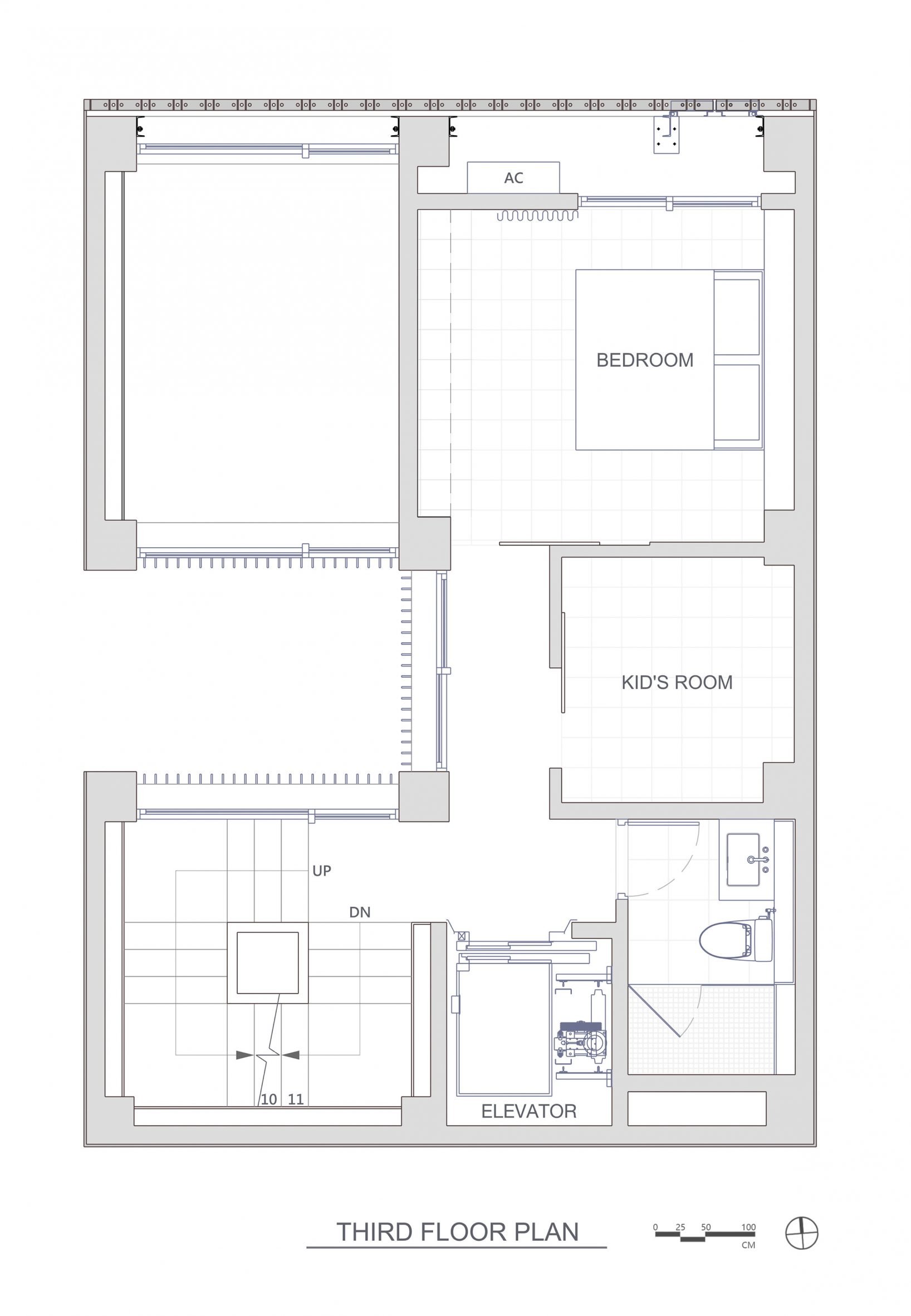
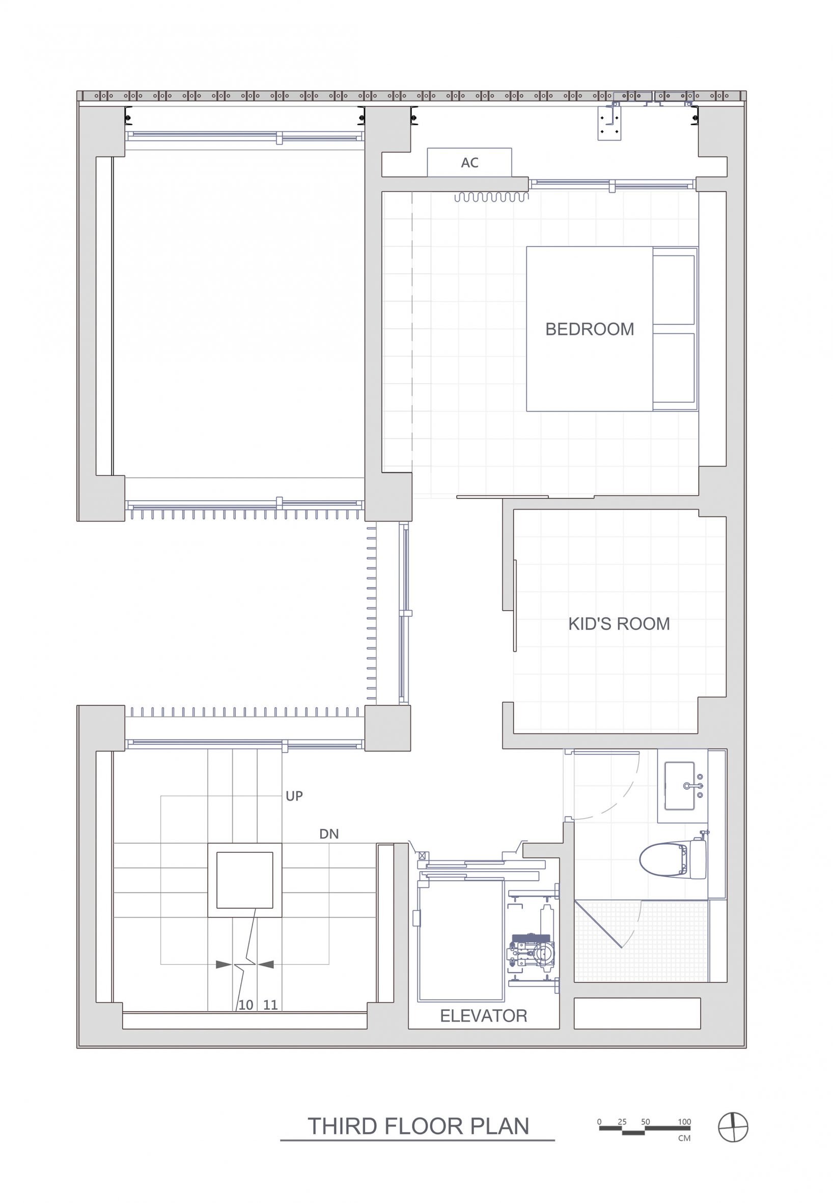
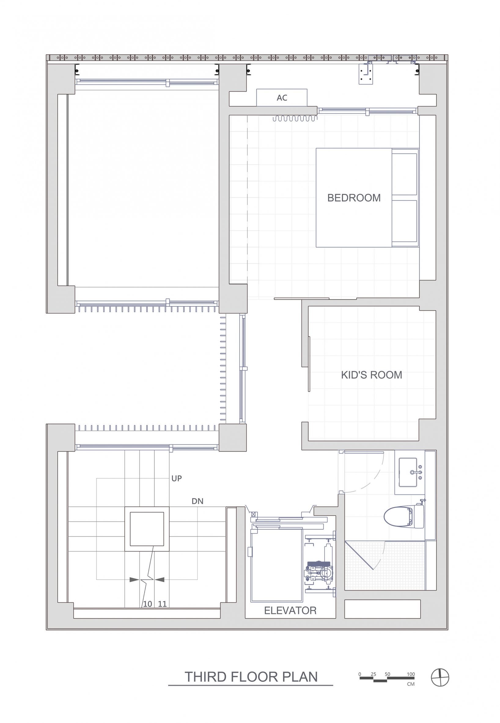
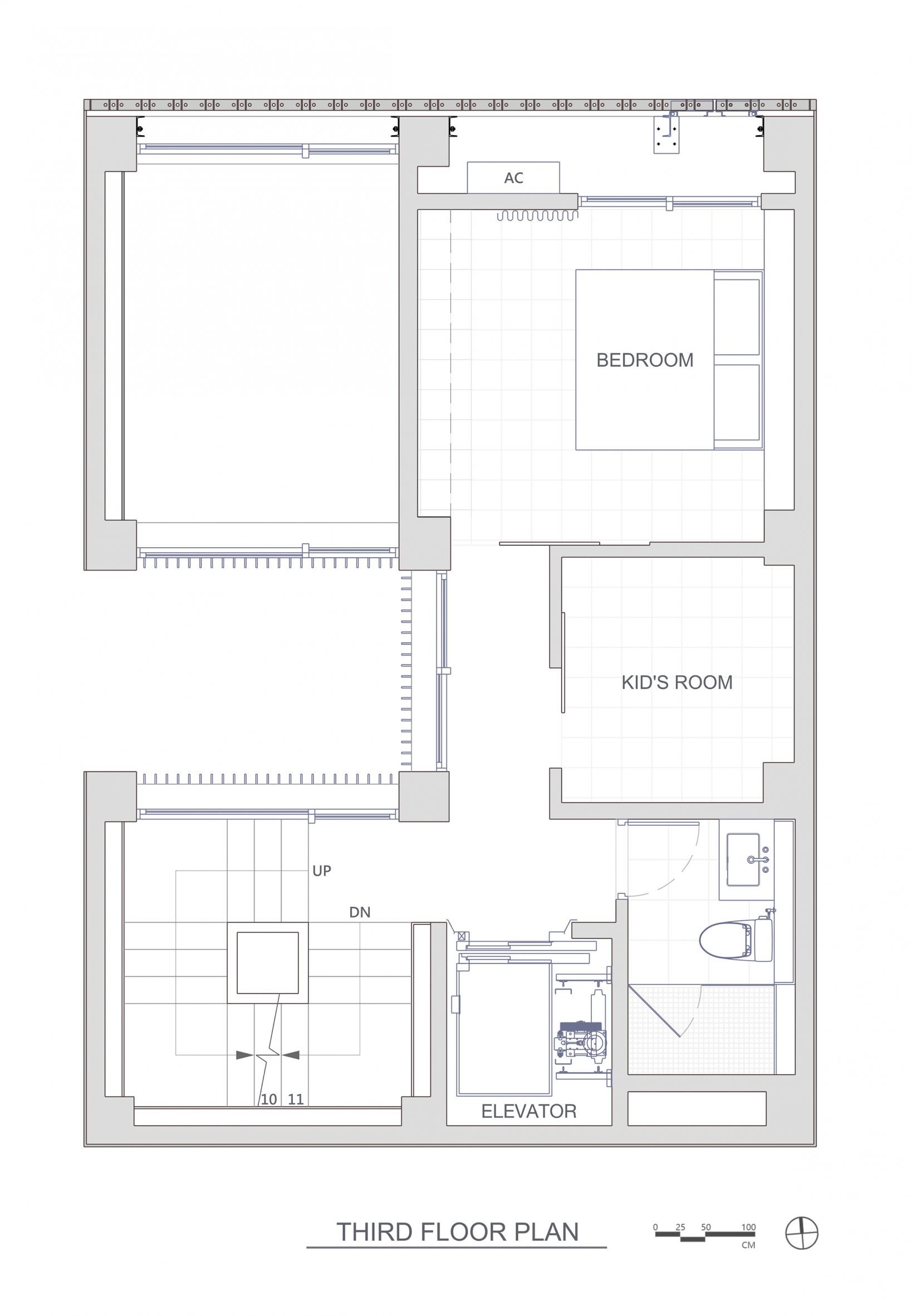
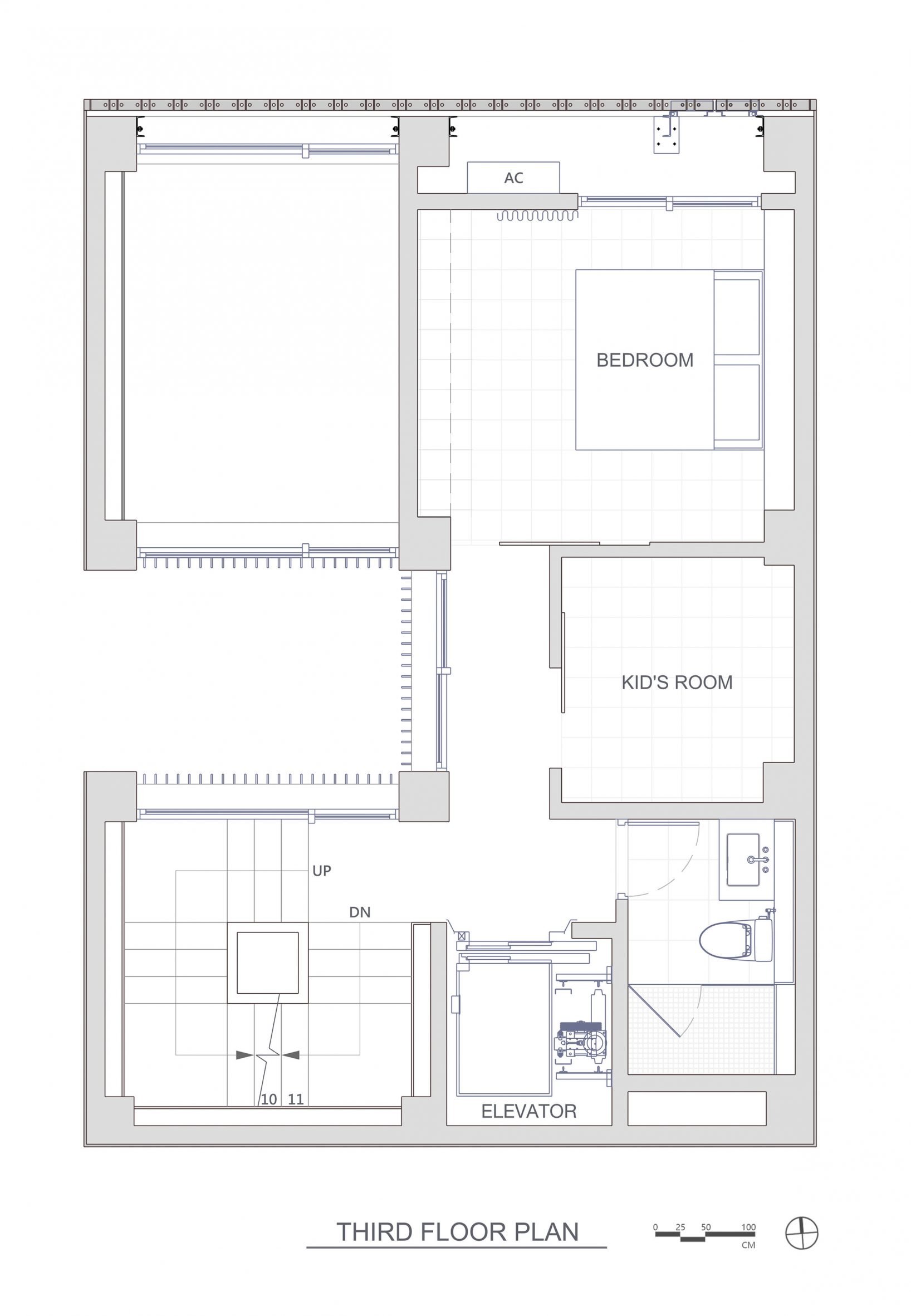
On Veil House's ground floor, a covered entrance area and a garage buffer the home from the street, leading into a foyer with a staircase, elevator and "urban garden".
This central garden sits at the base of an atrium that cuts through all four of the home's floors. It is overlooked by small balconies and metal slatted screens lining the bedrooms and living areas.
































from dezeen
'House' 카테고리의 다른 글
| *세컨드 에비뉴 레지던스 [ Architecture Microclimat ] 2nd Avenue Residence (0) | 2023.08.10 |
|---|---|
| *스카이라이트 가든 [ Ludwig Godefroy ] habitable gardens (0) | 2023.08.07 |
| *파크사이드 레지던스 [ ASHLEY HALLIDAY ] PARKSIDE RESIDENCE_IMMERSED IN PLACE (0) | 2023.08.01 |
| *하우스리모델링 [ FLACK STUDIO ] POTTS POINT (0) | 2023.07.29 |
| *노스사이드 하우스 [ Wellard Architects ] Northside House (0) | 2023.07.26 |


