
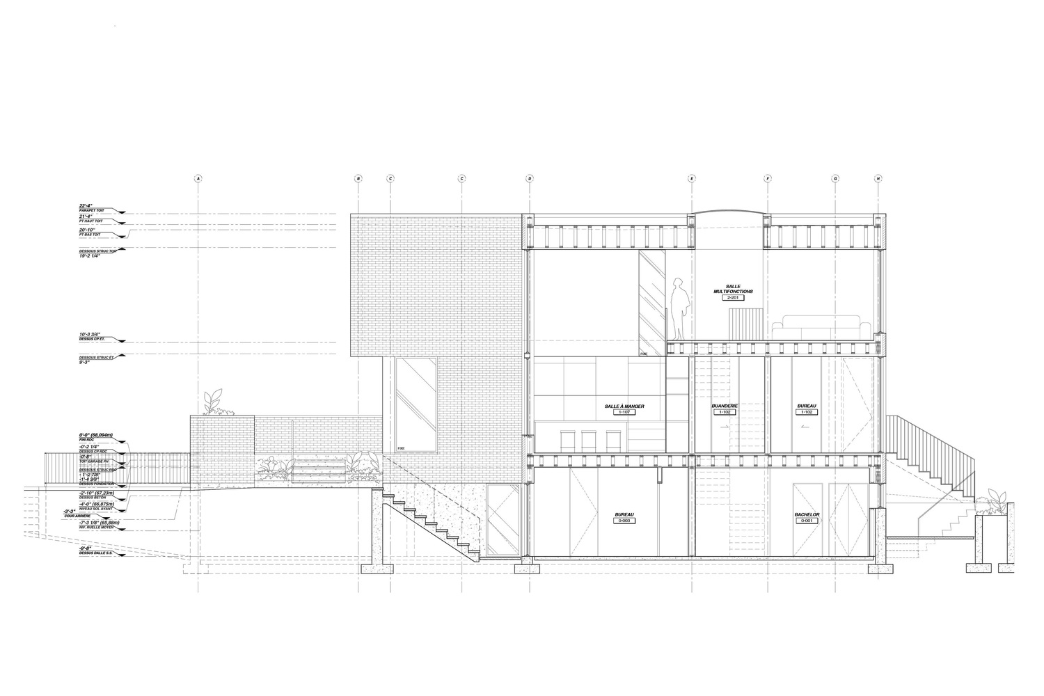
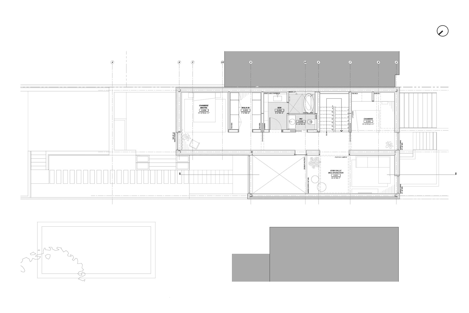
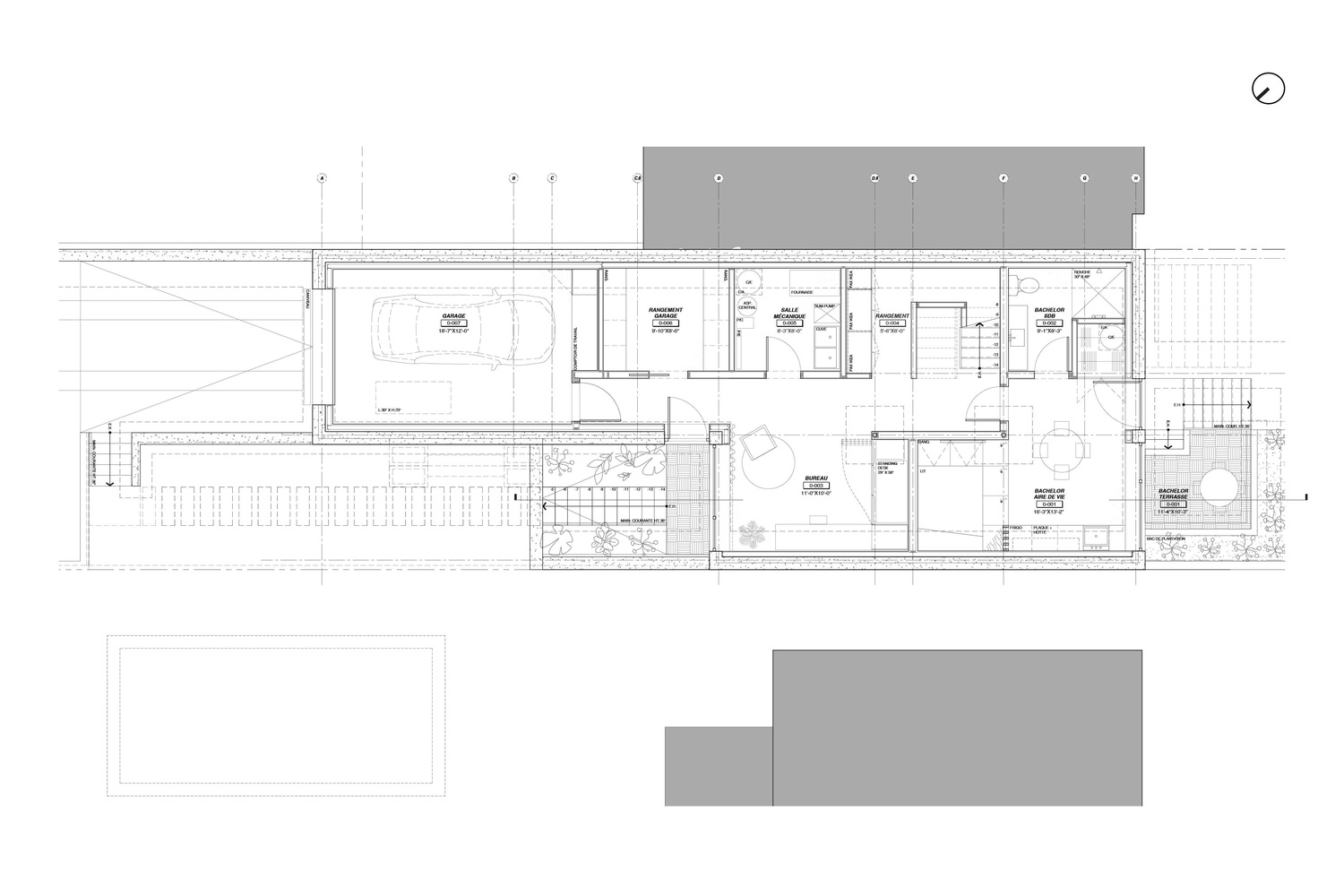
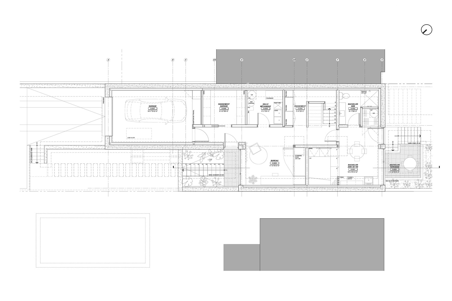
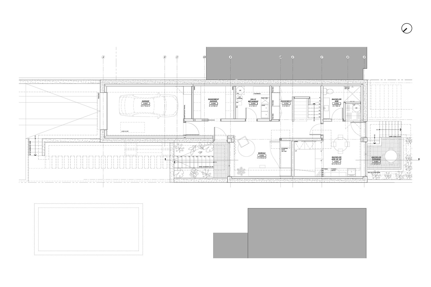
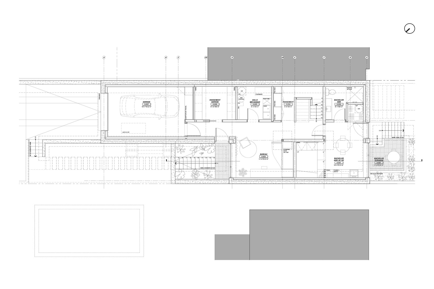
The 2nd Avenue home resides in the eastern part of the Rosemont-La-Petite-Patrie neighbourhood, in Montreal—a working class district where urbanization was marked by the arrival of the Canadian Pacific Railway and many other industries settling here in the twentieth century. In a similar fashion to how the railway has become a gem of a linear playground, this entire neighbourhood now adapts and values its heritage to translate it into an attractive place for Montrealers to live.
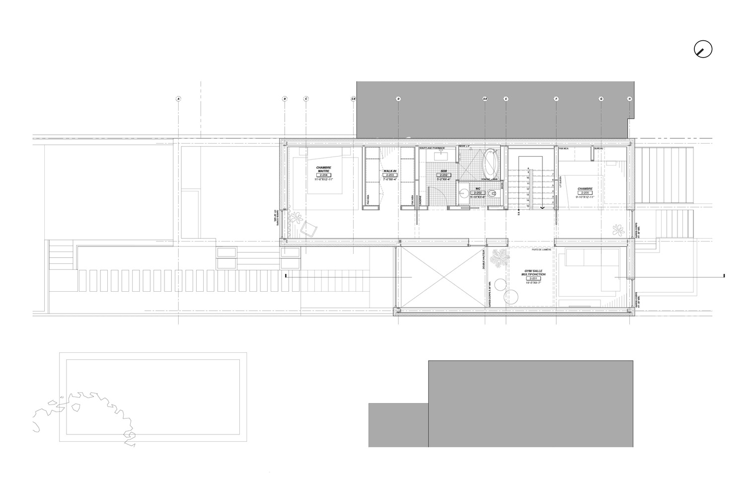
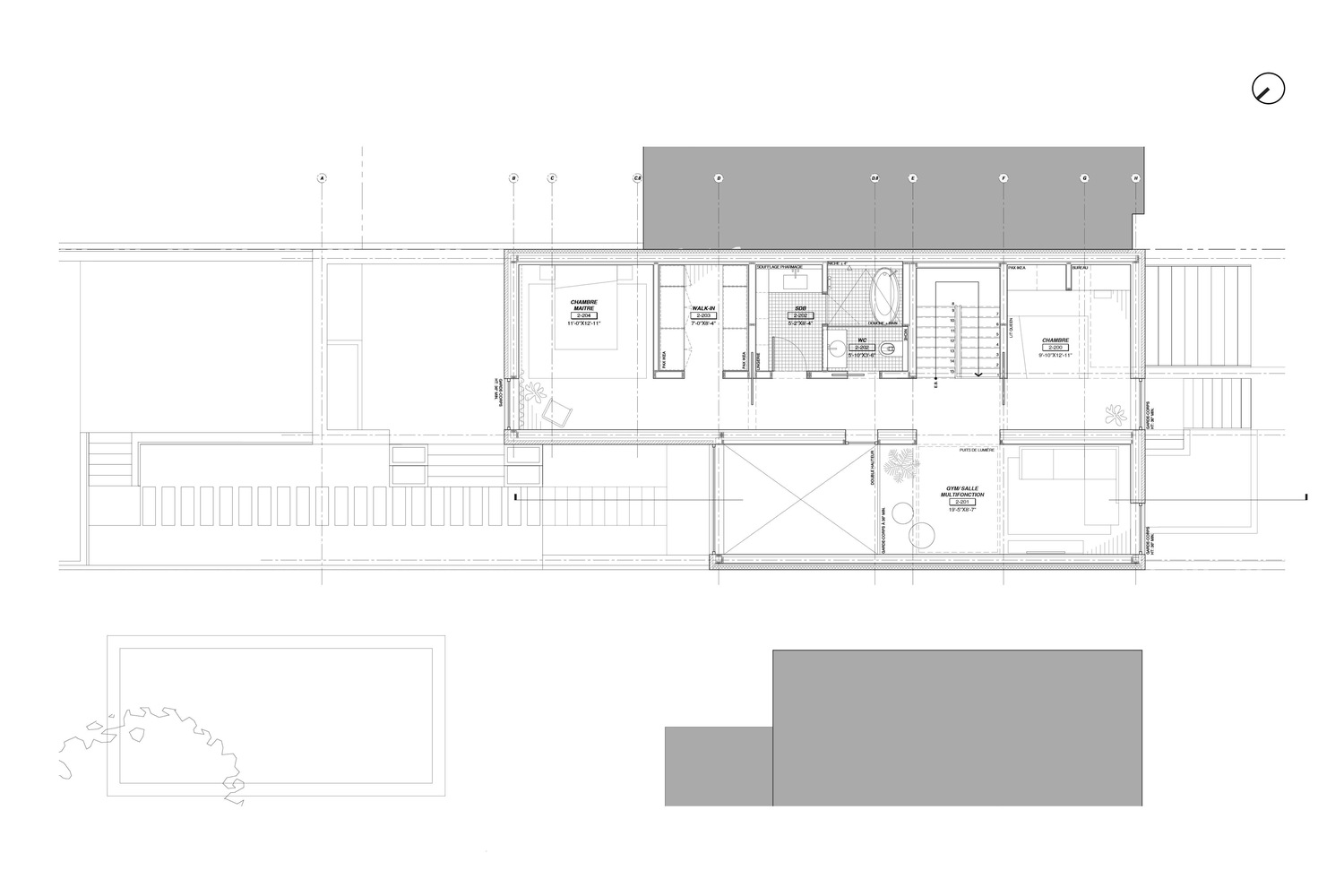
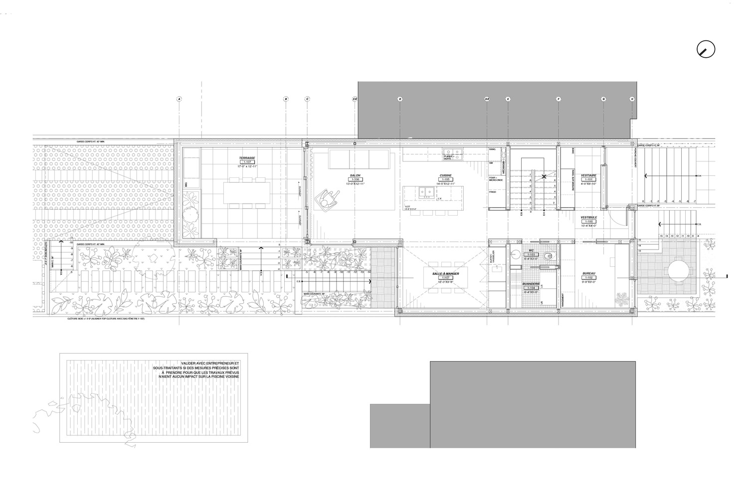
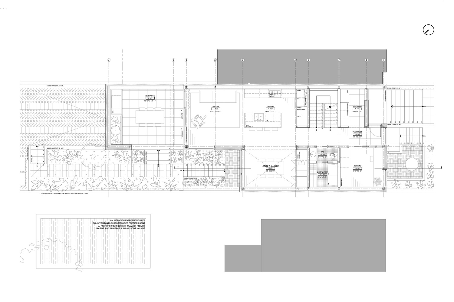
At the end of an extended stay spent lounging alongside a suburban poolside, Jean-Yves’ decision was made to return to the city. After getting his hands on one of the rare empty lots in the sector—the old parking lot of an adjacent house—he contacted Microclimat to explore the possibilities that presented themselves for this underused space. Marked by both opportunities and constraints, the architectural exploration aimed to create a convivial and flexible homestay with a design that would also defy the passing of time.















from archdaily
'House' 카테고리의 다른 글
| *빈티지 하우스 [ balbek bureau ] Relogged House (0) | 2023.08.17 |
|---|---|
| *제트하우스 [ Light and Air ] Z House (0) | 2023.08.15 |
| *스카이라이트 가든 [ Ludwig Godefroy ] habitable gardens (0) | 2023.08.07 |
| *브릭베일 Paperfarm conceals home in Taiwan behind perforated "brick veil" (0) | 2023.08.03 |
| *파크사이드 레지던스 [ ASHLEY HALLIDAY ] PARKSIDE RESIDENCE_IMMERSED IN PLACE (0) | 2023.08.01 |