
![]() |
![]() |
![]() |
Punto Arquitectos-CIMA Elementary School
기하학적이고 단순한 구조는 콘크리트의 물성과 함께 건축물의 견고한 이미지를 형성하는 언어로 사용된다. 교실 내부에 노출된 시설 또한 교육의 투명성을 나타낸다. 주요요소로 사용된 콘크리트의 질감과 원 색상의 사용은 웅장한 이미지를 잘 살려낸다.CIMA is a private education project at the basic level, located in Aguascalientes, Mexico. This building is part of an educational master plan located on a 15,000.00 m2 property, with a total of 1,800.00 m2 of construction.
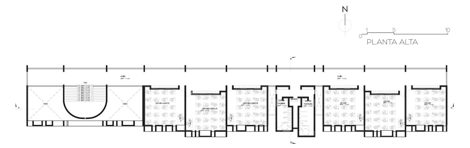
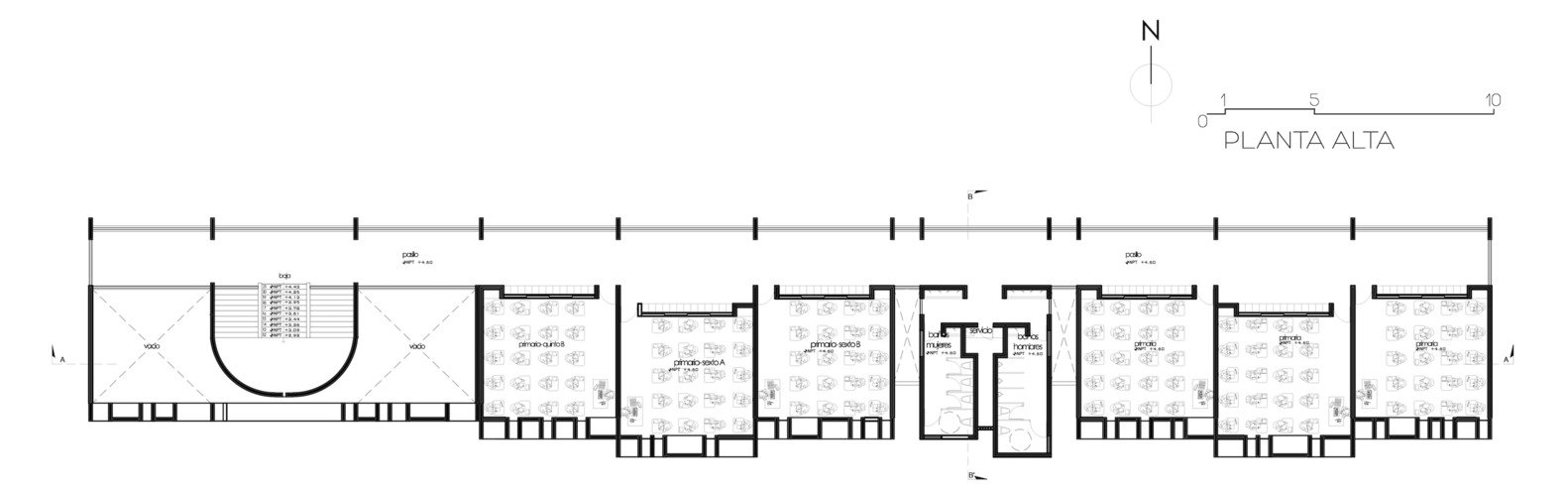
The project proposal consists of generating twelve blocks of classrooms distributed on two levels, using a connecting element that transmits depth. At the same time, the linear route creates certain pauses between the educational blocks.
The simple and geometrically clear structure, along with the honest materiality, pays tribute to the solidity proposed by the educational model of the institution. The facilities exposed within the classrooms represent the transparency of the education imparted. The geometries of the project are quite clear, with the access block serving as a vestibule, a rectangular geometry that houses a vertical circulation embraced by a semicircle of the same materiality. It expresses a certain grandeur through the use of color, without altering the texture and modulation of the concrete, which is the main element.
Concrete, as a constructive and visual element, allows us to strengthen the criterion of honesty proposed by the institution. Additionally, it provides thermal characteristics that benefit the project in response to its location. The design distributes a series of vertical elements on the south and north facades, which frame the different classrooms from the outside. The scheme is linear but presents a series of breaks between modules, creating openings between the volumes. The classrooms have a warmer materiality, such as the use of wood and treatments in neutral colors, mostly white, while still incorporating the raw material "concrete" in various ways.


























from archdaily
'Culture' 카테고리의 다른 글
| *호기심 센터 [ Studio Bright ] Firbank Sandringham Curiosity Centre (0) | 2023.11.01 |
|---|---|
| *이벤트 센터 [ RISCO ] Convento do Beato Event Center (0) | 2023.10.31 |
| *사이네살로 타운홀 [ Alvar Aalto ] The Säynätsalo Town Hall_A Confluence of Opposites (0) | 2023.09.06 |
| *빈티지 갤러리 [ DL Atelier ] Guo Zijian Hutong House (0) | 2023.08.10 |
| *커뮤니티 허브 [ fjcstudio ] Nunawading Community Hub (0) | 2023.08.02 |


