
![]() |
![]() |
![]() |
Schønherr-Filsø Visitor’s Center
필쇠 방문자 센터는 풍경속의 장소를 목표로 제안된다. 덴마크 자연청과 학교건물과 교육시설이 함께하는 아게.V.옌센의 자연재단의 협력으로 실현되었다. 방문자센터를 찾는 방문객들이 쉽게 알아 볼 수 있도록 출발점 역활과 지역 자연환경을 다양한 방식으로 연결하는 허브 역활을 함께 수행한다.























The visitor’s center at Filsø is a part of the campaign ”Places in the Landscape”, initiated by Realdania, as part of the campaign “The Place Counts”. The visitor’s center was realized in a collaboration between Realdania, The Danish Nature Agency and Aage V. Jensen’s Nature Foundation which also financed the school building/educational facilities. The visitor’s center at Filsø was to become a central hub for the many nature routes in the area as well as an easily recognizable point of departure for visitors to Filsø.
Located near Henne on the Danish west coast, Filsø was originally one of Denmark’s largest lakes, however, between the years 1852 and 1951 the area was drained and used for agricultural purposes along the impoverished coastal area. In 2011, Aage V. Jensen’s Nature Foundation acquired the area for the purpose of restoring it to its original state for the benefit of local residents and tourists.
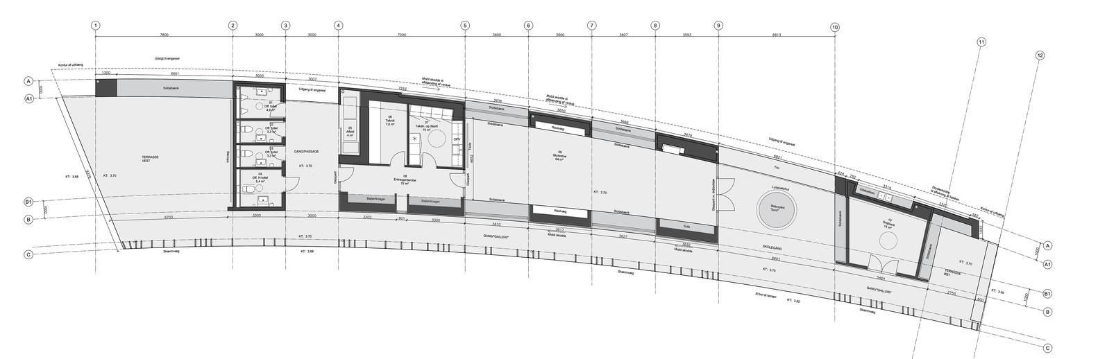
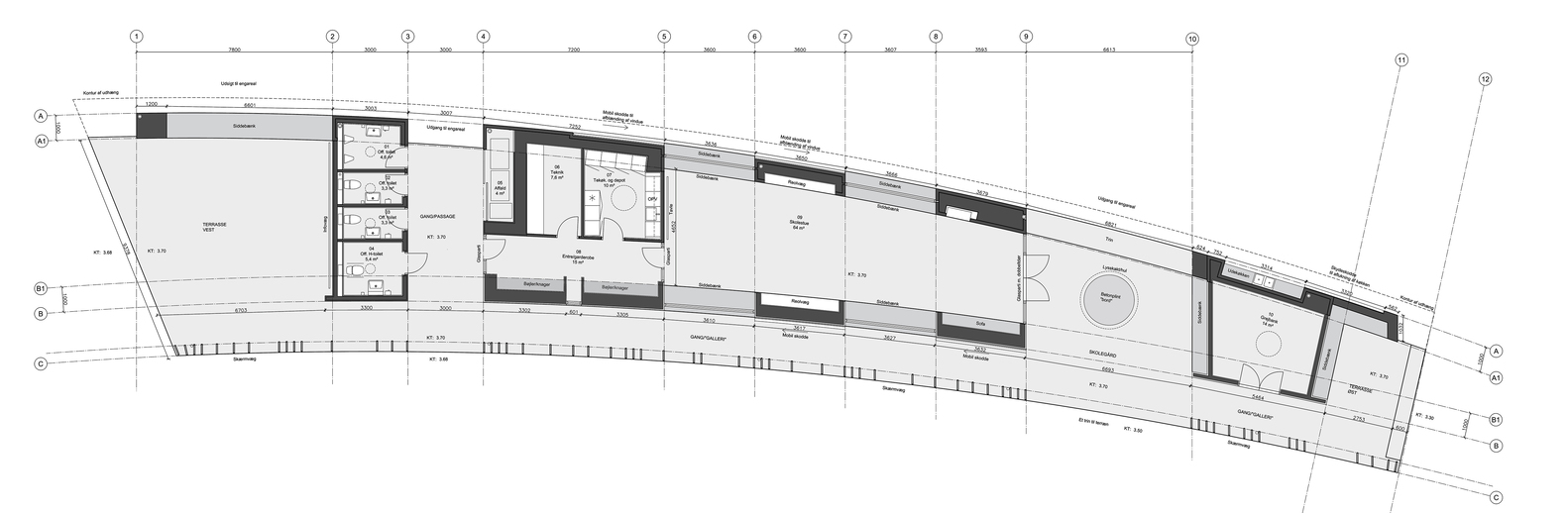
The visitor’s center consists of an access road, educational facilities, a landscape bridge, and a parking lot for visitors. The access road winds its way through a spectacular and protected landscape towards the parking lot and the large ellipse-shaped bridge, which in a single gesture anchors the building and unfolds the large horizon, created by the reflection in the water. From the bridge, it is possible to experience Filsø and the vast and spacious landscape. In a single, panning movement, visitors can get very close to the water's surface and the unique nature of the area. The ellipse shape accentuates the continuous movement through the area from arrival to departure. The bridge is designed with a solid seating edge, which offers visitors the possibility to take a break, sit down and enjoy the view. The school building, which functions as an anchor for the ellipse and counterpoint to the lake, follows the curved structure of the visitor’s center and thus becomes a natural part of the unity –and the movement in the landscape. The vertical shutters of the building mirror the nearby forest.
rom archdaily
'Pavilion&Installation' 카테고리의 다른 글
| *숲속의 파빌리온 [ Wiki World ] Fragrant Lake•Wiki World Natural Camp (0) | 2023.10.19 |
|---|---|
| *필 트리 하우스 리트리트 [ Arsenit ] Piil Tree House Retreat (0) | 2023.10.11 |
| *네스크 캐빈 사우나 [ Hoem + Folstad Arkitekter ] The Cuckoo's Nest Cabin (0) | 2023.09.21 |
| *스마달라뢰 사우나 [ Metropolis Arkitekter ] Sauna Smådalarö (0) | 2023.09.20 |
| *로키 크놉 사우나 [ GriD Architects ] Rocky Knob Sauna (0) | 2023.09.19 |


