
Metropolis Arkitekter-Sauna Smådalarö
사우나는 스톡홀름의 스마달라뢰에 위치한다. 건축주는 사우나, 작업장, 보트 장비와 카누를 보관할 수 있는 창고를 만들 계획이었다. 큰 지붕이 있는 전통적인 보트하우스에서 영감을 얻어 거대한 지붕 아래에 모든 기능을 갖춘 단순한 네모형태의 사우나 공간을 구축하였다.











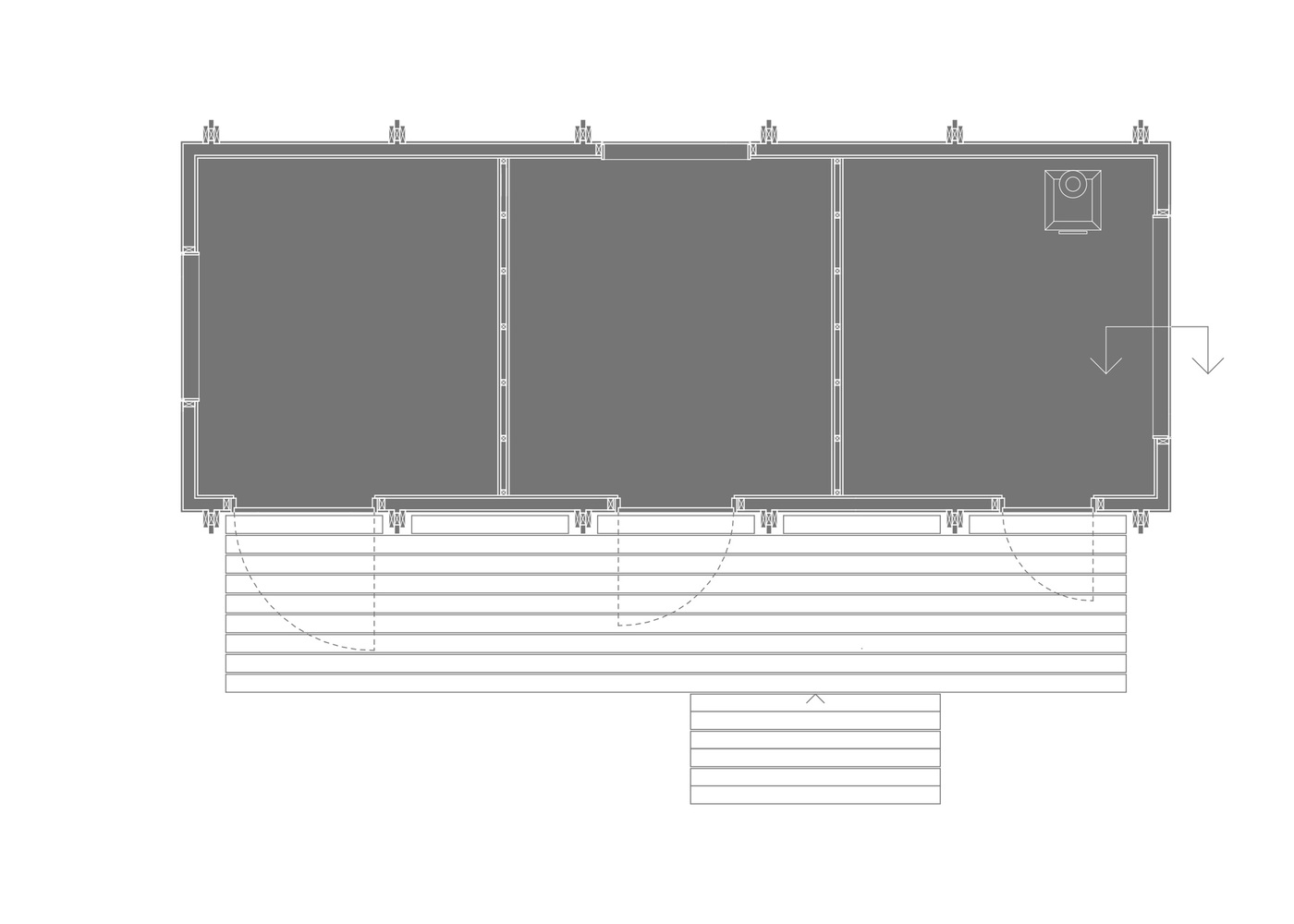
Sauna located in Smådalarö, in the Stockholm archipelago. The assignment was to create a sauna, workshop, and storage for boat equipment and canoes. We took inspiration from a traditional boathouse with its large roof and placed a simple box with all the functions underneath.
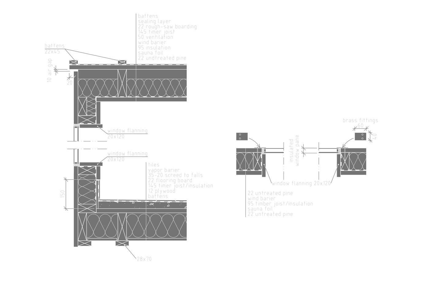
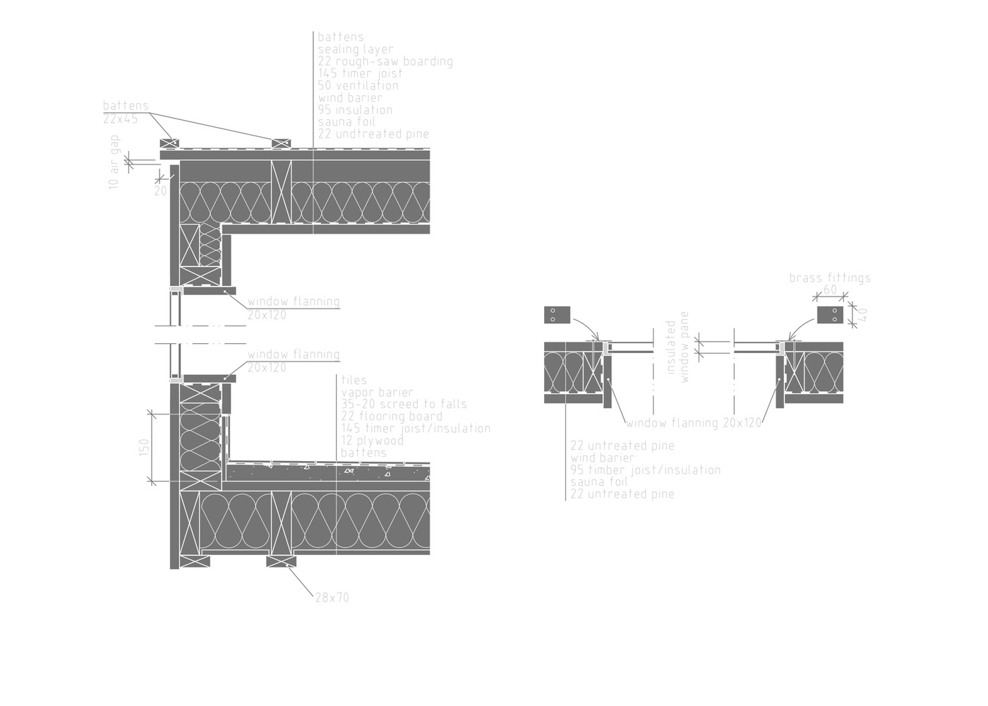
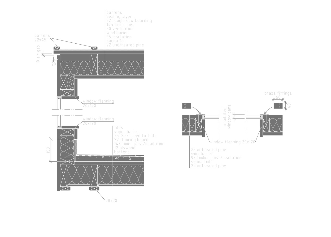
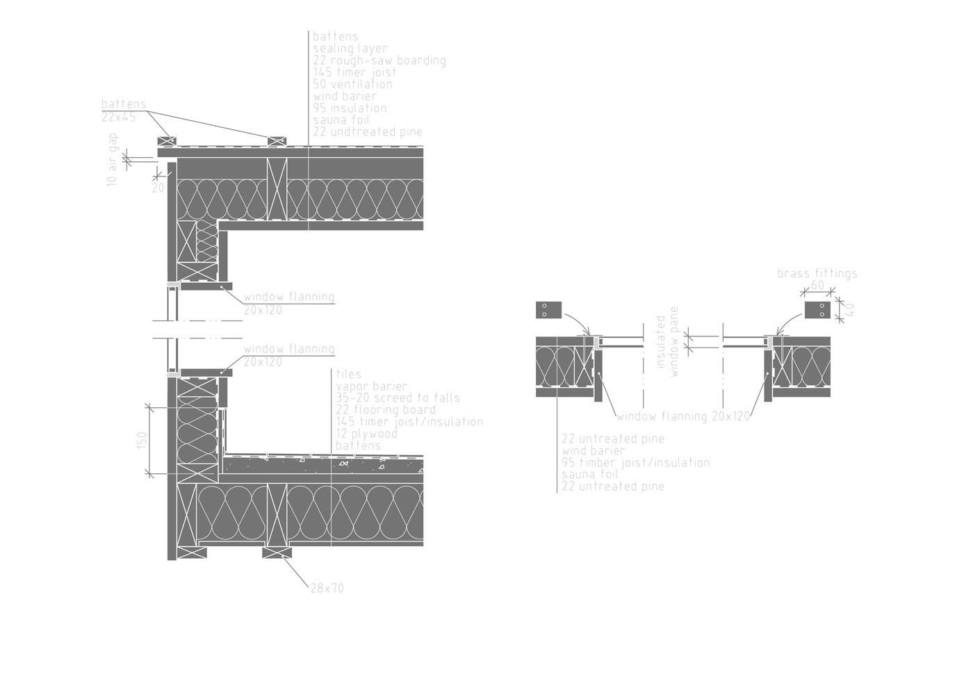
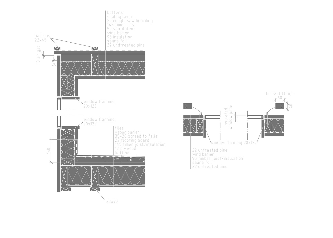
The space between the roof and the box provides space for canoes and oars. The large cantilever of the roof keeps the space dry. In our projects, the detail is especially important, and we usually try to use construction as an architectural element in an almost childish pedagogical way. In this building, we have chosen to expose the construction and clearly show how the box is suspended under the large roof. The windows in insulating glass are glued to the facade without a frame and secured with brass fittings.
At the exposed location on the cliff that slopes steeply towards the sea, the wind gusts are sometimes extremely hard, which has led to the construction of continuous screw joints. In the autumn at high tide, the sea reaches all the way up to the pillars. The facade and the wooden framework are made of untreated pine that over time turns gray and melts into the rocks. Altogether this gives the building a tectonic strong character.
from archdaily