
![]() | ![]() | ![]() |
MRTN Architects-House in the Dry
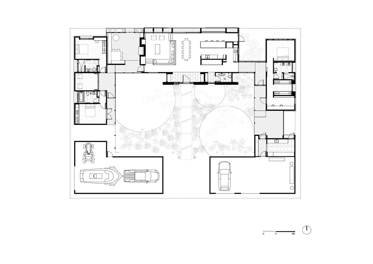
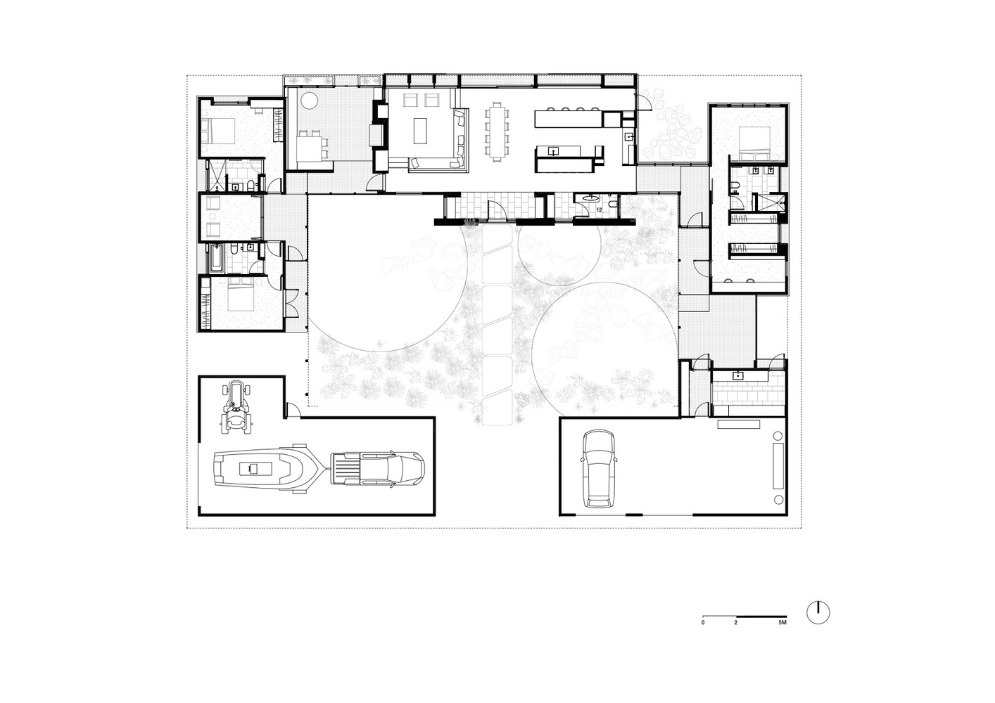
집의 미학과 재료는 전원에서 흔히 볼 수 있는 벽돌과 타일을 피하고, 금속지붕과 금속, 목재, 석재로 만든 벽을 사용하여 전원의 목가적인 건축양식을 완성하였다. 재료는 은색지붕, 검은색 시트, 철제 나무 껍질 목재등을 선택했다.














This semi-rural house on ex grazing land in Tamworth was designed to transform a scrubby, parched piece of land into an energy-efficient contemporary home set within a landscape of regenerated native plants.
This part of Australia is prone to drought, and it was during drought that we first visited the site, which was dry and dusty, with only a few yellow plants clinging to life. This meant that the design of the house was focused not only on regenerating the land and creating a garden but also on resisting drought conditions in the future. The creation of an almost totally enclosed courtyard garden in the center of the house was one way of dealing with this. At the front of the properties, two sheds connected by a roof also connect to the house on either side, forming a square around this central courtyard.
The aesthetics and materials of the house are designed with an agricultural aesthetic, eschewing the brick and tile of the ubiquitous suburban typology, with a metal roof and walls made of metal, timber, and stone. The materials were also chosen to be recessive including a dull silver roof, black sheets, and ironbark timber. Inside, rooms that are considered “interior” are finished in painted plasterboard, plus timber in the kitchen and tiles in the bathroom, while “outdoor” spaces are finished in brick, timber, and stone.
from archdaily
'House' 카테고리의 다른 글
| *그랑드 아치 콘크리트 Concrete arches overlook public square at Pôle Laherrère apartment (0) | 2023.10.09 |
|---|---|
| *베를린 주택 O'Sullivan Skoufoglou transforms Berlin bungalow with blocky extension (0) | 2023.10.06 |
| *트리하우스 [ Íntegra Studio Arquitetura ] Tree House (0) | 2023.09.29 |
| *볼트 디자인 [ VERNE arquitectura ] Casa Hara (0) | 2023.09.28 |
| *탑라이트 스텝드 월 하우스 [ Proctor & Shaw ] Stepped Wall House (1) | 2023.09.27 |


