
![]() |
![]() |
![]() |
Facit Homes-Stour House
부지가 '뛰어난 자연 경관 지역'에 자리 잡고 있기 때문에 새 주택은 계획 승인을 얻기 위해 입지에 민감하게 반응하는 모범적인 현대 건축물이 되어야 한다는 것이 분명했습니다. 설계 및 시공을 전문으로 하는 Facit Homes는 현대식 건축 방식(MMC)을 사용합니다. 고유한 Facit MicroFactory™를 현장에 직접 배치하여 집의 통합 고성능 섀시를 구성하는 엔지니어링 목재 부품을 제작하고 조립합니다. 최종 클래딩 마감재로는 서양 적삼나무가 선택되었는데, 이는 아름답게 노화되고 건물과 조화를 이루며 파우더 코팅된 알루미늄 패널과 창문으로 보완됩니다. 남쪽 입면의 1층에 있는 커다란 유리창은 자연광을 집 안으로 가득 채우고 강을 바라보는 멋진 전망을 제공하며, 1층의 깊은 창문은 각도로 뻗어 있어 그림처럼 완벽한 장면을 연출할 수 있도록 도와줍니다. translate by DeepL




































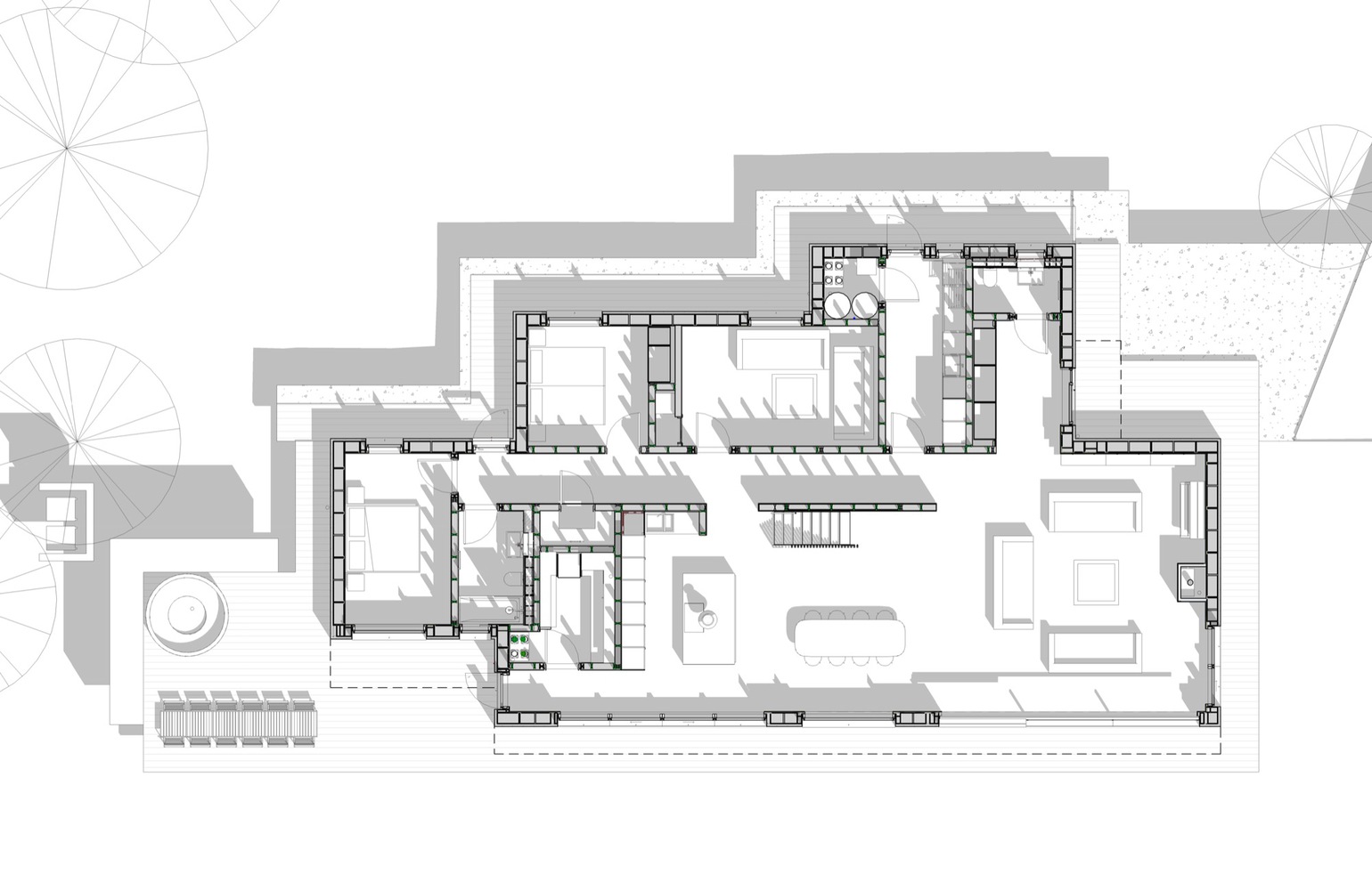
As the site is set within an ‘Area of Outstanding Natural Beauty’, it was clear that the new home would need to be an exemplary piece of contemporary architecture that was sensitive and responsive to its location to secure planning approval. As a practice that designs & builds - Facit Homes uses Modern Methods of Construction (MMC). Deploying their unique Facit MicroFactory™ directly onto the site to fabricate and assemble the engineered wood components that form the integral high-performance chassis of the home.
Western red cedar was selected for the final cladding finish, which will age beautifully and help blend the building into the area, complemented with powder coated aluminum panels and window reveals. Large swathes of glazing on the ground floor of the southern elevation flood the house with natural light and allow stunning views out to the river, and deep window reveals on the first floor, which splays out at angles, help frame picture-perfect scenes.
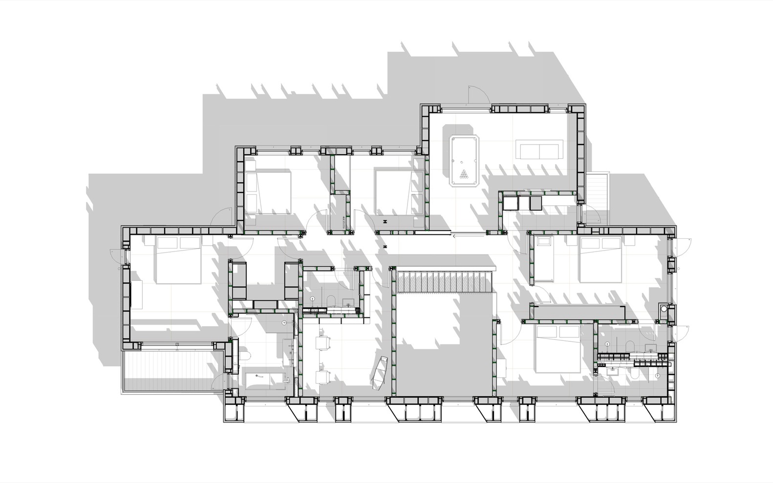
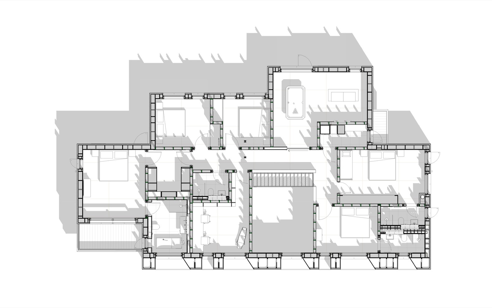
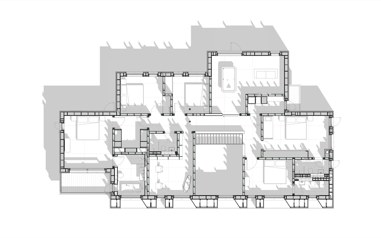
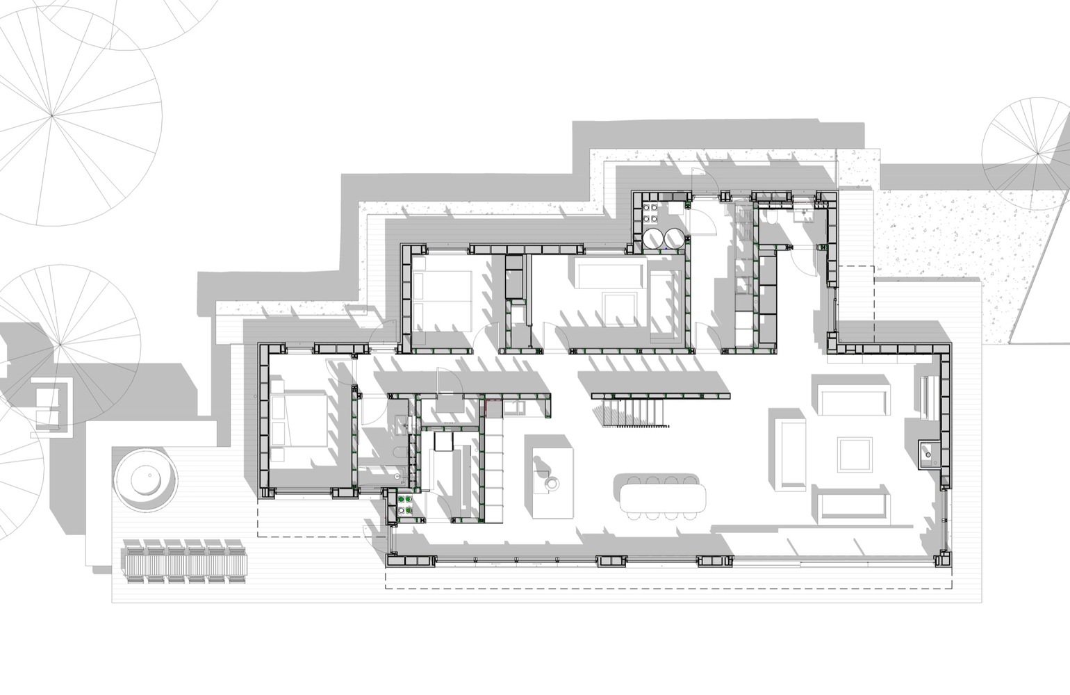
Great care was taken to break up the massing and articulate the elevations by visually separating the ground and first floors. Internally, a large open plan ground floor gives the family lots of space to hang out and entertain, with a central void above the dining area adding drama. Upstairs, the principal spaces all enjoy incredible views to the south, framed by the splayed window reveals, with the master suite also having a private balcony.
from archdaily


