
DeMachinas + Elina Loukou-Three Object Apartment
1. 새로운 아파트로의 변화
- 이 현대주의 건물의 1층 평면의 개조는 내부 공간을 현대적인 아파트로 업그레이드하는 동시에 미완성된 건축에 대한 연구다. 클라이언트와 함께 우리는 사이트의 기존 특성에 완벽하게 맞춘 미적을 탐구하고 실험했다.
2. 현대적인 건물의 재조정
- 이 건물은 주거 지역에 위치해 있으며 현대주의 건축 원칙에 따라 설계되었다. 원래 이 건물은 층마다 하나씩 세 개의 다른 소유물로 나뉘어져 있었다.
3. Pilotis와 그 활용
- Pilotis는 주로 아테네에서 주차 공간으로 사용된다. 이 경우에는 사용자들에 의해 조정 가능한 비어있는 사적인 덮인 영역으로 구성되어 있다.
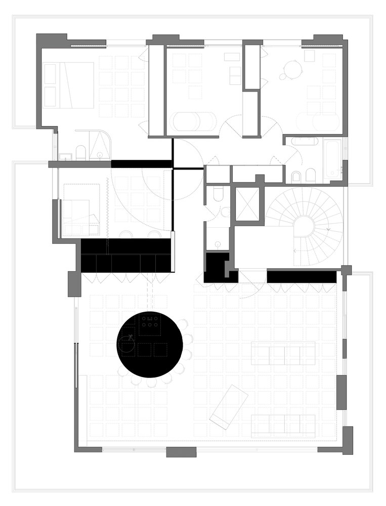
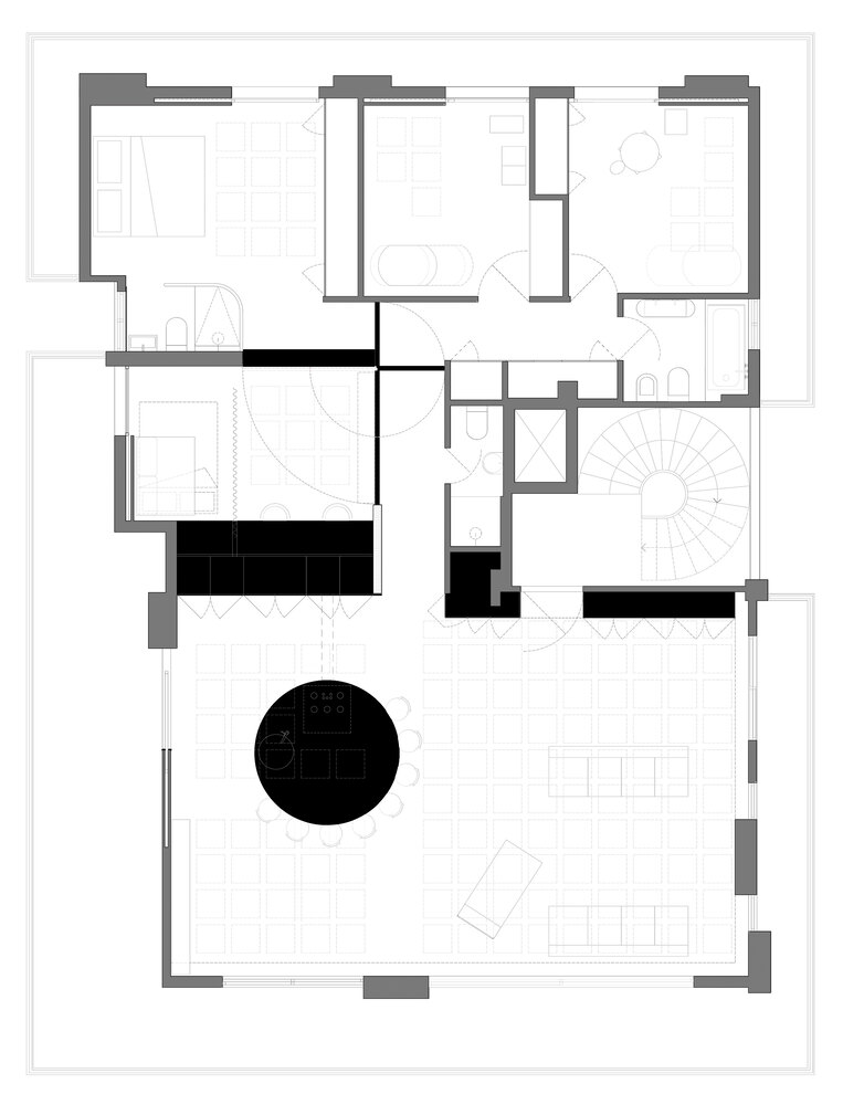
4. Three Object Apartment 내부
- Pilotis가 제공하는 유연성은 1층 주택에 영감을 줬다. 클라이언트는 최대한의 유연성과 개방성을 갖춘 집을 요구했다. 우리의 설계는 이 프로그램에 대한 대응으로 아파트를 그 뼈대까지 해체하여 외부 껍질과 와플 천장을 드러내고 세 개의 중간 규모 기능적 오브제를 도입했다. 원형 주방 섬은 작업대와 식사 테이블의 결합으로 사교적인 요리와 집합을 유도한다. 깔끔한 저장 블록에는 부엌 식료품 저장실, 망토, 옷장 및 유틸리티가 포함되어 있다. 십자가는 대규모 회전판 두 장과 중심을 중심으로 회전하는 두 개의 피벗 문으로 이루어진 복도 분할로 인접한 방들에 유연성을 제공한다.
결과문: Three Object Apartment는 현대적인 아파트로의 변화를 통해 클라이언트의 요구에 부응하는 최대한의 유연성과 개방성을 제공한다.
translate by chatGPT



















Three Object Apartment. The renovation of the first floor flat of this modernist building upgrades the interior space to an up-to date apartment, whilst also being a study on unfinished architecture. On this project, together with the clients, we explored and experimented with an aesthetic fully tailored to the existing qualities of the site, as acquired. Located in a highly residential area, the building has been designed following modernist architectural principles.
It was originally split into three different properties, one per floor, with the common area of Pilotis on the ground floor. The building had been barely appealing to developers or private owners and was left abandoned for the past thirty years. The family who bought the first floor perceived it as a ‘dwelling canvas’, both on the first level and Piloti's level. Pilotis are usually used as a parking space in the city of Athens. In this case, it consists of a private covered area empty of programs, therefore available to be adapted by the users ad-hoc.
Inside the Three Object Apartment. The flexibility provided by the Pilotis inspired the dwelling on the first floor. The clients required a home with maximum flexibility and openness. Our design response to this program was to strip back the apartment to its bones, revealing the external shell, and the waffle ceiling and introducing three medium scale functional objects. A round kitchen island forms an amalgamation of a worktop and a dining table, inviting social cooking and gatherings.
The neat storage block contains the kitchen pantry, cloak, wardrobes, and utilities. The cross, a corridor partition made of two large pivot panels and two pivot doors rotating around one center, brings flexibility to the adjacent rooms. It forms divisions between private and public areas and is a mechanism that unifies or separates the different compartments of the house, depending on the family’s needs.
from archdaily