
![]()  | 
![]()  | 
![]()  | 
Atelier d'Architecture Gardera-Pastre-Third Space for Creatives
낭트 섬, 산업유산을 살린 크리에이티브 공간 "써드 스페이스"
부제목: 아뜰리에 다르키텍튀르 가르데라-파스트르, 과거의 흔적을 살린 새로운 활력
1. 낭트 섬, 산업의 흔적을 간직한 활기로운 공간 탄생
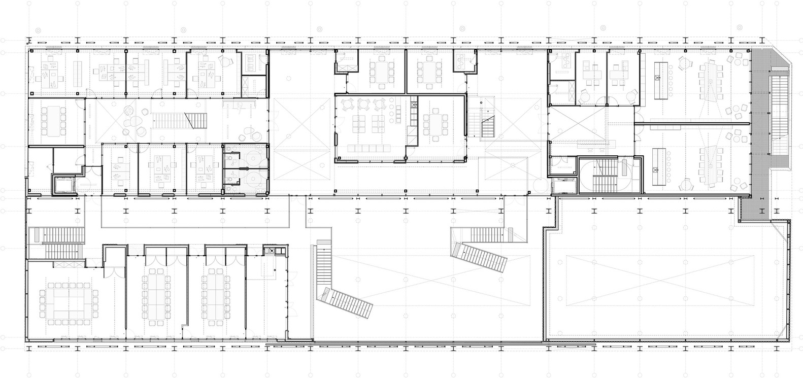
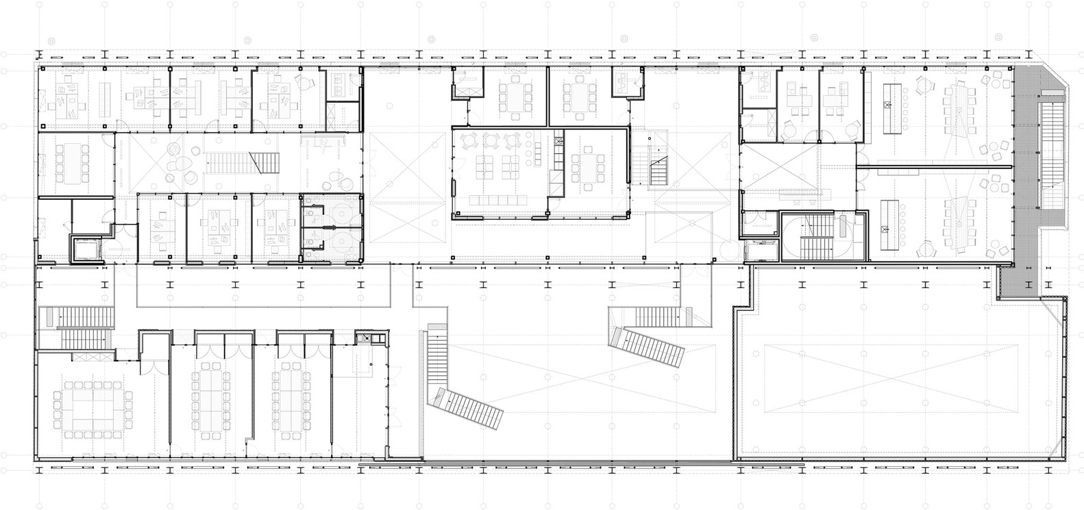
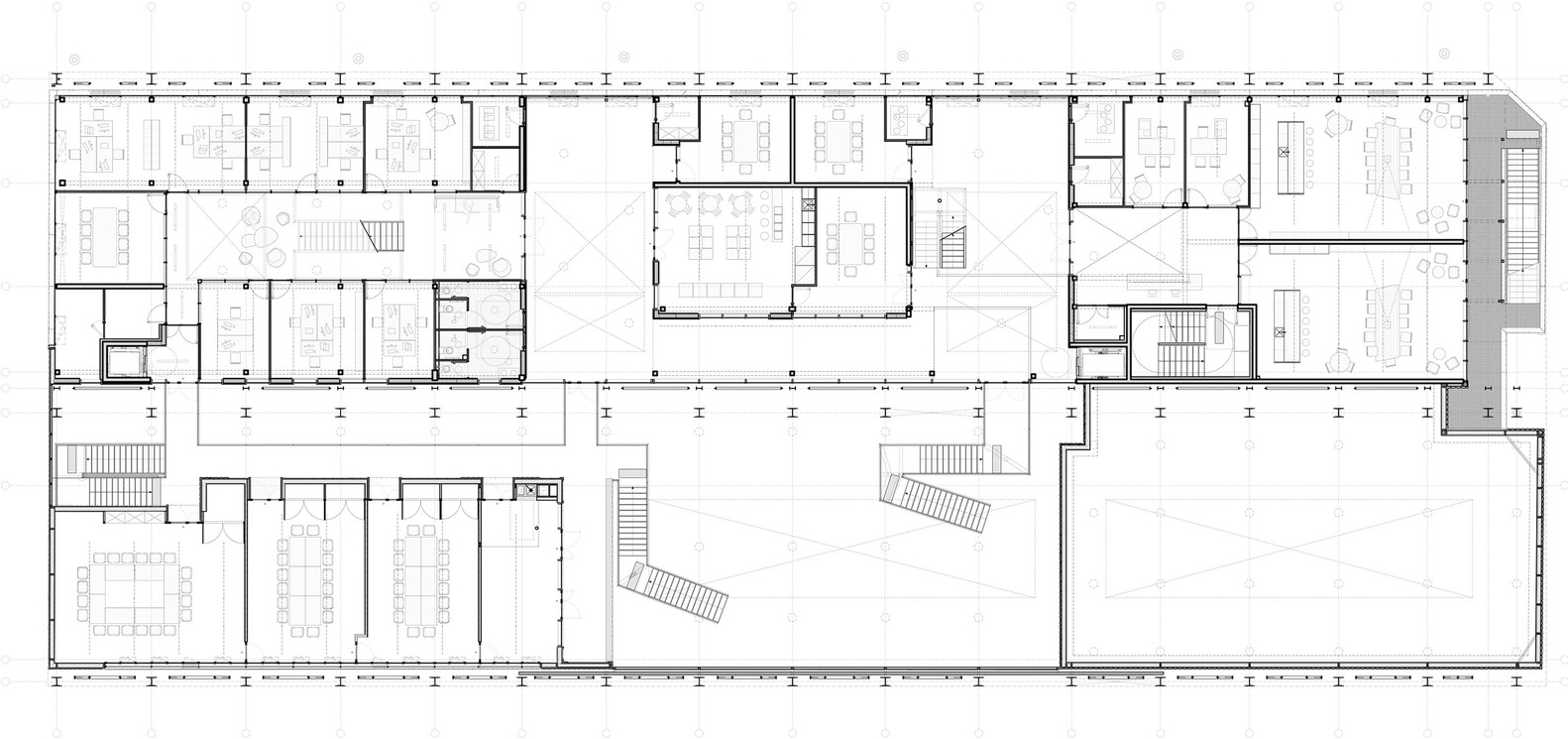
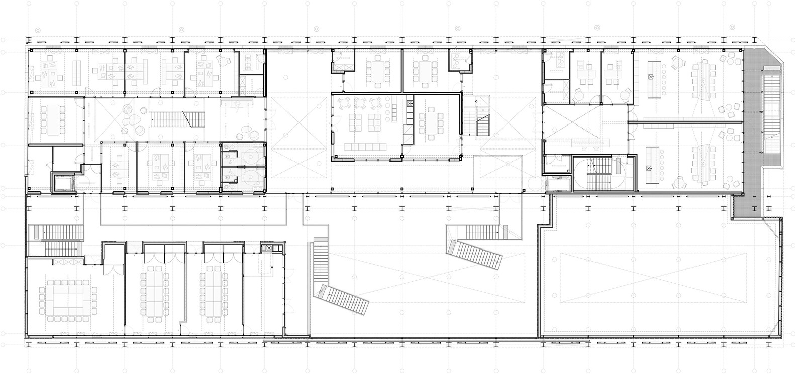
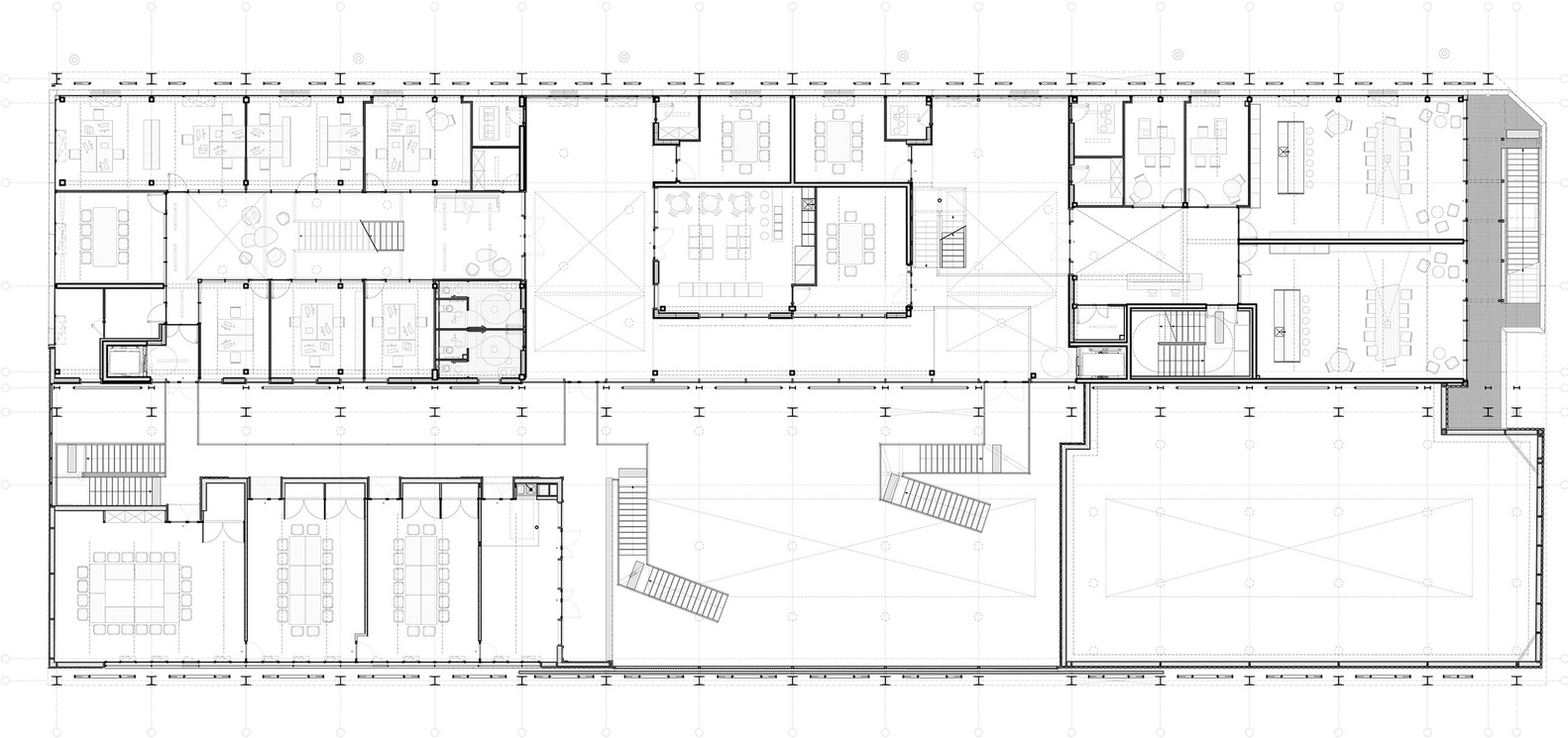
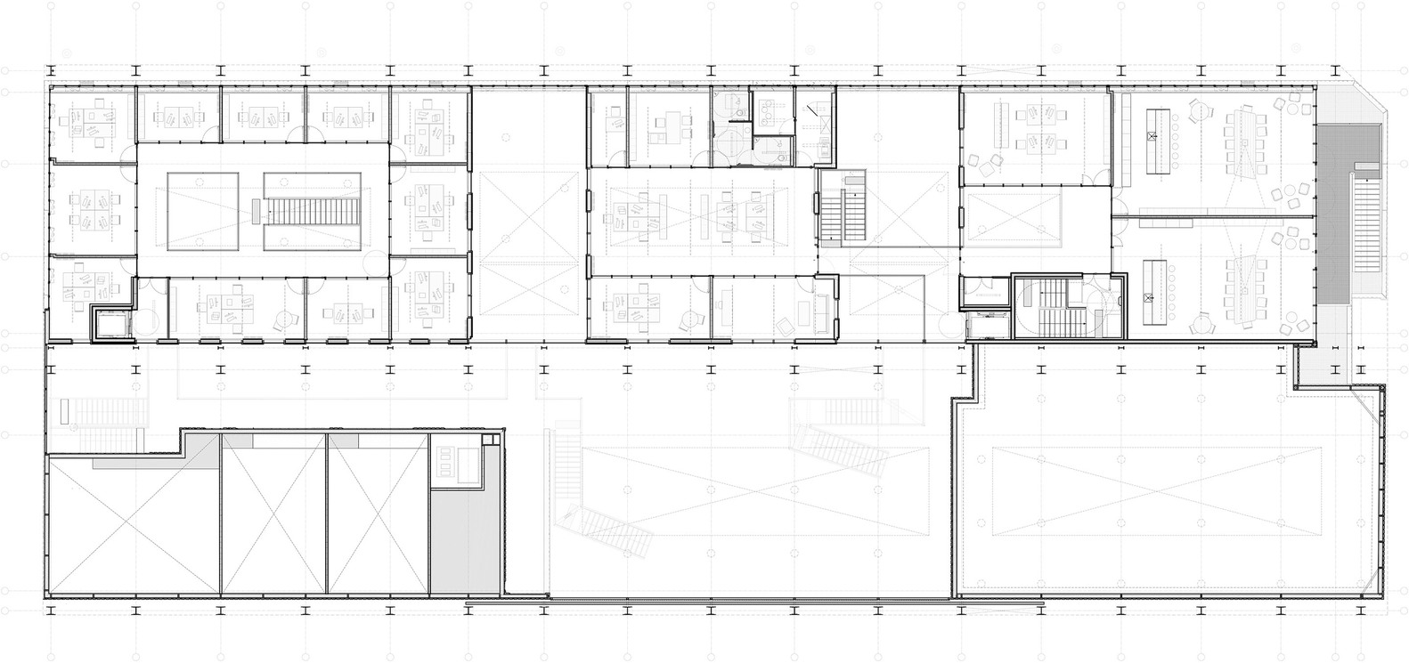
프랑스 낭트 섬의 할 1&2는 과거 산업 단지였던 곳을 재개발하는 마지막 구역입니다. 건축가 아뜰리에 다르키텍튀르 가르데라-파스트르는 과거 산업창고의 모습을 살리면서도 새로운 기능을 가진 활기찬 공간을 만들고 싶었습니다.
2. 산업유산을 존중하는 디자인
구 건물의 철골 구조를 그대로 보존하고 유리와 금속 같은 산업적인 재료를 사용하여 건물의 역사를 반영했습니다. 20미터가 넘게 열리는 거대한 슬라이딩 도어는 마치 외부 공간이 실내로 들어오는 것처럼 느껴지게 합니다.
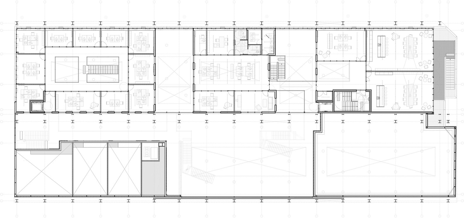
3. 다채로운 기능을 담은 공간
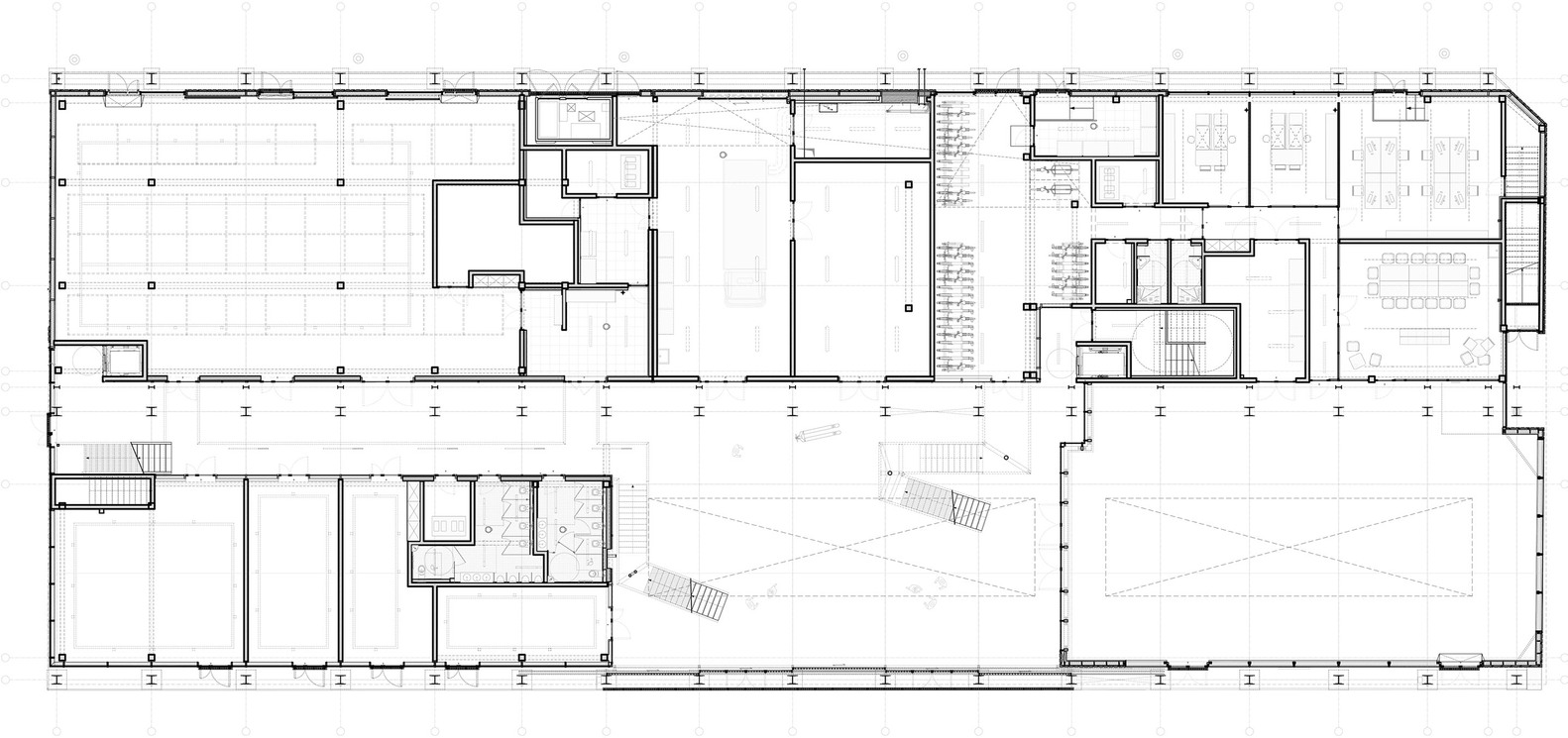
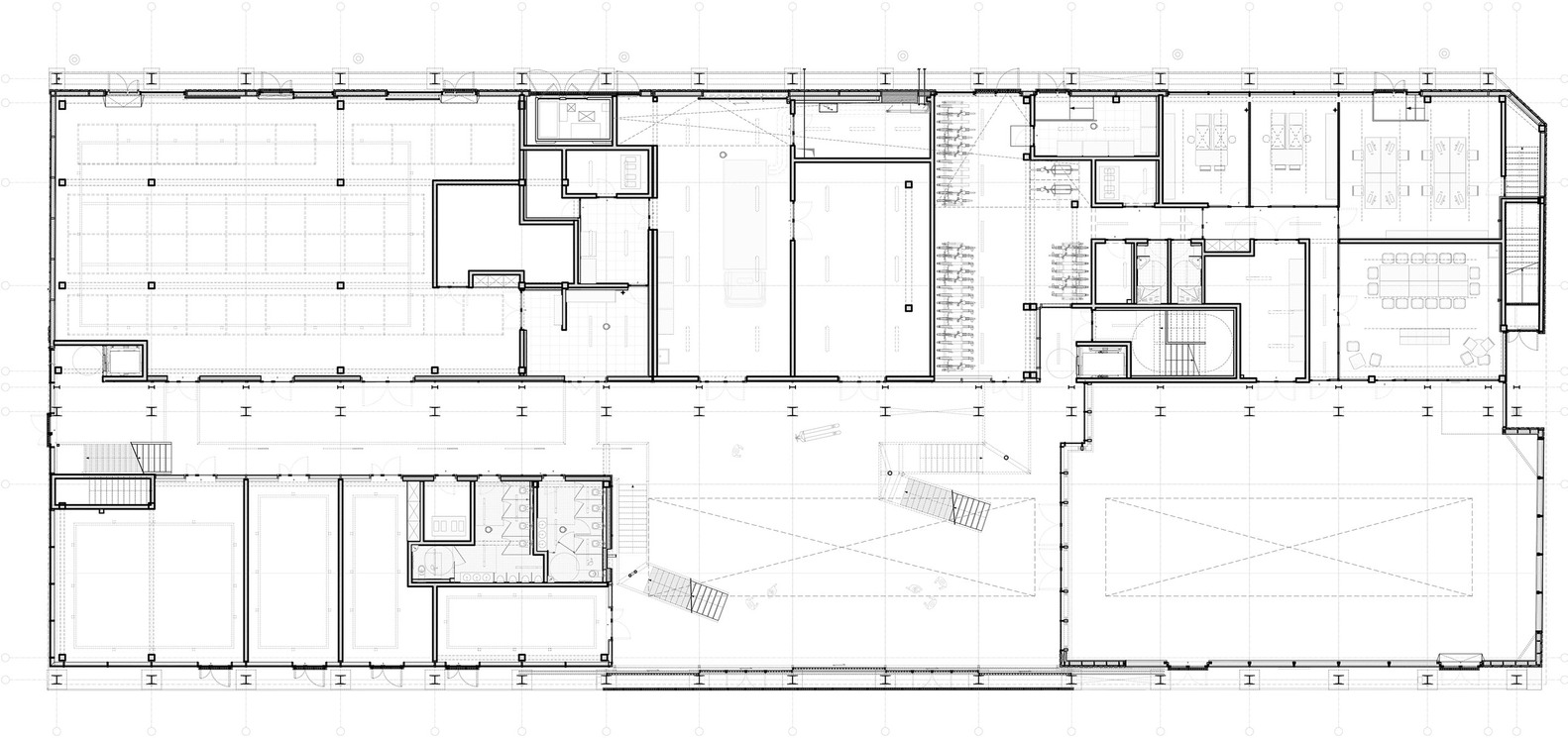
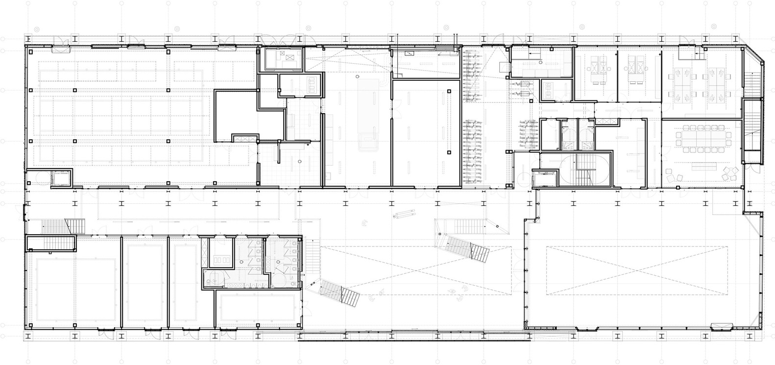
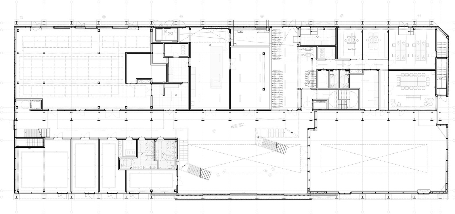
1층은 컨테이너 같은 분위기를 가지고 있으며, 전시, 사무실, 창업 지원 센터, 공동 작업 공간, 워크숍 등 다양한 기능을 한 건물에서 모두 이용할 수 있습니다. 폴리카보네이트 패널과 이중 슬라이딩 도어 덕분에 1층은 닫혀있을 때에도 밝습니다. 사무실과 작업場は 따뜻한 느낌의 목재 파티션으로 구분되어 있습니다.
4. 과거와 미래를 연결하는 공간
아뜰리에 다르키텍튀르 가르데라-파스트르는 "써드 스페이스 for 크리에이티브"를 통해 과거의 산업 유산을 존중하면서도 새로운 활력을 불어넣고, 예술과 창업 활동을 지원하는 다기능 공간을 만들었습니다.
translate by Gemini





























Halles 1&2, the last site to be redeveloped within the Ile de Nantes industrial complex, is part of a district already defined by the site plan created by architect Franklin Azzi. Emblematic of the building's industrial history, the metal framework, a reminder of its original function, has been preserved. 
The materials used in the renovation, such as glass and metal, also reflect this heritage. The floors are new, with industrial concrete slabs. The renovation of the industrial building is rooted in its industrial history and preserves its codes. 
Thanks to the sliding doors, the façade opens over 20 meters and the public space extends into Halles 1&2. The refurbishment created an urban village in direct communication with the forecourt of the Ecole des Beaux-Arts and brought the city inside the building into a district already defined by the plan. 
The first floor features spaces reminiscent of containers. Volumes are more opaque, and light is controlled to ensure thermal comfort for users. Several functions have been combined in a single building: exhibitions, offices, business incubators, Fab lab, shared spaces, workshops, etc. The agency worked in an interior space that had already been de-finished, preserving the metal framework. Blocks were inserted inside the building, and the organization of the spaces was designed in trays. 
As soon as you enter the hall, the volumes and their functionalities are revealed. The ground floor space is luminous, even when closed, thanks to polycarbonate panels and double sliding doors. The material of these panels also ensures user comfort by preheating the air to create a temperate space. The offices and workshops are partitioned by wood in natural shades, bringing warmth to the space and guaranteeing acoustic performance for users.
from archdaily


