
![]() |
![]() |
![]() |
홍수를 이겨낸 설계: AKM 유치원의 안전한 건축 비밀
#### 서론
AKM 유치원과 어린이집은 일본 구마모토 현 아시키타군에 위치한 주목할 만한 건축 프로젝트입니다. 이 유치원은 환경 문제와 육아 문제를 동시에 해결하기 위해 설계되었습니다. 푸르른 산과 아름다운 해안선 사이에 자리잡고 있는 이 유치원은 아이들에게 안전하고, 흥미롭고, 지속 가능한 환경을 제공하는 것을 목표로 합니다. 이 글에서는 이 유치원의 주요 특징과 설계 철학을 자세히 살펴보겠습니다.
#### 홍수 방지를 위한 언덕 위의 유치원
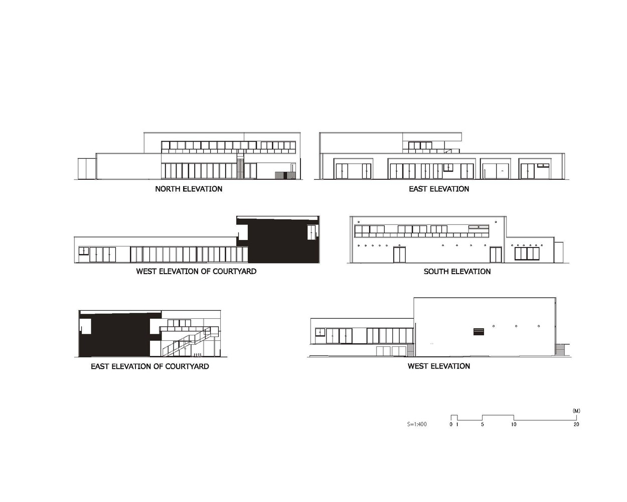
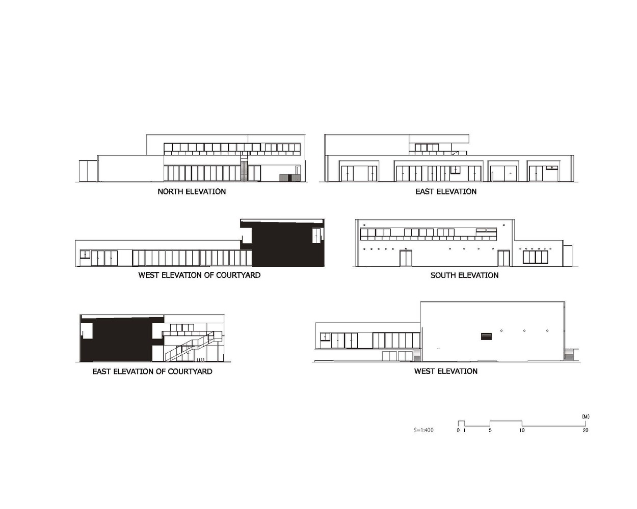
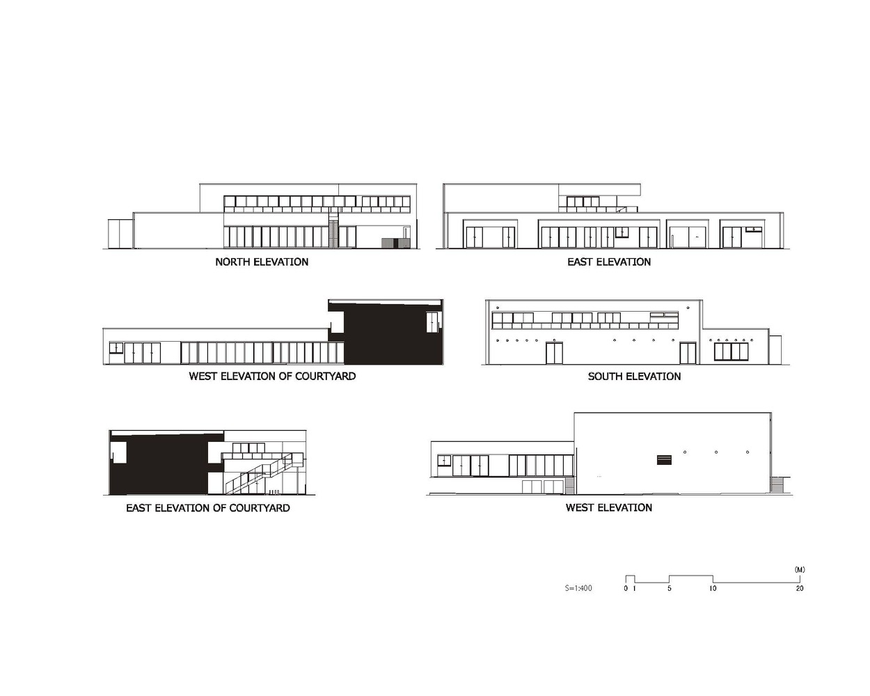
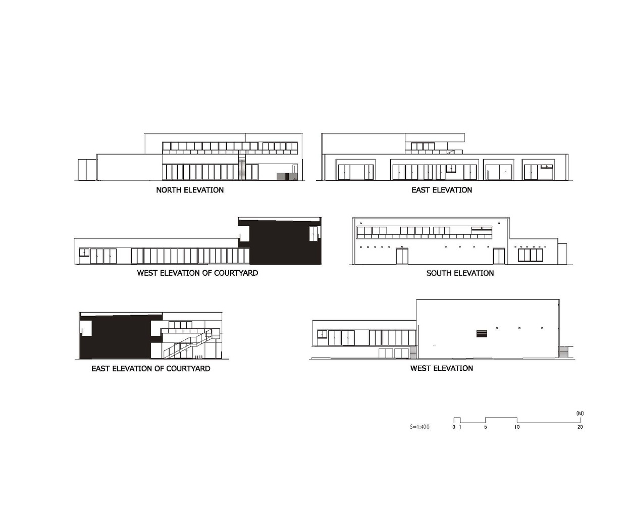
AKM 유치원과 어린이집의 주요 설계 고려 사항 중 하나는 홍수 방지였습니다. 기존의 유치원 건물은 집중호우로 인한 하천 범람으로 침수 피해를 입은 바 있습니다. 이러한 상황을 방지하기 위해 새 유치원은 '언덕 위의 유치원'으로 계획되어 지면에서 2미터 높이로 바닥을 설정하였습니다. 이 높이는 자연스럽게 홍수를 예방하는 역할을 하여 아이들의 안전을 보장합니다.
#### 자연과의 통합
이 유치원의 설계 개념은 바다와 산이 만나는 자연환경에서 깊은 영감을 받았습니다. 건축물과 정원이 자연스럽게 연결되도록 설계되어 아이들이 쉽게 자연과 교감할 수 있습니다. 다양한 식물로 채워진 구불구불한 정원은 신체 활동을 장려하고, 호기심을 자극합니다. 이러한 디자인은 아이들의 신체 활동 부족과 야외 놀이 감소와 같은 육아 문제를 해결하는 데 도움을 줍니다.
- **구불구불한 정원**: 아이들의 신체 활동을 장려합니다.
- **다양한 식물**: 호기심과 학습을 자극합니다.
- **홍수 대비**: 높이 설계로 홍수를 예방합니다.
#### 내부 디자인과 편안함
유치원의 내부는 지역의 매력적인 경관에서 영감을 얻은 테마 색상으로 각 공간에 고유한 개성을 부여합니다. 벽과 천장에는 나무를 사용하여 습도 조절을 개선하였고, 편안한 원목 바닥은 휴식을 향상시킵니다. 가구는 실내 디자인과 통합되어 하나의 통일된 공간을 만들어냅니다.
- **테마 색상**: 지역 경관에서 영감을 받았습니다.
- **나무 요소**: 습도 조절과 편안함을 향상시킵니다.
- **통합된 가구**: 통일된 디자인을 만듭니다.
#### 지속 가능한 건축
유치원의 U자형 평면도는 대형 개구부를 통해 자연광과 바람이 실내 깊숙이 들어오도록 설계되어 지속 가능성을 높였습니다. 테라스에 있는 수영장은 건물 내부와 외부를 연결하여 아이들이 물놀이를 쉽게 즐길 수 있도록 하고, 물의 증발열을 이용하여 건물을 자연스럽게 냉각합니다.
- **U자형 평면도**: 자연광과 환기를 극대화합니다.
- **수영장**: 놀이와 냉각을 동시에 제공합니다.
- **지속 가능한 디자인**: 인공 기후 조절에 대한 의존도를 줄입니다.
#### 지역 사회와의 통합
AKM 유치원과 어린이집은 지역 사회 내에서 랜드마크 역할을 할 수 있도록 설계되었습니다. 개방적이고 환영하는 외관은 유치원을 지역 사회에 뿌리내리게 하고, 아이들이 자랄 수 있는 안전하고 따뜻한 공간을 제공합니다.
- **랜드마크 디자인**: 강력한 지역 사회 존재감을 만듭니다.
- **개방적인 외관**: 환영하고 포용적인 분위기를 조성합니다.
#### 결론
AKM 유치원과 어린이집은 신중한 건축 설계가 환경 문제를 해결하면서도 아이들에게 풍요롭고 안전한 환경을 제공할 수 있음을 보여줍니다. 자연 요소의 통합, 지속 가능성 촉진, 지역 사회와의 유대 강화를 통해 이 유치원은 미래 교육 시설의 높은 기준을 제시합니다.
### 서브토픽 요약
1. **홍수 방지**: 홍수를 예방하기 위한 언덕 위의 설계.
2. **자연과의 통합**: 건축물과 자연 환경의 원활한 교류.
3. **내부 편안함**: 지역 경관에서 영감을 얻은 테마 색상과 나무 요소 사용.
4. **지속 가능한 디자인**: 자연광과 환기 극대화 및 증발열 이용한 냉각.
5. **지역 사회와의 통합**: 랜드마크 역할을 통해 지역 사회와의 강한 유대 형성.
이러한 측면들을 통해 AKM 유치원과 어린이집은 아이들의 안전과 웰빙을 보장함과 동시에 지속 가능하고 지역 사회 중심의 교육 환경을 조성합니다.
translate by ChatGPT
















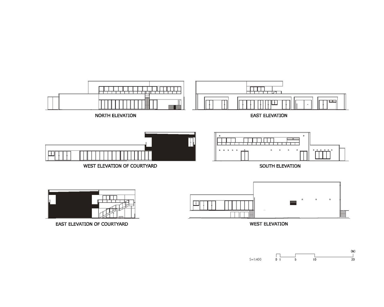
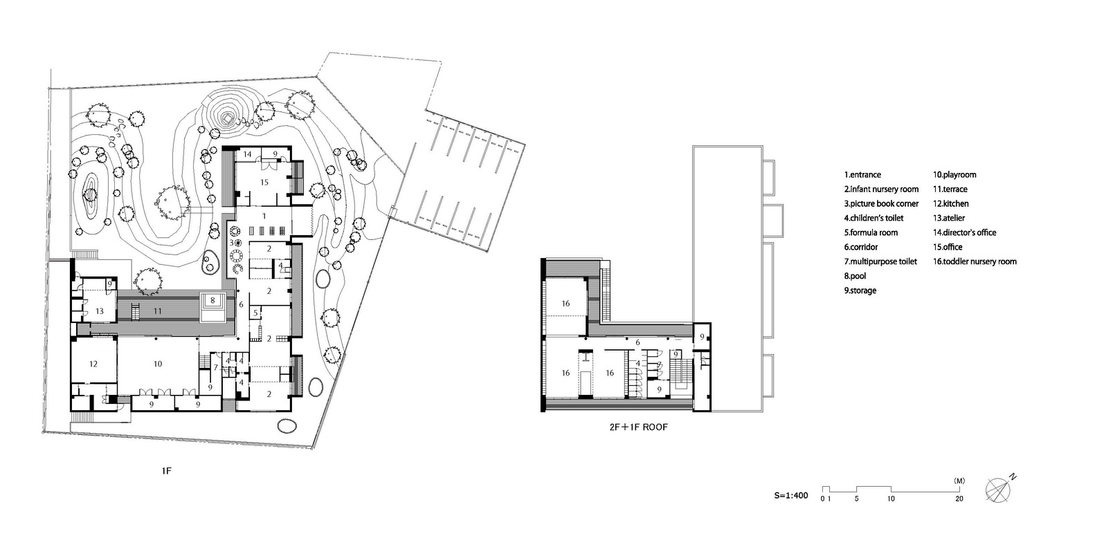
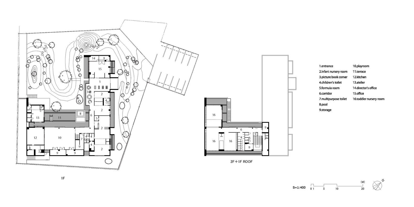
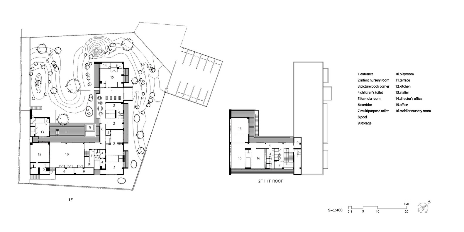
The nursery stands in Ashikita-gun, Kumamoto Prefecture, which has lush green mountains and beautiful coastlines. In response to the flooding of the existing nursery building due to a river overflow caused by heavy rains, we planned a "hilltop nursery to protect children from flooding" by placing soil on the ground and setting the floor level at 2 meters above the ground.
Based on the concept of the characteristic landscape where the sea and mountains intersect, we aimed to create a nursery where the building and the garden intersect, and children can easily get close to nature.
The large, undulating garden encourages children to exercise, and the wide variety of plants stimulates children's curiosity, thus providing disaster preparedness as well as solving childcare issues such as children's lack of physical activity and decreased outdoor play.
For the interior, theme colors were chosen from the attractive landscape of the region to give each space its own character. To create a comfortable living environment, a portion of the walls and ceilings were made of wood to improve humidity control. The floor is made of comfortable solid wood flooring to enhance the relaxing effect. Furniture was designed to be integrated with the interior design and age to create a unified space.
The U-shaped, wide, exterior facing floor plan with large openings allows natural light and wind to fully reach deep into the rooms to create a sustainable architecture. A swimming pool on the terrace connecting the inside and outside of the building allows children to play in the water easily and also brings cooled air into the building using the vaporization heat of the water. The landmark-like appearance of the building, which is open to the community, will be rooted in the community and provide a safe place for children to grow up.
from archdaily


