
![]() |
![]() |
![]() |
자연 속에서 배우다: 루돌프 슈타이너 대학의 유연한 공간 설계
브라질 알토 다 보아 비스타(Alto da Boa Vista)에 위치한 루돌프 슈타이너 대학(Rudolf Steiner University)의 새로운 교육학 및 심리학 본부는 비셀리 카치보리안 아키텍토스(Biselli Katchborian Arquitetos)가 설계했습니다. 이 프로젝트는 마리오 비셀리(Mario Biselli)와 아르투르 카치보리안(Artur Katchborian) 파트너가 이끌었으며, 발도르프 교육학의 전체적 가치와 자연과의 조화에서 영감을 받았습니다. 이 건물은 단순한 교육 공간을 넘어, 자연과 사람이 함께 어우러지는 특별한 장소를 만들고자 하는 노력이 담겨 있습니다.
### 프로젝트 개요
- **건축 회사**: 비셀리 카치보리안 아키텍토스 (Biselli Katchborian Arquitetos)
- **파트너**: 마리오 비셀리(Mario Biselli), 아르투르 카치보리안(Artur Katchborian)
- **위치**: 브라질 알토 다 보아 비스타(Alto da Boa Vista)
- **건축 면적**: 약 3,850 평방미터
- **용도**: 루돌프 슈타이너 대학의 교육학 및 심리학 본부
### 디자인 영감 및 개념
이 프로젝트는 발도르프 교육학의 전체적 가치에서 영감을 받아 자연과의 밀접한 관계를 강조합니다. 디자인은 부지 중심에 있는 백년 된 망고 나무를 보존하고, 이를 중심으로 건물의 배치를 구성했습니다. 이 U자형 구조는 건물 내 모든 환경이 이 자연 요소를 향하도록 하여 학생들이 자연과 상호작용할 수 있도록 합니다.
### 구조적 및 재료 선택
부지의 크기가 작기 때문에 철강이 주요 구조 재료로 선택되었습니다. 철강은 기둥 없이 넓은 거리를 가로지를 수 있어 1층에 기둥이 필요하지 않습니다. 이는 건물이 초대적이고 방해받지 않는 공간을 만드는 프로젝트 목표와 일치합니다. 목재는 디자인에서 문자 그대로와 상징적으로 사용되었습니다:
- **문자 그대로의 사용**: 내정된 마당을 향한 목재 구조물과 학생들을 위한 고정 가구로 변환되는 엔지니어드 우드(엔지니어드 목재) 구조물.
- **상징적인 사용**: 금속 표면의 외장재와 차양 장치에 미세하게 보이는 유기적인 목재 패턴.
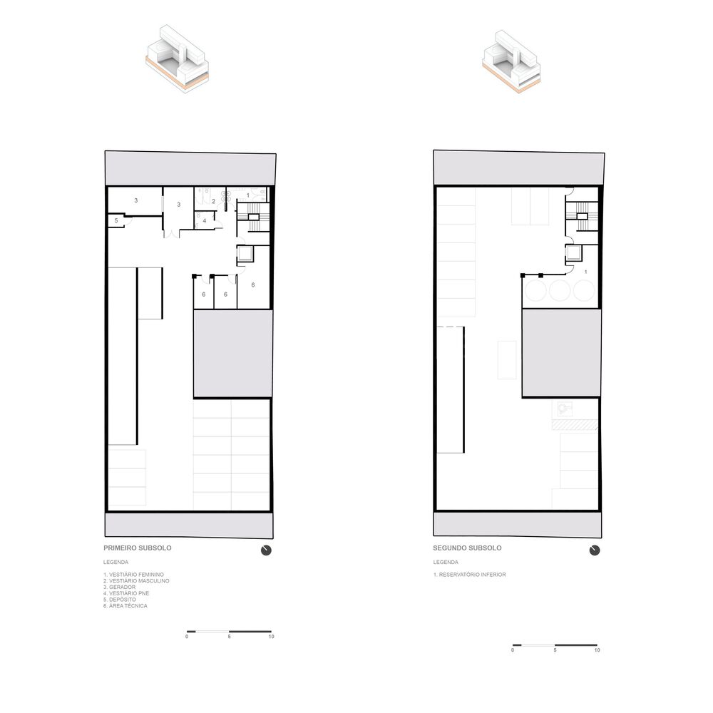
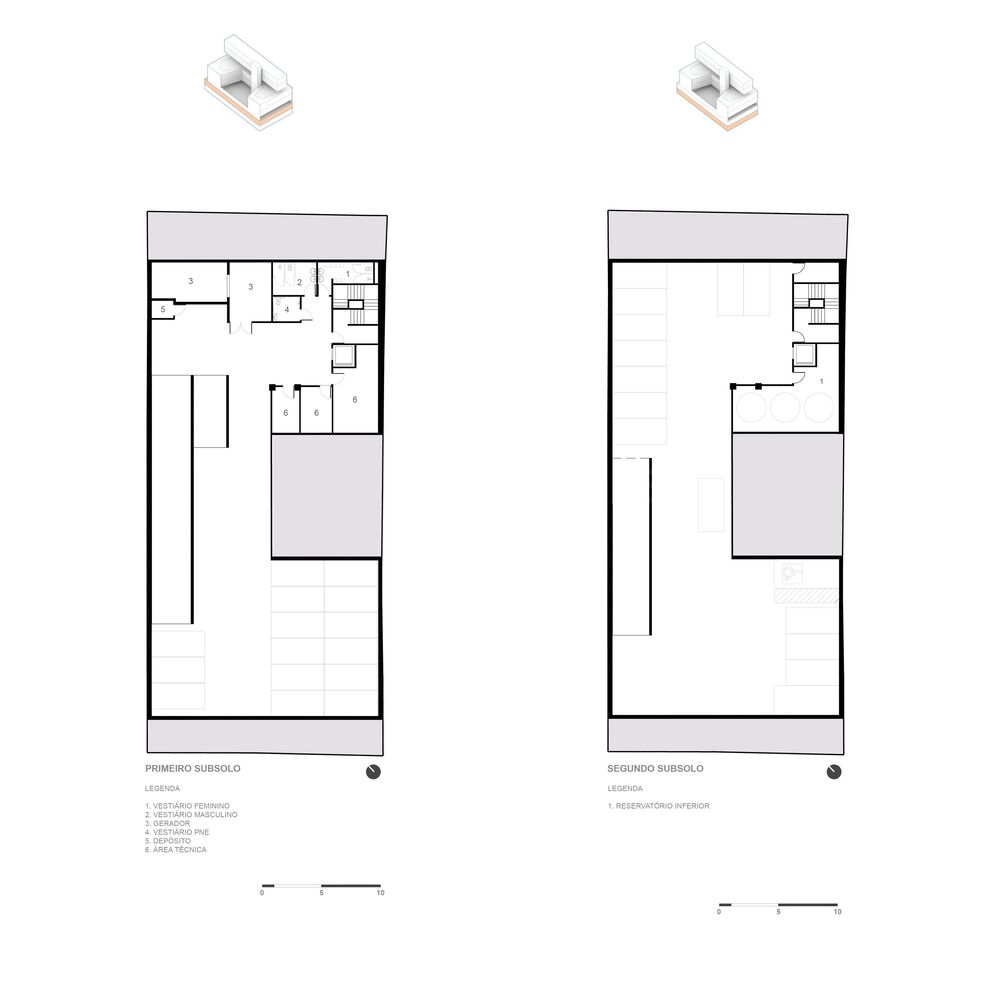
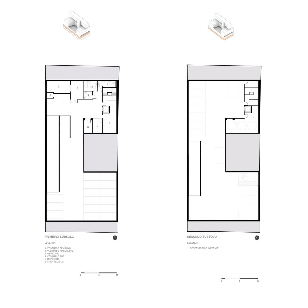
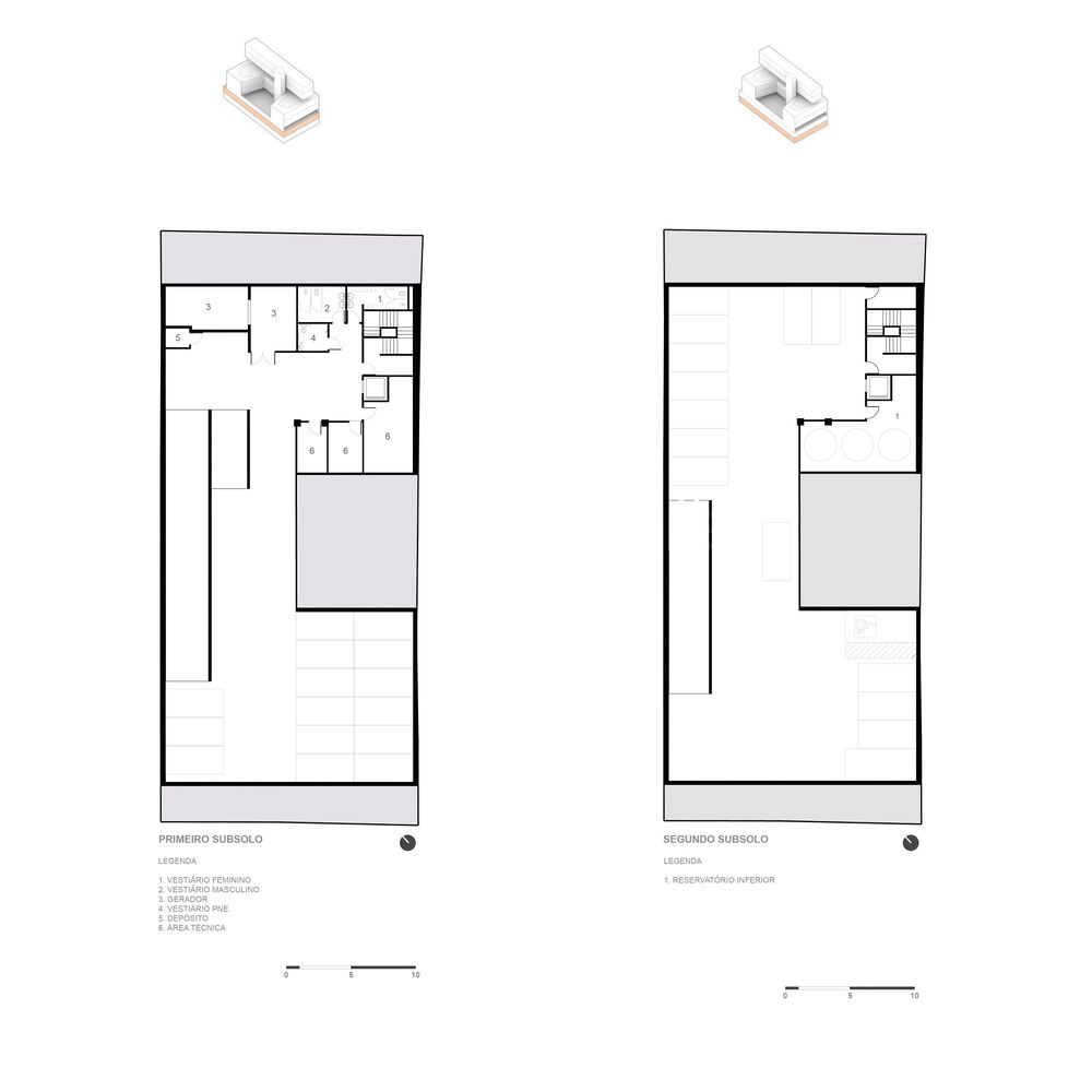
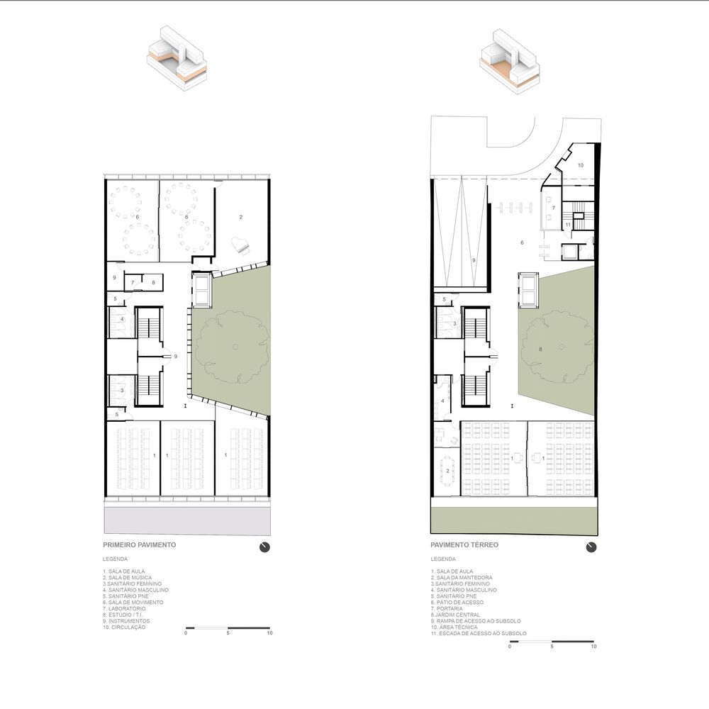
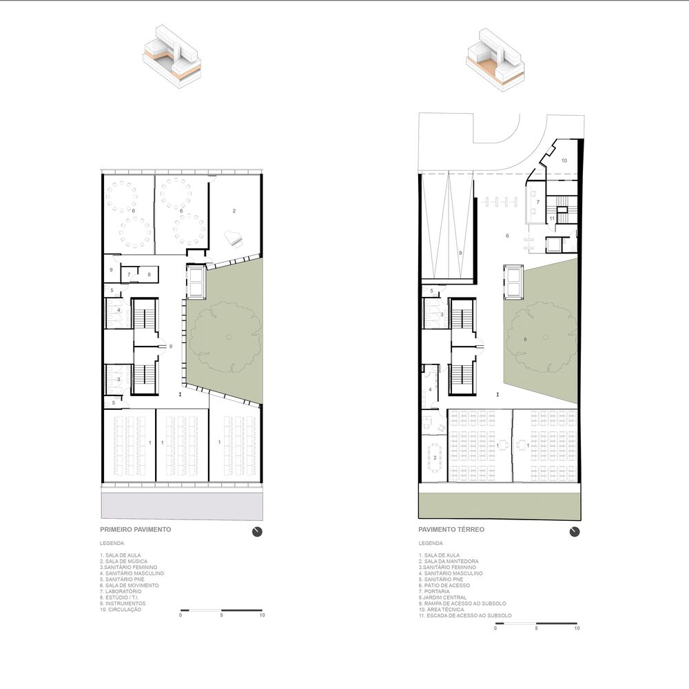
### 건물 배치 및 프로그램
건물 프로그램은 1층과 두 개 층에 걸쳐 배치되어 있으며, 각각 6개의 교실이 있습니다. 유연성을 염두에 두고 설계된 이 공간들은 다양한 교육적 필요를 충족할 수 있도록 재조직이 가능하여 사용자들에게 더 큰 사용의 자유를 제공합니다.
#### 주요 특징:
- **1층**: 기둥이 최소화된 초대적인 공간.
- **교실**: 다양한 교육 활동을 위한 유연한 공간.
- **순환 구조**: 사회적 교류와 만남을 촉진하도록 설계.
- **옥상 테라스**: 주변을 볼 수 있는 휴식 공간과 편안한 야외 가구 제공.
- **파노라마 엘리베이터**: 중앙 망고 나무와 주변 경관을 볼 수 있는 유리로 된 엘리베이터.
- **하중 블록**: 옥상에 행정 용도를 위한 공간 마련.
- **도서관**: 지식 추구의 상징으로 건물의 최고점에 위치.
### 가구 및 미학
옥상 테라스는 Novidário의 Patio 라인의 가구로 꾸며져 있으며, 건물의 건축 개념과 완벽하게 어우러집니다. 반개방형 미학의 가볍고 유연한 가구는 격자, 바닥재, 금속판과 조화를 이루어 시각적으로 통합된 경험을 제공합니다.
### 결론
비셀리 카치보리안 아키텍토스(Biselli Katchborian Arquitetos)가 설계한 루돌프 슈타이너 대학(Rudolf Steiner University) 프로젝트는 자연과 조화를 이루는 신중한 디자인의 증거입니다. 백년 된 망고 나무를 보존하고 발도르프 교육학의 원칙을 반영한 재료를 사용하여, 건축가들은 학습, 상호작용, 명상을 촉진하는 공간을 창출했습니다. 이 프로젝트는 교육 건축의 혁신적인 디자인의 상징으로 자리 잡고 있습니다.
### 주요 포인트 요약
1. **건축적 영감**: 발도르프 교육학의 전체적 가치.
2. **구조 재료**: 넓은 거리를 가로지르는 철강; 상징적이고 문자 그대로의 목재 사용.
3. **디자인 초점**: 중앙 망고 나무의 보존.
4. **건물 배치**: 유연한 교실 공간, 최소한의 1층 기둥, 옥상 테라스 및 파노라마 엘리베이터.
5. **가구 통합**: Novidário의 Patio 라인, 미학 향상.
6. **전체적 영향**: 상호작용과 명상을 촉진하는 조화로운 교육 공간.
translate by ChatGPT








































Located in the Alto da Boa Vista region, the new headquarters for Pedagogy and Psychology at the Rudolf Steiner College was designed by the Biselli Katchborian office, owned by partners Mario Biselli and Artur Katchborian. Selected through a competition organized by the institution itself, the project was inspired by the holistic values of Waldorf pedagogy and its relationship with nature.
The building, which measures approximately 3,850 square meters, features a U shaped structure that encircles a century-old mango tree in the center of the plot. Preserving this tree was one of the main challenges and guided the architectural design, which directs all environments towards it. At the base of the mango tree is the central courtyard, intended for student contemplation and interaction with nature.
During research related to architectures aimed at Waldorf pedagogical institutions, the office observed an emphasis on manual work and wood as essential materials for the project's identity. However, due to the relatively small size of the plot, steel was chosen as the building's structural solution because of its capacity to span large distances and avoid creating pillars on the ground floor, designed to be inviting with minimal interference.
Thus, wood was used in two distinct ways. First, literally, through an engineered wood structure fixed to the slab system, serving as support for the joinery facing the internal courtyard and converting into fixed furniture for students inside the building.
Second, symbolically, with the visual application of the organic patterns of wood seen on a microscopic scale on the metallic surfaces of the cladding and shading devices. "It's a reference to wood without using the material," highlights architect Mario Biselli, managing partner of Biselli Katchborian.
The headquarters' program is distributed between the ground floor and two levels, each with six classrooms. The spaces intended for the institution's pedagogical activities were designed flexibly, allowing for reorganization according to needs and ensuring greater freedom of use for users. This flexibility also extends to the circulation between floors, structured to foster moments of meeting and socializing.
The headquarters' program is distributed between the ground floor and two levels, each with six classrooms. The spaces intended for the institution's pedagogical activities were designed flexibly, allowing for reorganization according to needs and ensuring greater freedom of use for users. This flexibility also extends to the circulation between floors, structured to foster moments of meeting and socializing.
A rooftop terrace on the second floor was implemented for relaxation moments between students and teachers. Open, the space offers a privileged view of the surroundings and furniture that prioritizes outdoor comfort. "It was one of the coolest projects where we placed our outdoor furniture. The Patio line, with its semi open aesthetic, light and flexible furniture, creates a very interesting scene with the architectural concept, interacting with the grids, flooring, and metal plates of the facade," reveals José Machado, partner at Novidário, the company responsible for the headquarters' furniture.
To connect the floors externally, two glassenclosed panoramic elevators were installed in the central courtyard, offering views of the mango tree and the surroundings of the headquarters. On the rooftop, a suspended block was implemented to house administrative uses, and the library was installed in the highest position of the building, like a lighthouse, as an allegory of the importance and commitment to the pursuit of knowledge.
from archdaily


