
![]() |
![]() |
![]() |
콘크리트 브루탈리즘의 미학, 비트 주거 건물
### 프로젝트 개요
- **개발자:** 아스티르(Astir)
- **건축가:** OSPA 아키텍투라(OSPA Arquitetura)
- **위치:** 포르투 알레그레, RS, 브라질
- **프로젝트 유형:** 다세대 주거 건물
- **건설 기간:** 2018 - 2021
### 지역 맥락
시다지 바이샤(Cidade Baixa)는 포르투 알레그레의 가장 역동적이고 전통적인 지역 중 하나로, 상점, 바, 레스토랑, 공원이 가득한 거리가 특징입니다. 이 활기찬 지역은 주민들에게 다양한 여가 및 서비스 옵션을 제공하며, 지역의 생동감을 더합니다.
### 디자인 컨셉
비트 프로젝트의 디자인은 역사적으로 보호된 주변 환경을 존중하고 통합하는 것을 목표로 하면서도 현대적인 건축 요소를 수용합니다. 주요 디자인 특징은 다음과 같습니다:
- **부피의 조화:** 건물의 부피는 기존의 파사드와 정렬되고, 위쪽은 측면으로 계단식으로 설계되어 도시 맥락에 자연스럽게 녹아듭니다.
- **파사드 구성:** 기본적인 수직면과 이차적인 수평면으로 구성된 그리드가 파사드를 형성하며, 측면 계단식 구조를 안내합니다.
- **유리 파사드:** 전면과 후면의 유리 패널은 공공 공간과 사적 공간 간의 개방적인 대화를 촉진합니다.
- **콘크리트 브루탈리즘:** 노출 콘크리트의 사용은 장식 없는 중립적인 미학을 더해 역사적 환경과 조화를 이룹니다.
### 주요 건축적 특징
#### 테라스와 공용 공간
건물의 부피에서 도출된 테라스는 공용 공간으로 활용되며, 탁 트인 전망과 개방감을 제공합니다. 이러한 공간들은 외부 환경과의 시각적 연결을 통해 거주 경험을 향상시키도록 설계되었습니다.
#### 이중 높이 파티룸
이중 높이 파티룸은 외부 공간과 시각적으로 연결되어 건물의 사회적 공간의 중심이 됩니다. 이 디자인 요소는 개방성과 상호 작용을 강조하여 역동적인 커뮤니티 환경을 조성합니다.
### 지속 가능한 디자인
- **녹색 벽:** 파사드에 수직 정원을 통합하여 지속 가능성을 촉진하고 도심 환경에 자연의 요소를 더합니다.
- **자연 채광:** 큰 유리 창문은 충분한 자연 채광을 제공하여 낮 동안 인공 조명의 필요성을 줄입니다.
- **에너지 효율성:** 디자인은 에너지 효율 시스템과 재료를 포함하여 현대적인 지속 가능성 실천과 일치합니다.
### 수직 정원과 자연 채광이 어우러진 지속 가능한 디자인
OSPA 아키텍투라의 비트 주거 건물은 역사적 맥락을 존중하면서 현대성을 수용하는 사려 깊은 디자인의 증거입니다. 공용 공간의 통합, 지속 가능한 특징, 그리고 오래된 것과 새로운 것의 조화가 포르투 알레그레의 건축 풍경에서 두드러지는 프로젝트로 만듭니다.
translate vby ChatGPT












Desenvolvimento: Astir
Programa: Edifício Residencial Multifamiliar
Localização: Porto Alegre, RS, BR
Status: Construído
Ano: 2018 - 2021
O empreendimento Beat, desenvolvido pela incorporadora Astir, está localizado no bairro Cidade Baixa, um dos mais tradicionais e diversificados da cidade de Porto Alegre.
Nessa região, lojas, bares, restaurantes e praças conferem movimento às calçadas, proporcionando infinitas opções de lazer e serviços aos moradores.
O projeto tem como ponto de partida a compatibilização da nova edificação com o entorno protegido pelo Patrimônio Histórico da urbe.
Com o objetivo de estabelecer uma relação de respeito sem abdicar da contemporaneidade, a volumetria criada é alinhada com as fachadas das pré-existências e o topo do projeto é escalonado lateralmente, operações estas que costuram a nova construção no contexto.
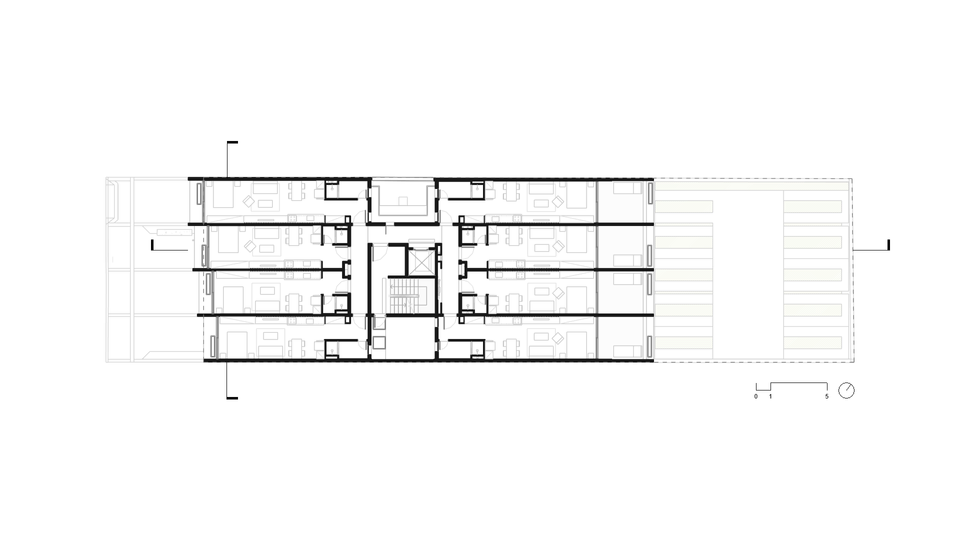
Composta de apartamentos do tipo estúdio e com a premissa da relação direta com as construções vizinhas, uma grelha com planos verticais primários e horizontais secundários é disposta na fachada, criando a regra que orienta o escalonamento lateral.
Planos envidraçados recuados compõem as faces frontal e posterior do edifício, promovendo um diálogo franco entre o espaço público e o privado.
Os terraços criados a partir da edição da volumetria são destinados para as áreas condominiais do empreendimento, as quais ganham destaque tanto por suas visuais privilegiadas quanto por coroarem o projeto.
O pédireito duplo do salão de festas permite a conexão visual entre as áreas externas, conferindo protagonismo a esse ambiente.
O uso do concreto aparente, tão presente nessa obra, foi escolhido por sua neutralidade em relação ao entorno histórico e pela ausência de ornamentos. Seu brutalismo é considerado sua principal virtude, conferindo uma identidade marcante para o empreendimento.
from ospa


