
![]() |
![]() |
![]() |
카스케이드 하우스: 실내외 조화의 예술
안녕하세요! 이번 글에서는 호주의 건축가 존 엘웨이(John Ellway)가 설계한 카스케이드 하우스(Cascade House)를 소개합니다. 이 초기 20세기 퀸즐랜드 코티지는 실내외 공간이 조화를 이루는 가족 친화적인 주택으로 재탄생했습니다. 엘웨이가 이 멋진 변화를 어떻게 이끌어냈는지 함께 알아보겠습니다.
-실내외 통합의 비전
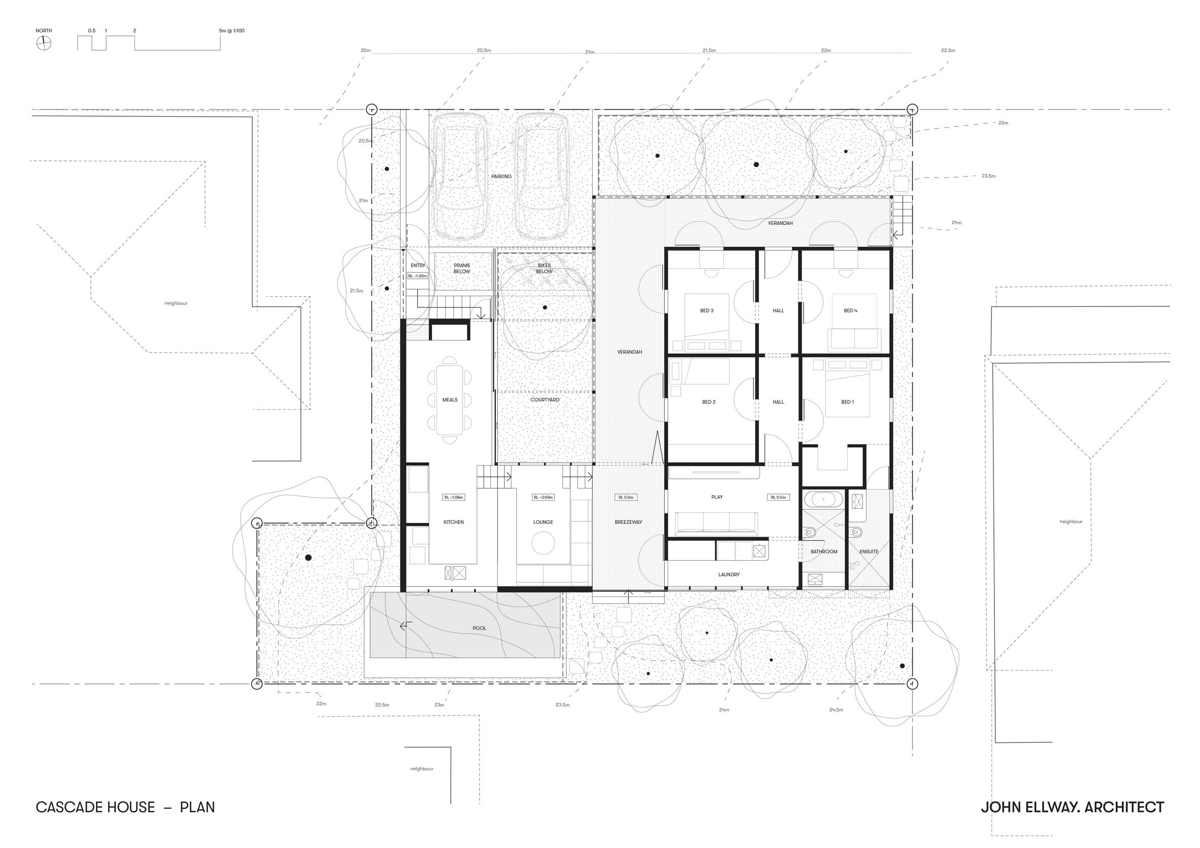
상상해보세요. 따뜻한 햇살이 가득한 날, 거실에서 문을 열면 잔디밭과 수영장이 펼쳐지는 집을요. 존 엘웨이는 바로 그런 집을 만들고자 했습니다. 그는 실내를 계단식으로 배치하고 레벨 변화를 줌으로써 마치 정원 속에 사는 듯한 환경을 조성했습니다.
계단식 플랜: 거실 공간이 잔디와 수영장으로 바로 연결되어 정원과의 끊김 없는 연결을 제공합니다.
놀이 공간: 대화, 식사, 놀이를 위한 가족 친화적인 공간을 설계했습니다.
-최소한의 개입으로 최대 효과
카스케이드 하우스의 리노베이션은 기존 구조를 최대한 보존하면서 기능성과 미학을 향상시키는 최소한의 개입을 목표로 했습니다. 이는 집의 역사와 매력을 유지하면서도 현대적인 편안함을 제공하는 방법이었습니다.
가벼운 리노베이션: 단열 개선, 벽 도색, 두 개의 욕실과 세탁실이 있는 경사형 확장 등 최소한의 개입을 통해 집을 업데이트했습니다.
원래 요소 보존: 깊은 베란다 덕분에 보호된 원래의 목재 구조와 벽 패널을 보존했습니다.
-오픈 플랜 주방 및 다이닝 공간
카스케이드 하우스의 중심은 현대적인 마감재와 세심한 디자인 선택이 돋보이는 오픈 플랜 주방 및 다이닝 공간입니다. 이 공간은 가족이 함께 모여 요리하고 식사하며 추억을 쌓는 장소로 설계되었습니다.
재료: 회색 시멘트 코팅 벽, 자작나무 합판 유닛, 화강암 작업대.
외부와의 연결: 수영장을 바라보며 접히는 유리문을 통해 나무가 줄지어선 안뜰로 연결됩니다.
-디자인 협업
내부 마감재 선택은 엘웨이와 디자이너 재클린 케이타(Jacqueline Kaytar)와의 협업을 통해 이루어졌습니다. 이는 클라이언트의 비전에 맞춘 재료와 디자인 요소를 보장했습니다. 이 협업을 통해 집은 더욱 특별한 공간으로 완성되었습니다.
자작나무 합판: 주방과 욕실 캐비닛에 사용되어 미적, 기능적 특성을 더했습니다.
콘크리트 계단: 거실 공간으로 이어지며, 이곳에서 아래층의 방과 수영장을 내려다볼 수 있습니다.
-지형에 맞춘 분할 레벨
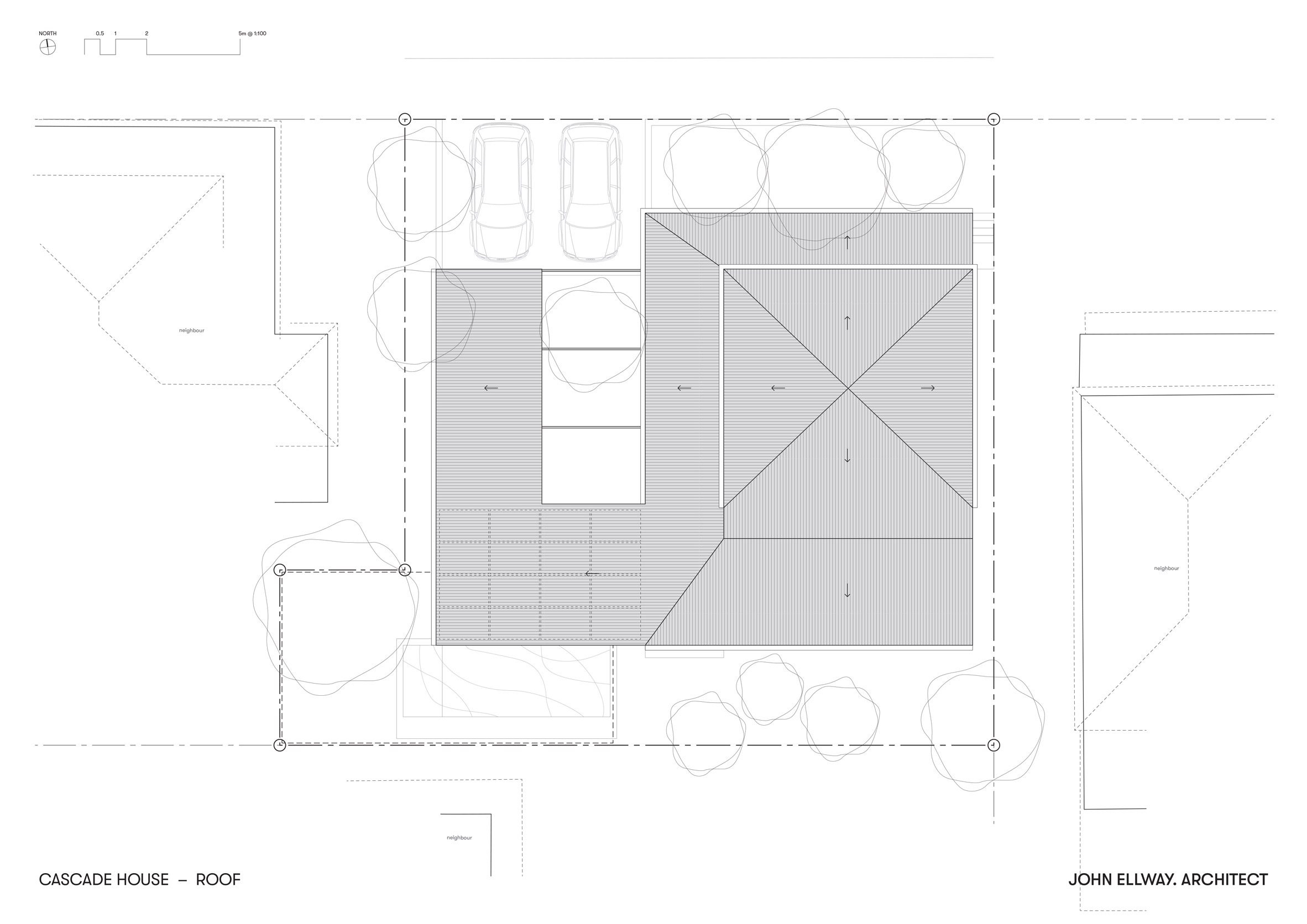
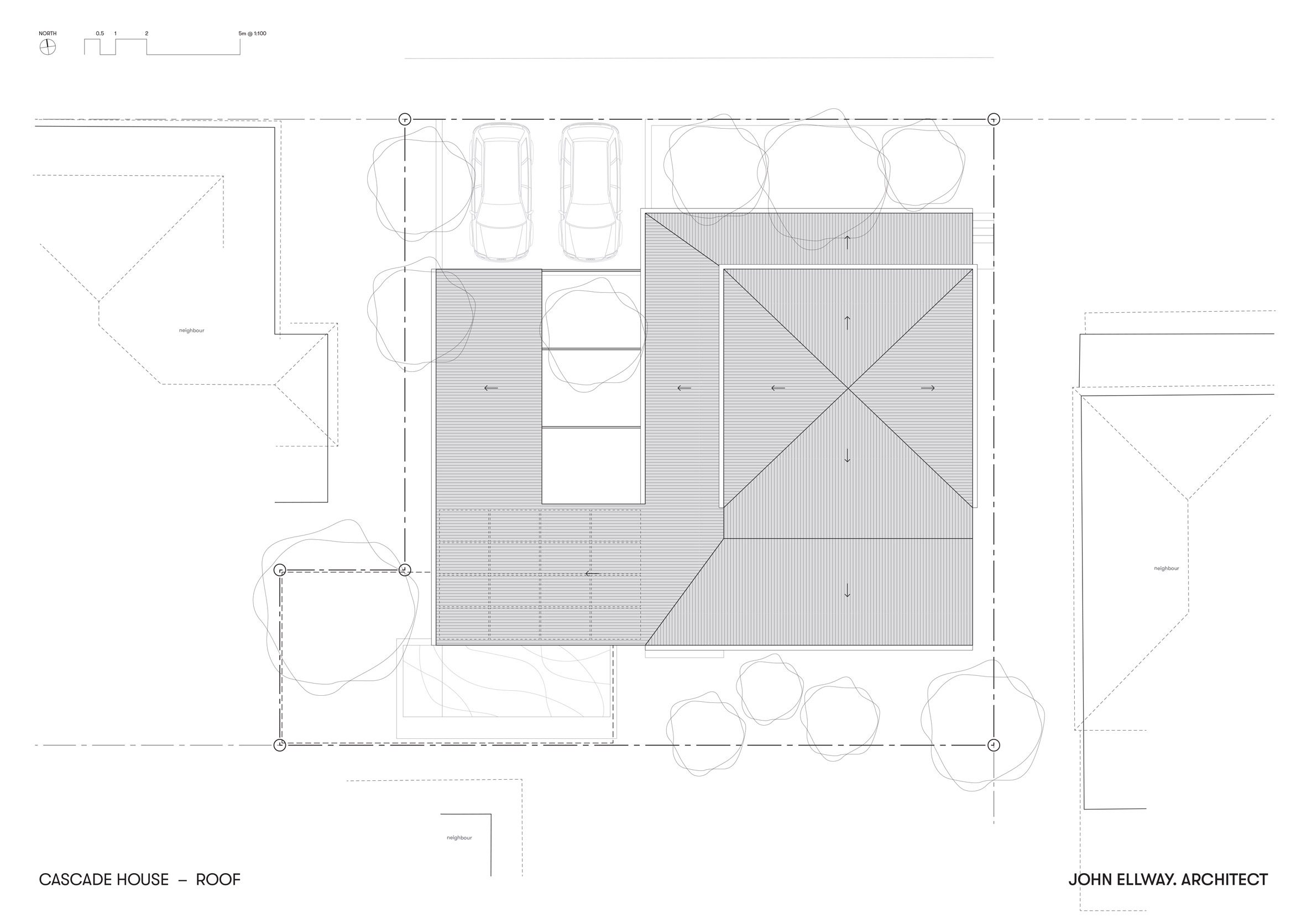
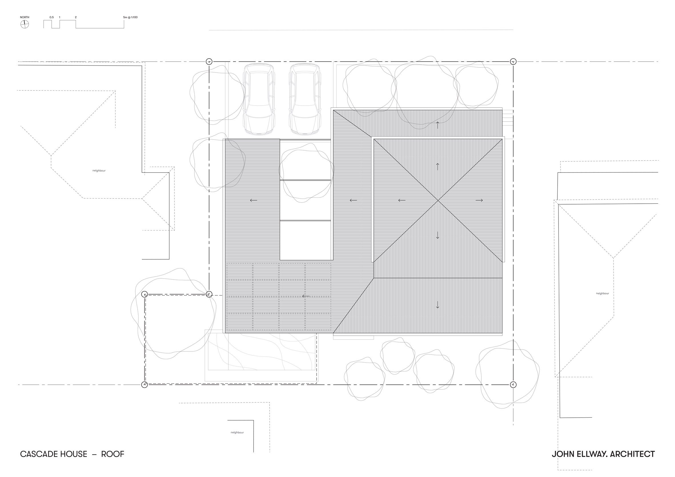
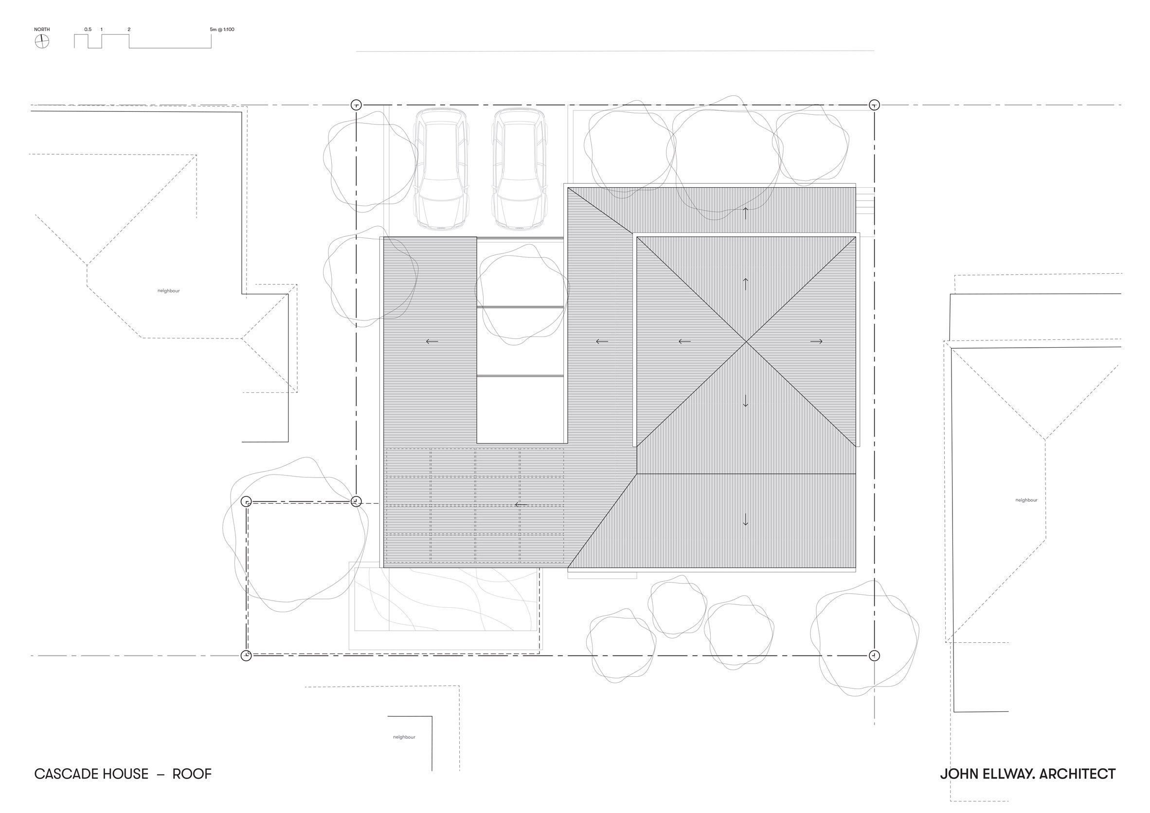
카스케이드 하우스는 4미터의 지형 변화를 극복하기 위해 일련의 분할 레벨을 설계했습니다. 이 디자인 접근법은 지형 문제를 해결할 뿐만 아니라 집의 기능성과 사생활을 향상시켰습니다.
휴식 공간: 분할 레벨은 집을 이동하면서 자연스러운 휴식 공간을 만듭니다.
사생활 관리: 코티지는 가장 사적인 공간으로 유지되어 방문객이 더 높은 레벨로 초대받기 전에 허락을 받아야 합니다.
-공용 및 사적 공간 연결
L자형 베란다로 이어지는 현관은 집의 공용 공간과 주요 코티지 내의 사적 공간을 연결합니다.
중앙 안뜰: 집의 다양한 부분을 연결하는 초점 역할을 합니다.
높은 천장과 목재 표면: 방을 밝게 하여 공간감과 빛을 더합니다.
-실내외 경계를 허무는 디자인의 힘을 확인하세요
존 엘웨이의 카스케이드 하우스 리노베이션은 실내외 공간을 조화롭게 통합하고, 원래의 요소를 보존하며, 분할 레벨을 통해 지형을 관리하는 등의 세심한 설계를 통해 현대적이고 가족 친화적인 주택으로 변모시킨 훌륭한 예입니다.
translate by ChatGPT






























John Ellway staggers series of indoor-outdoor spaces at Cascade House
Australian architect John Ellway has renovated an early 20th century cottage in Queensland into an open family home intended to encourage indoor-outdoor living.
Named Cascade House, the residence in Paddington required minimal renovations but was overhauled by Ellway to create more playful spaces for the family's three children.
It has been updated with a staggered interior arrangement defined by level changes and open spaces that aim to evoke the feeling of living in a garden.
"The stepping plan allows the living spaces to open onto grass and across the pool, creating an uninterrupted connection to the garden," Ellway told Dezeen.
"The addition creates a place to gather for conversation, meals and games."
Ellway's goal for Cascade House was to keep alterations as light touch as possible, updating the home with improved insulation, freshly painted walls and a lean-to extension at the back that contains two bathrooms and a laundry room.
"The existing cottage received minimal intervention," said Ellway. "Really only having its floors sanded, walls painted, insulation added and electrical replaced," he continued.
"This was partly to manage cost, but mainly because its original hardwood structure and wall linings were still in great condition as they were protected from rain and sun by deep verandahs which had extended its life."
Cascade House's updated entrance leads onto a long open-plan kitchen and dining space with grey cement coated walls. Here, a series of birch-plywood units topped with a granite worktop wrap around the end of the room and overlook an outdoor swimming pool.
Set into the lowest level of the site, this open space also features a wall of folding glass doors that allow it to open up to a tree-lined courtyard outside.
"The choice of interior finishes, particularly with the kitchen and bathroom cabinetry, ended up as a collaboration with my client and designer Jacqueline Kaytar," said Ellway. "The birch plywood was a direction she wanted to head in from the very start."
A set of concrete steps leads up to the next level of the house, where a living space fitted with a built in corner sofa offers views over the rooms and pool nestled a metre below.
"With a four metre level change across the site, breaking up the sequence into a series of split levels mediated this topography creating spaces to pause as you move higher," said Ellway.
"Changes in level manage privacy, with the cottage being the most private. Bedrooms within can be left messy," he explained. "There is an implied permission to be sought before a visitor is invited to continue stepping up further."
Stepped up from the living area, a porch that opens onto an L shaped veranda connects the more communal side of the home to the private spaces. These are contained within the cottage's main volume, bordering the opposite edge of the central courtyard.
Four bedrooms branch from the hallway, each featuring white painted timber surfaces and high ceilings that help to brighten them.
from dezeen


