
Centro DIF: 빛과 텍스처가 어우러진 건축 걸작
Centro DIF는 오악사카(Oaxaca)의 이스트모 데 테우안테펙(Istmo de Tehuantepec) 지역에 위치한 산 페드로 코미탄실로(San Pedro Comitancillo) 중심에 자리 잡은 혁신적인 커뮤니티 센터다. 이 프로젝트는 이전에 비좁고 비위생적인 환경에서 지역 사회를 위한 케어를 제공하던 낡은 시설을 대체하기 위해 설계되었다.
#### 좁은 부지에 적응하기
건축가들이 직면한 주요 도전 과제 중 하나는 212m²의 작은 부지에 건축 프로그램을 적응시키는 것이었다. 이를 해결하기 위해 건물의 레이아웃을 두 층으로 나누고, L자형 설계를 활용했다. 이러한 공간 활용은 1층을 비워 다양한 기능과 활동을 위한 공간을 확보하는 데 도움이 되었다.
- **두 층 디자인**: 프로그램의 일부를 2층으로 이동시켜 1층의 자유 공간을 확보했다.
- **L자형 레이아웃**: 제한된 공간 내에서 효율적으로 프로그램을 구성할 수 있었다.
#### 세심한 접근과 중앙 파티오
거리에서의 접근은 좁은 복도로 이어지는 작은 출입문으로 정의된다. 이 복도는 결국 계단이 있는 중앙 파티오로 연결된다. 이 중앙 파티오는 설계의 주요 특징으로 다양한 활동을 위한 공동 공간을 제공한다.
- **세심한 출입**: 좁은 복도가 거리에서 중앙 파티오로 이어진다.
- **중앙 파티오**: 이중 높이의 반개방형 공간으로, 이벤트, 워크숍, 회의를 위한 유연한 공간으로 활용되며, 주로 공공 식당으로 사용된다.
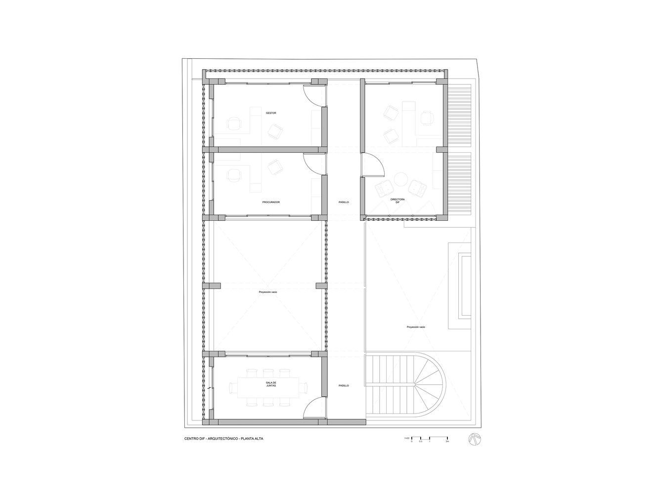
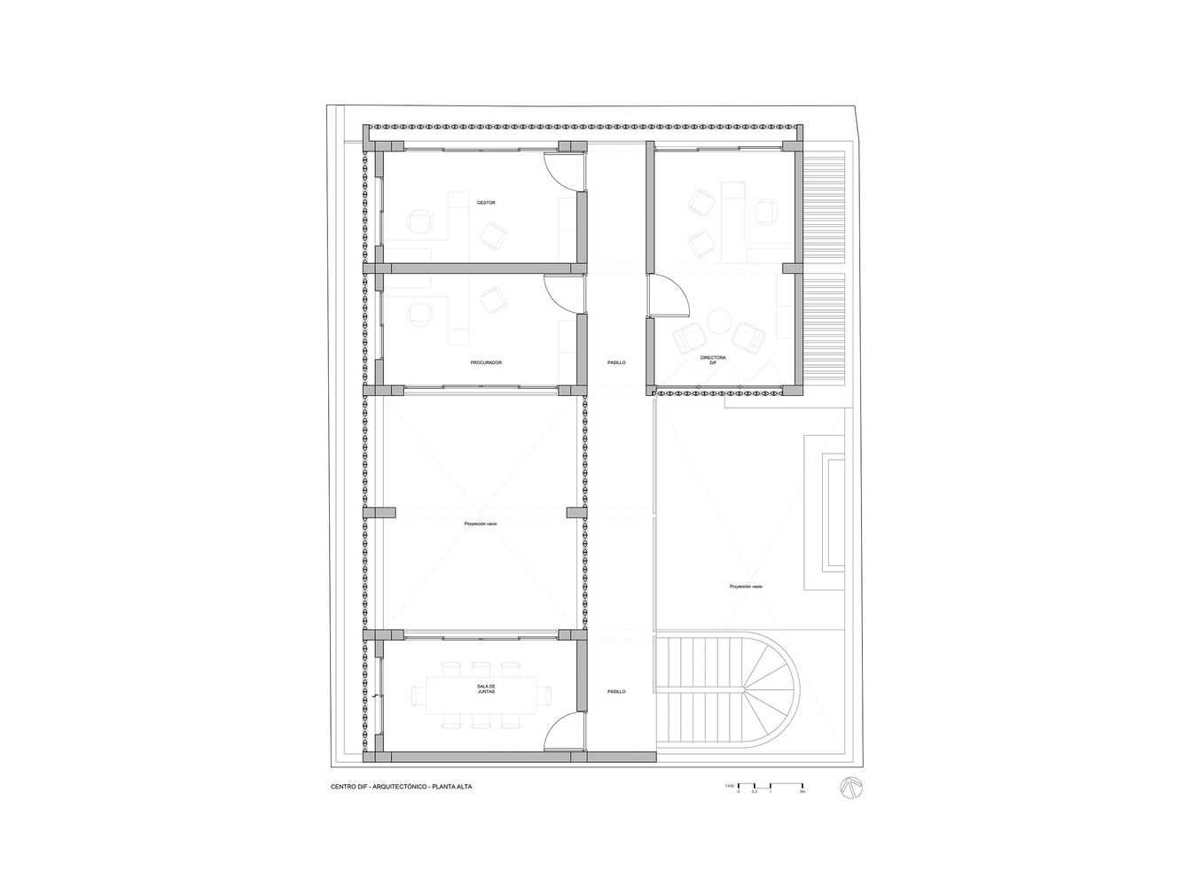
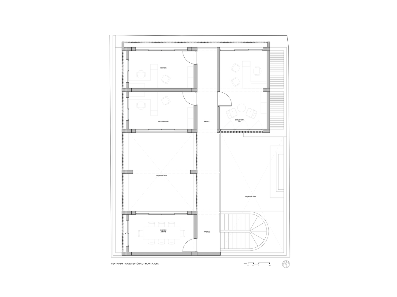
#### 기능적 공간과 다목적 설계
1층에는 중앙 파티오에 인접한 주방이 있으며, 식품 창고와 비상시에 주민들에게 배분되는 저장실로 접근할 수 있다. 2층에는 회의실, 두 개의 사무실, 관리 사무실이 있어 효율적인 행정 기능을 수행할 수 있다.
- **1층 공간**: 주방, 식품 창고, 공공 식당이 포함된다.
- **2층 공간**: 행정 사무실과 회의실이 포함된다.
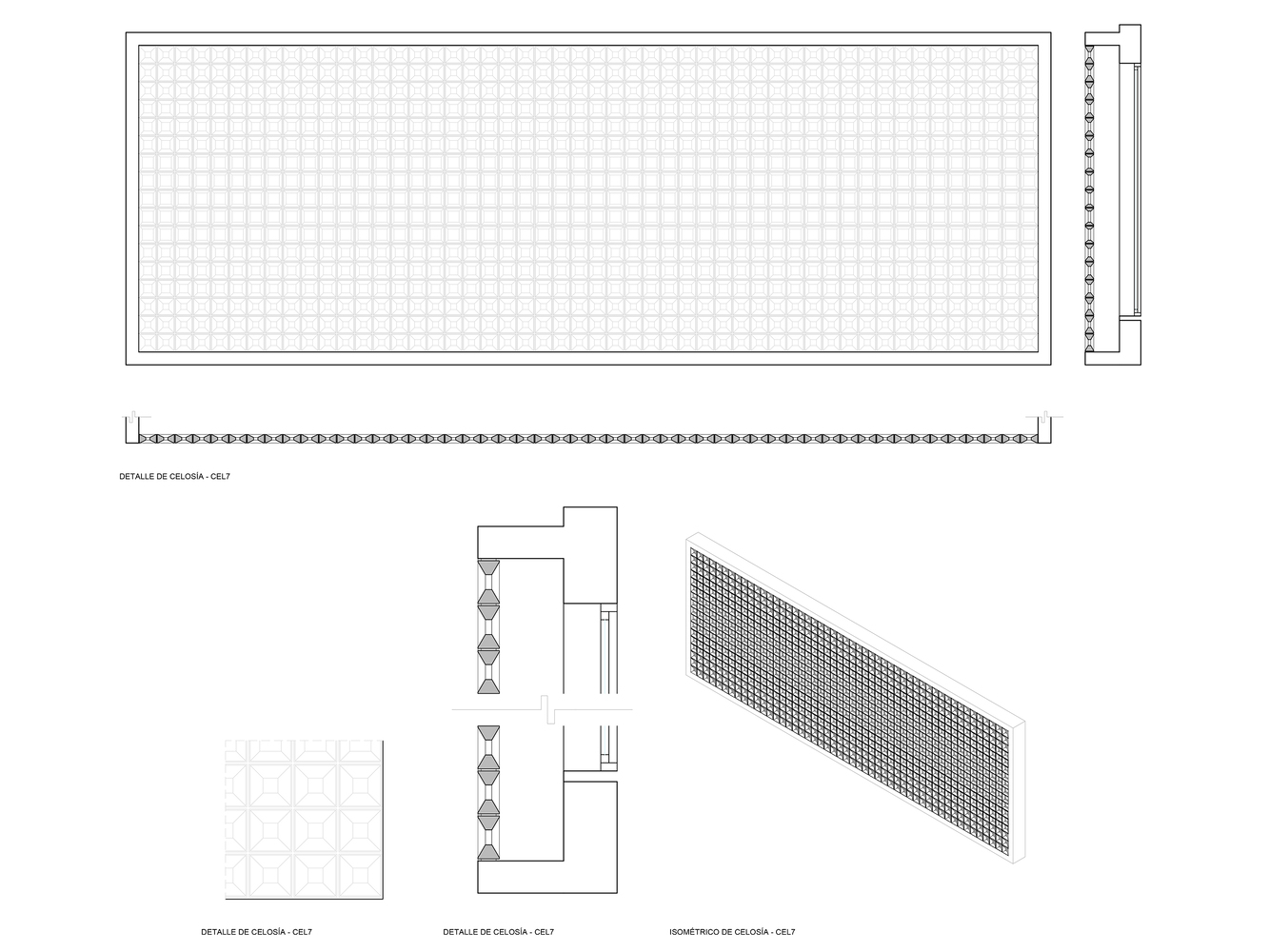
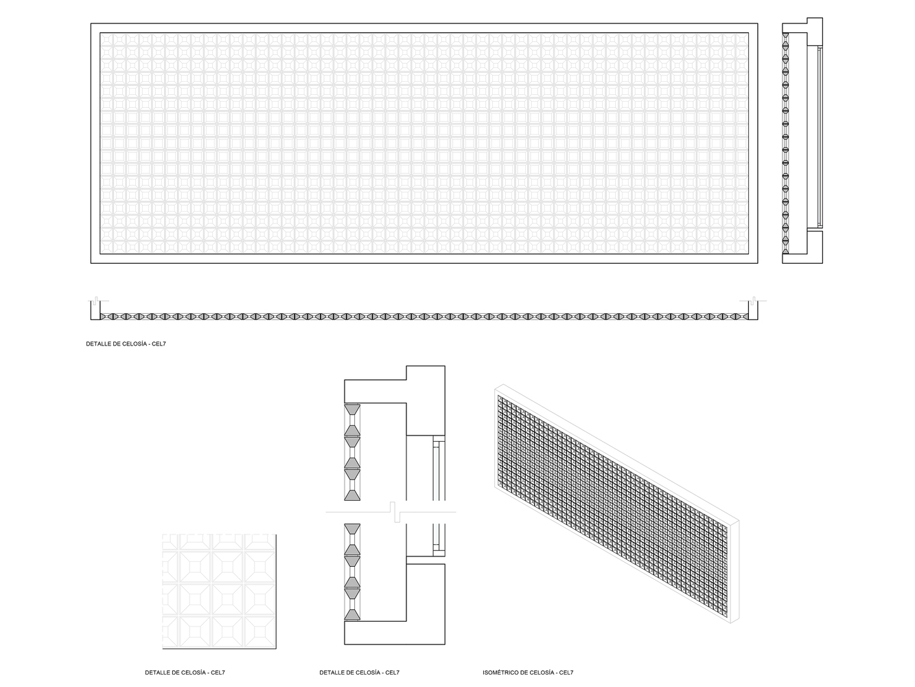
#### 혁신적인 건축 요소
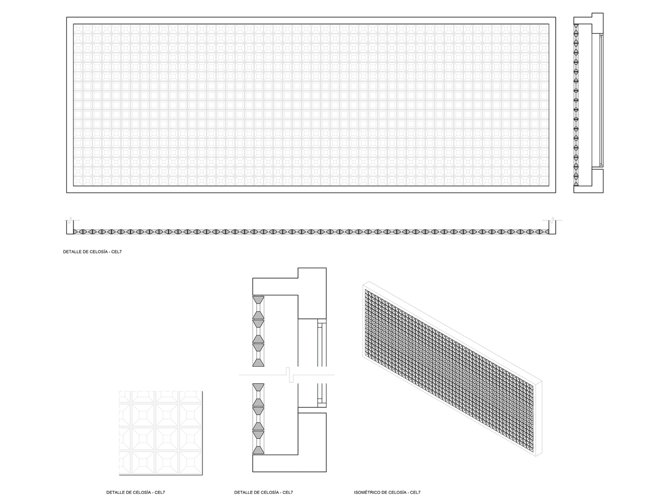
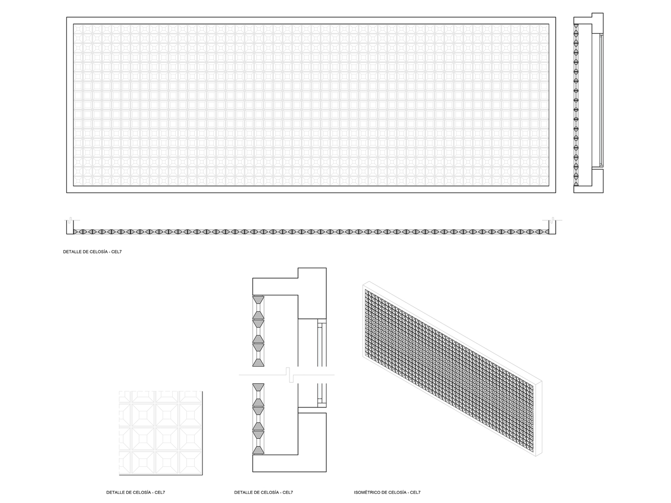
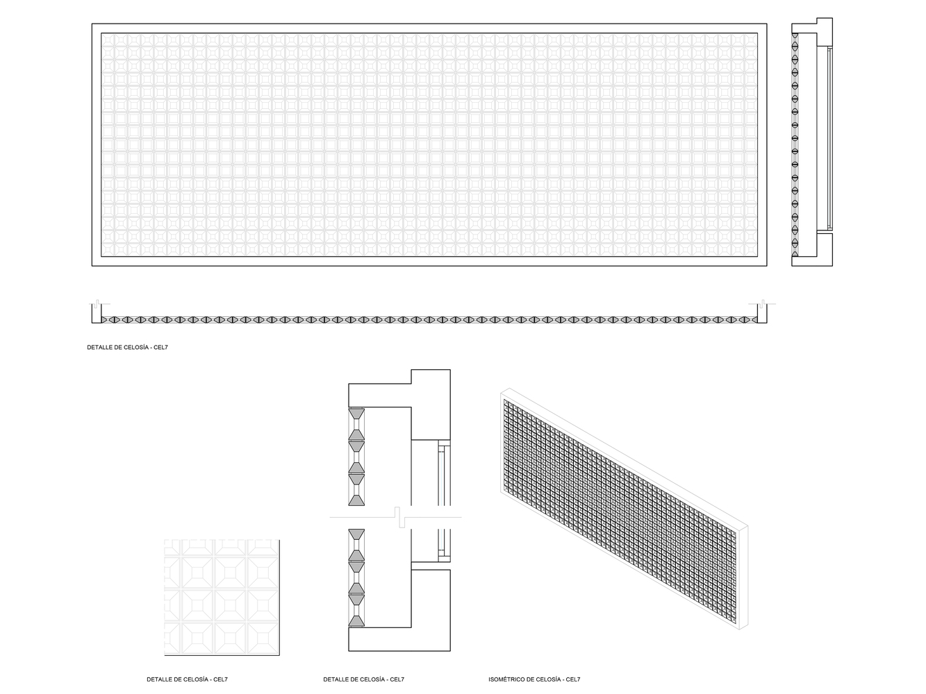
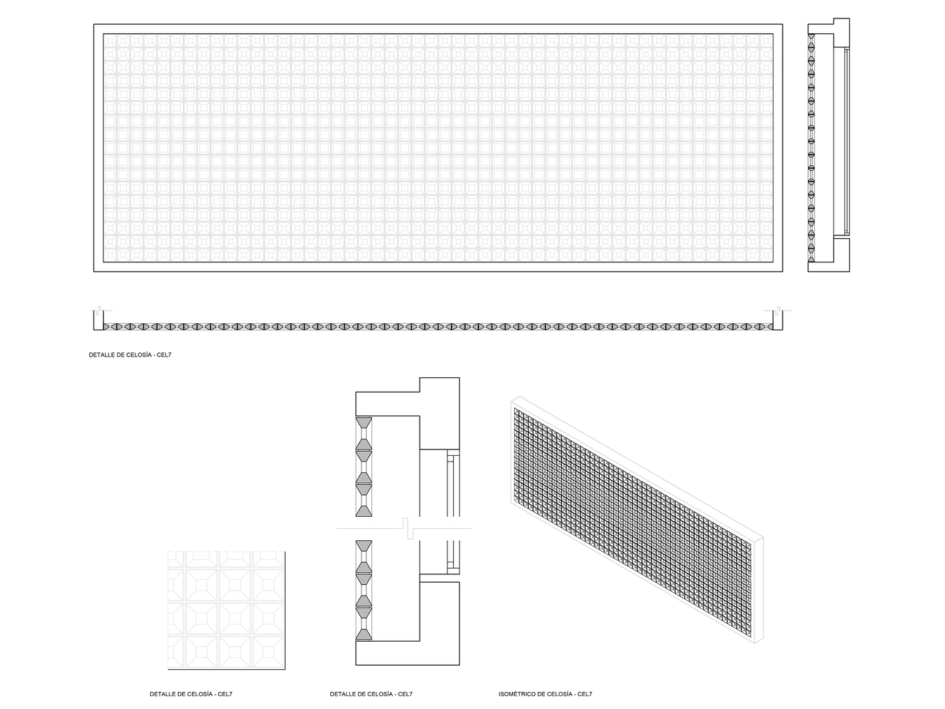
설계에는 콘크리트 볼트로 마감된 다섯 개의 횡단 베이가 포함되어 있다. 외관은 가변 개구부가 있는 착색 콘크리트 격자로 덮여 있으며, 이는 미적인 가치뿐만 아니라 기능적인 목적도 수행한다.
- **콘크리트 볼트**: 횡단 베이를 마감하고 자연광을 필터링한다.
- **착색 콘크리트 격자**: 프라이버시 제공, 빛 필터링, 열 증가 감소 기능을 수행한다.
#### 빛과 텍스처의 놀이
Centro DIF 프로젝트는 다양한 텍스처와 색조의 콘크리트를 활용한다. 계단과 볼트와 같은 곡선 요소는 테라코타 색조의 매끄럽고 반폴리싱된 마감으로 처리되었으며, 직교 볼륨은 흙색의 플루티드 형판으로 마감되었다. 주변 울타리는 거친 마감의 착색 콘크리트 블록으로 테두리 지어졌으며, 이는 식생 악센트를 위한 배경 역할을 한다.
- **텍스처와 색조의 다양성**: 다양한 콘크리트 마감과 색상이 시각적으로 매력적인 환경을 만든다.
- **자연광**: 설계는 빛과 그림자의 놀이를 극대화하여 건물의 미적 매력을 높인다.
#### 결론
산 페드로 코미탄실로의 Centro DIF는 혁신적인 건축 설계의 증거로, 작은 부지를 효과적으로 활용하여 기능적이고 아름다운 커뮤니티 센터를 만들어냈다. 중앙 파티오, 다목적 공간, 빛과 텍스처의 조화를 이루는 설계 요소를 통합함으로써, 이 프로젝트는 지역 사회의 삶의 질을 크게 향상시켰다.
요약하자면, Centro DIF의 주요 특징은 다음과 같다:
1. 두 층의 L자형 레이아웃을 통한 좁은 부지에의 적응.
2. 유연한 공동 공간으로서의 중앙 파티오.
3. 다양한 활동을 위한 기능적 1층 및 2층 공간.
4. 콘크리트 볼트와 착색 격자의 혁신적인 사용.
5. 빛과 텍스처의 시각적으로 매력적인 놀이.
translate by ChatGPT

































Centro DIF is a community center in the heart of San Pedro Comitancillo, a small town in Oaxaca in the Istmo de Tehuantepec region. This intervention replaces a deteriorated single level facility where care was provided to the community in overcrowded and unsanitary conditions.
Adapting the architectural program to a 212m² plot of land has been a real challenge; In the first instance we have decided to divide the program into two levels to decongest the ground floor using an L shaped layout. By moving part of the program to the second level we have gained free area that has allowed us to articulate the rest of the program.
Access from the street is defined by a discreet pedestrian door that leads to a narrow hallway and later to a central patio flanked by a staircase. This patio is adjacent to a double-height, semi open, covered area that functions as a flexible space for events, workshops and meetings, although its main use is as a public dining room. The kitchen is adjacent to this space from where you can access a food warehouse and pantries that are distributed to the population in emergency situations. On the second floor there is a meeting room, two offices and the management office.
Our approach was based on defining 5 transverse bays along the site, each crowned by a concrete vault. The facades are covered with pigmented concrete lattices with variable openings that filter light, reduce thermal gains and give privacy to the offices and consulting rooms. The spaces are filled with natural light that enters from the top of the vaults, minimizing the need for artificial lighting.
The project plays with different textures and shades of concrete, the curvilinear elements such as the body of the staircase and the vaults have a smooth semi polished finish in a terracotta tone, while the orthogonal volumes are finished with a fluted formwork in an earthy tone. Finally, the perimeter fences were bordered with pigmented concrete block in a rustic and textured finish that acts as a backdrop for the vegetation accents. These stone textures are enriched with carpentry details in parota wood, and with ironwork with a rustic tone for the railings and window frames.
As a whole, the building seeks to be a game of textures and geometric patterns that maximize the play of light and shadows. As the sun moves across the sky, the lattice produces an intricate play of shadows that travel projected across the different surfaces of the building.
from archdaily