"Architects don't invent anything, they just transform reality." - Álvaro Siza

![]() |
![]() |
![]() |
Tea OZ, 100년 전통 주택을 현대적인 차 하우스로 재해석하다 Ao.ArchLab-Tea OZ
오늘 소개할 프로젝트는 중국 절강성 모간산에 위치한 Tea OZ입니다. 이 프로젝트는 Ao.ArchLab이 100년이 넘은 전통 주택을 현대적 차 하우스로 개조한 사례입니다. 전통 건축의 아름다움과 현대적 기능이 어떻게 자연스럽게 결합되었는지 살펴보겠습니다.
프로젝트 개요
프로젝트 명: Tea OZ 차 하우스
설계자: Ao.ArchLab
위치: 중국 절강성 모간산(Moganshan)
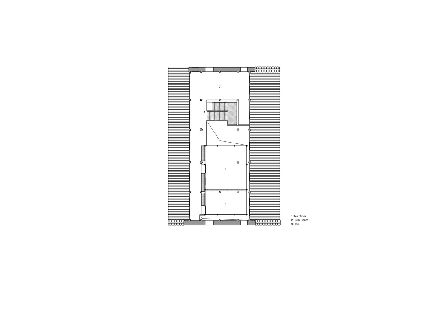
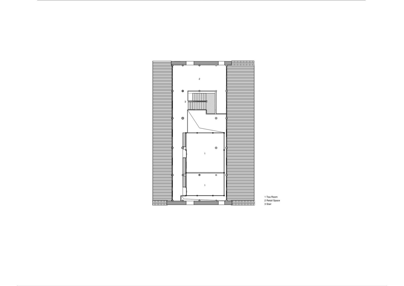
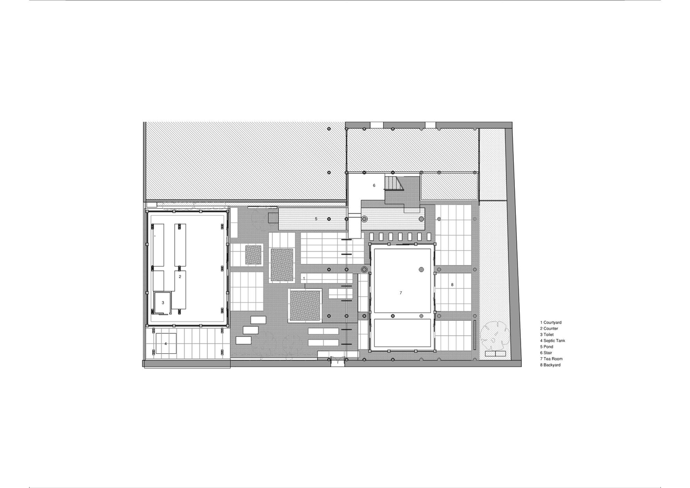
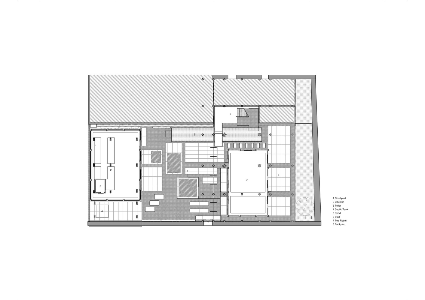
Tea OZ는 전통 5간 주택 구조의 건축물로, 손상된 부분을 복구하고 현대적 기능을 도입해 차 하우스로 재탄생시켰습니다. 이 프로젝트의 주요 목표는 전통의 아름다움을 보존하면서도 상업 공간으로서의 기능을 충분히 충족시키는 것이었습니다.
설계 컨셉과 특징
1. 전통 보존을 위한 복원 작업
기존 목조 기둥과 대들보는 해충 처리 후 원형 그대로 유지되었습니다. 손상된 부분은 전통 기법을 활용해 복구되었으며, 창살과 벽면 조각 같은 장식적 요소는 모간산의 역사적 건축 문화를 그대로 보여줍니다.
2. 공간의 개방성과 자연광 확보
일부 지붕과 벽을 제거하여 자연광과 통풍을 최대한 활용했습니다. 중정을 중심으로 내부와 외부의 경계를 모호하게 만들어, 공간을 더욱 넓고 유연하게 사용할 수 있게 설계되었습니다. 특히, 중정과 미니-젠 정원은 돌담과 어우러져 시각적으로 실내외를 연결하고 있습니다.
3. 유리 파빌리온 도입
유리 파빌리온은 전통 건축물과 조화를 이루며 현대적 기능을 제공합니다. 첫 번째 파빌리온은 기존 건물 내부에서 공기 조절 기능을, 두 번째 파빌리온은 차 바와 화장실을 포함한 독립적인 공간을 담당합니다. 유리와 금속 프레임은 전통 목재와 자연스럽게 결합하여 공간의 통일성을 유지하면서도 현대적 감각을 더했습니다.
설계 컨셉의 구현
1. 재료와 질감의 조화
목재, 유리, 금속이 대조적이면서도 조화를 이룹니다. 목재의 따뜻함과 유리의 투명함, 금속의 견고함이 결합되어 공간의 균형을 이루며, 개방감을 극대화합니다.
2. 내부와 외부의 경계 흐림
유리 벽과 금속 프레임은 내부와 외부의 경계를 허물어, 방문자가 실내에서도 자연을 느낄 수 있게 합니다. 중정과의 연결은 차를 마시는 공간을 더욱 특별하게 만들어 줍니다.
글로벌 트렌드와의 비교
세계적으로 전통 건축을 현대적 감각으로 재해석하는 사례는 늘어나고 있습니다. 특히 유럽과 아시아에서는 전통적 요소를 보존하면서도 현대적인 생활 방식을 반영하는 프로젝트가 많습니다. Tea OZ는 이러한 트렌드를 반영하며, 전통과 현대의 조화를 잘 이뤄낸 성공적인 사례입니다.
인사이트
Tea OZ는 전통과 현대의 경계를 허무는 혁신적인 설계로, 방문자에게 독특한 공간 경험을 제공합니다. 특히, 유리 파빌리온을 통해 실내외의 경계를 모호하게 만든 점이 인상적입니다. 이를 통해 방문자는 실내에서도 자연을 느끼며 차를 마실 수 있습니다.
결론
Ao.ArchLab의 Tea OZ는 전통과 현대의 완벽한 결합을 보여주는 중요한 사례입니다. 전통 건축물을 보존하면서도 현대적인 기능을 더한 이 공간은 과거의 아름다움을 유지하면서도 새로운 차 문화를 현대인에게 전달하고 있습니다. 이는 전통을 재해석하는 방식으로 미래 건축의 새로운 방향을 제시합니다.
Write by ChatGPT & 5osa






























Located in Moganshan Town, Zhejiang Province, the site consists of a historic Chinese residence and a courtyard. The residence is a typical five bay Jiangnan dwelling with an elevated beam structure and double eaves. Before restoration, the building has fallen into disrepair due to long-time negligence. The client wants to convert this 100-year-old residence into a chic, commercial teahouse, while retaining the authentic vibe and craftsmanship of the historic building.
For historic preservation, we conducted a detailed survey and structural integrity test of the historic building. All the wooden beams and columns were preserved in situ after insecticidal treatments, leaving the original structural system completely intact. Per our request, the replacement and restoration of damaged purlins, flooring, rammed earth façade, rooftiles were carried out with traditional building techniques and locally sourced, traditional materials. All the decorative components, include paintings on the wall, carving on the beams, window lattices, corbels were preserved as they showcase the vernacular building culture in Moganshan town.
For spatial quality enhancements, we conducted a ‘pruning’ of the historic building. We removed a portion of the building envelope (ground floor façades and a section of the roof) to introduce natural light and air much needed for contemporary commercial space. The exposed columns and overhanging eaves form two porches each facing the courtyard and a mini Zen Garden (with the original stone wall) to the front and rear of the house. The partial removal of the front and rear facades also resulted in a north-south, through-ventilation corridor. And by removing a section of the second-floor slab, while extending the water feature from the courtyard to the interior, we created a scenic, double-height space under the large eaves. Consequently, the visual and psychological boundaries between indoor and outdoor became blurry and ambiguous, generating a novel and vibrant spatial experience.
For performance and functionality enhancements, we introduced two glass pavilions into the site. Within the historic structure, a double-layered, self-supporting glass structure was inserted into the old house, providing air conditioned tea drinking spaces. The integration between old and new was seamless, because the new glass roof aligns with the historic roof, while the steel frame structure supporting the glass pavilion interlaces with the historic wooden beams and purlins. This way, the integrity and authenticity of the historic residence was well-preserved for the building’s historic wooden structural system was left completely intact. To the far end of the courtyard, we constructed a separate glass pavilion. Inside the stand-alone, steel-framed pavilion, we used bamboo-steel composite material to build a tea bar, restrooms, and a shading canopy. The arrangement of the composite bamboo louvers under the glass roof duplicates, by means of its rising curvilinear profile, that of the eaves of the historic dwellings across the courtyard.
Facing one another from across the courtyard in a head-to head manner, the bold juxtaposition of the historic residence and its contemporary annex creates a sophisticated dialogue between the two. Inside the historic residence, glass pavilion no.1 serves thermal function as an inner liner. Outside the historic residence, glass pavilion no.2 serves visual function as an outer shell. The composite bamboo structure in the interior of glass pavilion no.2 is a revision, translation and quotation of the historic timber work in the exterior of glass pavilion no.1. The interplay of the modern and the historic hence generates a dynamic, engaging and thought-provoking spatial experience for the visitors.
from archdaily


