"건축은 단순한 구조물이 아니다. 그것은 사람들이 살아가는 삶의 조건을 더 나은 방향으로 이끌 수 있는 하나의 도구이다."
— Oscar Niemeyer

![]() |
![]() |
![]() |
심리적 안정감을 주는 공간 설계: 아사히 노 모리 클리닉의 건축 이야기 TSC Architects-Asahi no Mori Internal Medicine and Gastroenterology Clinic
이번 글에서는 TSC Architects가 설계한 **아사히 노 모리 내과 및 위장병 클리닉(Asahi no Mori Internal Medicine and Gastroenterology Clinic)**을 소개한다. 이 클리닉은 도심과 외곽을 연결하는 도로 근처에 위치해 있으며, 세 명의 의뢰자가 내과, 정형외과, 약국을 한 곳에 모아 밝고 따뜻한 공간을 만들고자 한 프로젝트다. 이 건축물은 목재와 개방적인 구조를 통해 환자들에게 따뜻함과 편안함을 전달하는 것을 목표로 했다. 이 글에서는 건축적 디자인 요소와 이를 통한 공간의 활용성을 면밀히 살펴본다.
1. 프로젝트 개요
프로젝트 명: 아사히 노 모리 내과 및 위장병 클리닉
설계자: TSC Architects
위치: 일본, 아사히
용도: 내과, 정형외과, 약국
2. 설계 컨셉
TSC Architects는 이 클리닉의 설계에 있어 상업적 도로변 건축물과의 차별화를 꾀했다. 목재를 주요 소재로 사용해 따뜻한 느낌을 주었고, 방문하는 환자들에게 편안함을 주는 환영의 공간으로서 기능하도록 디자인했다. 건축물 전반에 걸쳐 사용된 목재와 유리의 조화가 공간의 밝고 따뜻한 분위기를 더욱 강조했다.
유명 건축가의 비평 반영: 목재와 유리의 조합은 단순한 미적 선택이 아니다. 이는 자연과의 조화를 목표로 한 재료 선택으로, 목재는 자연스러운 분위기를, 유리는 시각적 개방성을 제공하며, 두 재료가 결합해 환자들에게 심리적 안정감을 준다. 또한 건축물은 인공적인 의료 공간 대신, 자연의 일부처럼 느껴지도록 설계되어 환자들이 건물 내부에서도 외부 자연과 연결된 치유 경험을 할 수 있다.
3. 구성 및 배치
건축물은 두 개의 주요 건물로 나뉘어 있으며, 이들은 중앙의 좁은 복도를 사이에 두고 마주보고 있다. 이 복도는 건물의 중심축 역할을 하며 시각적으로 안정감을 준다. 목재 프레임의 반복적 배치는 대칭적 구성을 강조하며, 자연스럽게 외부로 시선을 유도한다.
4. 주요 설계 요소
자연광 활용: 천장까지 닿는 큰 유리창을 통해 들어오는 자연광은 내부 공간을 밝고 생기 있게 만들며, 환자들에게 개방감을 준다.
목재 천장과 노출된 라프터(rafter): 내부의 노출된 구조물은 시각적으로 개방감을 주며, 자연스럽게 외부 풍경을 바라보게 한다.
재료 선택: 건물 외관과 내부에 사용된 목재와 유리는 건축물의 자연스러운 분위기를 조성하며, 동시에 현대적인 감각을 더해준다.
인상 깊은 요소 - sunoko 패널: 외벽에 사용된 sunoko 패널은 빠르게 건조되고 내구성이 뛰어난 목재로, 전통적인 일본 목재 건축 방식의 현대적 해석이다. 이 패널은 건물의 통기성을 높이고, 목재 특유의 따뜻한 질감을 살려 외부뿐 아니라 내부까지 연결성을 갖춘 공간을 만들었다.
프로젝트를 직접 설계한 건축가의 비평 반영: 이 프로젝트에서 목재의 사용은 단순한 미적 요소가 아니다. sunoko 패널은 환자의 심리적 안정감을 위해 설계된 기능적 요소로, 쾌적한 환경을 만들기 위해 환기 및 내구성을 모두 고려했다. 이 패널은 목재의 자연스러운 질감을 살리면서도 실내외의 쾌적한 공기 순환을 돕는다.
5. 소재 및 질감
외벽의 sunoko 패널은 빠르게 건조되고 내구성이 뛰어난 목재로, 일본의 전통적인 재료 사용 방식을 현대적으로 재해석한 것이다. 이는 공간의 시각적 미와 기능성을 동시에 살렸다. 목재의 따뜻한 질감은 외부뿐만 아니라 내부 공간에서도 지속적으로 느껴지며, 환자들에게 심리적 안정감을 제공한다.
6. 글로벌 건축 트렌드와 비교 분석
전 세계적으로 자연재료와 투명성을 강조하는 건축 트렌드는 의료시설에서도 점점 중요해지고 있다. 특히, 자연광과 목재를 활용한 공간 디자인은 환자들의 심리적 안정에 긍정적인 영향을 미친다. 아사히 노 모리 클리닉은 일본의 전통 목재 사용을 현대적 디자인에 접목해, 이러한 글로벌 트렌드와 조화를 이루고 있다.
인사이트: 자연 재료와 투명성의 결합은 건축 설계에서 심리적 안정과 편안함을 조성하는 중요한 요소로 자리 잡고 있다. 특히 의료 건축물에서는 환자들이 심리적으로 안정될 수 있는 공간 디자인이 필수적이다. 이 클리닉은 목재와 유리의 사용을 통해 환자들에게 따뜻한 환영과 개방감을 제공하며, 글로벌 건축 트렌드에 부합하는 성공적인 사례로 평가된다.
친자연적 설계 반영: 또한, TSC Architects는 건물이 자연 속에 위치한 것처럼 느껴지도록 설계했다. 이는 인공적인 건축물이 아닌 자연과 공존하는 공간을 목표로 한 것으로, 환자들은 의료 공간에서도 자연과의 연결을 느끼며 치유 경험을 할 수 있다.
7. 기능과 사용성
내과, 정형외과, 약국으로 기능이 나뉘어 각각의 건물이 독립적으로 운영된다. 복도를 통해 건물 간 이동이 편리하게 이루어지며, 넓은 유리창을 통해 환자들이 공간을 쉽게 인지하고 이동할 수 있다. 특히 자연광이 들어오는 대기 공간은 환자들이 편안함을 느끼게 하며, 기다림의 불편함을 최소화한다.
환자 경험 중심 디자인 반영: 특히 이 클리닉은 환자들이 불안감을 덜고 편안하게 느낄 수 있도록 설계되었다. 큰 유리창을 통해 자연광이 풍부하게 들어오며, 목재의 따뜻한 느낌이 환자들에게 심리적 안정감을 준다. 이러한 설계는 공간의 개방성을 통해 환자들이 의료 공간에 대한 두려움을 덜 수 있도록 했다.
8. 사용자 경험
공간을 사용하는 환자와 방문객들은 자연광과 목재로 꾸며진 내부에서 따뜻한 분위기를 느끼며, 개방적이면서도 아늑한 공간에서 심리적 안정감을 경험한다. 대기 공간은 환자들이 편안하게 쉴 수 있도록 설계되었으며, 유리창을 통해 내부와 외부의 시각적 연결성이 강조된다.
결론
아사히 노 모리 내과 및 위장병 클리닉은 목재의 따뜻함과 유리의 투명성을 조화롭게 결합해 환자들에게 쾌적하고 환영받는 공간을 제공하는 의료시설이다. 이러한 건축적 접근은 글로벌 트렌드를 반영하면서도 일본 전통 목재 건축의 현대적 해석을 보여준다. 이 프로젝트는 앞으로 다른 의료 건축물에 많은 영감을 줄 수 있을 것이다.
Write by ChatGPT & 5osa






















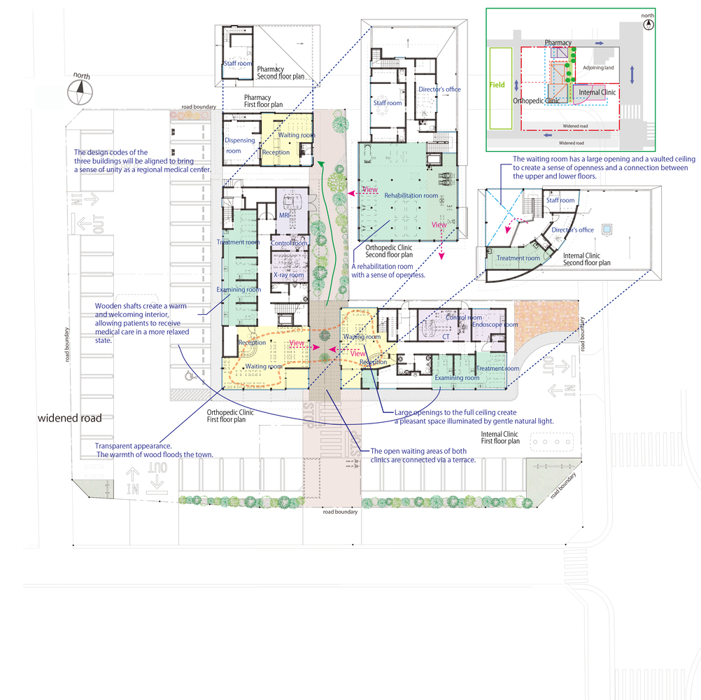
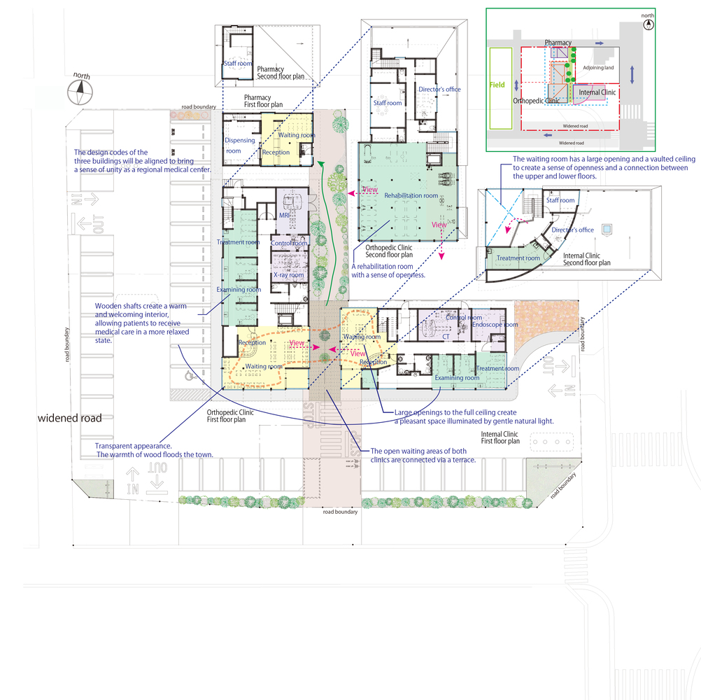
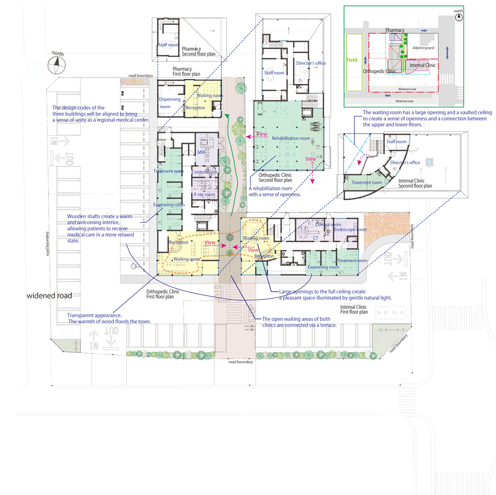
The three clients wanted to build an internal medicine, orthopedics, and pharmacy on a single site, and they wanted to align their design codes with a bright atmosphere. The site is located along an arterial road connecting the city center and the city center, with an urban planning road to the south that is scheduled to be widened, and future development is expected.
In planning a new regional medical center, we were conscious of creating a space that is distinctly different from commercialistic road service architecture, with the warmth of wood and a gentle welcome for patients The three buildings are connected by a wooden "sunoko" design code.
The sunoko walls (facade rattan) used for the exterior skin allow for better airflow, which dries faster and more durably than typical wooden exterior walls. We aimed to create a building with a bright and warm feeling of wood so that the wooden framework would appear as the interior. Therefore, we verified the structure so that it would be beautifully expressed, and let the placement of the rafters be determined.
The rafter-exposed ceiling guides the eye to the view outside. We also considered installing large opening exterior sashes on the outside of the structure to create a wooden structure with a sense of transparency. Large openings to the full ceiling create a pleasant space illuminated by gentle natural light.


