"The Eyes of the Skin" by Juhani Pallasmaa: "The door handle is the handshake of the building." - Juhani Pallasmaa

![]() |
![]() |
![]() |
체코의 새로운 랜드마크: 비대칭적 지붕과 자연을 품은 Skylight Hut Atelier Hajný-Skylight Hut
주제 소개: 이 블로그 글은 "Skylight Hut" 프로젝트에 대해 다룹니다. 이 프로젝트는 기존 건축물을 재사용하며, 제한된 건축 규제 속에서 창의적인 디자인을 구현한 사례입니다.
문제 제기: 비대칭적 지붕 구조와 자연광 활용은 어떻게 제한된 조건을 극복하고, 독창적이면서도 실용적인 주거 공간을 창출했는지에 대한 이야기를 전개합니다.
흥미 유발: Martin Hajný(마르틴 하이니)의 설계 의도는 어떻게 독특한 비대칭적 지붕과 자연친화적인 설계로 구현되었는지 알아봅시다.
a. 프로젝트 개요
프로젝트 명: Skylight Hut
설계자: Martin Hajný(마르틴 하이니) - 체코 출신의 건축가로, 자연과의 조화와 현대적인 디자인을 결합한 작품들로 잘 알려져 있습니다.
위치: 체코 프라하 근교의 한적한 휴양지
b. 설계 컨셉
핵심 개념: 비대칭적 디자인과 자연광의 최대 활용
영감: 기존 건축물의 재사용 및 주변 자연환경과의 조화를 이루기 위한 접근
디자인 특징: 어두운 금속 외장과 따뜻한 목재 내부의 대비, 비대칭적 지붕 구조, 넓은 스카이라이트(skylight)를 통한 자연광 활용이 특징이다. 이 프로젝트는 전통적인 체코 시골 오두막의 형태를 현대적으로 재해석한 것으로, 지역의 역사적 의미를 유지하면서도 현대적인 기능과 디자인을 결합하려는 시도가 돋보입니다. 특히 비대칭적 지붕과 전통적인 목재 사용이 이를 잘 반영하고 있습니다.
c. 설계 컨셉의 구현
구현 방법: 비대칭적 지붕을 통해 주변 건물과 경관을 해치지 않으면서도 건축물의 독창성을 살렸다. 지붕의 낮은 높이와 비대칭적 형태는 이웃의 시야를 가리지 않도록 배려한 결과이다. 스카이라이트를 통해 자연광이 실내로 깊숙이 들어와 내부를 밝고 따뜻하게 만들었다. 비대칭적 지붕 구조와 스카이라이트 활용은 Skylight Hut의 가장 인상적인 요소 중 하나로 볼 수 있습니다. 특히 이 디자인은 주변 환경과의 조화를 중시하는 건축가들에게 큰 영감을 줄 수 있습니다.
구체적 사례:
외부: 어두운 금속 패널로 이루어진 외장은 내구성이 뛰어나고 유지보수가 용이합니다. 알루미늄 패널과 같은 특정 금속 패널은 내구성이 뛰어나고 대부분의 환경에서 유지보수가 용이합니다. 그러나 해안가와 같은 고염분 환경에서는 추가적인 방청 처리가 필요할 수 있습니다. 주변의 자연환경과 조화를 이루는 디자인을 통해, 외부와 내부가 자연스럽게 연결됩니다. 넓은 테라스는 실내외 공간을 유기적으로 통합하며, 사용자가 자연 속에서 여유를 즐길 수 있는 공간을 제공합니다.
내부: 삼나무 합판(cedar plywood)으로 마감된 내부는 외부의 금속 패널과 강렬한 대조를 이루며, 따뜻하고 아늑한 분위기를 조성합니다. 스카이라이트와 큰 창문을 통해 자연광이 실내로 들어와, 내부를 더욱 환하게 합니다.
기술적 도전과 해결 방법: 이 프로젝트의 큰 도전 중 하나는 기존 건물의 구조적 한계를 극복하는 것이었습니다. 비대칭적 지붕과 스카이라이트를 추가하면서도 건물의 안정성을 유지하기 위해 강화된 철근 콘크리트 기초와 기둥이 사용되었습니다. 스카이라이트 설치 과정에서 발생한 기술적 문제들은, 정밀한 시뮬레이션과 지속적인 현장 조정을 통해 해결되었습니다. 또한, 이러한 재료 선택과 구조적 해결책은 내부의 자연광을 최대로 확보하면서도 에너지 효율을 높이는 결과를 낳았습니다.
d. 주요 설계 요소
자연 통합: 건물의 어두운 외장은 주변의 나무들과 조화를 이루며, 자연 속에 건물이 녹아드는 듯한 효과를 준다. 이는 건물의 환경적 통합을 강화하는 중요한 요소이다.
자연재료 사용: 내부는 삼나무 합판(cedar plywood)으로 마감되어 따뜻한 느낌을 주며, 외부의 금속 패널과 대조적으로 아늑한 분위기를 조성한다. 이 목재는 자연스러움과 내구성을 동시에 제공하며, 실내 공간을 더욱 편안하게 만든다.
환경 지속성: 기존 건축물의 재사용과 내구성이 높은 재료를 사용하여 환경에 미치는 영향을 최소화하였다. 금속 외장재와 목재의 조합은 유지 관리의 용이성과 자연스러움을 동시에 제공하여, 지속 가능한 건축을 실현했다.
e. 내부 및 외부 디자인
내부 공간: 내부는 목재 패널을 사용하여 따뜻한 느낌을 주며, 스카이라이트와 넓은 창문을 통해 자연광이 실내로 들어온다. 이는 내부를 밝고 쾌적하게 유지시킨다. 아늑한 침실과 효율적으로 배치된 공간들은 사용자가 편안함을 느낄 수 있도록 설계되었다.
외부 공간: 외부는 짙은 금속 패널로 마감되어, 주변 자연 환경과 자연스럽게 어우러진다. 넓은 테라스는 외부와의 연결을 강화하며, 사용자들이 자연 속에서 휴식을 취할 수 있는 공간을 제공한다.
재료의 적용: 외부의 금속과 내부의 목재가 조화를 이루어, 각각의 재료가 서로를 보완한다. 금속의 차가움과 목재의 따뜻함이 균형을 이루어, 건물의 전체적인 조화와 아름다움을 제공한다.
사용성 및 기능성: 스카이라이트는 계절에 따라 실내 온도를 조절하는 데 중요한 역할을 합니다. 여름철에는 자연 환기를 통해 실내 온도를 낮추고, 겨울철에는 햇빛을 최대한 받아들여 실내를 따뜻하게 유지합니다. 이처럼 스카이라이트는 단순한 디자인 요소를 넘어, 기능적인 측면에서도 거주자의 편의를 극대화하는 요소로 작용합니다. 또한, 넓은 테라스는 실내외의 자연스러운 연결을 가능하게 하며, 사용자는 이 공간을 자유롭게 활용할 수 있습니다.
f. 글로벌 건축 트렌드와 비교 분석
글로벌 트렌드: 최근 건축 트렌드인 비대칭적 디자인과 자연재료 사용과 일치하며, 지속 가능한 건축을 추구하는 방향성과도 연결된다.
특징 비교: 이 프로젝트는 현대 건축의 핵심 요소인 자연과의 조화와 지속 가능성을 잘 반영한 사례이다. 비대칭적 디자인은 공간의 독창성과 주변 환경에 대한 배려를 동시에 구현하였다.
환경 지속성 트렌드: 지속 가능한 재료의 사용과 기존 건축물의 재활용은 환경 지속성 측면에서 긍정적인 평가를 받을 수 있다.
미래 전망: 최근 보고서에 따르면 자연광 활용과 비대칭적 디자인은 에너지 효율성과 독창성을 중시하는 현대 건축에서 중요한 역할을 하고 있으며, 이러한 트렌드는 당분간 지속될 가능성이 큽니다. 그러나 건축 기술의 발전과 새로운 트렌드의 등장으로, 미래에는 다른 요소들이 더 중요한 역할을 할 수도 있습니다.
g. 인사이트
전문가 의견: 이 프로젝트는 제한된 조건 속에서도 창의적인 설계를 통해 독창성과 실용성을 동시에 실현한 좋은 사례로 평가받고 있다. 특히, 주변 환경과의 조화를 고려한 비대칭적 디자인은 많은 건축가들에게 영감을 줄 수 있는 요소이다.
비판적 시각: 내부 공간의 단순함이 기능적이긴 하지만, 더 많은 창의적 요소가 추가될 수 있었을 것이다. 스카이라이트와 같은 요소는 내부 공간을 더욱 다채롭게 만들 수 있는 가능성을 제공하지만, 그 활용이 좀 더 다양화될 필요가 있다.
h. 사용자 경험
거주자 의견: 실제 거주자들은 자연광이 가득한 밝은 실내와 편안한 분위기를 만족스럽게 평가합니다.
결론
요약: Skylight Hut은 제한된 조건 속에서도 창의적인 설계를 통해 독창성과 실용성을 동시에 실현한 우수한 사례이다. 특히 비대칭적 지붕과 자연광 활용이 이 프로젝트의 핵심 요소로, 주변 환경과의 조화를 이루면서도 독창적인 디자인을 제공한다.
Write by ChatGPT & 5osa





























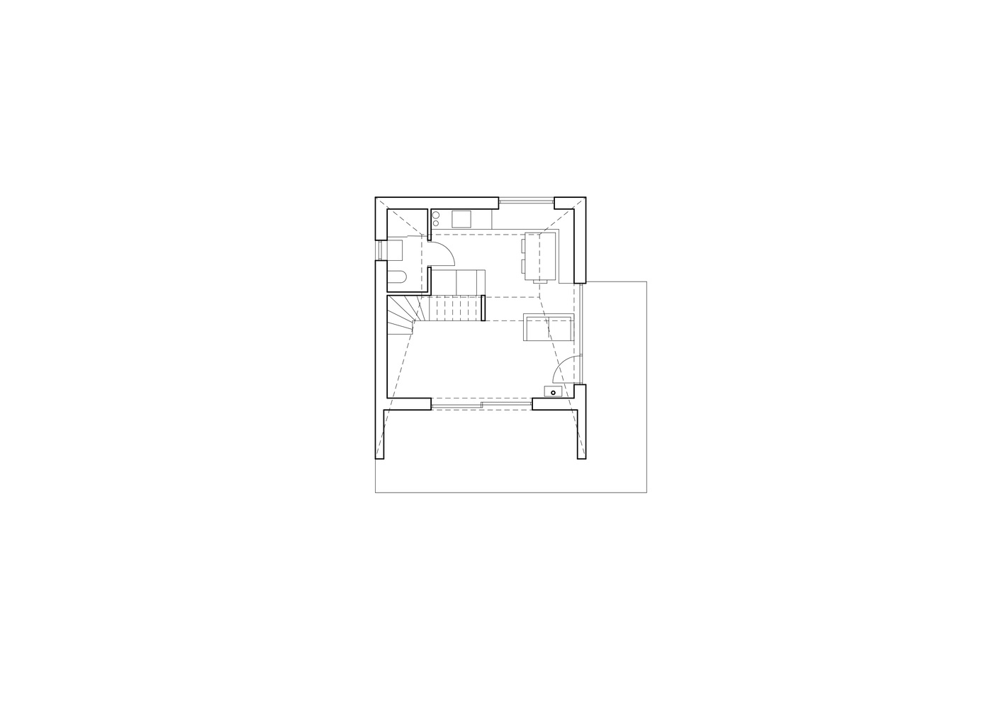
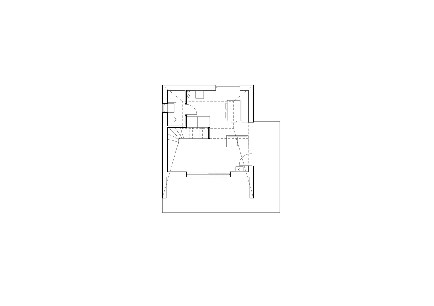
The hut in a recreational area near Prague has an unusual shape and appearance. The asymmetrical tent-like roof is truncated and finished with a pair of skylights. Originally, there was a simple one story hut with a basement and a low-pitched roof built in the 1970s. A married couple from Prague bought the land for a "city escape," not just for weekends but also for working from home. They were enchanted by the peaceful location amidst nature, surrounded by a garden and mature trees. They eagerly anticipated their retreat from city noise and even took a gardening course, but the building was in very poor technical condition. Additionally, it did not meet their spatial needs as they wanted to expand the ground-floor room with an attic bedroom. However, the zoning plan did not allow new construction, and the height was limited to a maximum of 7.7 meters from the surrounding terrain. The only solution was a complete renovation that would enlarge the house and comply with the requirements of authorities and neighbors.
Architect Martin Hajný took on the challenge and designed an unusual building with a truncated hip roof. The reason was to minimize height and be considerate of the neighbors, ensuring the roof shape did not disrupt their view of the landscape. The original hut was reduced to its stone base, upon which the new metal structure stands. The main construction is a two-by four system, diffusely open structure on a reinforced concrete slab, which is set on reinforced concrete pillars hidden behind stone walls. The roof and facade are clad in trapezoidal metal sheeting, a low maintenance material with a long lifespan that resembles wooden battens.
While the dark exterior helps the building blend into its surroundings, the interior is bright and evokes a classic hut with its predominance of wood. The pine plywood used, with its pronounced grain, extends from the ceiling panels to the walls and all furniture. It contrasts with the facade and is practical as it allows more light into the interior. The bathroom features a subtle grey plaster on the floor and walls.
From the ground floor, there are views of the surroundings through large glazed areas oriented to the south and east. The simple layout allowed the use of facade windows on all sides. The truncated hip roof, on the other hand, remained uniform from the outside; any insertion of a window would have disturbed the simplicity of the house as seen from the outside. The bedroom is therefore illuminated by a pair of opening skylights from above. The skylights create an interesting meditative space and allow rapid chimney ventilation of the whole building. Combined with the significant roof overhang over the southern part, this ensures a pleasant indoor climate all year round.
from archdaily


