"건축은 인간의 생활을 위한 예술이다. 자연과 조화를 이루는 공간을 만드는 것은 우리의 의무다."
– 루이스 칸(Louis Kahn)

![]() |
![]() |
![]() |
지속 가능한 글램핑: TipiTop 텐트로 자연을 더 가까이 Canobardin-TipiTop Tents, Glamping Tents
팬데믹 이후 사람들은 자연 속에서 새로운 경험을 추구하게 되었으며, Canobardin 건축 스튜디오(Canobardin Architecture Studio)가 설계한 TipiTop 텐트(TipiTop Tents)는 이러한 요구를 충족시킵니다.
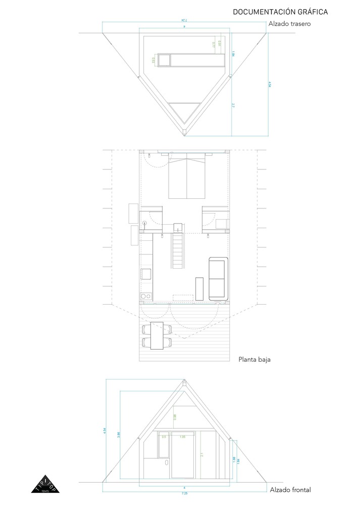
a. 프로젝트 개요
프로젝트 명: TipiTop 텐트
설계자: Canobardin 건축 스튜디오
위치: Tarragona, Tamarit Beach Resort 및 Costa del Sol Glamping Village
b. 설계 컨셉
핵심 개념: 전통적인 텐트 디자인의 현대적 해석
영감: 삼각형 프리즘 형태의 기본 텐트 구조
디자인 특징: 층층이 쌓은 소나무 목재 구조, 공공 및 개인 공간 분리, 재활용 가능한 재료 사용
c. 설계 컨셉의 구현
구현 방법: 삼각형 프리즘 형태의 기본 구조로 공간을 구획
구체적 사례:
공공 생활 공간은 주방과 연결되며, 전면과 후면 파사드는 샌딩 처리된 소나무 목재와 유리로 마감되었습니다.
개인 공간은 두 개의 더블룸으로 구성되며, 위층과 아래층으로 나뉩니다. 위층으로 올라가는 계단은 공간 활용도를 높이고, 어린이들이 안전하게 사용할 수 있도록 설계되었습니다.
내부 가구, 직물, 전자 제품, 조명 등 모든 세부 요소가 조화를 이루며 디자인의 일관성을 유지합니다.
d. 주요 설계 요소
TipiTop 텐트는 자연과의 조화를 중시합니다. 목재와 면, 재활용 가능한 패널을 사용하여 환경 친화적인 설계를 실현했습니다. 이중 타포린 구조는 공기 쿠션으로 기후 조절과 온실 효과 방지를 제공합니다.
e. 내부 및 외부 디자인
내부 공간:
TipiTop 텐트의 내부는 아늑하고 넓은 로프트 공간이 특징입니다. 목재를 주재료로 사용하여 따뜻하고 자연스러운 느낌을 주며, 실용적인 가구 배치가 돋보입니다. 큰 창문을 통해 자연 채광을 최대한 활용하며, 외부 경관을 즐길 수 있습니다. 예를 들어, 가족이 함께 식사하고 대화를 나눌 수 있는 충분한 공간을 제공합니다. 욕실과 주방은 기능적이면서도 심플한 디자인을 유지합니다.
외부 공간:
TipiTop 텐트의 외부는 자연과 어우러지는 디자인입니다. 샌딩 처리된 소나무 목재와 유리로 마감된 파사드는 세련된 외관을 자랑합니다. 면과 방수 PVC로 만든 이중 타포린 구조는 비와 바람을 막아주고, 온도 조절 기능을 제공합니다. 나무 데크로 구성된 외부 테라스는 가족과 친구들이 식사하거나 휴식을 취하기에 좋습니다. 캠프장은 나무와 식물로 둘러싸여 있어 평온한 환경을 제공합니다. 밤에는 조명이 켜진 텐트가 따뜻하고 아늑한 분위기를 연출합니다.
TipiTop 텐트는 현재 Tarragona의 Tamarit Beach Resort에 34개, Costa del Sol Glamping Village에 40개가 설치되어 있으며, 앞으로도 다양한 캠핑장에 더 많은 텐트가 설치될 예정입니다 (ArchDaily) (Camping Profesional).
f. 글로벌 건축 트렌드와 비교 분석
글로벌 트렌드: 지속 가능한 관광과 자연과의 조화 강조
특징 비교: 전통적인 글램핑 텐트와 비교하여 더 현대적이고 실용적인 디자인
환경 지속성 트렌드: 에코-프렌들리 접근법과 기후 조절 기능 강조
g. 인사이트
전문가 의견: Canobardin 건축 스튜디오는 자연과 인간의 조화를 설계에 잘 반영했습니다.
미래 전망: 지속 가능한 관광 산업에서 TipiTop 텐트의 가능성은 매우 큽니다. 사람들이 자연 속에서 편안함을 누리면서도 환경을 생각하는 방식이 늘어날 것입니다. 전통적인 텐트 디자인을 현대적으로 재해석하여 자연과 조화를 이루면서도 편안함과 기능성을 모두 갖춘 점이 특히 인상적입니다. 이러한 접근은 팬데믹 이후 자연 속에서의 새로운 경험을 추구하는 현대인의 요구를 완벽히 충족시킵니다.
비판적 시각: 디자인의 일부 개선점과 추가적인 기능이 필요할 수 있습니다. 예를 들어, 더 나은 방수 성능이나 계절에 따른 다양한 변형 옵션을 고려할 수 있습니다.
h. 사용자 경험
거주자 의견: 실제 사용자들은 TipiTop 텐트의 편안함과 기능성에 매우 만족했습니다.
사용 편의성: 실용적이며 자연 속에서의 편안한 경험을 제공합니다. 사용자들은 자연과의 밀접한 연결을 즐기며, 가족과 함께 특별한 시간을 보낼 수 있었습니다.
환경을 생각한 디자인, TipiTop 텐트의 매력
요약: TipiTop 텐트는 전통적인 텐트 디자인을 현대적으로 재해석하여 편안함과 기능성을 모두 갖춘 글램핑 텐트입니다.
교훈 및 시사점: 지속 가능한 재료 사용과 자연과의 조화를 통해 미래 건축 디자인의 방향성을 제시합니다.
미래 전망: 지속 가능한 관광 산업의 성장과 함께 TipiTop 텐트의 인기가 높아질 것으로 예상됩니다.
translate by ChatGPT






















Camping's icon is now its emblem. There has been a change in the way we live. After the pandemic, people have a need to go out, to not be cooped up, such habits have changed and will have changed forever. The terraces of houses have ceased to be that lost space that people tried to eliminate, instead, the interior apartments of big cities that are illuminated and ventilated into dark and gloomy patios are options to be avoided. Mentalities have changed, people need to go out, enjoy nature, have new experiences.
All these consequences have had an enormous impact on the camping sector, surely the part of the tourism sector with the greatest potential for development. In these years good examples are emerging that demonstrate the capacity of the sector to develop its potential, family tourism, recreational areas, sleeping in nature.
This project was born after 6 years of work of the Canobardin architecture studio in the world of camping. During that time, looking for glamping tents for their clients, they could not find options that fit them. They were usually too rudimentary and those that were good, had with African aesthetics that did not fit with the design standards of the projects on the European continent. TipiTop Tents, seeks to enhance the emblematic element of camping, the tent. That is why we started from the global imaginary of what a tent is: a triangular prism. With a structure made entirely of laminated pine wood, a volume is formed from three porticoes that will support the tarpaulins and give shape to the tent.
This structure also serves as an organizer of space delimiting a public living area with kitchen, another private area with a bathroom and two double rooms, one downstairs, and one upstairs, connected by a staircase boat, in a large and cozy loft. The materials, all of them made of wood, fabric or recyclable panels, are arranged in a simple way looking for a resounding design in wood, sand and white colors. The goal is to generate a large and cozy space that brings us the rotundity of the icon of the store. All the details have been worked together: furniture, fabrics, electrical appliances, lighting, toilets, etc... so that the result is a global and coherent proposal.
On the outside, the front and rear facades are made of sanded pine wood and glass. The side facades are closed with two separate tarpaulins between them. The inner one is made of cotton and breathable and the outer one of waterproof PVC. The combination of both and this separation, generates a climatic comfort thanks to the fact that this air cushion acts as insulation avoiding the greenhouse effect.
TipiTop Tents is not only a proposal for a tent, all of them together form real landscapes, articulating squares and ordering the space. The play of tarpaulins and the shadows of the trees projected on them makes the tents integrate with the environment and duplicate the foliage. At night, however, they become lamps that illuminate and set the mood outside, transforming the squares into warm and welcoming places. TipiTop has now set up 34 tents in Tarragona at Tamarit Beach Resort, and another 40 tents at Costa del Sol Glamping Village, next time it will set up in.
from archdaily


