"A building has integrity just like a man. And just as seldom." — 프랭크 로이드 라이트

![]() |
![]() |
![]() |
골강판과 목재가 빚어낸, Ton Corner의 역동적 공간 TON Architects-Ton Corner Coffee Shop
Ton Architects가 설계한 Ton Corner Coffee Shop은 베트남 후에시의 작은 골목에 위치한 개방적이고 역동적인 카페로, 작은 거리 모퉁이의 소박한 생활에서 영감을 받은 공간입니다. 이 프로젝트는 오래된 작은 주택을 철거하고, 침수 방지를 위해 기초를 올린 뒤 새롭게 설계되었습니다. 단기 임대지라는 특성 때문에 강철 구조로 지어졌으며, 골강판, 오래된 목재, 강화 유리가 주요 외장 재료로 사용되었습니다.
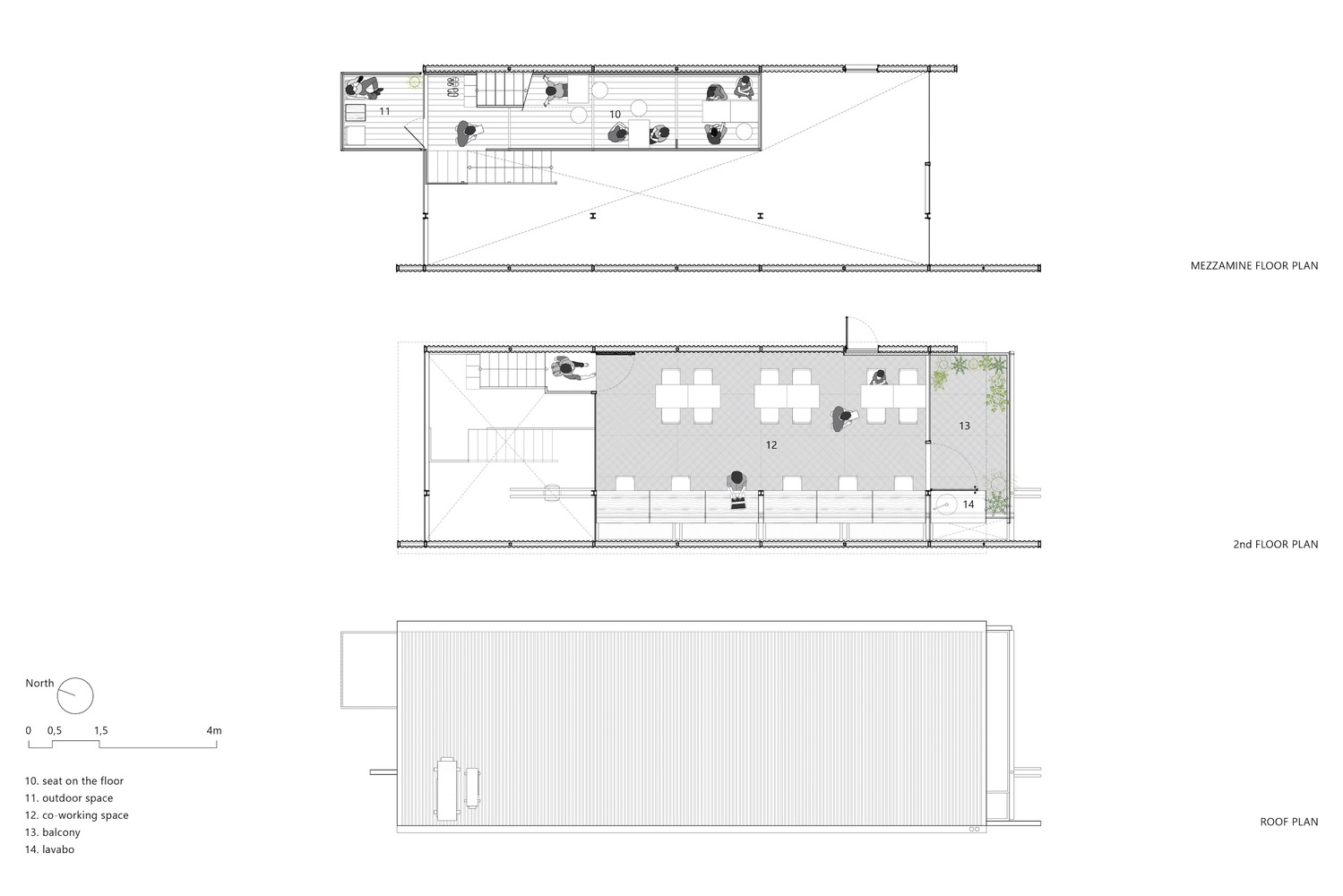
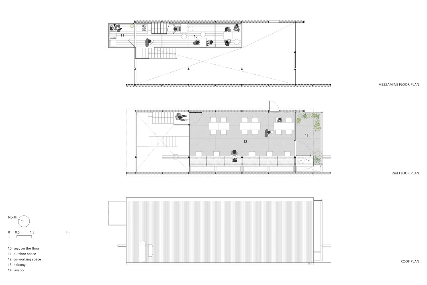
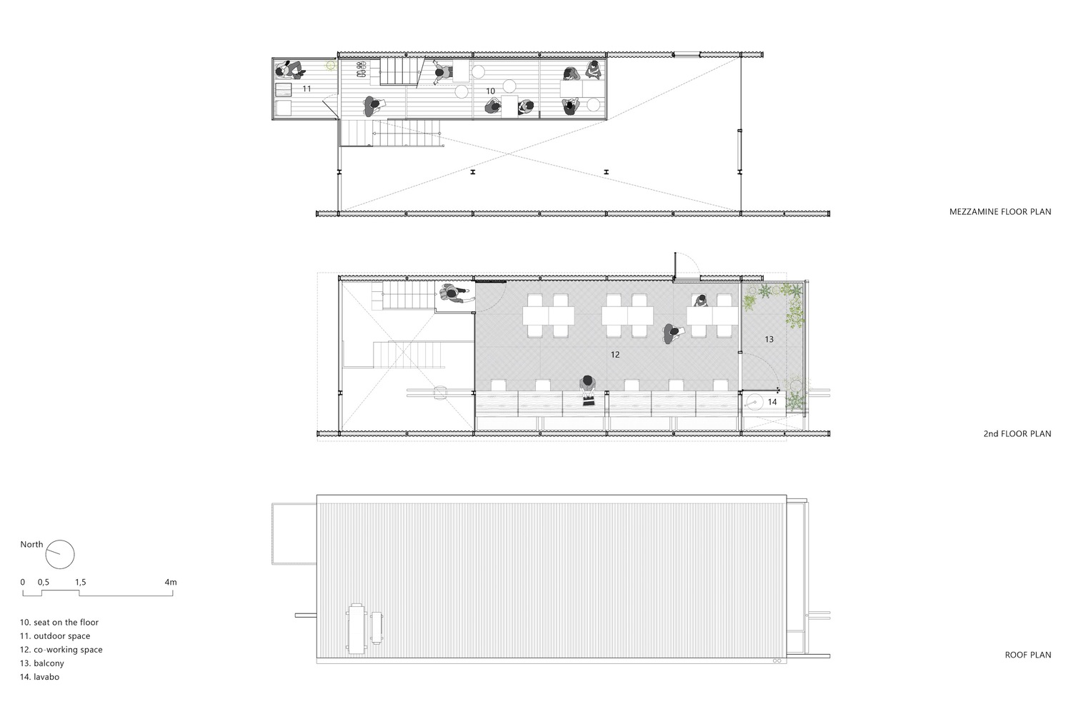
1. 골강판과 목재의 조화
이 프로젝트의 주요 특징 중 하나는 골강판과 오래된 목재라는 상반된 두 소재를 조화롭게 사용한 점입니다. 골강판은 주로 산업용 건물의 외장재로 사용되지만, 후에의 습하고 비가 많이 오는 기후에서는 외벽을 덮어 물이 침투하지 않도록 하는 데 사용됩니다. 그러나 이 소재는 적절한 미적, 기술적 처리가 이루어지지 않으면 도시 경관을 해치고 낡아 보일 수 있는 위험이 있습니다. Ton Architects는 이러한 점을 보완하여 골강판의 부드러움과 유연함을 강조하며 넓은 면적을 덮는 데 사용했고, 목재와의 조화를 통해 공간이 너무 차갑거나 오래되어 보이지 않도록 했습니다.
강철과 목재의 대조적인 질감은 서로 보완적이며, 이 두 재료의 선택은 후에의 기후와 건축 조건에 적합합니다. 이러한 재료들은 프로젝트의 개방적이고 역동적인 정신을 표현하며, 방문객들에게 새롭고도 익숙한 분위기를 제공합니다.
2. 공간의 개방성과 역동성
Ton Corner는 개방적이고 통풍이 잘되는 공간을 목표로 설계되었습니다. 전면 골목에서 내부, 그리고 후면 정원까지 매끄러운 흐름을 형성하여 모든 요소가 최대한 개방적이고 통풍이 잘 되도록 했습니다. 기존의 울타리는 철거되고, 그 자리에 긴 벤치가 배치되어 내부와 외부의 경계가 거의 사라진 듯한 느낌을 줍니다. 이 벤치는 파사드 전체 너비를 차지하며 부드러운 경계를 형성하고, 사람들을 자연스럽게 공간 안으로 끌어들입니다.
1층 실내의 커피 벤치는 후면 정원과 연결되며, 유연하고 통일된 공간 흐름을 만들어냅니다. 서비스 블록은 강철 프레임과 오래된 목재로 디자인되어 깔끔하고 정돈된 미학을 유지하며, 두 층과 중간층 구조는 더 많은 사용 면적과 좌석을 제공하면서도 방문객에게 흥미로운 공간 경험을 선사합니다.
3. 공간의 층별 기능성
1층은 커피를 즐기고 사람들이 모일 수 있는 공간으로, 방문객들에게 편안하고 개방적인 느낌을 제공합니다. 중간층에는 낮은 좌석을 배치해 방문객들이 더욱 친밀하고 아늑한 분위기를 느낄 수 있도록 했으며, 2층은 조용한 작업, 공부, 워크숍 및 그룹 활동을 위해 설계되었습니다. 이 층은 다락방처럼 아늑하면서도 주변 이웃을 조망할 수 있는 높은 층고를 갖추고 있습니다.
서비스 블록 위에 위치한 저층 좌석 공간은 프라이버시를 필요로 하는 고객들에게 편안한 휴식 공간을 제공합니다. 반면 2층 공간은 조용함과 집중을 필요로 하는 고객들을 위해 마련되어, 후에의 오래된 도시 환경 속에서 현대적이고 유연한 생활 방식을 반영합니다.
4. 지속 가능한 재료와 지역 기후 적응
Ton Corner는 강철 구조와 지속 가능한 재료를 사용하여 지역 조건에 적합한 설계를 추구합니다. 이는 건설 시간 단축, 환경 오염 감소 등의 효과를 거두며, 시장에서 쉽게 구할 수 있는 간단하고 일시적인 재료도 신중하게 사용하면 효과적으로 적용될 수 있음을 보여줍니다. 이를 통해 후에의 전통적인 건축 양식과 현대적인 설계 접근 방식이 결합된 독특한 사례를 제시합니다.
Ton Corner Coffee Shop은 도시의 작은 모퉁이에 개방적이고 역동적인 공간을 창출하며, 후에의 주민들에게 새로운 분위기와 현대적 감각을 제공합니다. 이는 단순한 상업 공간을 넘어, 도시와 사람들 간의 연결을 강화하고 지역 사회의 일원으로서의 참여를 촉진하는 역할을 수행합니다.
Write by ChatGPT & 5osa

























Text description provided by the architects. Situated in a small alley in the heart of Hue city, Ton Corner - a coffee shop that embodies an open and dynamic spirit, is inspired by the simple life of small street corners. The original small, deteriorating house was demolished to raise the foundation to prevent flooding. Since the land is leased on a short-term basis, the project is built with a steel structure with the main covering materials being corrugated iron, old wood, and tempered glass. Corrugated iron is considered a roofing material and is only used for covering industrial works. In humid, rainy climates like Hue, people use corrugated iron to cover the outside walls of their houses to prevent water seepage, However, using corrugated iron without proper aesthetic and technical treatment will cause the house to lose its original aesthetic value, even creating a shabby appearance in the urban landscape.
Corrugated iron and old wood are two contrasting materials but complement each other as a whole, ensuring the space feels neither too cold nor outdated, both materials are well-suited for the climate and construction conditions in Hue. In fact, there are many types of corrugated iron, we chose corrugated iron because of its softness and flexibility when covering a large area.
The design plan for the space for the project aims for ventilation, creating an open and dynamic spirit, a new atmosphere for a city where people are still heavy with nostalgia and old-fashionedness. Although glass is used a lot, the project is not exposed to sunlight because it is surrounded by houses and trees. The high space makes the user not feel stuffy due to the compact size of the project, and at the same time clearly sees the beauty of the green spaces before and after the project.
By establishing a seamless flow from the front alley through the interior and to the back of the land, making everything as open and airy as possible. The old fence was demolished so that the boundary between inside and outside almost disappeared, replaced by a long bench that occupies the entire width of the facade to create a soft boundary connecting and attracting people into the space.
The indoor coffee bench connects to the back garden, creating more flexibility, coherence, and dynamism. The service block is designed with a steel frame and covered with old wood, arranged in a linear block to maintain a clean and organized aesthetic. The two-story, one-mezzanine structure allows for more usable area and seating while still creating an interesting experience in the space for users. Above the service block is a low-seat coffee space for customers who need closeness, coziness, and privacy. The second floor has a high floor level, which is a space for customers who need quiet to work, study, or organize workshops, group work, etc. The second-floor space creates a closeness and coziness like the attic of a house, with a clear view of the surrounding neighborhood.
By researching and using steel structures and sustainable materials suitable for local conditions, the project has contributed to improving people's awareness of the use of popular and readily available materials on the market, seemingly simple and temporary, if used carefully and appropriately, it can still be effectively applied in residential and commercial construction, to save construction time, limit emissions to the environment during the construction process.
from archdaily


