"좋은 건축은 눈에 보이지 않는 자연의 리듬을 담는다." — 알바 알토

![]() |
![]() |
![]() |
10개의 기둥이 자연과 건축을 연결하다 Vector Architects-Wulingshan Eye Stone Spring
서론: 자연과 조화를 꿈꾸는 건축
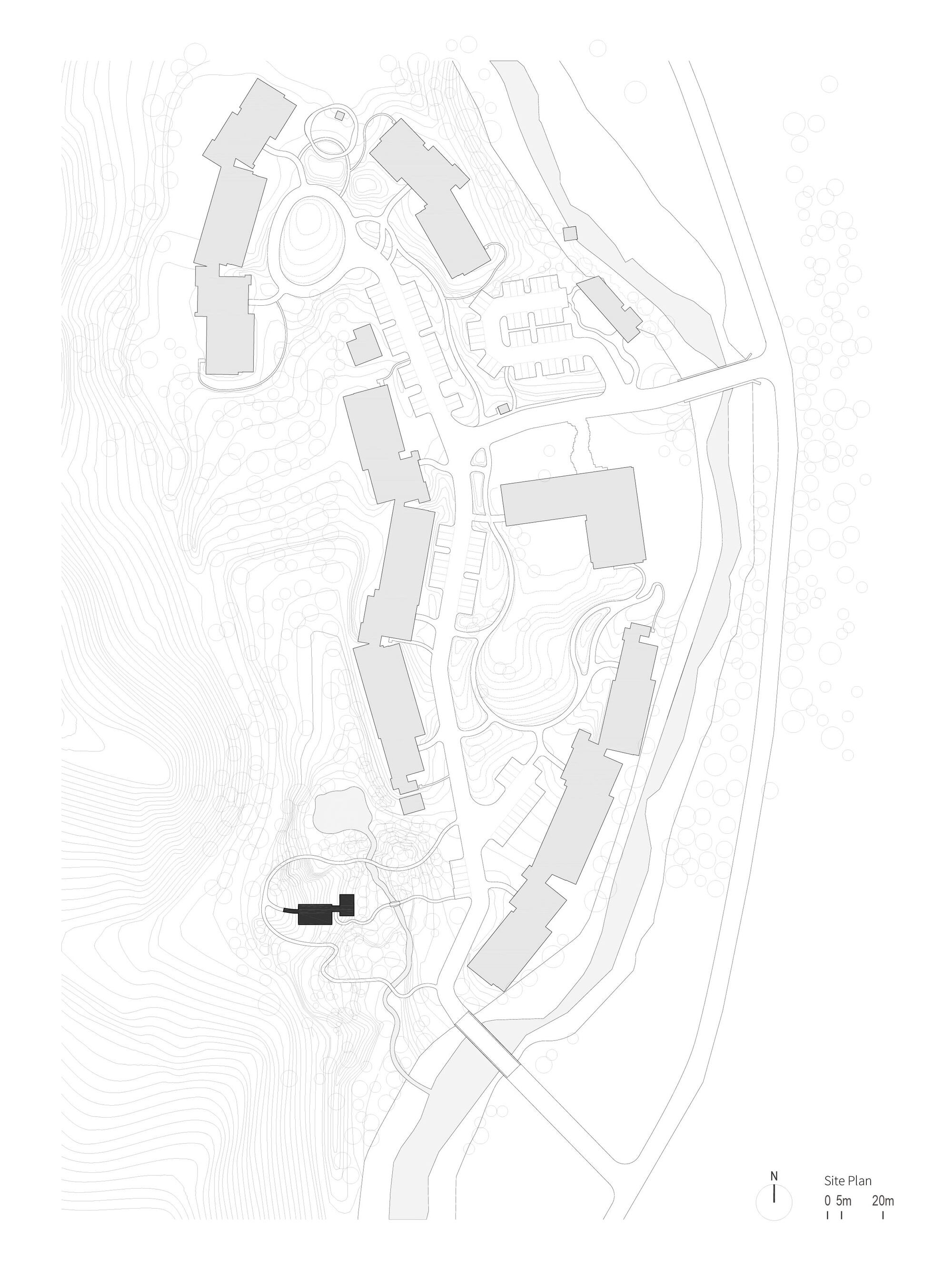
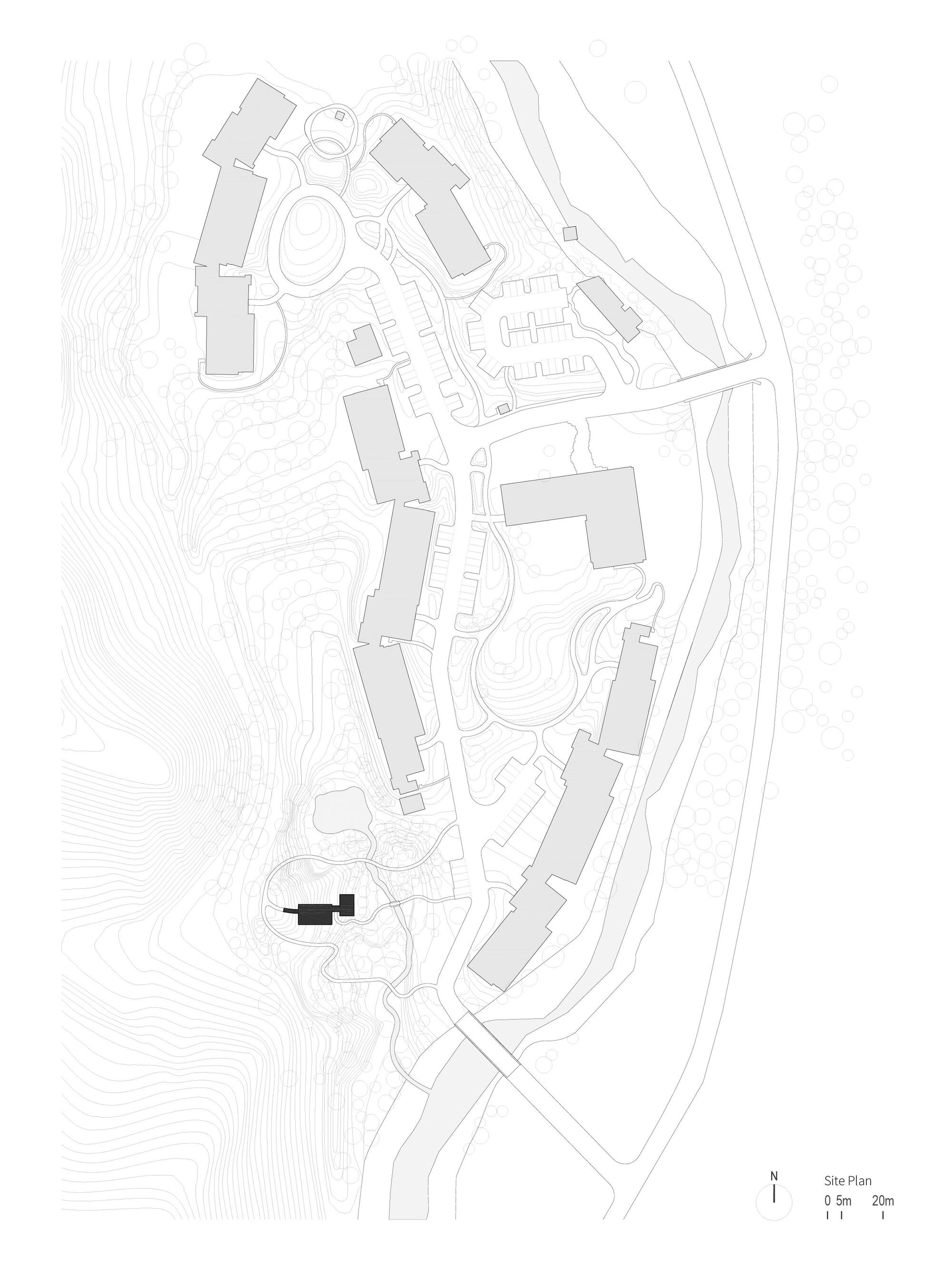
숲의 중심에서 자연과 건축이 손을 맞잡는 순간을 상상해 보세요. 북경 북부, Yanshan 산맥의 지류인 Wuling Mountain의 숲속 계곡. 이곳에 자리 잡은 Wulingshan Eye Stone Spring은 자연 속에 스며든 듯한 건축물로, 인간과 환경의 이상적인 관계를 그려냅니다. 이 건축물은 자연을 단순히 배경으로 사용하는 것이 아니라, 자연과 공존하는 새로운 방식을 제안합니다.
자연 속에 떠오른 건축: 설계와 구조
기둥 위에 떠 있는 공간
Wulingshan Eye Stone Spring은 10개의 기둥으로 지지된 구조를 통해 자연 지형에 최소한의 영향을 미칩니다. 이러한 설계는 자연의 흐름을 방해하지 않으면서도 건축물의 안정성을 보장합니다. 기둥 위에 자리한 건축물은 마치 숲속에 떠 있는 듯하며, 자연과 건축이 상호작용하는 방식을 보여줍니다.
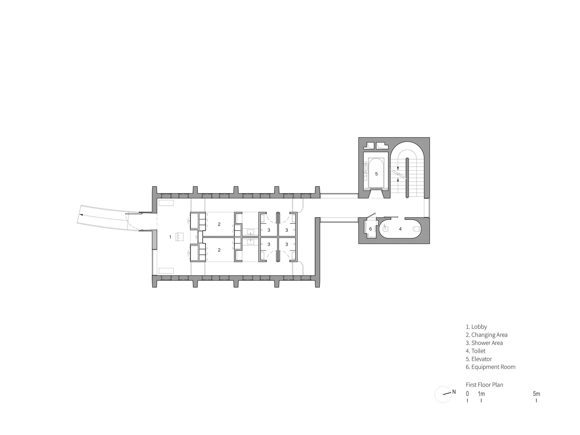
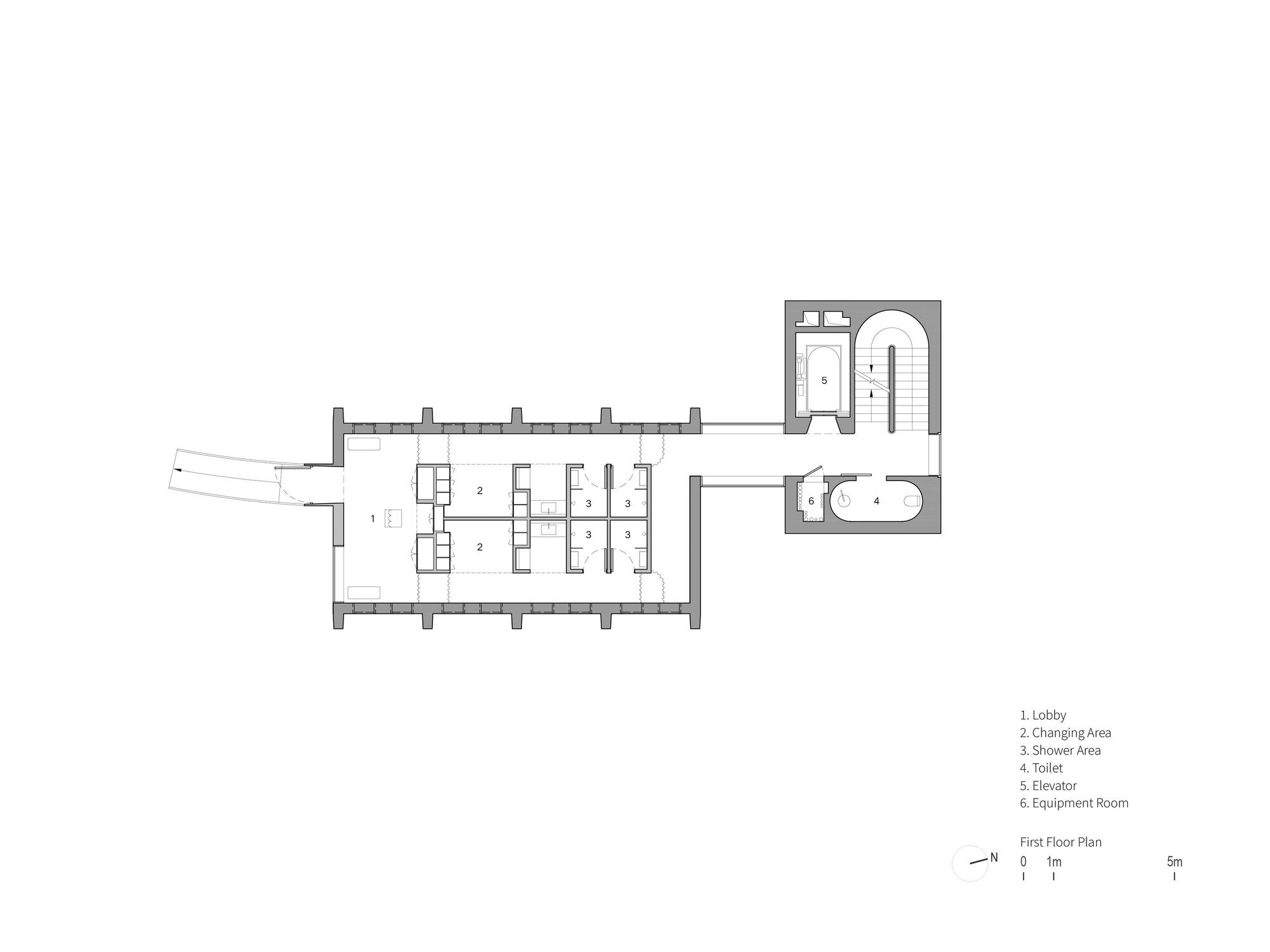
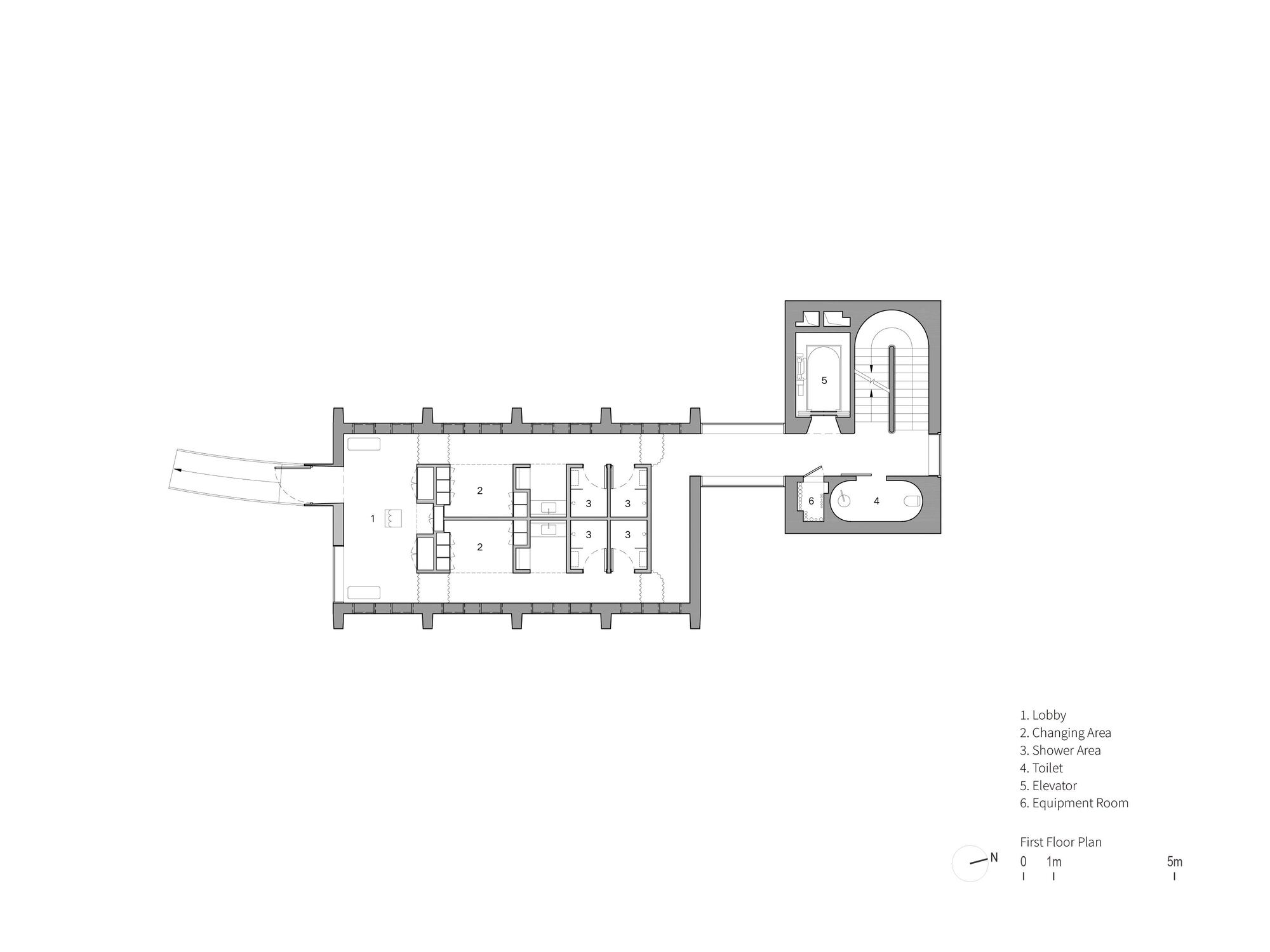
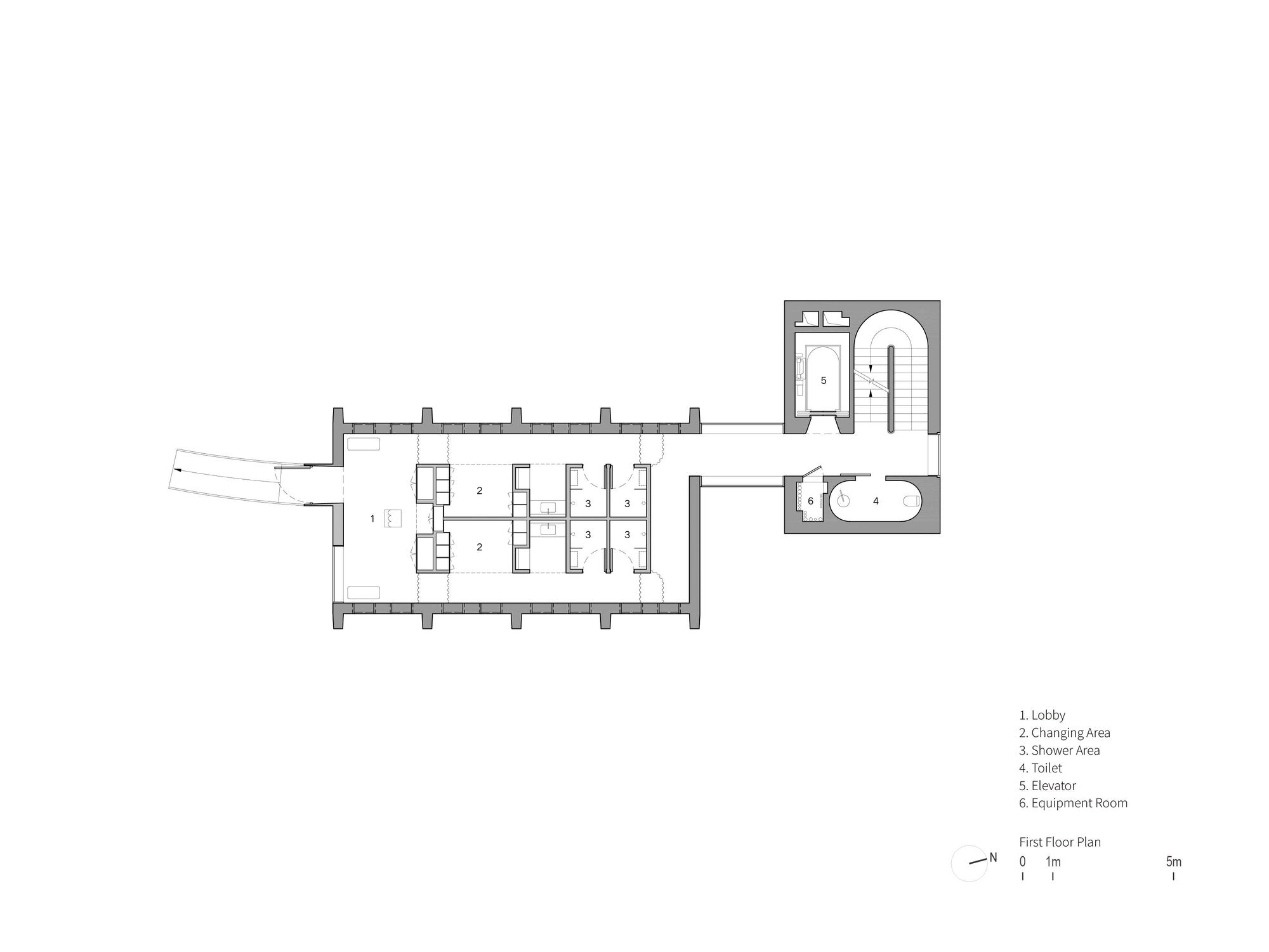
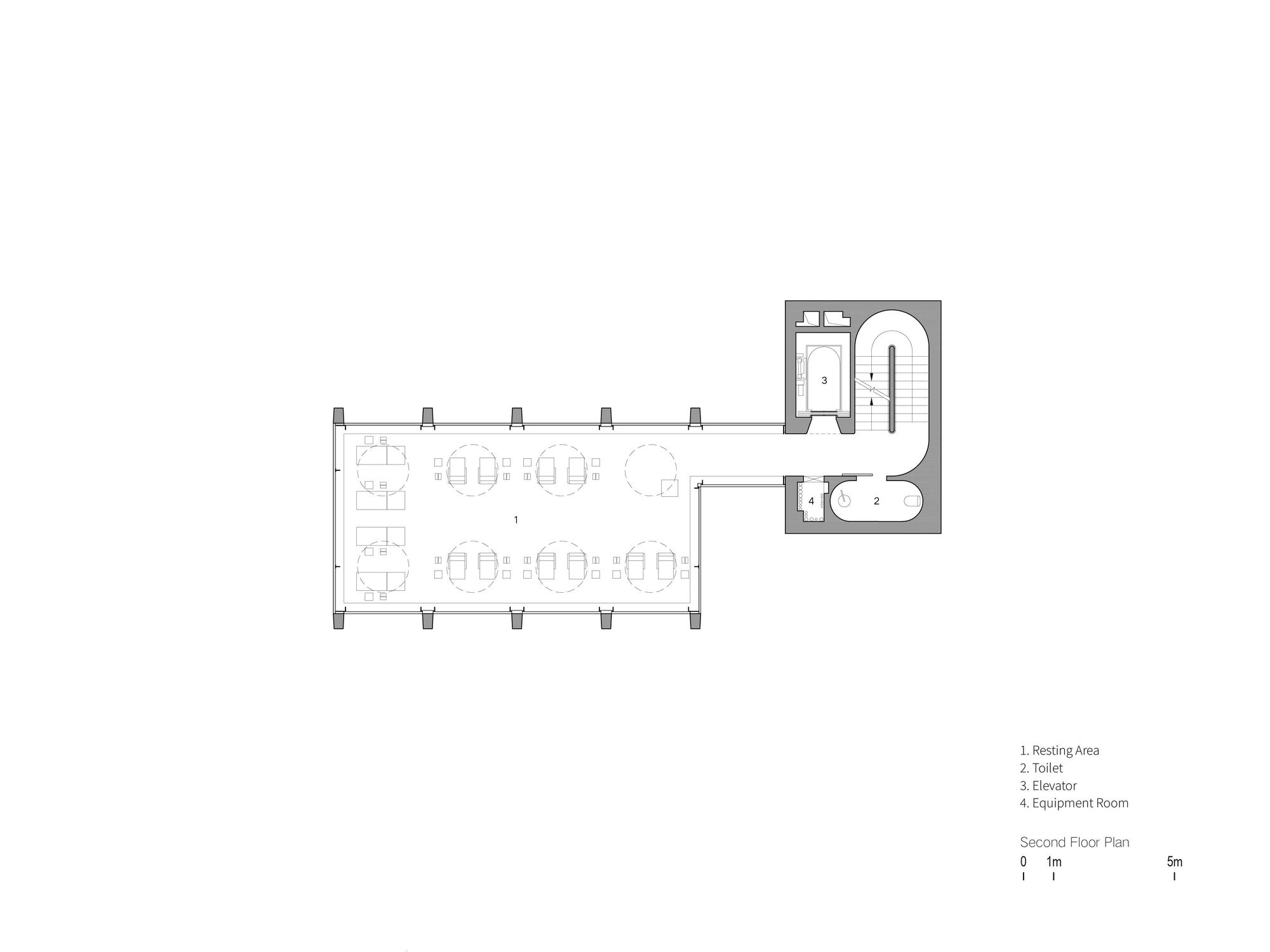
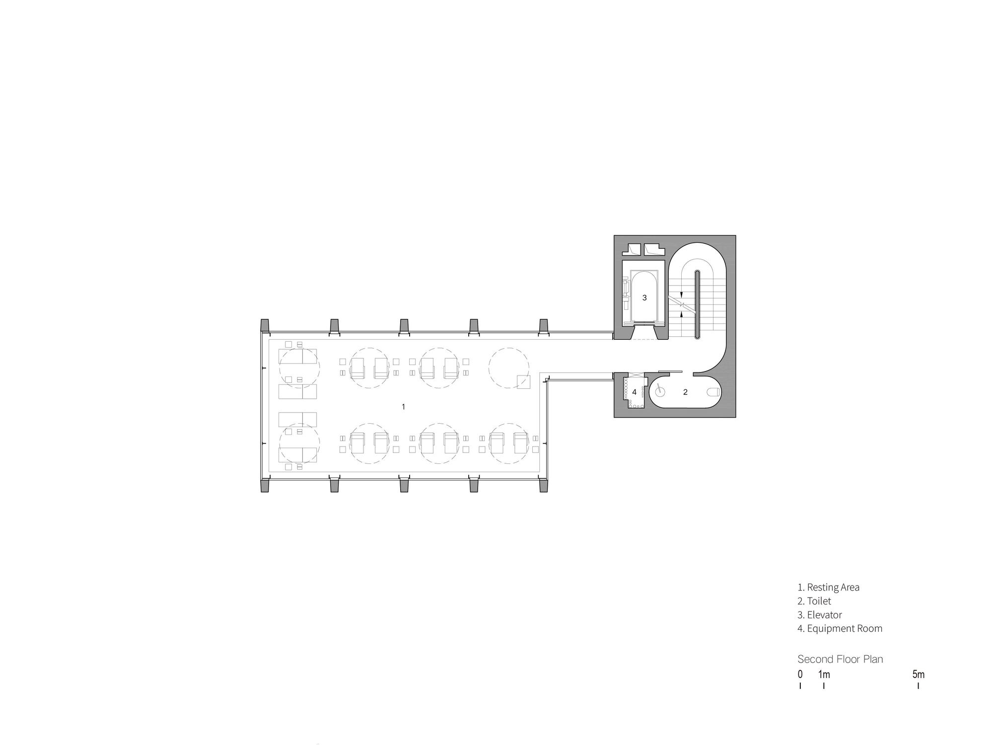
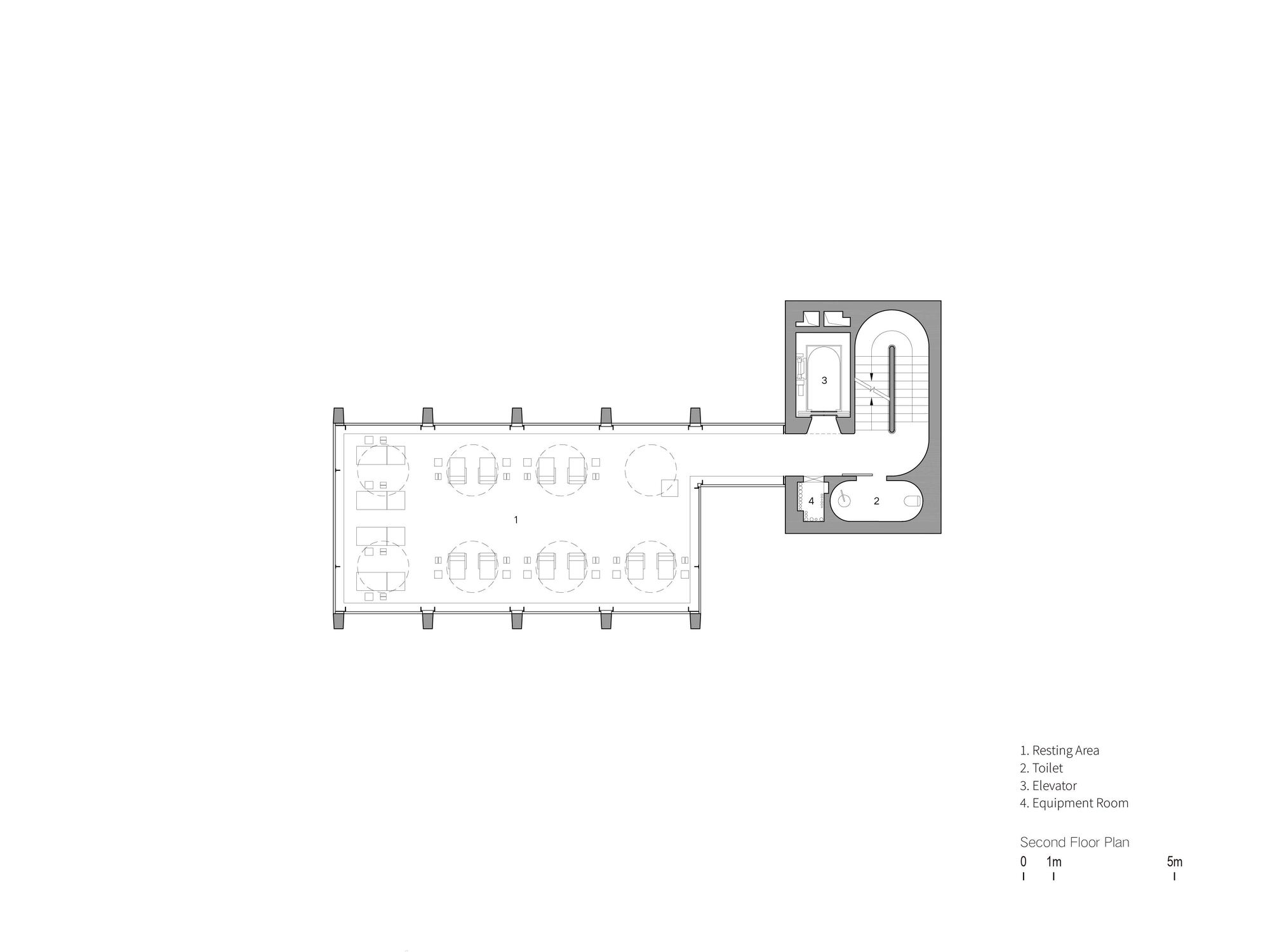
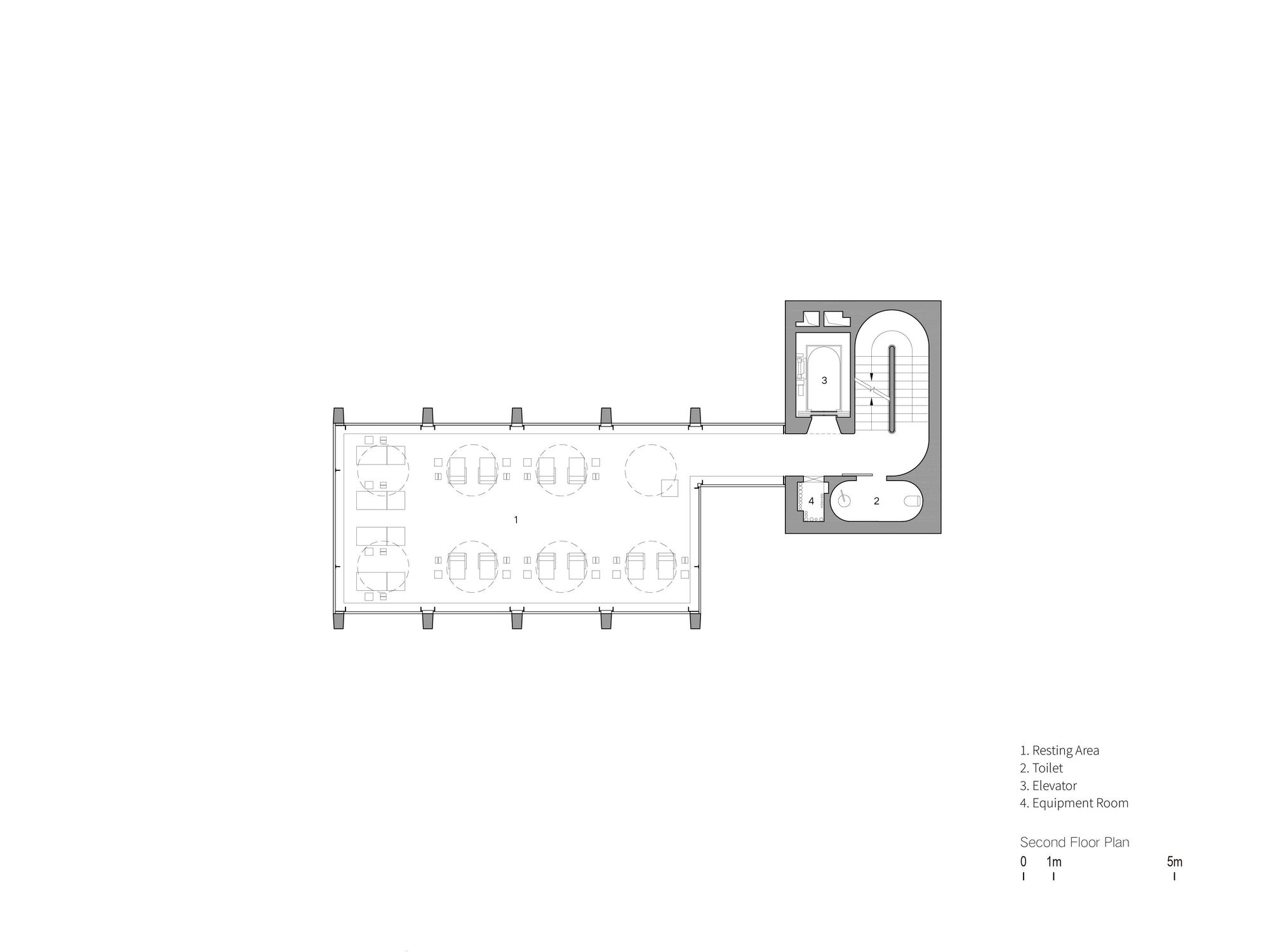
층별 독특한 경험
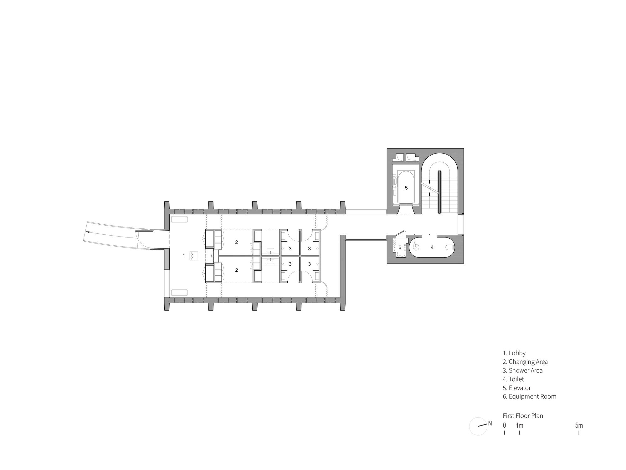
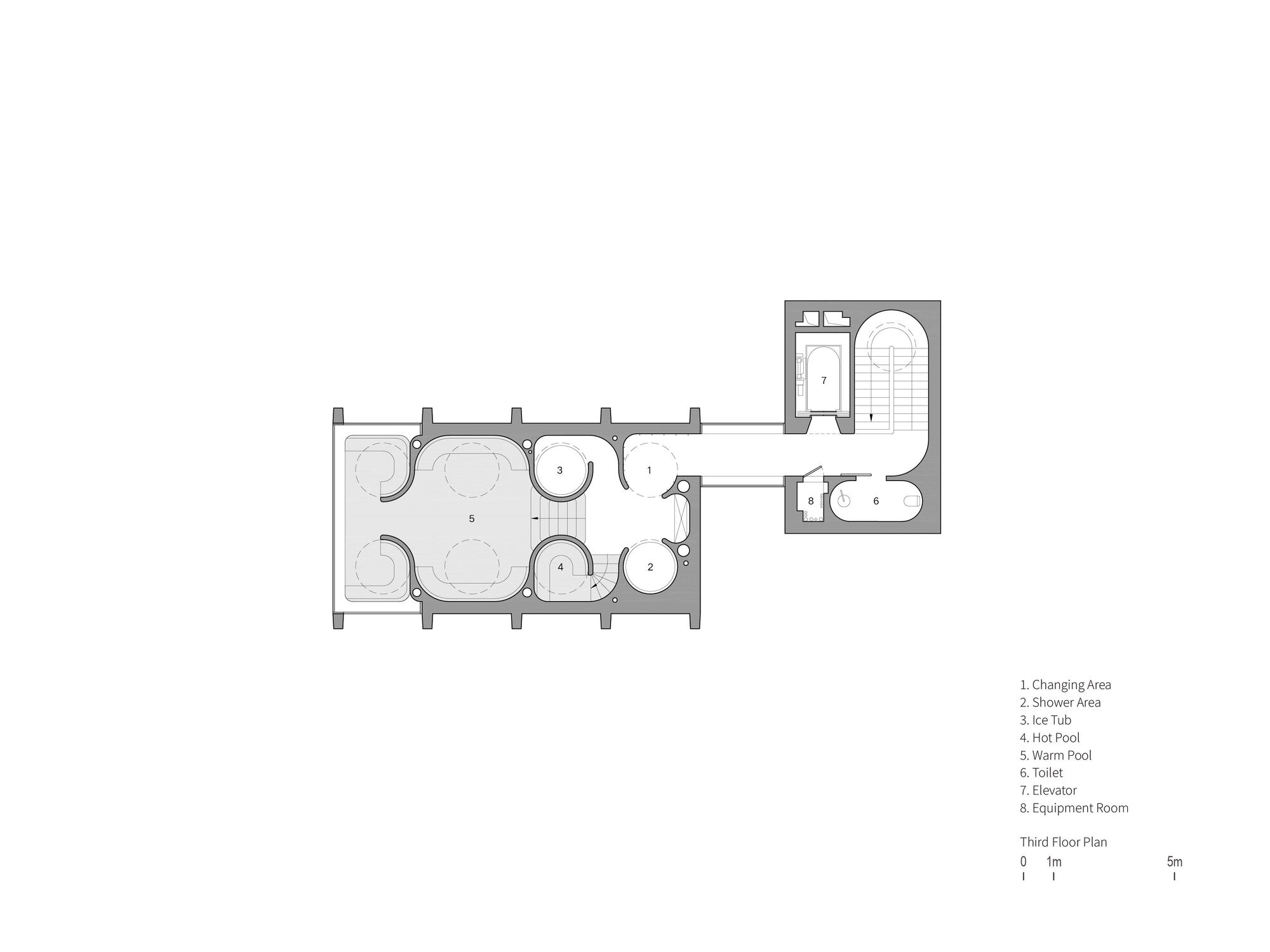
1층: 리셉션과 샤워실이 방문객을 맞이하며, 편안한 입욕 준비 공간을 제공합니다.
2층: 유리 벽으로 둘러싸인 라운지 공간은 숲의 한가운데에서 자연을 감상할 수 있는 기회를 제공합니다. 창문을 통해 들어오는 신선한 공기와 자연광은 사용자를 자연과 연결시킵니다.
3층: 8개의 빛 우물 아래 배치된 온천은 자연광의 부드러운 확산으로 명상적인 분위기를 만들어냅니다.
소재와 질감: 자연과의 대화
돌과 나무의 조화
외관은 부시해머 처리된 콘크리트로 마감되어 자연의 질감을 반영하며, 내부는 티크 목재를 사용해 따뜻함과 안락함을 더했습니다. 이러한 소재 선택은 건축물이 주변 환경과 유기적으로 조화를 이루도록 도와줍니다. 돌과 나무의 대비는 시각적 균형을 이루며, 자연과 건축이 공존할 수 있는 방식을 보여줍니다.
빛과 색채: 자연광과의 춤
8미터 높이의 라이트웰은 자연광을 실내로 끌어들여, 시간의 흐름과 계절의 변화를 건축물 내부에서 느낄 수 있도록 설계되었습니다. 낮에는 햇빛이 공간을 부드럽게 감싸고, 밤에는 은은한 인공 조명이 분위기를 더합니다. 빛과 그림자의 조화는 공간에 생동감을 더하며, 건축물이 살아 숨 쉬는 듯한 느낌을 줍니다.
자연과 건축의 철학적 연결
맥락과 의미
Wulingshan Eye Stone Spring은 단순히 물리적 공간을 넘어, 자연과 인간이 상호작용하는 방식을 탐구합니다. 이 건축물은 지역의 자연과 문화적 전통을 반영하며, 지속 가능성을 염두에 두고 설계되었습니다. 건축은 자연을 존중하고, 인간이 자연에 다시 스며드는 방법을 제시합니다.
사용자 경험
공간의 동선은 사용자의 편의를 고려하여 설계되었으며, 방문객은 자연과의 연결을 재발견할 수 있습니다. 숲속의 바람, 개울의 물소리, 그리고 빛의 움직임은 이곳에서의 경험을 특별하게 만듭니다. 방문객은 자연 속에서의 치유와 평온함을 느낄 수 있습니다.
결론: 자연과 인간을 잇는 다리
Wulingshan Eye Stone Spring은 자연과 건축이 함께 만들어낸 조화로운 걸작입니다. 10개의 기둥이 떠받치는 이 건축물은 인간이 자연 속에서 존재할 수 있는 방식을 보여주는 상징적인 공간입니다. 이곳은 단순한 스파 시설을 넘어, 자연과 연결되는 새로운 삶의 방식을 경험하게 합니다.
Write by ChatGPT & 5osa

































The spring house sits in a river valley, deep in the forests of Wuling Mountain, a branch of the scenic Yanshan Mountains in the northern part of Beijing. The site abuts a steep rock cliff to the west and opens out onto an expansive view of the alluvial plains to the east and the chain of mountains beyond. The site is densely populated with poplar trees and the ground is covered by reeds and grasses, with a stream slowly meandering from north to south through the site. The construction of a new residential community is underway nearby, where people will approach the building by crossing a steel arch bridge over the stream, strolling through the forest, and arrive at the entrance of the spring house.
We envision the building as an apparatus of the steaming hot spring, touching lightly upon the natural slope. To minimize the impact of the building on the original landscape, we raised the main building from the ground. Its volume is supported by 10 columns driven into the earth.
The hot spring functional spaces are vertically layered in the tower on the west side, and the transportation and service program are set in the east core, connected by corridor like bridge on each floor. The programs are vertically stacked up for reducing the building footprint and as well, creating a series of unique spatial experiences at different levels. As the visitors ascend, new relationships between the surrounding trees, rock cliff, and distant mountain landscape are respectively highlighted.
We allocated the main functions on three levels. An integrated teak box anchors the center space of the first floor to accommodate the reception, storage, locker room and showering functions before entering the bath. The second floor is a transparent relaxation lounge enclosed by floor-to-ceiling glass on all sides, located among the most lush part of the poplar tree canopies. When the weather is favorable, the upper windows can be opened, introducing the fresh natural air, framing splendor natural scenery throughout the seasons.
The third floor bath pools, at different temperatures and water treatments are distributed under eight light wells. When the skylight passes through the 8-meter-high wells, it becomes soft and quiet, diffused by the bush-hammered concrete. Through strip windows above the water surface on the west facade, people can choose to immerse themselves in the water or have a glimpse of the nearby valley cliffs with the flourishing treetop enveloping the building.
from archdaily


