“The sun never knew how great it was until it hit the side of a building.”By Louis Kahn

![]() |
![]() |
![]() |
나무, 콘크리트, 그리고 삶의 중정 JOYS Architects-Yellow House
1. Yellow House의 개요
Yellow House는 울창한 나무들로 둘러싸인 경사지에 위치한 독창적인 주거 공간입니다. 이 주택은 "내부 공간"과 이를 둘러싼 "외부 공간"으로 명확히 구분됩니다. 내부 공간은 높은 사생활 보호를 제공하며, 외부 공간은 4개의 코트(courts)를 통해 자연과의 조화를 이루는 독특한 구조를 자랑합니다. 코트 내부에서 나무가 자연스럽게 공간을 분할하며 시각적 중심을 형성합니다. 이 프로젝트는 JOYS Architects의 이전 작품인 Yellow Submarine Coffee Tank의 디자인 철학을 확장한 결과물로, 콘크리트와 지형의 유기적 조화를 강조합니다.
2. 자연과 공존하는 공간 구성
Yellow House는 기존의 나무와 경사지의 형태를 최대한 유지하면서 설계되었습니다. 외부 코트들은 각각 고유한 스케일과 기능을 가지며, 자연광과 신선한 공기를 내부 공간으로 유도합니다. 이는 건축물과 자연환경 간의 유기적인 관계를 잘 보여주는 사례입니다. 코트의 방향과 배치는 시간대별로 다른 조명을 제공하여 공간에 역동성을 부여합니다. 건물은 주변 큰 나무들과 경사진 지형을 보존하며, 각 코트는 자연광과 환기를 내부 공간으로 유도하여 쾌적한 환경을 제공합니다.
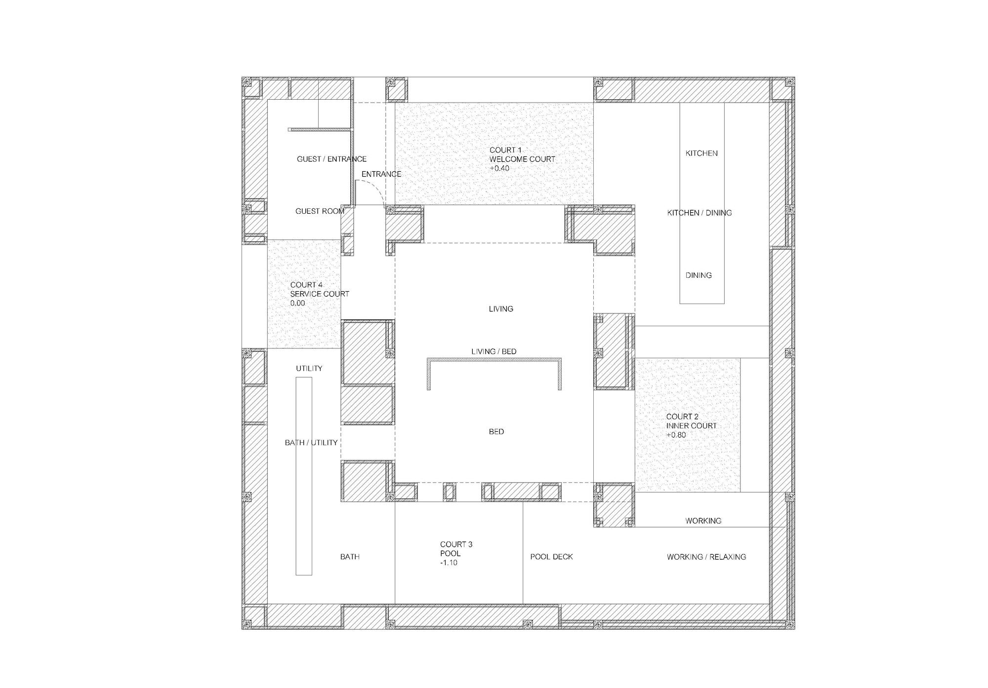
3. 코트(courts)의 다양한 기능
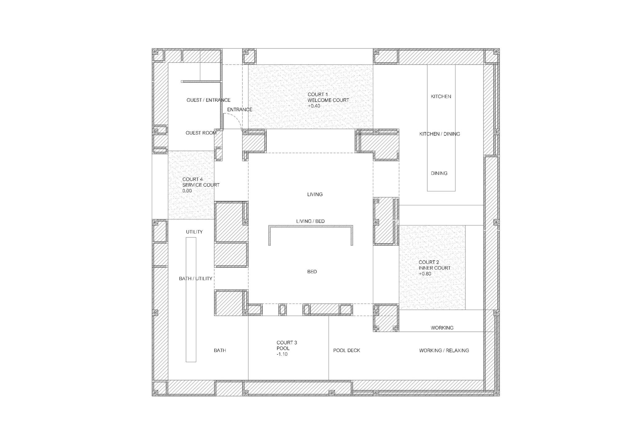
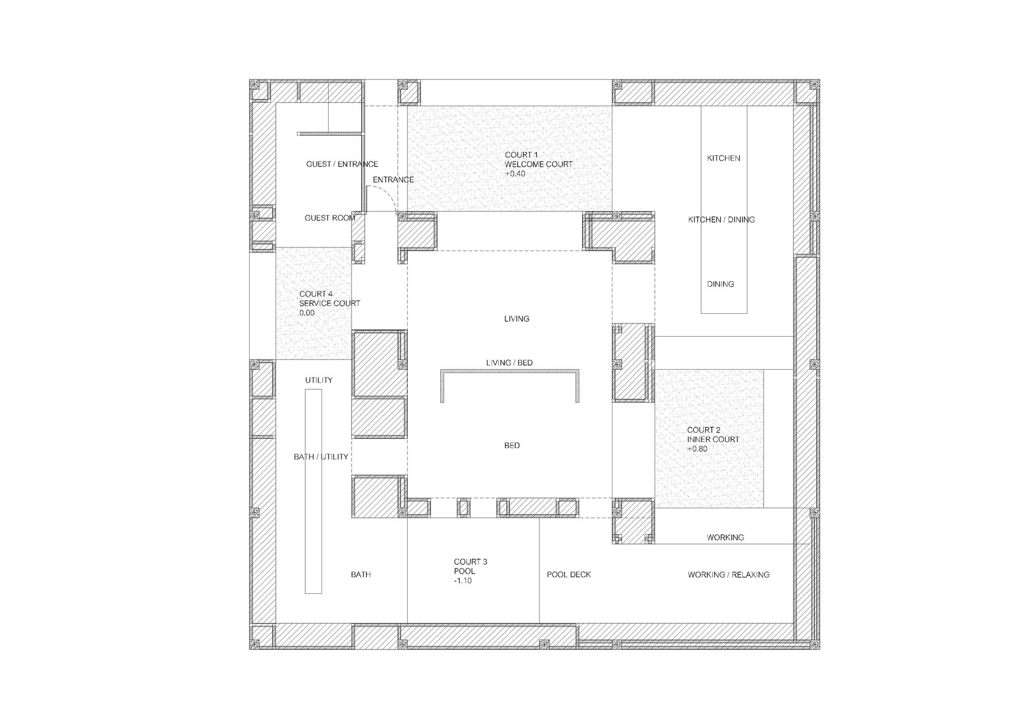
Yellow House의 4개의 코트는 각기 다른 역할과 특성을 가집니다:
웰컴 코트 (Welcome Court): 주택 입구에 위치하며, 외부로부터 내부 공간(거실)을 완만히 감추고, 주방으로의 접근성을 제공합니다. +0.30m 높이로 설정되어 거실을 외부로부터 살짝 가리며 프라이버시를 확보합니다.
이너 코트 (Inner Court): 작업 및 식사 공간 주변에 위치하며, 0.7m 높이의 구조로 작업용 테이블과 카운터 기능을 제공합니다.
풀 코트 (Pool Court): 기존의 나무가 없는 공간에 위치하며, 1.1m 깊이로 설계된 풀(pool)을 통해 휴식 공간 및 목욕 공간을 형성합니다.
서비스 코트 (Service Court): 주택과 동일한 0m 높이로 설계되어, 내부 공간에서 쉽게 접근 가능한 보조 공간 및 유틸리티 공간으로 사용됩니다.
이러한 코트들은 기능적으로 분리되면서도 상호 연결되어, 집안과 외부 환경 간의 순환적 관계를 형성합니다. 코트는 주변 환경과의 상호작용을 고려하여 설계되었으며, 자연 요소와 기능성을 동시에 제공합니다.
4. 콘크리트 스킨(Concrete Skin)의 건축적 역할
Yellow House의 내부와 외부는 "콘크리트 스킨(Concrete Skin)"으로 연결됩니다. 콘크리트는 내구성이 뛰어나며, 시간이 지나도 변하지 않는 통일감을 제공합니다. 외부 벽과 내부 벽이 동일한 재료로 구성되어, 시간이 흐르며 자연스럽게 하나의 조화로운 표면으로 변모합니다. 콘크리트 표면의 거친 질감이 공간의 자연스러운 분위기를 강조합니다. 벽돌 위에 콘크리트를 덧씌우는 기법을 통해, 콘크리트는 내외부의 시각적 연결성을 높이며 시간의 흐름에 따라 일관된 외관을 제공합니다. 기둥-보 구조가 사용되어 큰 개방감을 유지하면서도 안정성을 확보합니다.
5. 결론: Yellow House의 건축적 가치
Yellow House는 자연과의 조화를 중시하는 설계를 통해, 거주자에게 단순한 생활 공간 이상의 경험을 제공합니다. 각 코트와 내부 공간의 유기적인 관계, 그리고 콘크리트 스킨의 통일성은 이 집의 독창성과 기능성을 잘 보여줍니다. JOYS Architects의 이 작품은 건축과 자연의 조화로운 결합을 원하는 현대인의 요구를 충족시키는 훌륭한 사례라 할 수 있습니다. 작업 공간과 생활 공간이 시각적으로 연결되어 효율적이고 편안한 사용자 경험을 제공합니다.
Write by ChatGPT & 5osa





















Yellow House is situated in a sloped area that is surrounded by a lot of big trees scattered all over the site. The house consists of two main parts. The first is the "inner spaces," composed of highly private functions. And they are surrounded by "outer spaces," which are composed of less private functions. The "outer spaces" are open-air courts that are situated on four sides of the house.
This court allows daylight and air into the "inner spaces." All four courts have their own character in terms of scale and dimension, depending on their orientation to maintain the existing trees and slope of the ground. And because of the courts' position, they have their own functions and define the functions of the area around them. Such as:
• The "Welcome Court," which is located at the front of the house and is +0.30 meters high, so this court acts as a shielded court that slightly hides the inner space (the living room) from the outside. and it also acts as an accessway to the kitchen due to the not-too-high ground level (0.30 meters).
• The "Inner Court," has a counter and table around it because its ground level height is 0.70 meters. That height is suitable for making a working table or counter, so functions around it like a dining and working area.
• The "Pool," which is different from the other court because this court does not have any existing trees at the location, so it is not necessary to keep the land level for keeping any trees. The court is dug 1.10 m for a pool. And this pool also creates functions around it, like a relaxing area and a bath area.
• The "service court," which is at the same level as the house (0.00), is used as a court that can be easily accessed from inside, so it acts as a service court for support utility and maid rooms around it.
In addition, all the courts not only create functions around them but also connect the surrounding area. So, the "outer spaces" are connected to a circular area around the "inner space." The court and its surrounding space are dissolved by daylight and fresh air, which flows from one space to another. In the same way, the view of space is connected by material, which is the "concrete skin".
"Concrete Skin" is used to link inside and outside space together due to duration and time reasons. Concrete is cast on top of the brick wall. The concrete skin is strong enough for weathering. So, the exterior and interior walls are all the same when time passes. It makes a connection between inside and outside spaces.
from archdaily


