"집은 우리 자신을 가장 잘 표현할 수 있는 캔버스다." – 프랭크 로이드 라이트

![]() |
![]() |
![]() |
빛과 그림자의 춤, Curtain House Johnsen Schmaling "reimagines infill" with Curtain House on narrow lot in Milwaukee
서론
밀워키의 Lower East Side 지역, 다양한 문화와 개성을 품고 있는 이곳에 자리 잡은 Curtain House는 Johnsen Schmaling Architects의 독창적이고 현대적인 건축 작품입니다. 7미터 폭의 좁은 대지 위에서 재창조된 이 건축물은 기존 도심 인필(Infill) 건축의 전형적인 규범을 새롭게 정의하며, 주변의 오래된 주택들과 조화를 이루면서도 그 존재감을 강렬히 드러냅니다. 설계 과정에서 좁은 부지로 인한 도전 과제를 극복하고 이를 혁신적으로 활용한 점에서 주목받고 있습니다.
1. 외관 디자인: 현대적인 율동감의 미학
Curtain House의 전면부는 수직 루버(Louvre) 패널로 구성된 독특한 디자인으로 이루어져 있습니다.
영감과 설계 의도: 미국 도시 가정에서 흔히 볼 수 있는 커튼의 주름에서 영감을 받은 이 루버 시스템은 목재와 알루미늄으로 제작되었습니다. 각 루버는 점진적으로 회전하는 각도로 배치되어 정면에 율동적인 움직임을 부여합니다.
기능적 역할: 루버는 단순한 장식 요소에 그치지 않고, 프라이버시 보호와 햇빛 차단 기능을 수행하며, 더운 계절에는 실내 열기를 줄이는 데 기여합니다. 특히 루버의 각도 조정 기술은 프라이버시를 제공하는 동시에 자연 채광을 극대화하며 에너지 효율성을 높이는 데 중요한 역할을 합니다.
재료와 색감: 고성능 유리와 세 가지 코팅 처리된 시멘트 기반 스투코(Stuccu) 시스템으로 이루어진 외벽은 절제된 색조를 통해 도시적 세련미를 강조합니다. 루버의 목재 텍스처와 금속 알루미늄의 조합은 빛 반사와 질감 대비를 통해 현대적 감각을 극대화합니다.
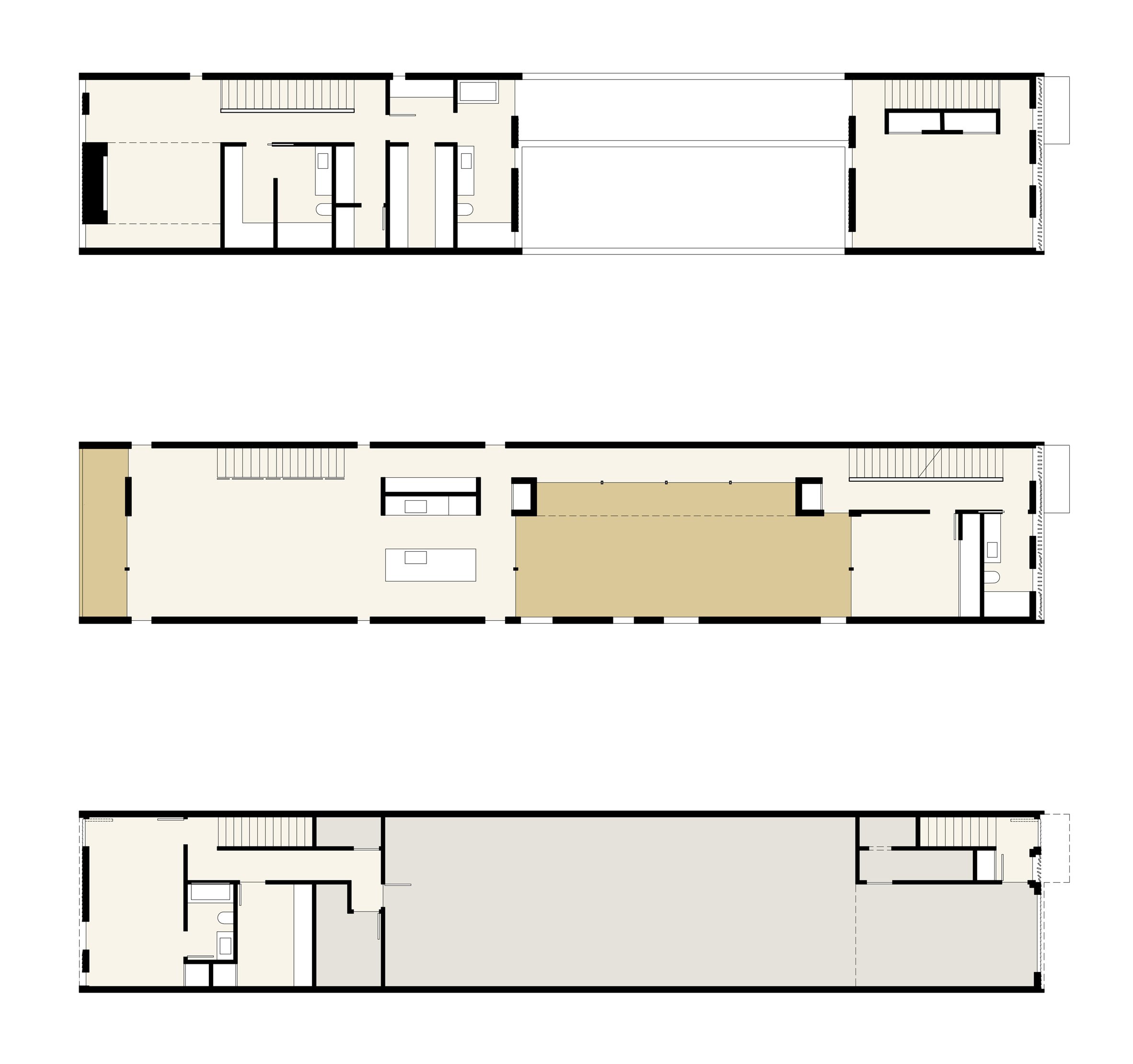
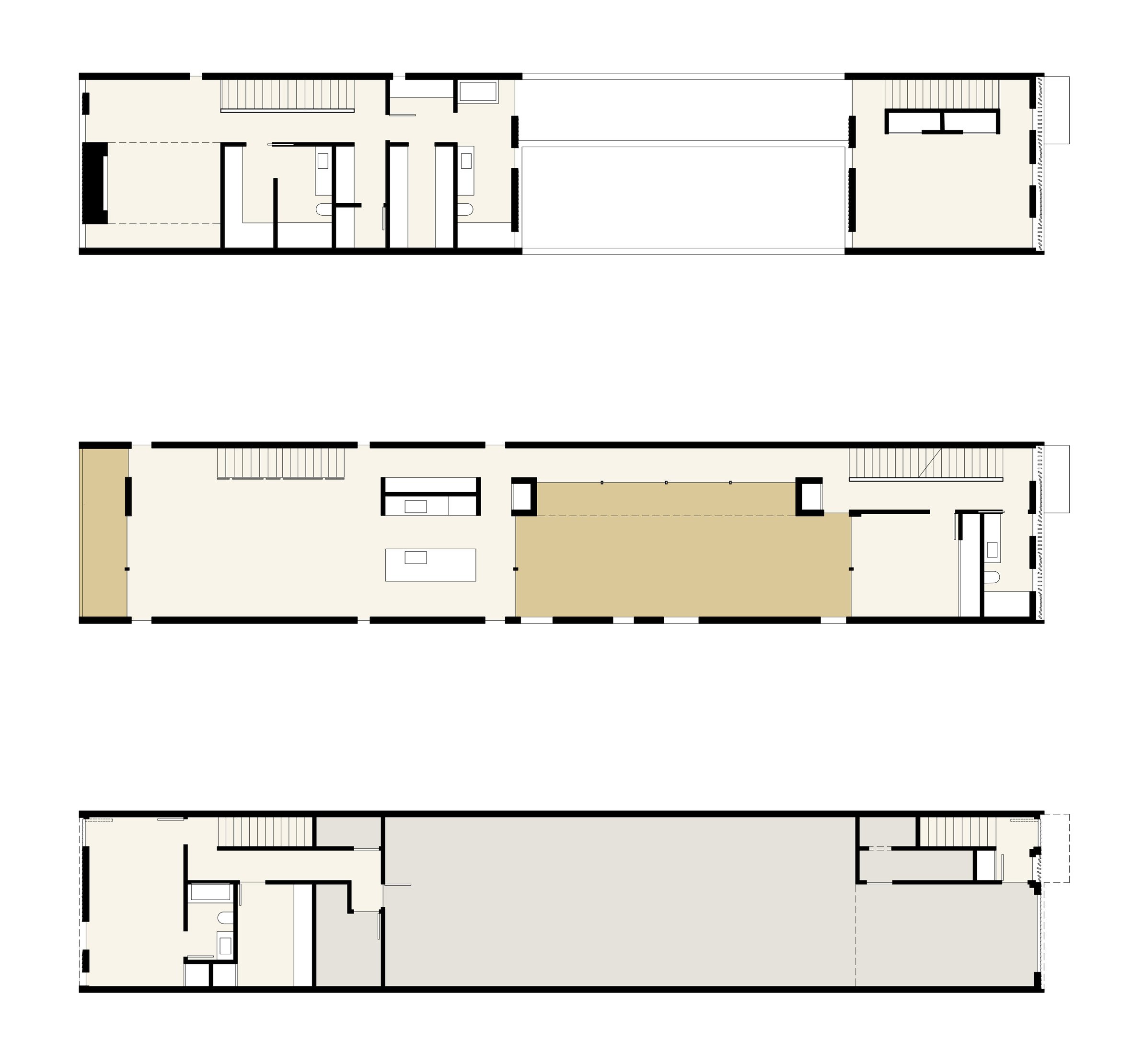
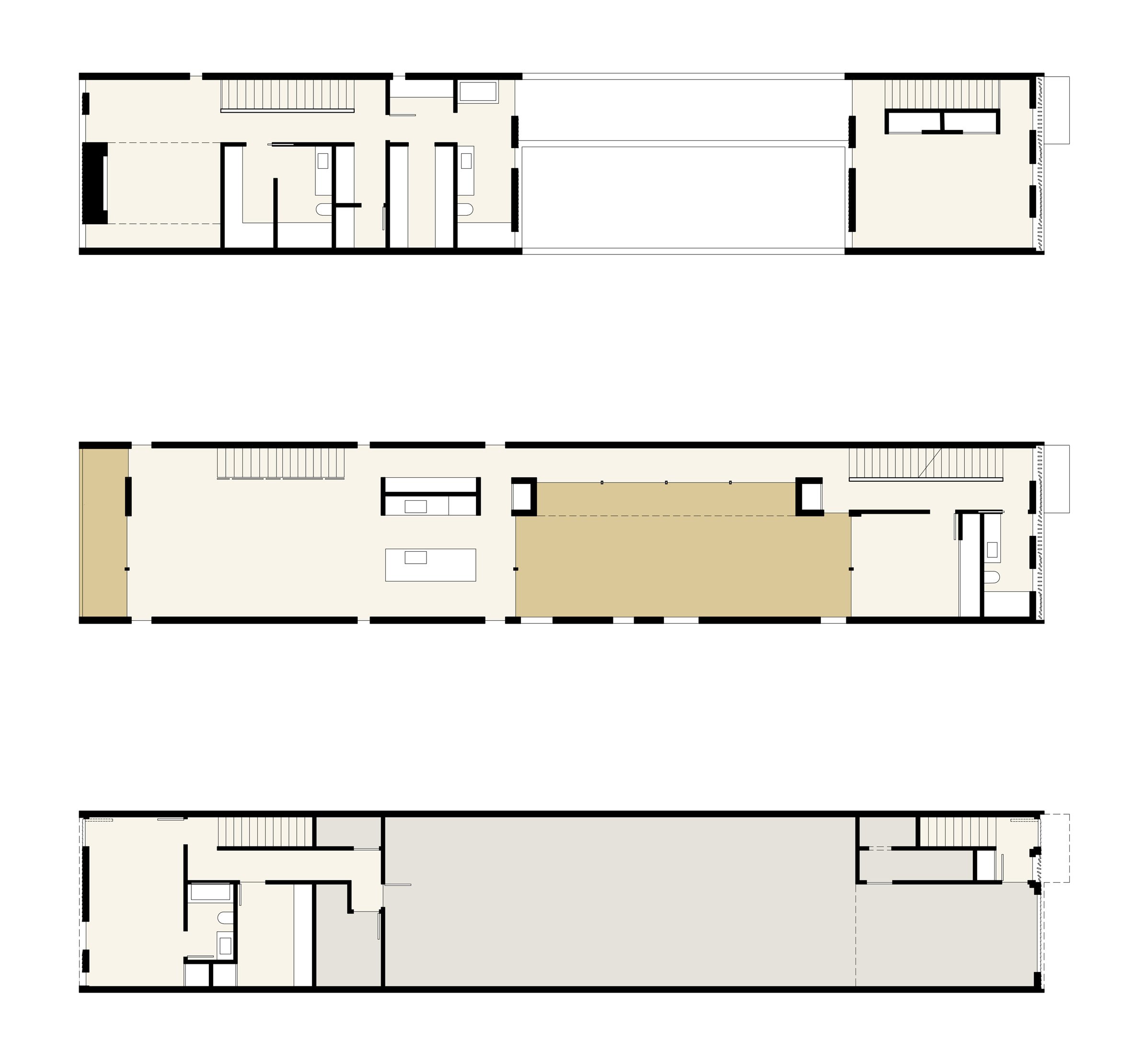
2. 내부 공간: 밝음과 분리된 공간의 조화
Curtain House 내부는 밝고 명료한 공간 구성을 바탕으로, 사교적인 영역과 개인적인 영역이 명확히 구분되어 있습니다.
층별 구성:
1층: 도시의 주차 규제를 충족하기 위해 설계된 주차 공간과 입구, 그리고 가족실이 배치되어 있습니다. 이 공간은 계단식으로 설계된 파티오와 연결됩니다. 내부 안뜰과 파티오는 자연스럽게 연결되어 실내-외 공간 사용성을 높이고 있습니다.
2~3층: 내부 안뜰을 중심으로 두 개의 독립된 2층 구조가 형성되어 있습니다. 각 구조는 유리 복도로 연결되며, 갤러리 역할을 겸합니다.
공간의 사용:
전면부 볼륨에는 각각 다른 층에 배치된 두 개의 침실이 위치하며, 후면부 볼륨에는 요리, 식사, 휴식을 위한 개방형 거실 홀이 자리 잡고 있습니다. 이 홀은 내부 안뜰과 밀워키 강을 동시에 조망할 수 있는 탁월한 전망을 제공합니다. 또한, 이러한 설계는 사용자의 생활 패턴과 밀접하게 연관되어, 가족 생활의 중심 공간으로 기능합니다.
3. 건축적 맥락과 의의
도시적 맥락: Curtain House는 밀워키의 도시적 배경 속에서 오랜 주택 구조와 현대적 감각을 조화롭게 통합한 사례로 주목받고 있습니다. 루버 패널의 디자인은 전통적 주택 커튼을 재해석하여 도시적 맥락 속 문화적 연결을 표현하고 있습니다.
지속 가능성: 설계에 적용된 루버 시스템과 고성능 외장재는 에너지 효율을 높이는 동시에, 도시 환경에 적합한 친환경적인 접근 방식을 제안합니다. 특히, 루버의 회전 각도와 빛의 조화를 통해 친환경적 설계의 새로운 가능성을 제시하였습니다.
사회적 맥락: 밀워키 시의 주택 재개발 프로젝트의 일환으로, 버려진 대지를 재생하여 지역 사회의 활성화에 기여했습니다.
4. 심미적 요소와 사용자 경험
심미적 요소: 루버의 역동적인 배치와 빛-그림자 효과가 시각적 깊이를 추가하며, 주변 건축물과 조화를 이루는 대조적 아름다움을 강조합니다.
사용자 경험: 거실과 파티오를 연결한 디자인은 사용자들에게 개방성과 프라이버시를 모두 제공하며, 공간 사용의 만족도를 높이고 있습니다. 특히, 내부 공간에서의 빛의 활용과 자연 환경과의 조화가 사용자 경험을 더욱 풍부하게 만듭니다.
결론
Curtain House는 단순히 하나의 주택을 넘어, 현대 도시의 인필 건축이 나아갈 방향을 제시하는 대표적인 사례로 자리 잡았습니다. 제한된 부지와 예산 속에서도 창의적인 설계를 통해 실용성과 심미성을 모두 충족시킨 이 건축물은, Johnsen Schmaling Architects의 혁신적 접근 방식을 여실히 보여줍니다. 설계의 모든 측면에서 기능성과 심미성을 통합한 이 건축물은 현대 건축이 해결해야 할 주요 과제를 잘 보여주며, 미래 도시 재생의 가능성을 탐구하는 영감을 제공합니다.
Write by ChatGPT & 5osa



















Wood and metal louvres line the front of a slender home in Wisconsin by Johnsen Schmaling Architects that was built on a vacant lot in a way that reformulates the "typological conventions" of infill architecture.
The house is located on a 24-foot-wide (seven metre) parcel in Milwaukee's Lower East Side, a diverse neighbourhood known for its affordable housing options and eclectic mix of residents.
The client, described as a "lifelong urban dweller", set out to build his first home and acquired the parcel from Milwaukee's Department of City Development, which had owned the property since demolishing an abandoned house there two decades earlier.
For the vacant lot, local studio Johnsen Schmaling Architects conceived a three storey, rectangular box that stretches nearly the full length of the site. A central portion of the home is cut away to form an internal courtyard.
The building totals 2,700 square feet (251 square metres), and its height matches the neighbouring structures.
"The building is a long, narrow volume tightly sandwiched between two century old homes and reimagines the typological conventions of urban infill dwellings with a respectful but unapologetically contemporary addition to the area's aging housing stock," the team said.
For the street-facing facade, the team took inspiration from window drapes commonly found on urban homes in America.
Envisioned as a "playful abstraction" of these ubiquitous drapes, the team designed a screen of vertical louvres made of wood and aluminium. The louvres were installed at gradually rotating angles to help animate the facade.
"The screen's various degrees of openness respond to the building enclosure behind it, transforming seamlessly from visually most porous in glazed areas to entirely impenetrable where solid walls or the garage door are located," the studio said.
The screen provides privacy from the public realm while also acting as a sun shading device, mitigating heat gain during warm months.
"High-performance glazing and an integrally coloured, three coat cementitious stucco system round out the deliberately subdued exterior material palette," the architects said.
Within the home, one finds bright rooms and a division between social and private areas.
The ground level – which was designed to meet city requirements for on-site parking –contains an entry vestibule, a garage, and mechanical infrastructure. The back portion holds a family room that opens toward a series of terraced patios.
Atop this base level are a pair of two storey volumes organised around the internal courtyard and connected by a glazed corridor that doubles as a gallery.
The volume closest to the street encompasses two bedrooms, one on each level, while the rear volume holds a mix of communal and private spaces.
In the rear volume, the first floor has an "open living hall" with space for cooking, dining and lounging. The hall looks toward the internal courtyard on one side and the Milwaukee River on the other.
from dezeen


