“건축은 단지 눈에 보이는 것이 아니라, 감각과 기억 속에 남는 것이다.” - Juhani Pallasmaa

![]() |
![]() |
![]() |
프리패브로 꿈꾸는 미래의 유치원, 창의력 충전소 SUMMARY-4 Modular Kindergartens in Lisbon
1. 서론
포르투갈 리스본의 "4개의 모듈식 유치원" 프로젝트는 공공 유치원 네트워크를 확장하고 도시 환경에서 아이들을 위한 안전하고 창의적인 공간을 제공하기 위해 설계되었습니다. 이 프로젝트는 경제적 효율성과 빠른 시공을 목표로 하며, 도시 전역에서 쉽게 인식될 수 있는 독창적이고 통합적인 디자인을 중심으로 계획되었습니다. 이 유치원은 단순히 교육 공간 이상의 의미를 가지며, 아이들에게 자유와 사랑을 느낄 수 있는 환경을 조성하는 데 초점을 맞추었습니다.
2. 건축 설계 개념
이 프로젝트는 철근 콘크리트 "U" 모양의 모듈식 구조를 중심으로 설계되었습니다. 이 설계는 내구성이 뛰어나고 유지 보수가 적게 들며, 빠르고 효율적인 조립 과정을 통해 구현되었습니다. 각 모듈은 외벽, 테라스, 그리고 내부 공간을 구성하며, 독특한 시각적 정체성을 제공합니다. 특히 다양한 색감의 마감재를 사용하여 밝고 활기찬 분위기를 조성했습니다. 어린이의 시각적 높이를 고려한 설계는 공간 경험을 다각화하며, 색채와 형태를 통해 심리적 안정감과 창의적 영감을 제공합니다.
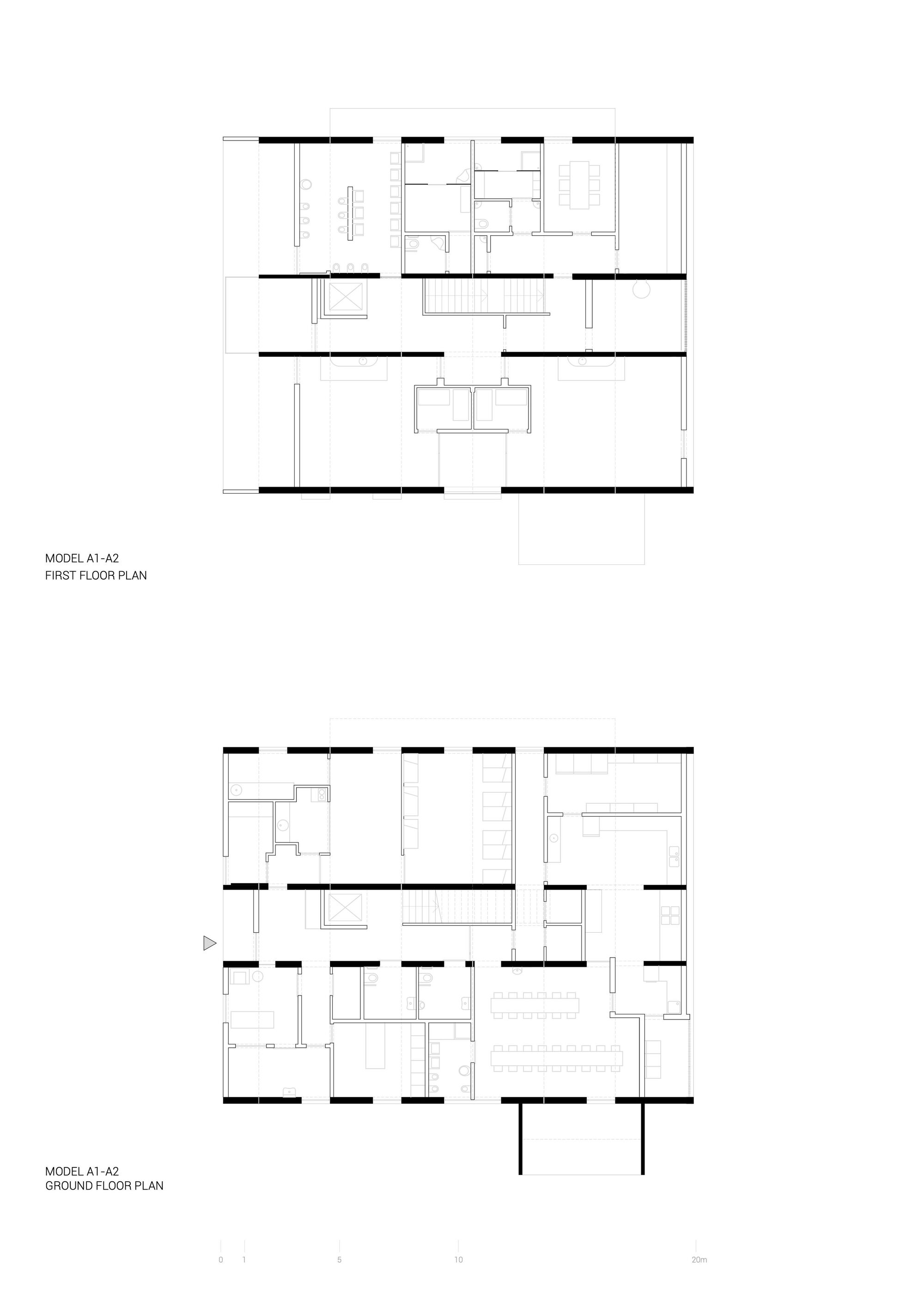
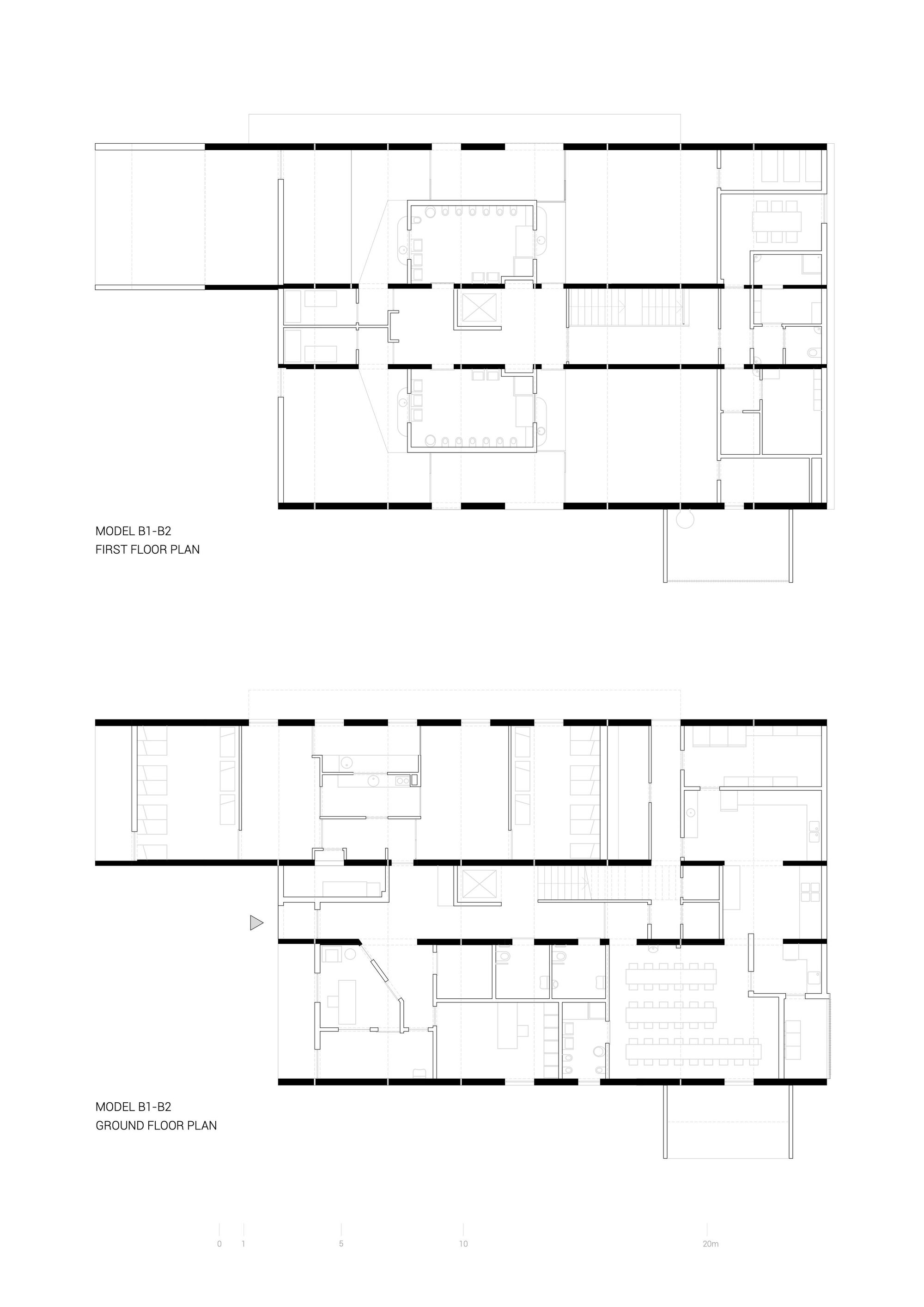
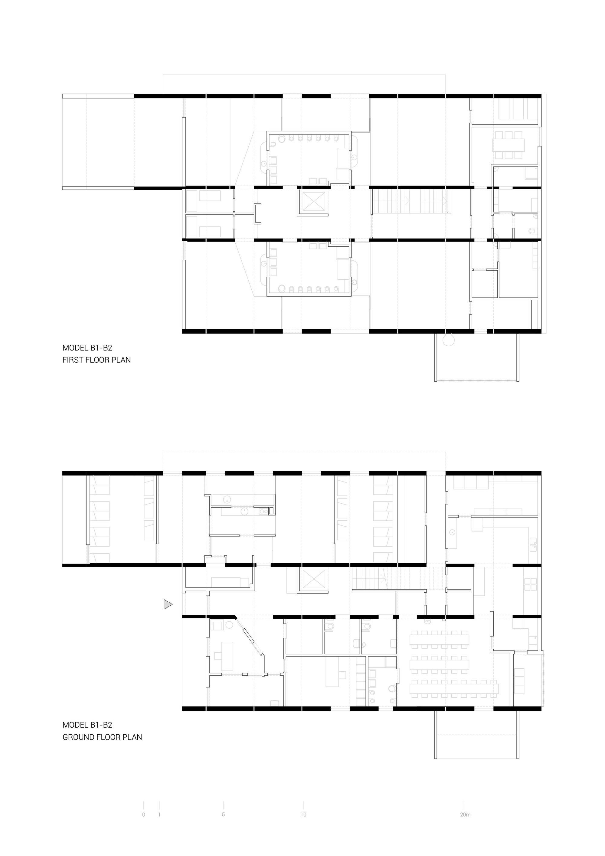
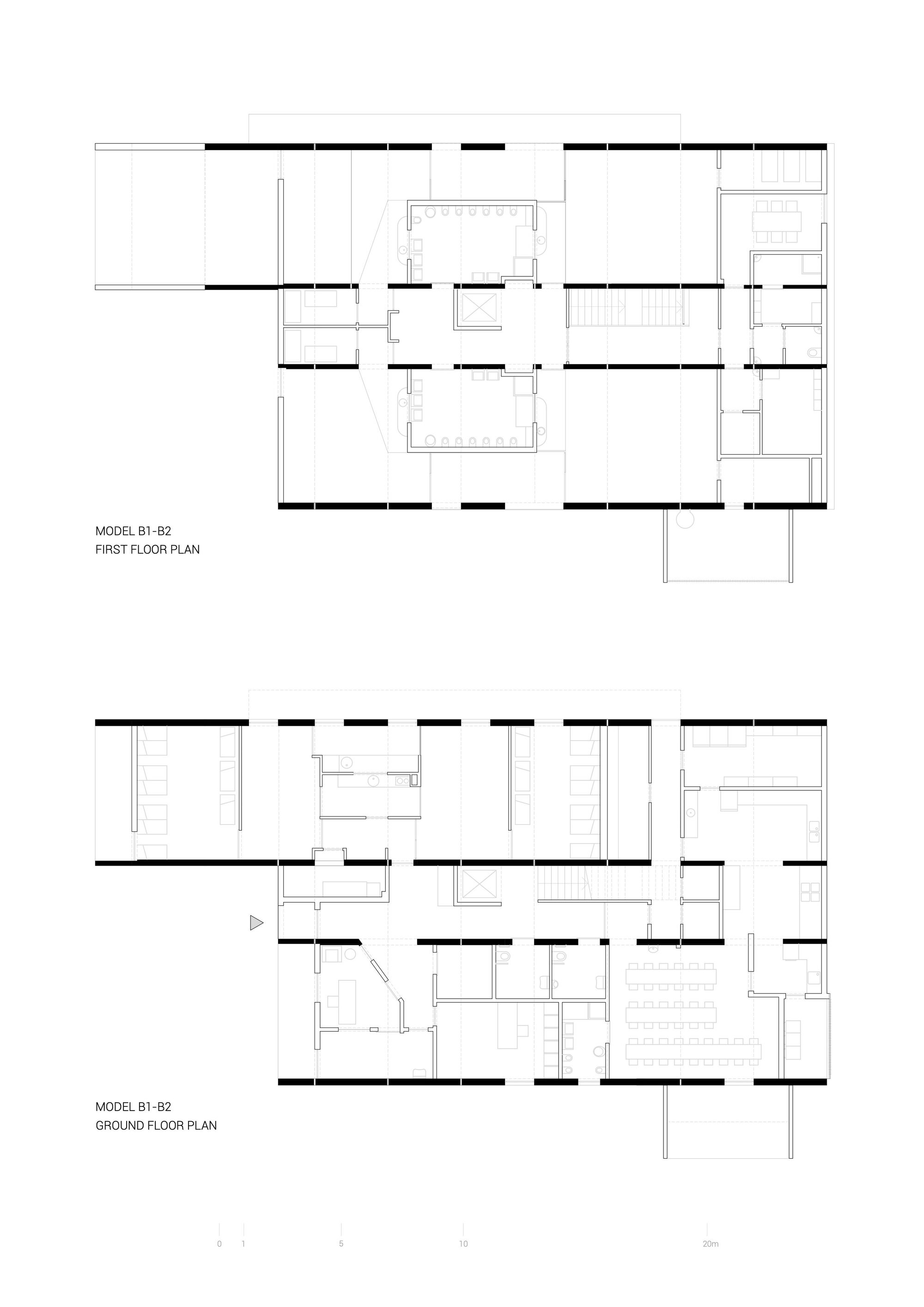
3. 공간 구성 및 기능
이 유치원은 두 층으로 구성되어 있으며, 지상층에는 주방, 관리실, 세탁실 등 필수 서비스 공간이, 위층에는 놀이와 학습을 위한 활동 공간이 배치되었습니다. 모든 활동실은 외부와 직접 연결되어 있어 1층은 놀이터로, 2층은 테라스로 이어집니다. 곡선형 유리 벽은 내부 학습 공간과 외부 놀이 공간을 부드럽게 분리하여 자연과의 연계를 강화합니다. 이러한 공간 배치는 아이들이 자유롭게 활동하며, 안전하게 탐험할 수 있도록 돕습니다.
4. 지속 가능성과 효율성
이 프로젝트는 환경 지속 가능성을 염두에 두고 설계되었습니다. 외부 공간에는 미끄럼 방지 포장이 되어 있어 아이들이 안전하게 활동할 수 있으며, 녹지와 정원은 도시 환경에서 자연을 경험할 기회를 제공합니다. 특히 파라메트릭 디자인을 활용한 곡선형 지붕은 어린이들의 호기심을 자극하는 동시에, 건물의 통풍과 채광 효율을 높였습니다. 건물의 모든 구조물은 공장에서 제작된 프리패브 모듈을 현장에서 조립하여 시공 기간을 단축하고, 소음과 폐기물을 줄였습니다. 이러한 접근은 도시 내 건설 과정에서 발생할 수 있는 부정적 영향을 최소화했습니다.
5. 심미적 요소와 사용자 경험
밝고 다채로운 색감과 모듈식 구조는 조형적 아름다움과 심미적 매력을 강조합니다. 건물의 색채와 형태는 주변 도시 환경과 조화를 이루며, 어린이들에게 시각적 즐거움과 심리적 안정감을 제공합니다. 외부 공간과 놀이터는 건물의 U자형 구조를 따라 배치되어 아이들의 활동성과 창의성을 지원합니다. 미끄럼 방지 바닥과 같은 세부 설계는 부모와 아이들의 안전과 만족도를 높이며, 자유롭고 창의적인 환경을 제공합니다. 이 설계는 실제 사용자 경험과 피드백을 통해 검증되었으며, 아이들이 활발히 움직이고 상호작용할 수 있는 공간으로 평가받고 있습니다.
6. 결론
"4개의 모듈식 유치원" 프로젝트는 디자인, 기능, 환경 지속 가능성을 모두 충족시키는 공공 건축의 모범 사례입니다. 이 유치원은 아이들에게 창의적이고 안전한 공간을 제공하며, 도시와 자연이 조화를 이루는 건축적 해법을 제시합니다. 이 프로젝트는 단순히 건축물 이상의 의미를 가지며, 지역 사회와 도시 환경에 긍정적인 변화를 가져오는 중요한 사례로 남을 것입니다.
Write by ChatGPT & 5osa








































The buildings emerged in response to a public initiative project for the construction of kindergartens in various areas in Lisbon, through a competition launched by the Municipality. The starting point was a standardized solution that allowed for economic intervention, quick execution, and the creation of an identifiable image, making these facilities recognizable throughout the city. The proposal is based on the overlapping of structural modules in reinforced concrete, with a “U” section, shaping the building's surfaces. The choice of this material is linked not only to the modular configuration but also to the requirement evident in the competition program to ensure solutions of high and proven durability and low maintenance.
The standardization of solutions naturally implies a formal analogy among the four kindergartens. The image of the buildings arises from the potentialities and limitations imposed by the modular construction system. From the exterior, a clear tectonic reading of the buildings is possible the joints are visible, and one can discern each of the modules and the way they are arranged and supported. These 4 nurseries feature a similar organic and functional distribution: two groups of overlapping “U-shaped” modules, housing various compartments, and a central corridor between them where all horizontal and vertical circulation takes place (corridors, stairwells, and elevators). It is also within these central corridor lines that the main sections of the heating, ventilation, and air conditioning infrastructure are located, reaching the compartments through the adjacent side walls.
The circulation spaces are straight and linear, facilitating user orientation within the building and visibility between all areas, promoting functionality and safety. The outdoor spaces have been designed as an extension of the indoor activities. Some non slip paved areas are proposed, so that wheeled toys can be used. We also considered the existence of garden areas for outdoor activities with the children. The vegetal cover on most of the outside surface contributes to soil permeability. The choice of plant and tree species was based on the criteria of adaptation to the climate, low water requirements and the exclusion of species that could cause allergic problems.
The nurseries are distributed across two floors, making them more compact in terms of footprint to address the limited space of the plots (all located in consolidated urban areas) and to maximize external space for recreational areas. The essential service areas (kitchen, administrative zone, laundry, etc.) are situated on the ground floor, while the various activity rooms for children are spread across both floors. All these rooms have direct access to the outside on the ground floor, to the playground; and on the upper floor, through terraces.
All the structural components of these buildings, including the foundations, were prefabricated in a factory under controlled conditions. They were then assembled on site within a few days. These prefabricated components not only form the structure of the building but also define the facades, floors, and interior compartments. This approach allowed for a faster and more controlled construction process, avoiding on-site concreting, thus reducing waste, noise, and dust. The goal was to increase the city's network of public kindergartens without disrupting the surrounding neighbourhood during construction. Both the process and the result were equally important in achieving this objective.
from archdaily


