“건축은 단순히 벽과 기둥의 집합이 아니다. 그것은 우리 삶의 질을 높이는 예술이다.” — 르 코르뷔지에 (Le Corbusier)

![]() |
![]() |
![]() |
Huy Hoang Factory: 기후를 품은 디자인 Baumschlager Eberle Architekten-Huy Hoang Lock Factory
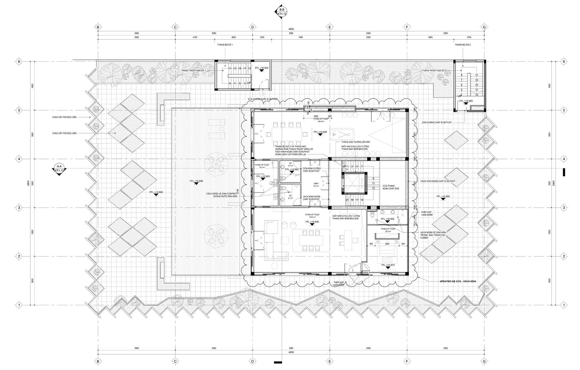
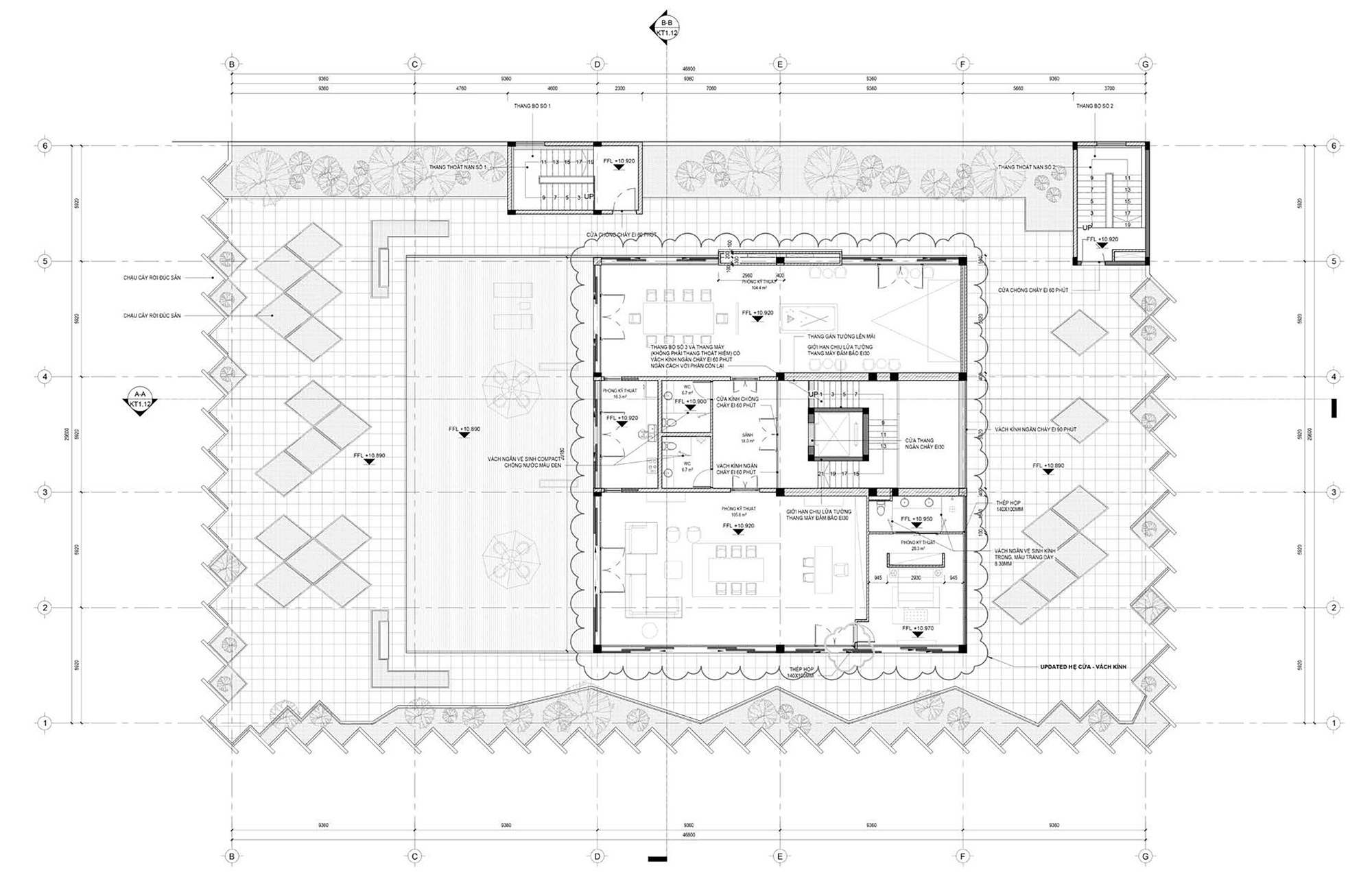
Huy Hoang Lock Factory는 베트남 Quang Minh 산업 지구에 위치한 혁신적이고 지속 가능한 건축물입니다. 이 공장은 단순한 제조 시설을 넘어, 지역 사회와 환경에 긍정적인 영향을 미치며, 40년간의 발전 역사와 기술 혁신을 상징합니다. Gold LEED 인증을 통해 지속 가능성을 인증받은 이 프로젝트는 기후 적응형 설계를 통해 현대 건축의 가치를 실현하고 있습니다.
건축적 특징
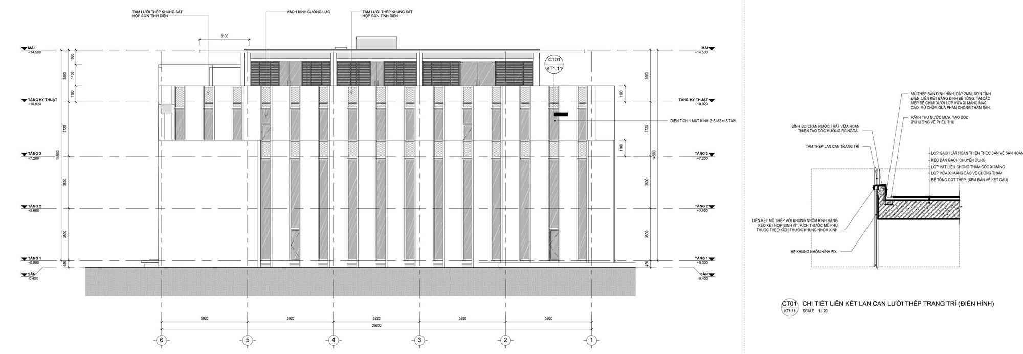
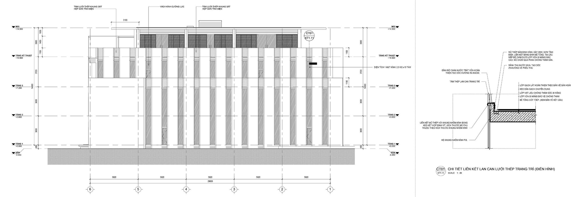
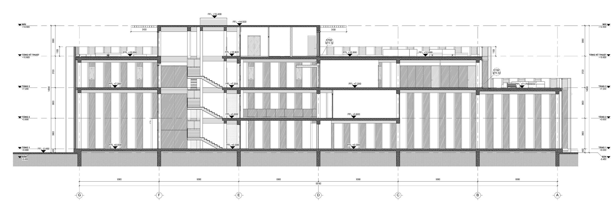
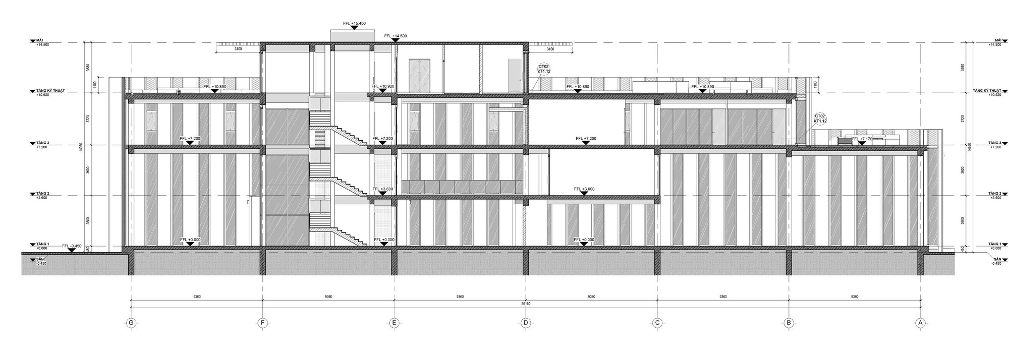
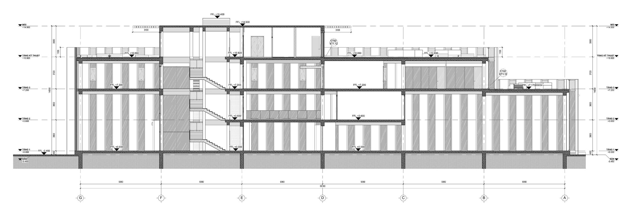
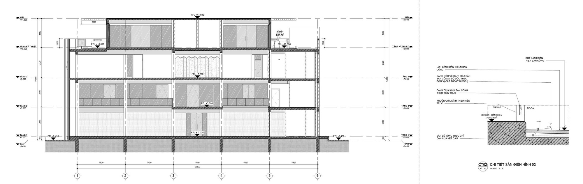
외관 설계와 Lam 시스템의 혁신성
건물 외관은 대칭적인 Lam 패턴과 기후 적응형 설계를 결합하여 기능적 요구와 심미적 요소를 동시에 만족시킵니다.Lam 구조는 남동쪽에서 태양광과 바람을 적극적으로 활용하고, 북쪽에서 겨울 바람을 차단하며, 서쪽에서 열 복사를 최소화합니다. 이러한 설계는 베트남 북부의 열대 몬순 기후를 효과적으로 대응하며, 건물 내부의 쾌적한 환경을 유지합니다.
기후 적응형 설계 전략
Lam 시스템은 자연광을 조절하고 내부 공간의 공기 순환을 극대화하며, 에너지 소비를 줄이는 데 중요한 역할을 합니다. 이 설계는 지속 가능한 건축의 핵심 원칙을 실현하며, 기능성과 심미성을 동시에 제공합니다.
기능적 요소
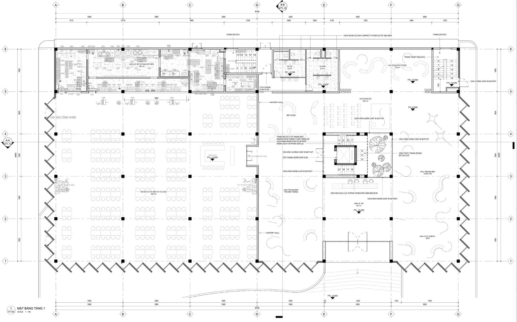
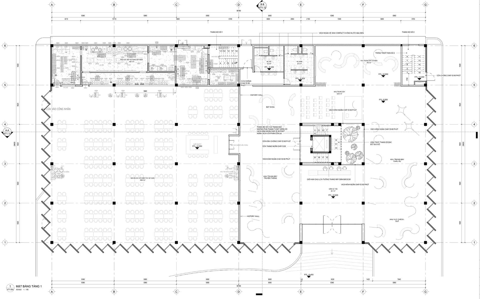
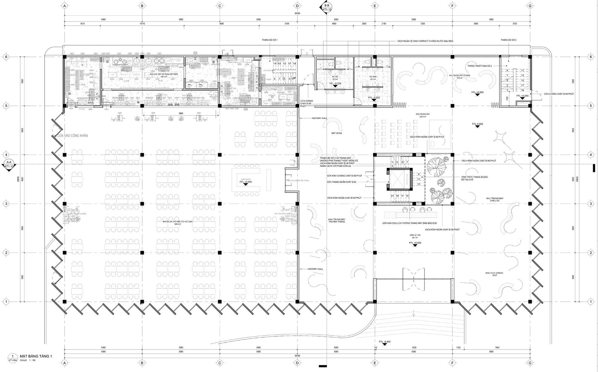
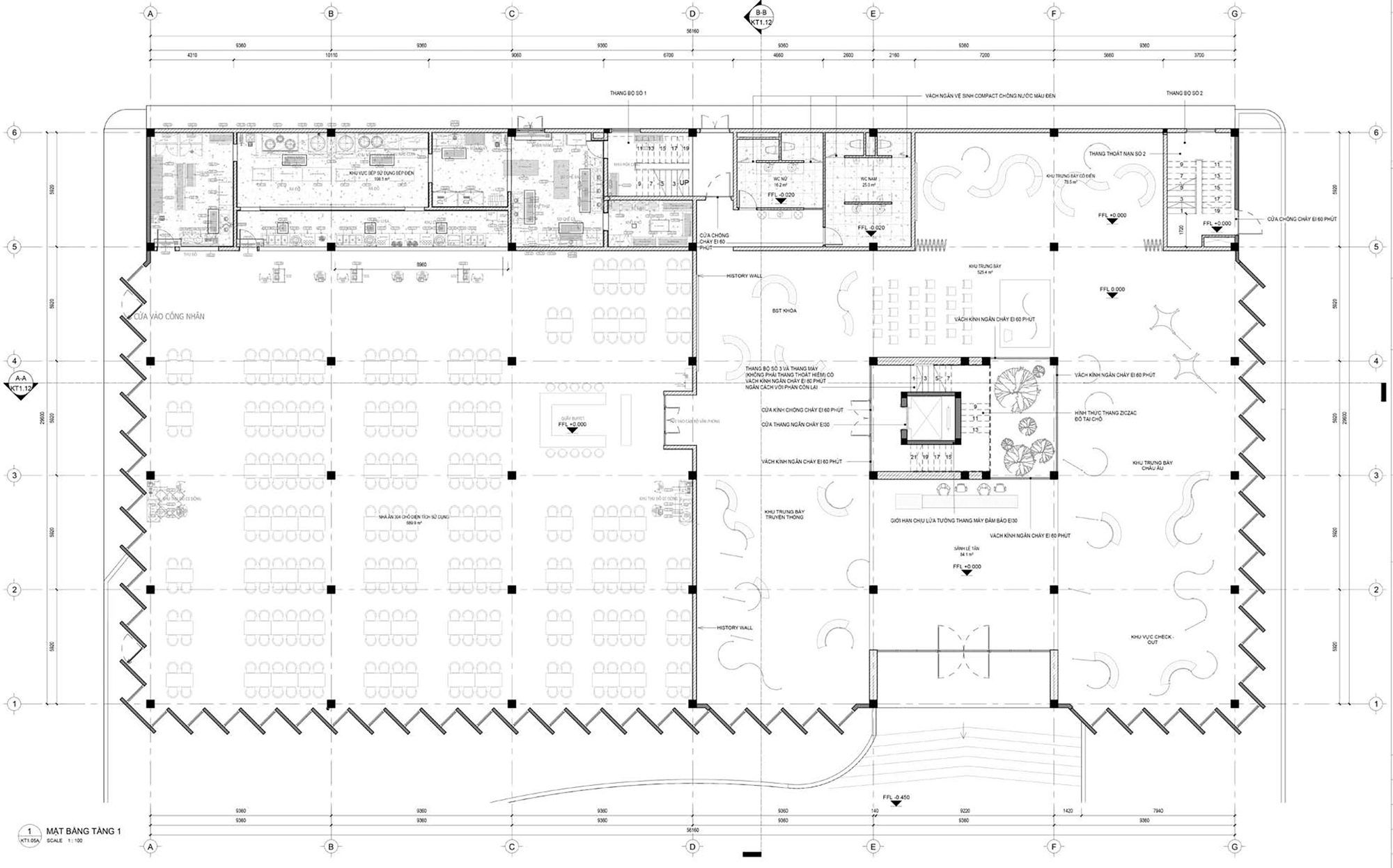
다목적 활용성
건물은 전시, 교육, 사무 공간 등 다목적으로 활용될 수 있도록 설계되었습니다.
- 전시 공간은 회사의 역사를 소개하며, 제품 제조 과정을 체험할 수 있는 장소로 사용됩니다.
- 교육 공간은 직원과 방문객이 협업하고 학습할 수 있는 장소로 기능합니다.
- 사무 공간은 업무 효율성과 쾌적한 환경을 제공합니다.
사용자 경험 중심 설계
자연광과 공기 순환 시스템을 통해 방문객과 직원 모두에게 쾌적하고 건강한 환경을 제공합니다. 구내식당은 자연 채광과 인공 조명을 조화롭게 활용하여, 이용자들에게 생동감 있는 분위기를 제공합니다.
기술적 혁신과 지속 가능성
LEED 인증과 Core & Shell 구조
Gold LEED 인증을 받은 이 건물은 Core & Shell 구조를 통해 유연한 공간 활용과 에너지 효율성을 극대화하였습니다.Lam 시스템과 환기 구조는 에너지 절감을 실현하며, 지속 가능한 자재 사용은 건축물의 내구성을 강화하면서 환경 영향을 최소화합니다.
첨단 기술의 구현
자연 채광 설계와 첨단 냉난방 기술을 활용해 에너지 소비를 줄이고, 건물 운영의 효율성을 높였습니다. 이러한 기술은 지속 가능한 건축 실현에 기여합니다.
심미적 요소와 사회적 맥락
심미적 설계의 조화
Lam 구조의 대칭적 패턴과 날카로운 라인은 건물의 현대적 미학을 강조합니다. 기능적 요구와 심미적 디자인이 조화를 이루며, 건물을 베트남 현대 건축의 아이콘으로 자리매김하게 합니다.
지역적, 문화적 의미
설계는 베트남의 열대 기후와 지역적 특성을 반영하며, 지역 사회와의 상호작용을 고려한 커뮤니티 중심의 공간 구성을 제공합니다. 이러한 접근은 기술 혁신과 지속 가능성을 강조하며, 지역 사회의 발전에 기여합니다.
결론
Huy Hoang Lock Factory는 기술적 혁신, 지속 가능성, 심미적 가치를 결합한 현대 건축의 상징입니다. Gold LEED 인증과 기후 적응형 설계는 지속 가능한 건축의 새로운 기준을 제시하며, 지역 사회와의 상호작용을 통해 베트남 현대 건축의 미래를 선도하고 있습니다.
Write by ChatGPT & 5osa
































Baumschlager Eberle Architekten-Huy Hoang Lock Factory
Huy Hoang Lock Co.,Ltd. is a leading professional lock manufacturer in Vietnam. Huy Hoang Lock Factory is located in Quang Minh Industrial Zone which measures three square hectares and is about 20 km away from Hanoi. The complex factory included three buildings: two of them are used to manufacture with German technology and another one is used to manufacture with Italian technology which was connected with the front multi-purpose building.
The third factory was built with the expectation of becoming the symbol of innovation and stable development throughout 40 years of Huy Hoang. The expectation was put into practice by not only getting the Gold Leed Construction in the designing process but also getting the GOLD LEED operation in manufacturing. The structure of the building was designed by Core and Shell structure to create the open space inside the building.
Hanoi is quite typical for the Northern climate with the characteristics of a humid tropical monsoon climate, hot summer, heavy rain, and cold winter with little rain. Located in the tropics, Hanoi receives an abundant amount of solar radiation and high temperature all year round. To solve this problem, the facade system consists of concrete lam elements that are designed and arranged differently in density and opening angle. On the south and southeast verticals, the opening angle of the lam is extended up to 90 degrees to catch the sun and wind. Opening angles of more than 90 degrees and high densities are applied to the Northern facade system in order to reduce winter winds from the North. The sharp opening angle and the highest lam density are applied to the Western facade system to limit the amount of thermal radiation. The facade system helps the building create its own shadow to cool the building, protect it during rainy seasons, and provide natural ventilation.
This is a factory complex designed as an open campus where public space is the top priority. The operating building is designed with open spaces, including exhibition, training spaces, and offices. The main hall is designed as a museum where visitors to the factory can explore artifacts, learn about the development history of the corporation, or simply get lost in the gallery to observe details as well as the process of creating the factory's products. The restaurant/canteen is used for guests, factory workers, and office staff and filters light through the facade system. Indeed, if the building is designed and built to serve the community and users well, it will stand the test of time.
FROM ARCHDAILY


