"좋은 건축이란 자연의 일부처럼 느껴지는 것이다. 그것이 진정한 아름다움이다." - 프랭크 로이드 라이트 (Frank Lloyd Wright)

![]() |
![]() |
![]() |
숲 속 붉은 무대: 자연과 건축의 극적인 만남 Sigurd Larsen-La Grange Rouge House
La Grange Rouge 하우스 - 숲 속 붉은 무대
프랑스 오베르뉴 지역의 숲 속 언덕 위에 위치한 La Grange Rouge는 자연과 건축이 완벽히 융합된 독특한 휴양지입니다. 본래 400년 이상 지역 가족이 소유했던 전통 헛간을 현대적으로 재해석한 이 건물은 방문객들에게 평화와 특별한 경험을 제공합니다.
자연과 건축의 완벽한 융합
극장의 무대처럼 설계된 공간
La Grange Rouge는 마치 자연의 극장 무대처럼 설계되었습니다. 서쪽 계곡으로의 일몰은 붉고 황금빛으로 물들며, 방문객들에게 자연의 웅장함을 체험하게 합니다. 짙은 붉은색으로 도색된 강철 프레임은 원래의 구조를 유지하며, 주조철을 연상시키는 외관으로 건축물의 독창성을 강조합니다.
유리창을 통한 내부와 외부의 연결
넓은 유리창을 통해 내부와 외부의 경계가 허물어져 자연과의 유기적 연결을 제공합니다. 이 설계를 통해 공간의 개방감을 극대화하며, 자연 속에 있는 듯한 경험을 선사합니다.
설계 특징과 내부 구조
독립적이면서도 공동체적인 공간
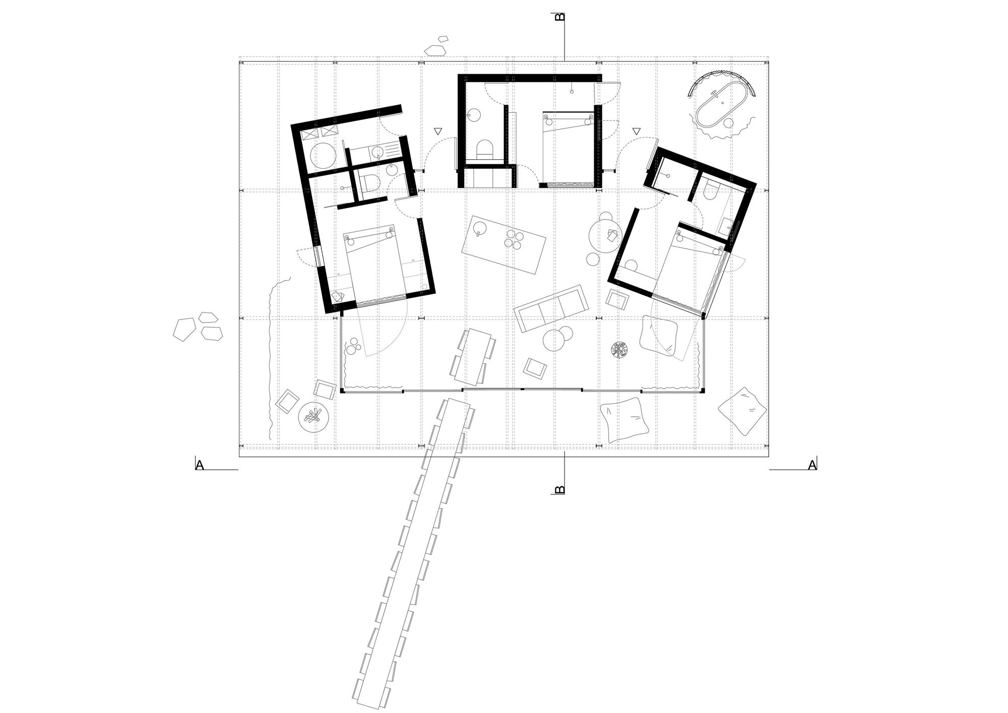
La Grange Rouge는 세 개의 독립된 침실과 공용 공간으로 구성되어 있습니다. 각 침실은 작은 집처럼 설계되어 프라이버시를 보장하며, 침대에서도 계곡의 탁 트인 전망을 감상할 수 있습니다. 공용 공간은 마치 작은 광장처럼 배치되어 방문객들이 자연과 소통하며 함께 시간을 보낼 수 있습니다.
특별한 경험을 선사하는 야외 욕조
지붕 아래 위치한 야외 욕조는 계절에 상관없이 자연과 교감할 수 있는 특별한 공간입니다. 아침 햇살과 겨울 공기를 느끼며 여유를 만끽할 수 있는 이 공간은 방문객들에게 잊지 못할 순간을 선사합니다.
디자인과 자연의 조화
붉은 색과 초록빛 자연의 대비
건축물의 붉은 강철 프레임은 초록빛 자연과 강렬한 대조를 이루며, 주변 환경 속에서도 돋보입니다. 이 강렬한 대비는 저녁 햇빛 아래 더욱 빛을 발하며 La Grange Rouge의 독창성을 한층 부각시킵니다.
자연 그대로 복원된 정원
집 주변의 정원은 자연 그대로 복원된 초원이 펼쳐져 있으며, 곳곳에 배치된 정자와 가구는 방문객들이 다양한 각도에서 풍경을 감상할 수 있는 기회를 제공합니다.
기술적 세부 사항과 재료
강철 구조와 현대적 설계
이 건축물은 강철 구조를 주요 골조로 사용해 높은 내구성과 개방감을 제공합니다. 대형 유리창은 자연광을 최대한 끌어들이는 동시에 에너지 효율성을 고려한 설계로 완성되었습니다. 내부에는 목재를 활용해 따뜻하고 편안한 분위기를 조성했으며, 외부 금속 지붕은 전통 헛간의 미학을 현대적으로 재해석한 것입니다.
사용자 경험과 환경 지속 가능성
사용자 경험
넓은 창문과 개방적인 설계는 방문객들에게 자연과 깊은 연결감을 제공합니다. 독립된 침실과 공용 공간은 개인적인 안식과 공동체적 경험을 모두 충족시킵니다. 사용자 리뷰에 따르면, 이러한 설계는 높은 만족도를 자랑하며 특별한 경험을 선사합니다.
환경 지속 가능성
La Grange Rouge는 지속 가능한 건축 철학을 바탕으로 설계되었습니다. 자연 재료와 에너지 효율적인 구조 설계를 통해 환경과 조화를 이루며 현대적 건축의 지속 가능성을 보여줍니다.
문화적 유산과 현대적 디자인의 융합
La Grange Rouge는 지역의 전통 건축 유산과 현대적 디자인을 조화롭게 결합한 사례입니다. 오베르뉴 지역의 문화적 풍경과 조화를 이루며, 독특한 건축미와 방문객들에게 잊지 못할 경험을 제공합니다. 이 건축물은 자연과의 연결감을 극대화하며 현대적 감각으로 지역 유산을 새롭게 해석한 작품입니다.
Write by ChatGPT & 5osa








































Sigurd Larsen-La Grange Rouge House
Perched on a hilltop deep within the forested landscape of Auvergne, La Grange Rouge is a holiday home that offers a unique retreat amidst the ancient volcanoes of Puy de Dôme. This former barn, owned by a family with a lineage spanning over 400 years in the nearby mountain villages, has been thoughtfully transformed into a space for social events or individual withdrawal.
La Grange Rouge is designed like a theater stage, where each day culminates in a spectacular performance of nature's beauty. Situated on the peak, the house provides a breathtaking panoramic view, particularly enchanting at sunset towards the valley in the west, when the sky is painted with hues of red and gold. The structure retains the original steel frame of the barn painted in the rich, deep red reminiscent of cast iron. This distinctive color palette, inspired by the warm tones of the sunset, permeates throughout the house, creating a flickering warmth in the lush green landscape.
Under the expansive roof, the house features three bedrooms, each designed as individual tiny houses. These private enclosures offer guests a personal sanctuary, with each room oriented to provide a breathtaking view of the valley from the comfort of the bed. Between these intimate spaces lies a common area, akin to a plaza between houses, perfectly framing the spectacular view that lights up the western horizon. The kitchen block forms a fourth enclosure, adding to the communal layout of the house. The dining table extends toward the infinite landscape, inviting guests to dine while immersed in the stunning scenery.
One of the unique features of La Grange Rouge is the outdoor bathtub tucked under the roof's eaves. Here, guests can indulge in a serene bathing experience, basking in the morning sun or enjoying the crisp winter air. This ritual becomes a special moment of connection with the natural surroundings, regardless of the season.
The grounds around La Grange Rouge have been restored to a wild, natural state, with meadows reclaiming their untamed beauty. Scattered islands of garden furniture serve as small, inviting destinations for guests, offering new perspectives and angles to admire the expansive view over the valley of Clermont Ferrand. The interplay of the vibrant red hues of the house and the lush green landscape creates a striking visual contrast, enhancing the beauty of both.
La Grange Rouge is a hidden red gem in this verdant setting, where every detail has been carefully crafted to celebrate the natural beauty and heritage of the local landscape. It offers a perfect escape for those seeking tranquility, breathtaking views, and a deep connection with the timeless landscape of Auvergne.
from archdaily


