"건축은 단순히 공간을 만드는 것이 아니라, 우리가 살고 경험하는 방식 자체를 형성하는 예술입니다."— 프랭크 로이드 라이트(Frank Lloyd Wright)

![]() |
![]() |
![]() |
숲 속의 예술, 보포르트 타워: 자연을 닮은 건축 이야기 Orange Architects-Beaufort Residential Tower
1. 서론: 숲과 건축의 조화로운 만남
네덜란드 제이스트(Zeist)의 케르크보스(Kerckebosch) 지역에 자리한 보포르트 타워(Beaufort Residential Tower)는 숲을 배경으로 한 독창적 건축 디자인으로 자연과 인간의 공존을 실현합니다. Orange Architects가 설계한 이 건축물은 19세대의 아파트로 구성되어 있으며, 모든 세대가 숲을 향한 탁 트인 파노라마 뷰를 제공합니다.이 타워는 지속 가능한 설계, 혁신적 디자인, 환경적 맥락을 모두 아우르며, 자연 속 주거 공간의 새로운 기준을 제시합니다.
2. 디자인 철학: 자연에서 영감을 얻다
보포르트 타워의 디자인은 모래(Sand), 나무 줄기(Tree Trunk), 나뭇잎(Leaf)이라는 세 가지 자연적 요소에서 출발합니다. 이러한 모티프는 건물의 형태와 디테일에 반영되어 숲과 조화를 이루며 독특한 시각적 언어를 형성합니다.
발코니 난간과 테라스는 물결 패턴의 GRC 패널(유리 강화 콘크리트)로 마감되어 있습니다. 이 패턴은 빛의 방향과 강도에 따라 변화하며, 마치 바람에 흔들리는 모래 언덕을 연상시킵니다.건물의 주요 구조는 열처리된 프라케(Fraké) 목재로 마감되어 있습니다. 이 목재는 습기에 강하고 고유의 질감이 살아 있어, 숲의 고유한 분위기를 한층 강화합니다.발코니 하부는 녹색 라인으로 마감되어 있으며, 이는 숲의 나뭇잎을 바라볼 때 느껴지는 자연스러운 색감을 반영하여 건물과 자연의 경계를 모호하게 만듭니다.
3. 구조와 공간 구성: 유기적이고 기능적인 설계
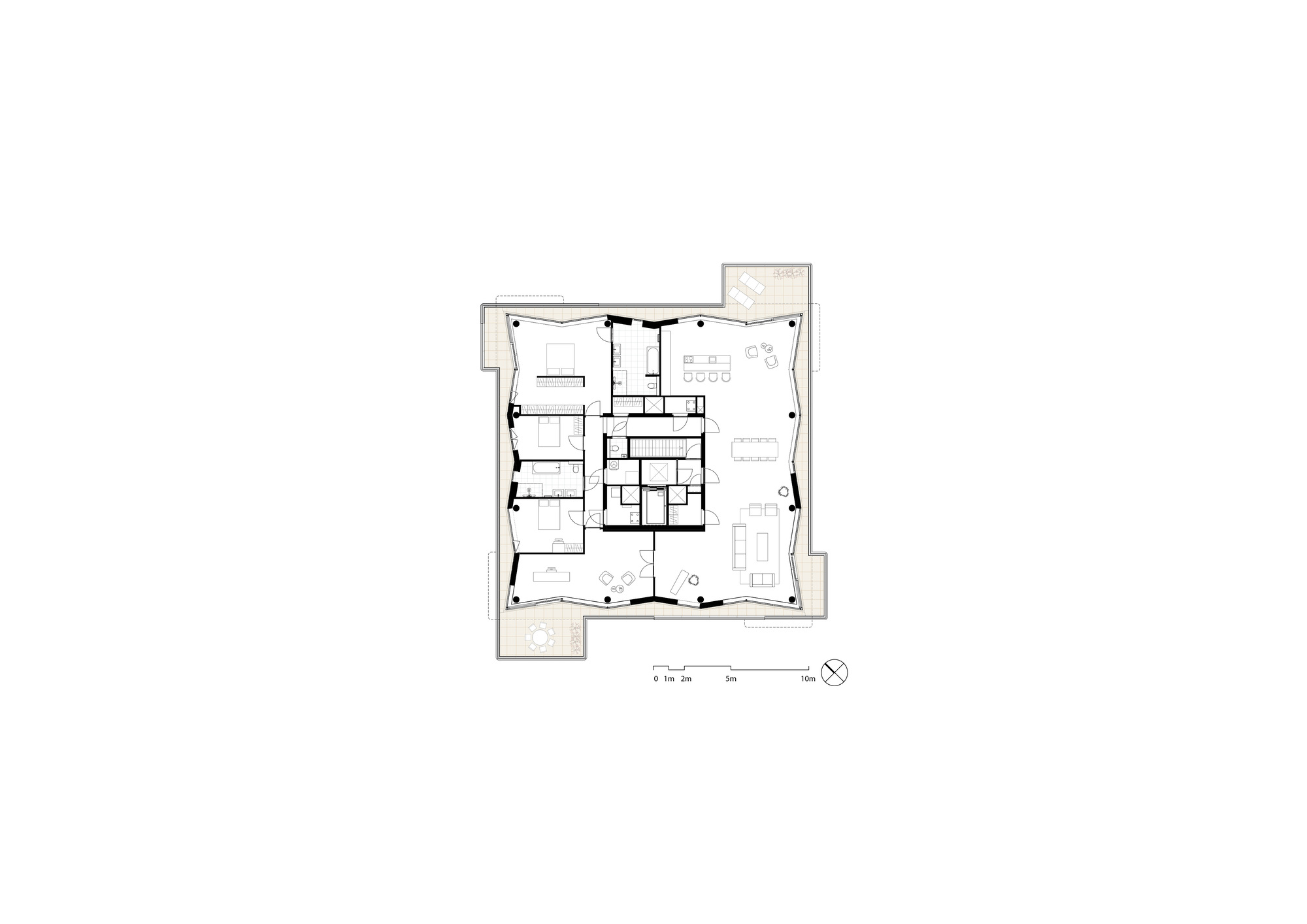
보포르트 타워는 지상 10층으로 구성되며, 각 층에는 두 개의 L자형 아파트가 배치되어 있습니다. 각 층은 90도씩 회전하여 층마다 발코니의 형태와 위치가 다르게 디자인되었습니다.이 회전 패턴은 입면의 시각적 다양성을 제공하며, 숲과의 시각적 연결성을 강화합니다.
숲길을 따라 접근하는 입구는 입면이 안쪽으로 접히는 형태로 설계되어 방문객을 자연스럽게 맞이합니다.로비는 2층 높이의 유리 파사드로 구성되어, 실내에서도 숲의 전경을 감상할 수 있습니다.아파트 내부는 파노라마 창과 넓은 발코니를 통해 실내와 외부가 자연스럽게 연결됩니다.
최상층의 펜트하우스는 360도 파노라마 뷰를 제공하며, 사계절의 숲 풍경을 온전히 누릴 수 있는 특별한 공간으로 설계되었습니다.
4. 재료와 디테일: 자연의 질감을 담다
보포르트 타워는 자연 소재의 질감을 최대한 살리기 위해 세심한 재료 선택과 디테일 설계가 이루어졌습니다.
파사드에 사용된 프라케 목재(Fraké Wood)는 열처리 과정을 거쳐 내구성과 방습성을 강화하였습니다.발코니 난간과 외벽에는 GRC 패널이 사용되어 물결 형태의 패턴을 구현하였고, 빛의 방향에 따라 다양한 시각적 경험을 제공합니다.바닥부터 천장까지 이어지는 파노라마 창은 실내와 외부를 시각적으로 연결하며, 빛을 풍부하게 유입시켜 실내 공간에 따뜻한 느낌을 더합니다.
5. 빛과 색채: 시간의 흐름을 담은 공간
자연광은 보포르트 타워의 공간을 완성하는 핵심 요소입니다.
발코니 하부의 녹색 라인은 시간에 따라 색의 명암이 변하며, 마치 숲 속의 나뭇잎 뒷면을 보는 듯한 효과를 줍니다.건물의 남서향 발코니는 저녁 햇살을 온전히 받아, 일몰 시 따뜻하고 아늑한 분위기를 연출합니다.동쪽 방향의 발코니는 아침 햇살을 받아 상쾌하고 밝은 분위기를 제공합니다.
6. 지속 가능성과 친환경 기술: 미래를 위한 설계
보포르트 타워는 지속 가능한 주거 공간을 실현하기 위해 'Nearly Zero Energy Building'(NZEB) 기준을 충족합니다.
난방과 냉방은 지열 히트펌프 시스템을 통해 제공되며, 지하의 열 교환 장치를 활용하여 에너지 소비를 최소화합니다.옥상에 설치된 태양광 패널은 공용 공간의 전력을 자체적으로 공급하여, 에너지 자급률을 향상시킵니다.또한, 빗물 관리 시스템을 통해 수집된 빗물은 인근 스웨일(swale)로 유입되어, 토양의 수분 밸런스를 유지하고 자연 순환 체계를 돕습니다.
7. 환경적 맥락: 숲과 도시를 잇는 다리
보포르트 타워는 케르크보스 지역의 '녹색 쐐기'(Green Wedge) 개발 계획의 일환으로 조성되었습니다.이 프로젝트는 숲의 생태계와 주민의 주거 환경을 동시에 보호하고 개선하는 것을 목표로 합니다.
발코니 구조는 숲의 나무들과 시각적으로 어우러지도록 설계되었으며, 차량의 접근을 최소화하고 보행자 중심의 산책로를 확보하였습니다.이러한 접근 방식은 주민들이 자연 속에서 편안한 휴식을 누리도록 돕고, 지역 생태계와의 지속적 연결을 보장합니다.
8. 사용자 경험: 자연과 함께하는 삶
보포르트 타워의 설계는 자연 속 주거 경험의 극대화를 목표로 했습니다.
입구와 실내에는 무장애 설계(Barrier-Free Design)를 적용하여 모든 세대와 연령대가 불편함 없이 거주할 수 있도록 했습니다.발코니는 단순한 외부 공간을 넘어 야외 거실의 기능을 수행하며, 거주자들에게 숲 속의 자연스러운 생활을 제공합니다.거주자 인터뷰에 따르면, 파노라마 창을 통해 사계절의 변화를 관찰할 수 있다는 점이 가장 만족스러운 특징으로 꼽혔습니다.
9. 마무리: 자연과 건축의 경계에서
보포르트 타워는 숲의 아름다움과 현대 건축의 혁신적 설계를 조화롭게 결합한 건축물입니다.모래, 나무, 나뭇잎이라는 자연적 모티프를 통해 공간의 미학을 완성하고, 지속 가능한 에너지 시스템을 도입하여 친환경적 삶의 방식을 실현하였습니다.
이 건물은 단순한 주거 공간을 넘어 자연과 함께 살아가는 라이프스타일을 제안하며,숲 속의 삶을 꿈꾸는 사람들에게 영감을 주는 주거 공간으로 자리매김하고 있습니다.
Write by ChatGPT & 5osa






















This design for a sculptural tower of stacked forest villas, named Beaufort, is located on the edge of a forested area in the middle of the country. The building contains 19 spacious apartments offering panoramic views of the forested surroundings. The tower is part of a plan to restructure the Kerckebosch neighborhood in Zeist and is the last in a series of new apartment buildings in one of the green wedges on the edge of the forest.
The green and wooded area and sandy soil provided the immediate inspiration for the design of the residential tower. The concept and material elaboration of the tower are based on the themes of 'sand', 'tree trunk', and 'leaf'. Stacking these themes as layers on top of one another generated the design. Like this the tower reads as an irregular stack of balconies and parapets, weaving them in a natural way into the wooded setting. At the same time, it is a landmark that indicates the entrance to Kerckebosch. The building is rooted in its green setting. Accessible via a gently sloping forest path, the entrance is located where the angled facade folds inwards to create an invitingly designed opening. Immediately inside, visitors enter a double height hall with views of the surroundings and the centrally positioned core, containing the lifts and staircases to the apartments.
The tower looks sculptural, but it is also composed within a rational grid, with a supporting structure made up of the core and the columns set into the facade. This structure extends into the half sunken car park, where the storage units of the apartments are also located. The building contains 10 floors above ground, with two L-shaped apartments arranged symmetrically on each floor, which are rotated 90 degrees with respect to the floor below. The exception within this configuration is the top floor, containing a penthouse with a 360-degree view of the surroundings. The apartments feature spacious outdoor spaces on all sides. The alternate floor slabs extending outwards create 'outdoor rooms' at strategic points. Here, the border between inside and outside seems to blur, allowing the wooded surroundings to become part of the living experience on this remarkable site. Because the apartments on each floor are mirrored, the outdoor spaces on each level are positioned differently. The theme of 'sand' encompasses the balcony parapets and terraces. Outdoor ceilings are designed as part of the 'leaf' theme, taking the form of an informal green finish on all the lower sides of balconies and cantilevered surfaces. Finally, the supporting columns and Frake timber façade cladding are elaborated as part of the 'tree trunk' theme.
The nature inclusive landscape design surrounding the building aims to preserve and enhance the existing biodiversity and qualities of the natural environment. By planting a rich variety of local vegetation species on the semi-underground parking garage, the forest extends to the facades of the building. Besides the planting, various other design solutions have been implemented to make the parking garage disappear into the landscape; the use of turf bio-blocks for cladding the retaining walls, open paving for the parking spaces, and tree trunks as retaining structures. Rainwater collected from the roof and terraces is directed to the nearby swales.
The building itself is designed with changing needs, sustainable material use, and efficient energy consumption in mind. The column structure of the building provides flexibility and adaptability for future use. Sustainable Fraké wood cladding and very thin prefabricated GRC panels are easily demountable and reusable facade elements. A collective geothermal heat pump system, with ground loops for heating and cooling, solar panels on the roof, triple glazing, external sun shading, and ventilation with heat recovery ensures a sustainable energy concept that amply meets 'Nearly Zero Energy Building' (NZEB) standards. From the entrance of the apartment complex to the outdoor spaces of the apartments, all floors are threshold free, ensuring optimal accessibility for all age groups and people with mobility impairments. Enormous panoramic windows and very generous balconies offer soothing views and a connection with nature.
from archdaily


