"건축은 삶을 담는 그릇이다. 그 그릇은 삶만큼이나 복잡하고 미묘해야 한다." - 알바 알토(Alvar Aalto)

![]() |
![]() |
![]() |
꿈을 담는 그릇, 곡선의 시(詩): 드림스케이프 아파트 Red5studio-Dreamscape Apartment
The owners of this apartment are both working in the flow of art, there are so many inspirations and regenerates around them, and even the way they enjoy their home is not an exception. An Interesting title would make an interesting design, we believe. And now, dream on!
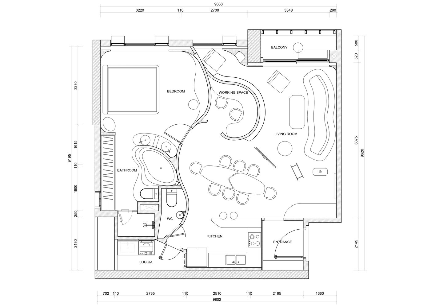
예술가를 위한 유기적 생활 공간
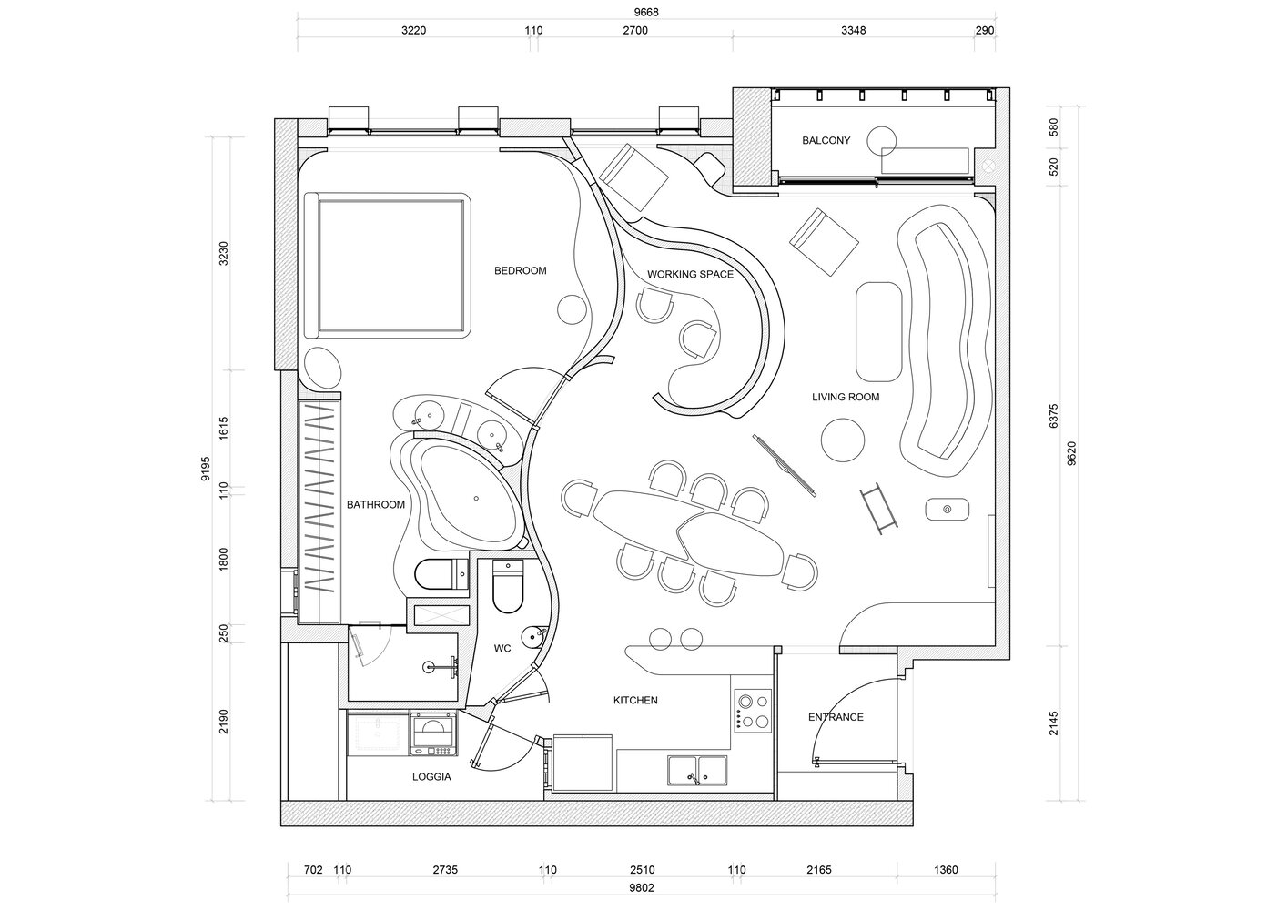
예술의 흐름 속에서 활동하는 두 거주자를 위해 레드5스튜디오가 설계한 '드림스케이프 아파트'는 그 이름처럼 꿈과 현실의 경계를 자유롭게 넘나든다. '흥미로운 이름에서 흥미로운 디자인이 탄생한다'는 철학을 바탕으로 만들어진 이 공간은 거주자들의 풍부한 영감과 창의적 에너지를 담아내는 그릇이 된다.
입구에서 들어서면 '꿈의 동굴(Dream Cave)'로 향하는 완충 공간이 방문객을 맞이한다. 이는 현실에서 꿈의 세계로 들어가는 전이 공간으로, 일상과 상상의 경계를 부드럽게 이어준다. 동굴 내부에는 문이 없는 출입구들이 있어 각 공간이 자연스럽게 연결되며 유기적 흐름을 만들어낸다.
중심에서 퍼져나가는 공간의 흐름
아파트의 중심에는 더 작은 동굴이 자리잡고 있다. 이곳은 작업 공간이자 시선을 사로잡는 초점이 되는 곳으로, 파란색 내부가 특징적이다. 거주자의 음악 작업을 위한 이 공간은 때로는 파티의 중심이 되어 활기를 불어넣는다. 이 중심 공간을 기준으로 아파트의 다른 영역들이 방사형으로 펼쳐진다.
작은 동굴의 맞은편에는 거실이 위치한다. 흰색을 기본으로 한 아파트에 강렬한 생동감을 불어넣는 주황색 대형 소파가 시선을 사로잡는다. 이는 우주 시대(Space-Age) 디자인 언어에서 영감을 받은 것으로, 둥근 형태와 선명한 색상이 공간에 활기를 더한다.
사색과 일상이 공존하는 특별한 공간들
작업 공간 옆에는 '명상 공간(Autism Corner)'이라 불리는 아늑한 코너가 있다. 이 공간은 아파트의 작은 구석에 위치하면서도 창문을 통해 개방감을 유지해 사색과 휴식을 위한 은밀한 안식처를 제공한다. 한국의 전통적인 '다락' 개념을 현대적으로 재해석한 듯한 이 공간은 바쁜 일상 속 고요한 쉼터가 된다.
작은 동굴의 다른 쪽, 입구 근처에는 주방과 식사 공간이 트인 형태로 펼쳐진다. 이 구역의 정체성을 완성하는 것은 민트빛 아크릴로 도장된 녹색과 스테인리스 스틸의 조화로, 복고풍과 현대적 감각이 절묘하게 어우러진 가구들이다. 물의 흐름에서 영감을 받은 레진 소재 식탁은 빛이 비칠 때마다 맑은 물결이 일렁이는 듯한 환상적인 효과를 연출한다.
경계 없는 휴식 공간
침실 내부는 개방감이 돋보이는 구조로, 침실과 욕실이 문의 경계 없이 부드러운 곡선과 은은한 유리 파티션으로만 구분되어 있다. 창문이나 발코니로의 접근 역시 단조로운 직선을 피하고 유려한 곡선으로 처리되어 공간에 부드러움을 더한다. 노란색 침대 프레임과 얼룩말 무늬 침구의 대비는 공간에 재미와 개성을 불어넣는다.
이 아파트의 가구들은 다채로운 색상으로 연출되었으며, 복고풍(레트로), 미래지향적 복고(레트로 퓨처), 우주 시대(스페이스 에이지) 등 다양한 디자인 어휘에서 차용한 형태들이 조화롭게 공존한다. 이러한 디자인적 다양성은 공간에 풍부한 시각적 경험을 선사한다.
시간에 따라 변화하는 빛과 분위기
이 아파트는 자연광을 효과적으로 활용한다. 동굴의 열린 모서리가 햇살을 따스하게 끌어들여 공간 구석구석까지 부드럽게 퍼트린다. 이는 한국 전통 건축에서 중시되는 '빛의 유입'을 현대적으로 재해석한 방식이다.
밤이 되면 공간은 또 다른 변신을 시작한다. 60-70년대 영화에서 영감을 받은 색채 조명이 켜지며, 거주자가 연주하는 멜로디와 어우러져 아파트 전체가 감각적인 경험의 무대로 탈바꿈한다. 이는 단순한 주거 공간을 넘어 시시각각 변화하는 살아있는 예술 작품으로서의 면모를 보여준다.
레드5스튜디오의 드림스케이프 아파트는 단순한 주거 공간이 아닌, '꿈과 현실의 경계를 허무는 공간'으로 거주자들의 창의적 라이프스타일을 완벽하게 담아낸다. 유기적 형태와 다채로운 색상, 그리고 경계 없는 공간 구성은 현대인의 감각적 라이프스타일과 한국적 감성이 조화롭게 어우러진 새로운 주거 패러다임을 제시한다.
Write by Claude & 5osa



















Walkin from the entrance, we create a buffer area before the Dream Cave. Inside the cave is a doorway with no door that leads to other sections. There is a smaller cave right in the center of the apartment: the working area also the view catcher; because this cave will "make noise" for parties (DJ is the owner's hobby). Opposite that small cave is the living room with a giant sofa inspired by the Space-Age language, with a bunch of orange in the mainly white apartment.
Next to the working area, we put a small corner called "Autism Corner", drawing close to a small corner of the apartment and it comes with a window for not drowning the space around. On the other side of the small cave, we have an open cave at the entrance where we have the kitchen and dining area. The signature of this area is the furniture that is not only retro but also modern with acrylic painted green and stainless steel, the resin dining table is inspired by water, which makes the light effect looks like water.
Inside the bedroom, the space opened bedroom, bathroom connected without door and only separated by curves or glass wall. Windows or balcony access are covered by curves to get rid of those common straight lines. Many colors have been used in this apartment from the furniture, and many shapes in the design languages Retro, Retro Future, Space-Age.
The apartment makes use of the natural lights, opened corner of the cave will catch the sunlight and deliver it to the necessary corner of the apartment. At night, the cave changes the atmosphere to the inspired color from the 60s 70s movies, alongside the melody that the owner plays every night.
from archdaily


