"건축은 자연과 인간 사이의 연결고리다. 우리는 자연을 지배하는 것이 아니라, 자연과 함께 호흡하는 공간을 만들어야 한다." - 루이스 칸

![]() |
![]() |
![]() |
레이 홈스테이: 나무와 기억이 어우러진 숲속의 집 ARCHSTUDIO-Lei Homestay
마을과 대지
베이징 핑구 구역 유커우 타운의 북양자챠오 마을에 자리한 이 프로젝트는 중국 북부 평원의 전통과 현대가 교차하는 지점에 위치합니다. 이곳은 본래 중정을 품은 전통 가옥이 특징이었으나, 자발적인 마을 재개발로 인해 소규모 서양식 건물부터 컬러 강판 지붕을 얹은 구조물까지 다양한 건축 형태가 마을의 전통적인 경관을 서서히 변화시키고 있습니다.
마을 주요 도로의 동쪽에 접한 약 400제곱미터의 대지는 동서로 긴 직사각형 형태를 띠고 있습니다. 이전 부지에는 경사 지붕과 평지붕을 가진 벽돌 콘크리트 구조물과 임시 강판 지붕 건물들이 무질서하게 혼재해 있었고, 보존 가치가 있는 건축물은 없었습니다. 그러나 집주인의 아버지가 어린 시절에 심은 두 그루의 감나무와 한 그루의 호두나무는 여전히 건강하게 자라며 풍성한 열매를 맺고 있었습니다. 세월이 흘러 이 나무들은 단순한 식물을 넘어 가족의 소중한 기억이 되었고, 설계자와 집주인은 깊은 논의 끝에 이 세 그루의 나무를 모두 보존하기로 결정했습니다.
요구사항과 제약 조건
이 지역의 풍부한 자연 환경, 진정성 있는 시골 생활 방식, 그리고 주변 명소와의 접근성은 도시 방문객들에게 매력적인 요소로 작용합니다. 교외 관광 네트워크의 중요한 거점으로 자리매김한 이 프로젝트는 시골 생활의 소박함, 평온함, 그리고 여유로움을 온전히 전달하고자 합니다.
프로젝트 초기부터 집주인은 명확한 방향성을 제시했습니다. 새 건물은 홈스테이로 운영될 것이며, 최소 7개의 객실이 필요하고, 그중 하나는 어머니를 위한 공간으로 마련될 것입니다. 단체 여행객과 개인 손님 모두를 위한 공간으로서 중식과 양식 주방, 식당, 거실, 휴게실, 그리고 노인들을 위한 바둑과 카드 놀이방까지 갖추어야 했습니다. 이러한 다양한 요구사항을 충족하기 위해, 새 건물은 기존 구조물 면적의 약 두 배가 필요했습니다.
지역 건축 규제는 창작의 자유에 일정한 제한을 두었습니다. 처마 높이는 최대 7미터, 지붕 마루 높이는 8.6미터로 제한되었으며, 이웃 건물로부터는 최소 40cm의 이격 거리가 필요했습니다. 이러한 제약 속에서도 설계팀은 시골 생활의 정취를 담아내는 활기찬 내부 공간을 창출하면서, 사용 가능한 공간을 최대화하는 해법을 모색해야 했습니다.
개념화와 형성 과정
대지 내에 자리한 세 그루의 나무는 단순한 보존 대상을 넘어 건축 디자인의 핵심 영감으로 승화되었고, 프로젝트의 이름인 "레이(耒) 홈스테이"의 유래가 되었습니다. "레이(耒)"는 고대 농기구에서 비롯된 용어로, 시골의 농경 생활을 상징합니다. 이 한자는 세 개의 '나무(木)' 획으로 구성되어 있어 나무의 이미지를 연상시키며, 이는 얽히고설킨 목재 골조라는 건축 개념으로 발전했습니다.
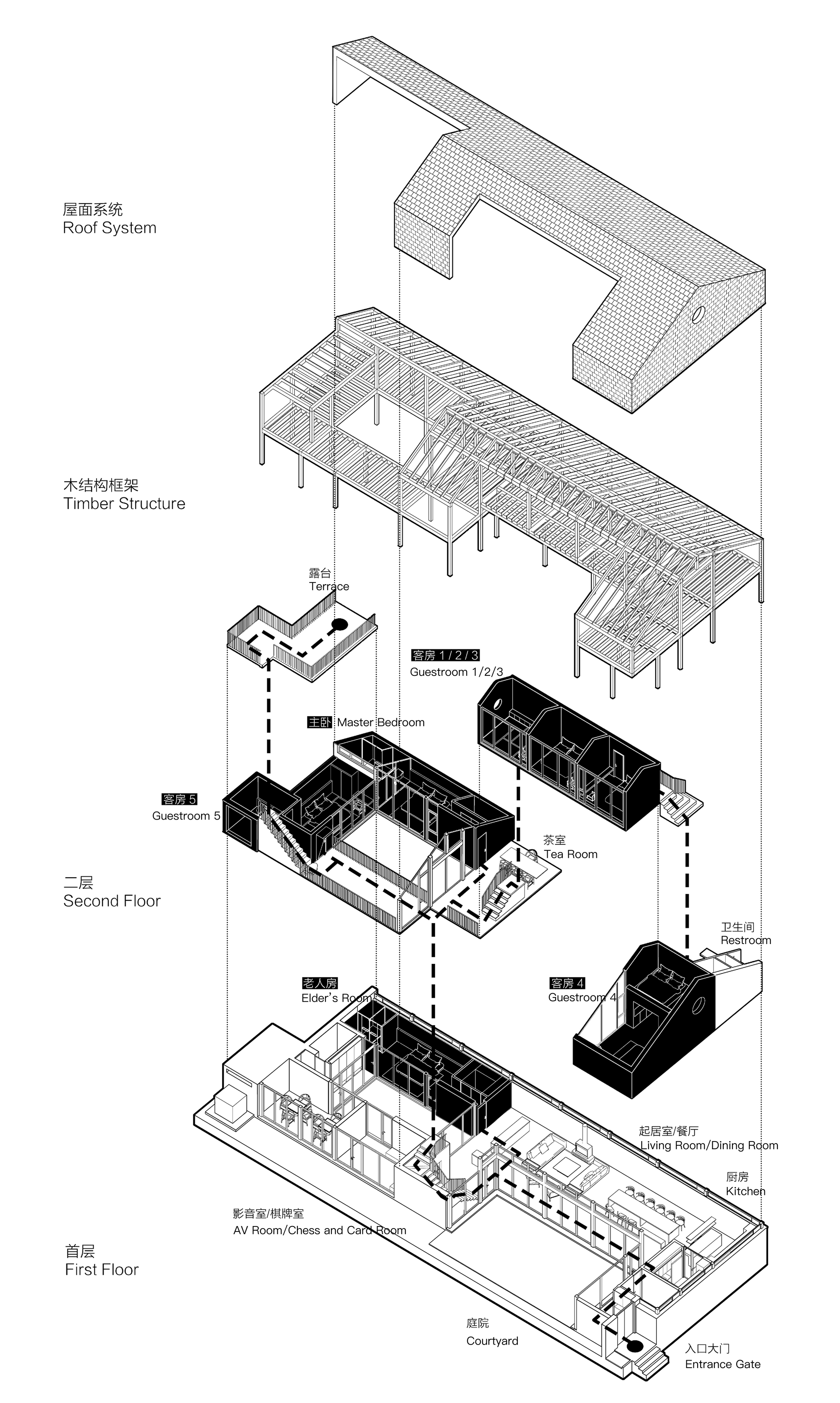
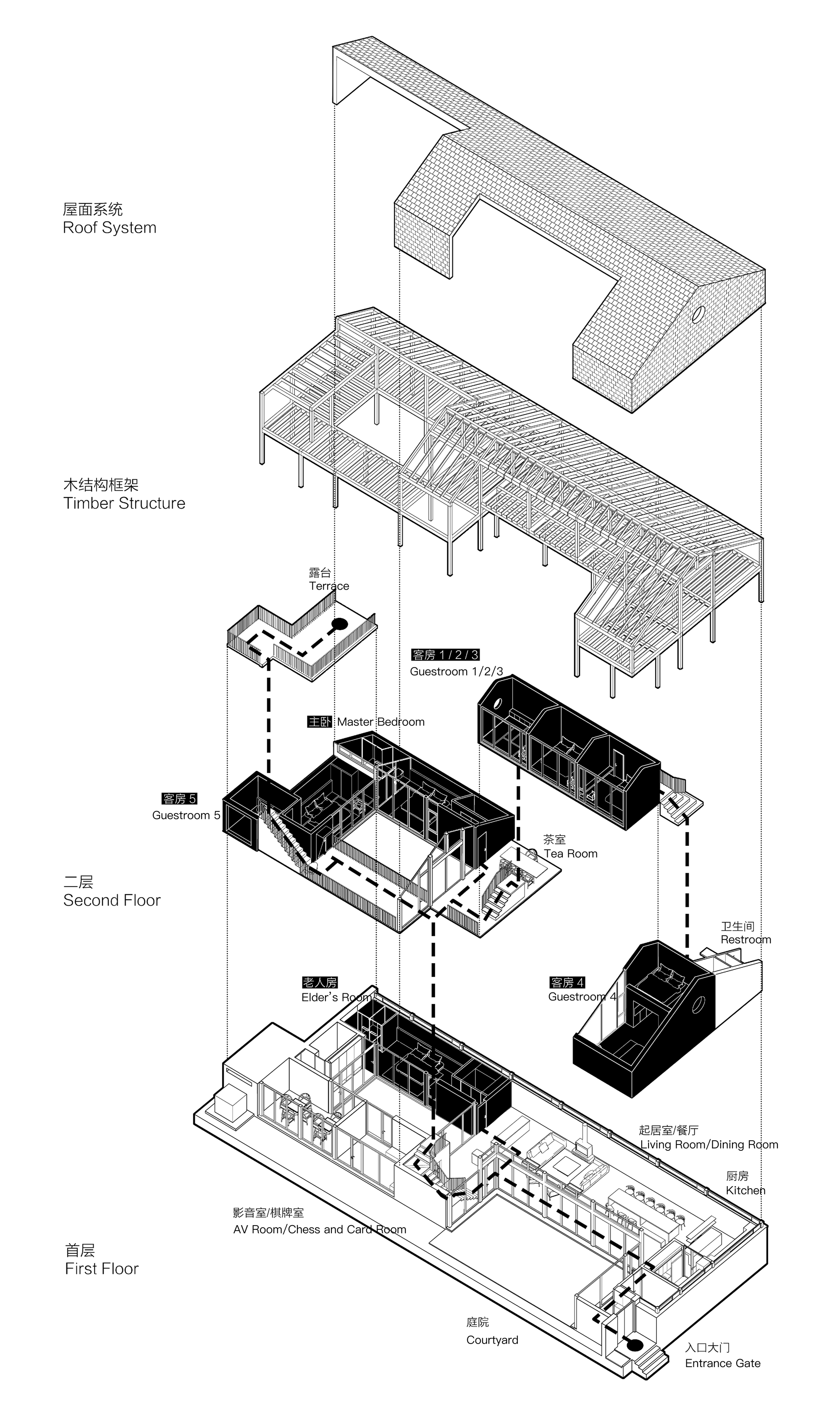
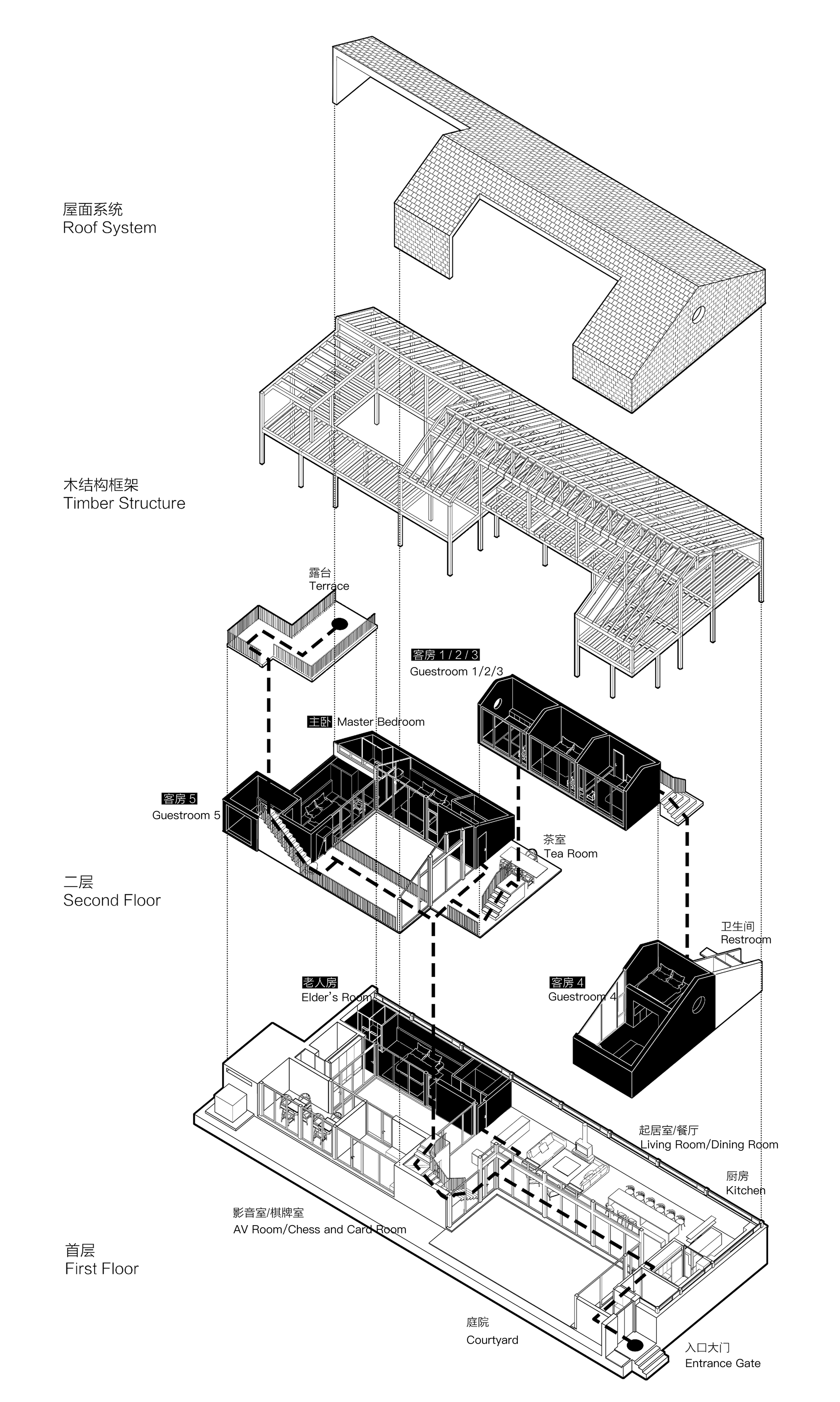
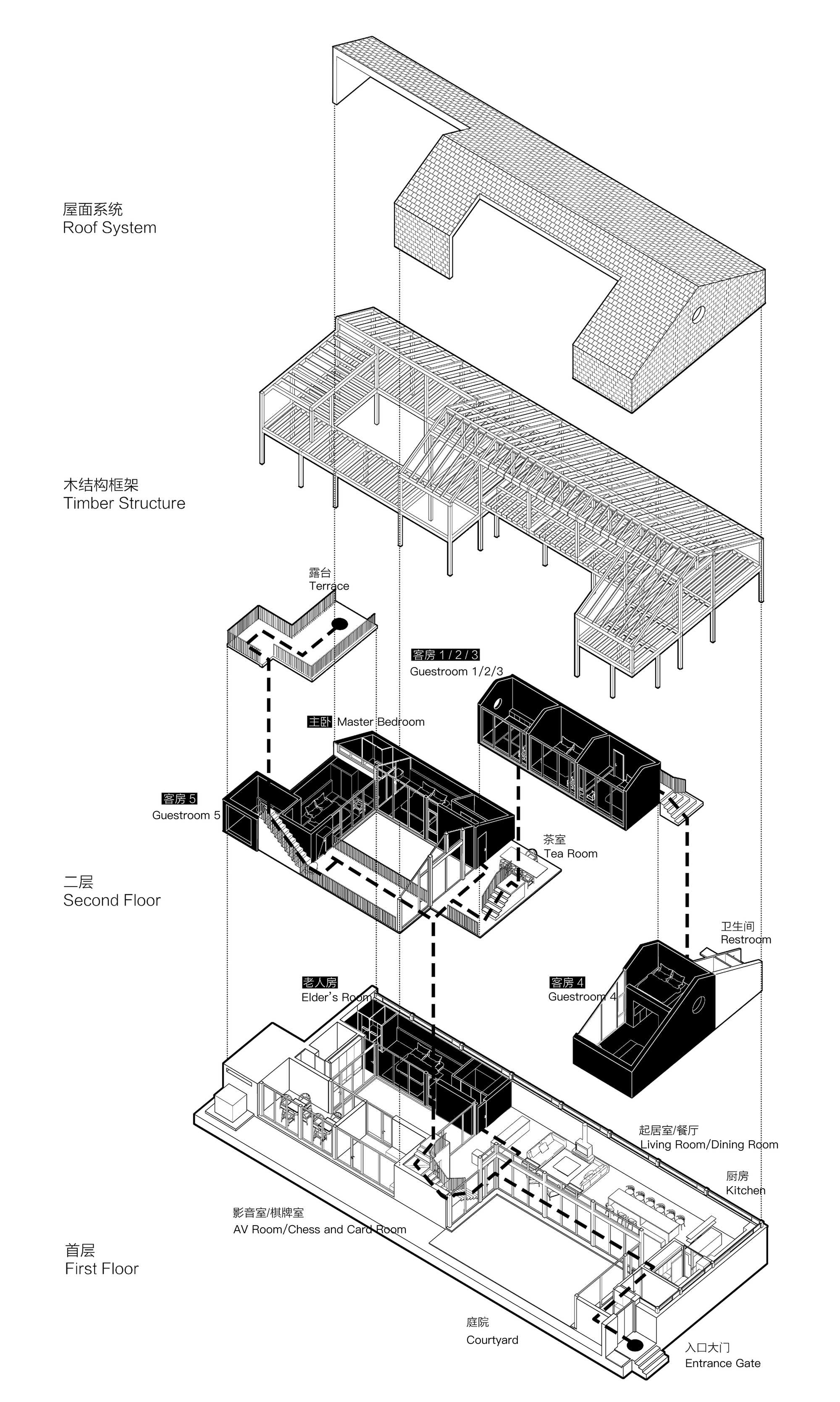
건물은 기존 나무들을 중심으로 공간이 구성되어, 두 개의 균형 잡힌 중정을 형성합니다. 이 중정들은 풍부한 자연광을 실내로 끌어들이고, 계절의 변화를 일상에서 느낄 수 있게 합니다. 이러한 배치는 마을의 전통적인 중정 가옥 양식을 현대적으로 재해석한 것입니다. 건물의 주요 구조는 접착 집성목으로 만들어졌으며, 경사진 지붕 아래에는 다양한 높이의 플랫폼 공간이 마련되어 마치 숲속에서 생활하는 듯한 독특한 경험을 선사합니다.
1층은 프라이버시를 위해 외부 도로 쪽으로는 견고한 벽으로 둘러싸여 있지만, 내부는 중정을 향해 전면 개방되어 있습니다. 이곳에는 거실, 식당, 주방과 같은 공용 공간과 집주인의 침실이 배치되어 있습니다. 2층에는 세 개의 단차가 있는 플랫폼이 벽돌 벽 위에 떠 있는 듯한 모습으로 자리하며, 이 공간은 주변 나무들과 시각적 대화를 나눕니다. 이 층에는 표준 객실, 다다미 스타일의 싱글룸, 로프트 스타일의 가족 스위트룸 등 다양한 스타일의 6개 객실이 마련되어 있습니다. 건물 상부에는 두 개의 옥상 테라스가 있어 방문객들에게 주변 산의 파노라마 전경을 감상할 수 있는 기회를 제공합니다.
재료와 건축 방식
지속가능성과 재활용성은 재료 선택의 근본 원칙이었으며, 예산 관리 또한 중요한 고려사항이었습니다. 따뜻하고 자연스러운 질감과 낮은 탄소발자국을 지닌 목재가 주요 구조 재료로 선택되었습니다. 공장에서 사전 제작된 목재 구조는 현장 시공 과정에서의 정밀성을 보장하고 높은 품질의 완성도를 담보했습니다.
외벽은 현장에서 수급한 재활용 벽돌로 전체적으로 구성되어, 자원 재활용이라는 철학적 가치를 건축적으로 구현했습니다. 내부 목재 칸막이는 건축 시스템의 일부로 설계되어 2차 마감 작업의 필요성을 줄이고 비용을 절감했습니다. 아스팔트 싱글은 지붕에서 2층 외관의 일부까지 확장되어, 주변 벽 위에 떠 있는 회색 집의 이미지를 형성하며 건물의 독특한 정체성을 강화합니다.
완공 후, 집주인은 이 건물을 "숨 쉬는 집"이라고 표현했습니다. 이는 단순한 감상이 아닌, 이 건축물의 본질을 정확히 포착한 명명입니다. 주변 환경에서 영감을 받아 지속가능한 재료와 신중한 건축 방법으로 탄생한 이 공간은 자연과 조화를 이루는 평온한 생활 방식을 가능케 합니다.
앞으로 이 건물은 단순한 상업적 홈스테이를 넘어 지역 커뮤니티 활동을 위한 공공 허브로서의 역할도 담당하게 될 것입니다. 방문객과 지역 주민 간의 활발한 교류를 촉진함으로써, 이 건축물이 전통 마을의 새로운 활력을 불어넣는 촉매제가 되기를 기대합니다.
Write by Claude & 5osa




































Village and Site. The project is located in North Yangjiaqiao Village, Yukou Town, Pinggu District, Beijing. This is a typical village on northern Chinese plains, traditionally characterized by courtyard style residences. However, as spontaneous village renewal accelerates, a variety of new structures have emerged along the streetscape, ranging from small Western-style buildings to structures with color-coated steel roofs, gradually transforming the village's traditional built fabric.
The site lies adjacent to the village's main road on its eastern side, spanning approximately 400 square meters. It is a rectangular plot, longer from east to west and shorter from north to south. The original buildings on the site were rather disorganized, comprising both pitched-roof and flat-roof brick concrete structures, along with some temporary buildings constructed with colored steel roofs, none of which held preservation value. Within the plot stand two persimmon trees and one walnut tree, planted by the homeowner's father during his childhood. Still flourishing and fruitful, these trees have become treasured family memories. After discussions between the designers and the homeowner, all three trees were preserved.
Needs and Constraints. The rich local natural resources, authentic rural lifestyle and proximity to scenic destinations establish the homestay's potential to appeal to urban visitors. Positioned as a key node of the suburban tourism network, the project seeks to convey the simplicity, serenity, and relaxation of rural life. From the outset, the owner clearly defined the intended use: the new building would operate as a homestay, with a minimum of seven guestrooms, one of which would be reserved for his mother. The project needed to cater to both group retreats and individual guests by incorporating Chinese and Western style kitchens, a dining room, a living room, a recreation room, and a chess and card room for the elderly. To meet these requirements, the new building had to be roughly double the footprint of the original structures.
Local regulations imposed additional constraints: a maximum eave height of 7 meters, a ridge height limit of 8.6 meters, and a minimum 40cm setback from neighboring buildings. Within these limitations, the design had to maximize usable volume while creating vibrant interior spaces that capture the charm of rural life.
Conceptualization and Formation. The three trees within the site inspired the architectural design, and also the project name, "Lei Homestay." The term "Lei (耒) originates from an ancient agricultural tool, representing rural agrarian life. Its written form is composed of three "wood" (木) strokes, evoking the image of trees and informing the architectural concept of an interwoven wooden framework. The building is organized around the trees, forming two well-proportioned courtyards that bring in ample sunlight and views of seasonal changes. This layout continues the traditional courtyard house typology of the village. The main structure is crafted from glued laminated timber, which, beneath the double-pitched roof, supports a variety of staggered platform spaces, evoking the sensation of living amidst a forest.
The ground floor is enclosed with solid walls along the street for privacy, while the interior fully opens to the courtyards. It accommodates communal spaces such as the living room, dining room, and kitchen, as well as the owner's bedroom bedroom. On the second floor, three staggered platforms appear to float above the brick walls, creating a visual interplay with the surrounding trees. This level houses six guestrooms of varied styles, including standard rooms, tatami-style single rooms, and loft style family suites. The building features two rooftop terraces, offering panoramic views of the surrounding mountains.
Materials and Construction. Sustainability and recyclability were fundamental principles in material selection, with cost control also being a key consideration. Timber, with its warm, natural texture and low carbon footprint, was chosen as the primary structural material. Prefabricated timber construction ensured precision during the building process and guaranteed high-quality execution. The exterior walls were constructed entirely from reclaimed bricks sourced on-site, embodying commitment to sustainable reuse. Internal wooden partitions were designed as a part of the architectural system, avoiding the need for secondary outfitting and reducing costs. Asphalt shingles extend from the roof to parts of the second-floor facade, creating the image of a gray house floating above the perimeter walls, enhancing the building's distinct identity.
Upon its completion, the owner proudly described it as "a breathing house." Inspired by its environment and crafted with sustainable materials and thoughtful construction methods, the building cultivates a natural and serene lifestyle. In the future, it will serve as both a commercial homestay and a public hub for community activities. Through fostering engagement between visitors and local residents, the building is hoped to become a catalyst for activating the traditional village.
from archdaily


