"건축은 단순한 형태로 복잡한 문제를 해결하는 예술이다." - 막스 두들러

![]() |
![]() |
![]() |
경계를 넘어서는 도시의 새로운 관문: 막스 두들러의 하이놀츠 학생 기숙사 Max Dudler-Student Residence in Hainholz
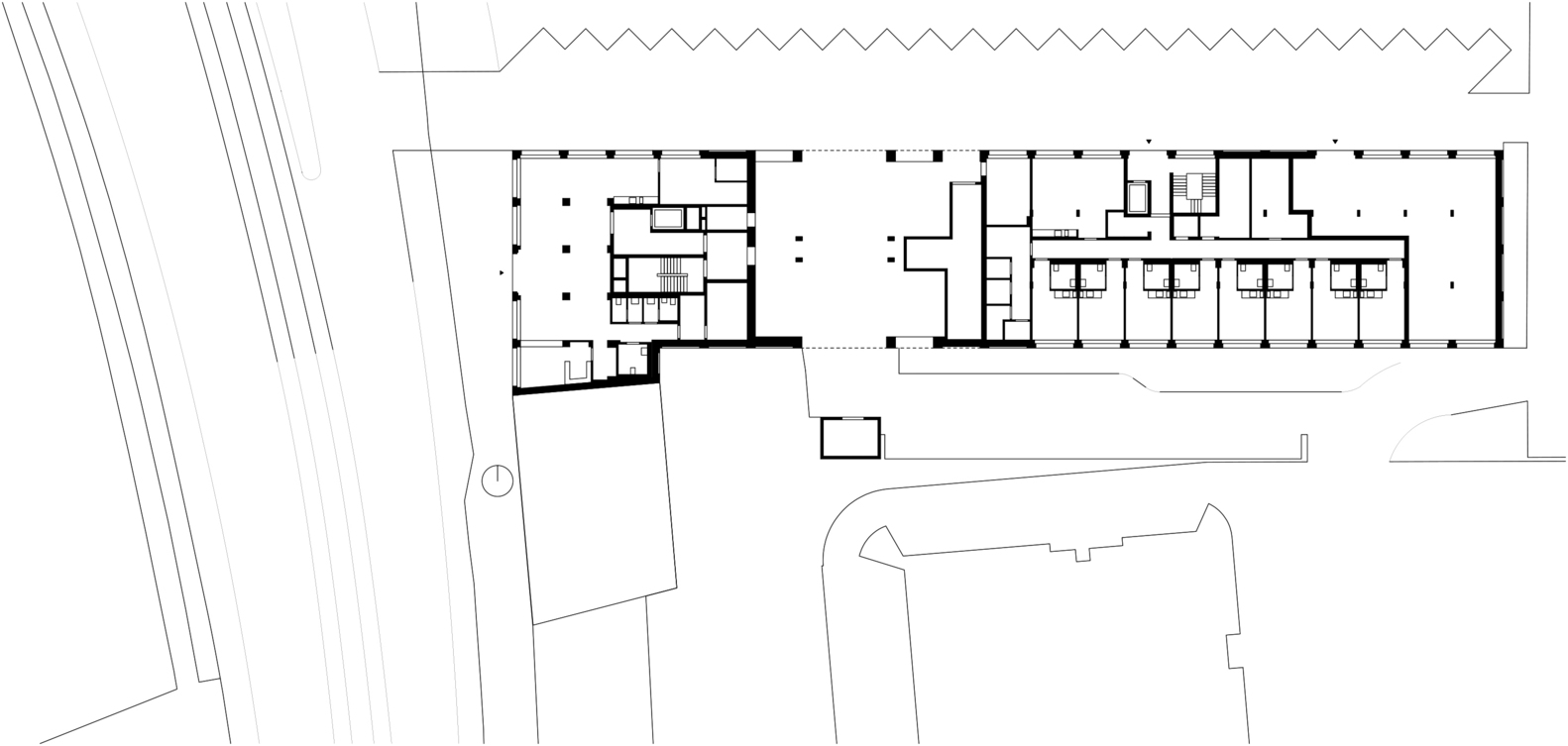
The building, known as “HAINBASE”, located at Schulenburger Landstraße 114, and containing 241 apartments, augments a currently emerging mixed use residential district for all age groups and living situations. A staggered urban figure whose tallest point rises to a height of 13 stories, the structure will serve as the north-western prelude to the new district and an architectural trademark at an entry point to the city.
하노버 북부 하이놀츠 지역에 들어선 '하인베이스(HAINBASE)'는 도시와 외곽의 경계에 위치한 새로운 랜드마크로, 도시 진입부에 강렬한 첫인상을 남긴다. 슐렌부르거 란트슈트라세 114번지에 자리한 이 건축물은 스위스 건축가 막스 두들러의 섬세한 도시 맥락 읽기가 돋보이는 작품이다. 총 241개의 학생 주거 유닛을 갖춘 이 기숙사는 다양한 세대와 라이프스타일을 수용하는 복합 주거 단지의 일부로, 과거 산업 지역이 품은 역사적 흔적과 미래지향적 주거 환경을 절묘하게 조화시킨다.
도시를 완성하는 입체적 볼륨
최고 13층 높이로 솟아오른 이 건물은 단계적 매스 구성을 통해 도시의 스카이라인에 활력을 불어넣는다. 건축적 측면에서 이 프로젝트는 도시와 외곽 지역의 전환점에 위치하며, 도시 경관의 흐름을 자연스럽게 이어주는 역할을 한다. 막스 두들러는 이 프로젝트를 통해 하노버의 도시 조직을 창의적으로 확장하면서, 지역의 역사적 맥락을 현대 건축 언어로 재해석했다.
입체적인 볼륨 구성과 독특한 외관 디자인을 통해 고층부와 저층부가 하나의 통합된 앙상블로 어우러진다. 특히 13층 높이의 타워는 도시의 관문으로서 시각적 기준점을 형성하며, 도시로 들어서는 이들에게 강렬한 인상을 남긴다. 이는 마치 한국의 성곽 도시에서 볼 수 있는 성문이 도시의 정체성을 상징했던 것과 유사한 역할을 현대적으로 재해석한 것으로 볼 수 있다.
역사를 품은 벽돌의 텍스처
남쪽으로는 건물의 최고점이 두 단계로 낮아지면서 인접 건물의 높이와 자연스럽게 연결된다. 동쪽으로는 7층 높이의 저층부가 저층부 관통 공간을 통해 타워와 유기적으로 연결되어 있다. 이 지점에서는 양방향에서 접근 가능한 옥상 정원이 펼쳐져, 학생들이 도시를 내려다보며 휴식할 수 있는 여유로운 외부 공간을 제공한다.
짙은 붉은빛 벽돌로 마감된 이 건물은 1927년에 지어진 이른바 '마리네바우'의 산업적 정서를 현대적으로 재해석한다. 마리네바우는 과거 소르스트 공장의 유일하게 남은 부분으로, 하노버의 산업 유산을 상징한다. 고온에서 구워 표면이 유리질화된 클링커 벽돌의 사용은 하노버 특유의 북독일 건축 전통을 계승하면서도, 현대적 감각으로 재해석했다. 이는 한국의 전통 벽돌인 전돌을 현대 건축에 적용하는 경향과 맥을 같이하는 접근법이다.
창문 테두리는 깊고 넓게 사선으로 처리되었으며, 층별로 좌우 교대로 배치되어 있다. 이러한 패턴은 입체적인 외관에 균일하면서도 생동감 있는 리듬을 만들어낸다. 오후의 햇살이 사선형 창호 테두리에 그림자를 드리울 때, 건물 외관은 마치 살아 움직이는 듯한 역동적인 표정을 짓는다.
도시 재생의 새로운 활력소
2001년부터 하노버 북부의 하이놀츠 지구는 산업 도시의 흔적을 간직한 채 새로운 변화를 맞이했다. 독일 연방정부와 주정부의 공동 도시재생 프로그램의 일환으로 이 지역은 '사회통합형 도시 재생'이라는 철학을 바탕으로, 물리적 환경 개선과 함께 사회적 연결성 강화에 중점을 두고 있다. 이는 한국의 도시재생 뉴딜사업과 유사한 접근법으로, 과거 산업 지역의 역사성을 존중하면서 현대적 도시 공간으로 재탄생시키는 과정이다.
이 프로젝트는 공공 공간의 네트워크를 재구성하는 동시에 질 높은 현대 건축을 통해 지역의 가치를 높이는 것을 목표로 한다. 학생 기숙사는 슐렌부르거 란트슈트라세와 볼트머슈트라세 사이에 자리 잡은 과거 금속 가공 공장 부지의 활성화에 기여하며, 이 복합 주거 지구의 북서쪽 경계를 형성한다. 그 외관에서 느껴지는 단단함과 달리, 내부는 따뜻하고 밝은 주거 공간으로 구성되어 있다.
소통하는 공간, 살아있는 커뮤니티
원룸형 및 투룸형 주거 유닛 241개를 갖춘 이 건물은 남쪽의 인접한 노인 주택 및 일반 주거 건물과 조화를 이루며, 다양한 세대가 함께 어우러지는 도시 공동체를 형성한다. 내부로 들어서면 다목적 교류 공간과 옥상 정원 같은 커뮤니티 공간이 거주자들의 일상에 풍요로움을 더한다. 학생들은 이곳에서 함께 모여 대화를 나누고 도시의 전망을 즐기며 다양한 활동을 펼칠 수 있다.
실내 공간은 미니멀한 디자인으로 처리되어 있으며, 넓은 창을 통해 풍부한 자연광이 유입된다. 흰색 벽과 목재 바닥의 조합은 차분하면서도 따뜻한 분위기를 연출하며, 학생들의 창의적인 사고와 휴식을 동시에 지원하는 배경이 된다. 창밖으로 펼쳐지는 하노버 도시 풍경은 학생들에게 일상 속 작은 여유를 선사한다.
막스 두들러의 하이놀츠 학생 기숙사는 물리적인 주거 공간 이상의 의미를 가진다. 이 건축물은 도시의 과거와 현재, 미래를 연결하는 매개체로서, 산업 도시의 역사적 맥락을 존중하면서도 현대적 삶의 방식을 담아내는 그릇이 되고 있다. 벽돌이라는 전통적 소재와 현대적 디자인 언어의 조화는 시대를 초월한 건축의 가능성을 보여주며, 도시 재생의 새로운 방향성을 제시한다. 하노버의 도시 풍경에 새로운 활력을 불어넣는 이 건축물은, 건축이 단순한 형태로 복잡한 도시적 과제를 해결할 수 있음을 증명하는 살아있는 사례다.
Write by Claude & 5osa























Architecturally, the building defines an urbanistic edge that lies along with the transition between city and periphery. With this project, Max Dudler extends the city of Hannover in a productive way, incorporating the history of the locale to create a timeless piece of architecture that looks toward the future. With its sculptural articulation and distinctive appearance, the ensemble combines high-rise and low-rise features, its thirteen story tower effectively demarcating the entrance to the city.
Toward the south, the building’s high point drops down in two stages, descending to the height of the neighbouring building. Toward the east, the low-rise, seven story section is joined to the tower via a subjacent incision, opening at this point onto roof terraces that are accessible from both sides of the building.
With its dark-red brick, the new building alludes to the so called Marinebau, dating from 1927, with its classical industrial architecture, the sole surviving component of the former Sorst Plant, at the same time invoking Hannover’s typical north-German clinker architecture. Deeply and broadly beveled window reveals, which alternate left to right between stories, generate a uniform, lively rhythm on the sculptural façade.
Beginning in 2001, the Hainholz district in the north of Hannover, with its industrial history, has been realigned within the framework of a federal state program for urban districts with special developmental requirements. Max Dudler’s new student residence is integral to a group of diverse measures designed to enhance the attractiveness of the neighbourhood for residents in the spirit of a “social city”.
The aim is to restructure the network of public places while upgrading the district through high quality contemporary architecture. The student residence furthers the revitalization of the former premises of the metalworking firm, situated between Schulenburger Landstraße and Voltmerstraße, and delimits the northwest terminus of this mixed residential district. With 241 single and double apartments, it complements adjacent retirement homes to the south, as well as general residential buildings, enlivening this neighbourhood, situated in the north part of Hannover. Within, the available spatial amenities are rounded out by common-use areas such as event spaces and a roof terrace.
from archdaily


